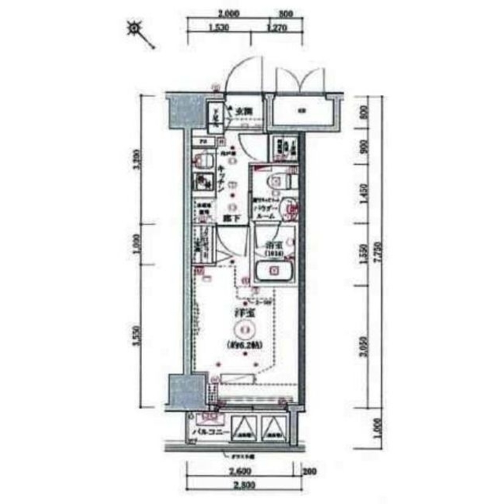
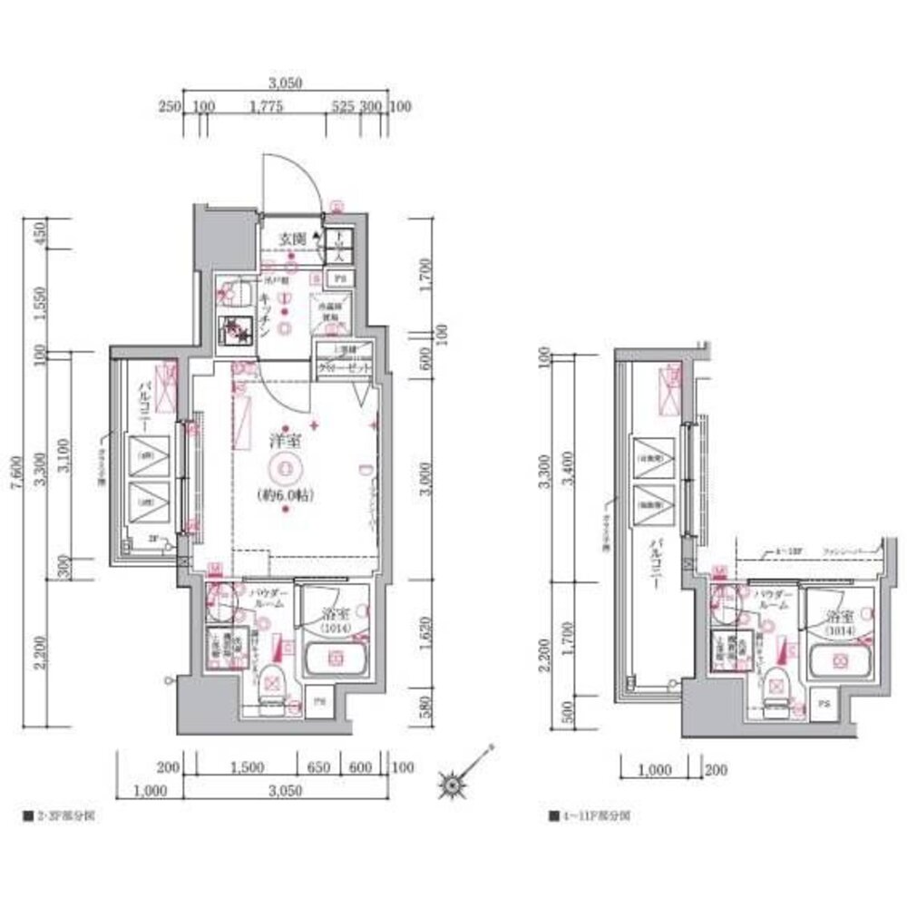
検索結果 -

神奈川県日ノ出町駅で24時間セキュリティの物件一覧

現在の検索条件

路線・駅
詳細条件

家賃から絞り込む

下限なし上限なし

3万円以下

15万円

100万円以上

検索結果6

0

現在の検索条件

路線・駅
詳細条件
アプリでサクサク物件を見る、Canary