3万円以下
15万円
100万円以上
JR日豊本線別府駅15階建築3年
ニューガイア大分駅前NO.63
MJR大分サーパスコート
エレグランス府内
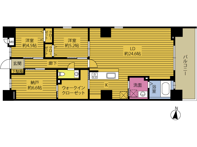
リビオタワー大分
PARKAVENUEEAST
メゾン詫磨
ShaMaison青山通り
大分市 11階建 2018年築
トラスト別府駅前