大阪市北区中崎西4丁目 15階建 2025年築1LDK/6階(大阪府大阪市北区 / 中崎町駅)の賃貸
1/25
1/25
16.2万円
初期費用を知りたい管理費15,000円
- 敷金
- 無料
- 保証金
- なし
- 礼金
- 無料
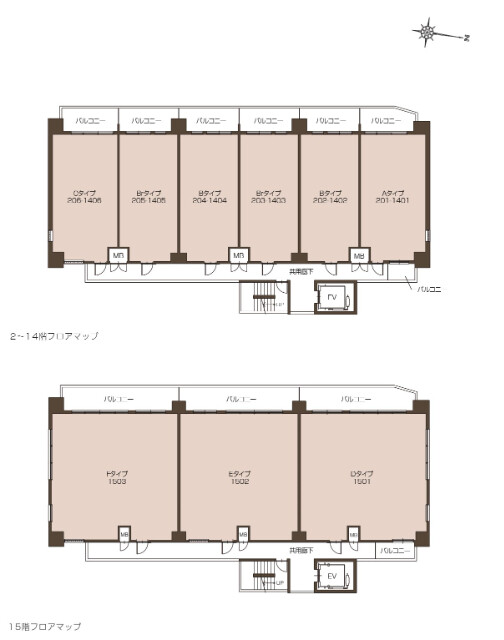
- 広さ
- 43.65㎡
- 階数
- 6階 / 15階建
- 間取り
- 1LDK
- 建物
- マンション (SRC造,RC造)
- 築年数
- 新築
- 向き
- 西
- 交通
- 地下鉄谷町線 / 中崎町駅徒歩6分
- 阪急神戸線 / 大阪梅田駅徒歩9分
- 住所
- 大阪府大阪市北区中崎西4丁目3番28号
コンビニエンスストア 240m
スーパーマーケット 30m
ドラッグストア 300m
無料で10秒! カンタンお問い合わせ

大阪市北区中崎西4丁目 15階建 2025年築
敷
無料礼
無料特徴
バス・トイレ別
2階以上
エアコン付き
ペット相談可
駐車場あり
室内洗濯機置場
オートロック
洗面所独立
- 入居条件
- 二人入居可、ペット相談、礼金不要、敷金不要、即入居可最新の空室状況が知りたい
- バス・トイレ
- 追焚機能浴室、シャワー付洗面化粧台、温水洗浄便座、浴室乾燥機、TV付浴室、専用バス、バストイレ別、シャワー
- キッチン
- システムキッチン、2口コンロ
- セキュリティ
- 防犯カメラ、オートロック、セキュリティ会社加入済
- 室内設備
- CS、BS、照明付、エアコン、フローリング、ネット使用料不要お部屋の詳しい情報を知りたい
- 部屋の特徴
- 二階以上写真を送ってほしい
- 共用部
- 宅配ボックス、エレベーター、敷地内駐車場
- その他の特徴
- 公営水道、都市ガス、下水、駐車場あり
無料で10秒! カンタンお問い合わせ

大阪市北区中崎西4丁目 15階建 2025年築
敷
無料礼
無料同じ建物で掲載中の物件 (18件)
不動産会社からのコメント
敷金・礼金0円、仲介手数料無料!小型犬・猫飼育可!
2025年10月1日入居開始の新築マンション!Wi-Fi無料で小型犬・猫も飼育可能!Refaのシャワーヘッド設置済!大阪メトロ谷町線「中崎町」徒歩6分、大阪メトロ御堂筋線「梅田」徒歩9分!
その他
- 駐車/駐輪
- 空有 費用: 33,000円 税: 税込み 空き数: 3 / なし駐車可能な車種や台数を知りたい
- 入居時期
- 損保
- 住宅保険: 要
- 保証人代行
- 加入要 会社名: エポス 費用: 個人初回20% 更新料1%/月 、法人初回50% 更新料10,000円/年 ※総賃料15万円以上の時更新年1.4万円 ※大手法人で加入不可の時敷金賃料1ヶ月分要
- その他費用
初期費用を知りたい・契約時鍵交換代(未入居除く):16,500円
・PREGIO CLUB24(要加入):20,000円
・退去時クリーニング代:48,400円
- 情報
情報登録日:2025/4/5
情報更新日:2026/3/24
次回更新予定日:2026/3/31
- 備考
- 現況: 空家 状態: 未入居 契約期間: 2年 総戸数: 81戸 その他交通: Osaka Metro御堂筋線梅田駅 徒歩9分 自社管理番号: 11536561
取扱い会社
- 取扱い会社
- 株式会社ベイシス プレジオ不動産投資ギャラリー条件が近い物件も紹介してほしい
- 免許番号
- 国土交通大臣(1)第10343号
- 取引態様
- 貸主
- 所在地
- 大阪府大阪市中央区南船場2丁目3番2号南船場ハートビル1階
- 電話番号
- 06-6271-0239
- 営業時間
- 09:00~18:00
- 定休日
- 年中無休(年末年始・お盆など臨時休業あり)
- 所属団体名
- 近畿地区不動産公正取引協議会
おすすめ物件 (9件)
賃貸マンション
大阪市北区中崎西4丁目 15階建 2025年築

地下鉄谷町線 / 中崎町駅 徒歩6分
新築 / 15階建
大阪府大阪市北区中崎西4丁目3番28号

17.4万円 / 管理費15,000円
敷
無料礼
無料1LDK / 43.65㎡ / 14階
賃貸マンション
大阪市北区中崎西4丁目 15階建 2012年築

地下鉄谷町線 / 中崎町駅 徒歩6分
築14年 / 15階建
大阪府大阪市北区中崎西4丁目

15.5万円 / 管理費10,480円
敷
15.5万円礼
15.5万円2DK / 42.2㎡ / 13階
賃貸マンション
グレンパーク梅田北

地下鉄谷町線 / 中崎町駅 徒歩6分
築19年 / 15階建
大阪府大阪市北区中崎3丁目

14.8万円 / 管理費10,000円
敷
14.8万円礼
14.8万円1LDK / 49.55㎡ / 3階
賃貸マンション
大阪市北区黒崎町 11階建 2025年築

地下鉄谷町線 / 中崎町駅 徒歩4分
築1年 / 11階建
大阪府大阪市北区黒崎町

17.7万円 / 管理費13,000円
敷
無料礼
無料2LDK / 42.17㎡ / 11階
賃貸マンション
大阪市北区 15階建 2018年築

阪神本線 / 大阪梅田駅 徒歩2分
築8年 / 15階建
大阪府大阪市北区堂島3丁目

15.6万円 / 管理費10,000円
敷
無料礼
15.6万円1LDK / 50.02㎡ / 3階
賃貸マンション
エステムプラザ梅田・中崎町Ⅲツインマークスサウスレジデンス

地下鉄谷町線 / 中崎町駅 徒歩7分
築16年 / 15階建
大阪府大阪市北区中崎西4丁目3-6

15.5万円 / 管理費10,480円
敷
15.5万円礼
15.5万円2DK / 42.2㎡ / 13階
賃貸マンション
スプランディッド梅田北

地下鉄谷町線 / 中崎町駅 徒歩7分
築3年 / 9階建
大阪府大阪市北区本庄西1丁目

14.6万円 / 管理費12,000円
敷
無料礼
14.6万円1LDK / 40.18㎡ / 2階
賃貸マンション
大阪市北区 19階建 2025年築

阪急宝塚線 / 大阪梅田駅 徒歩10分
築1年 / 19階建
大阪府大阪市北区豊崎5丁目

18万円 / 管理費25,000円
敷
無料礼
41万円1LDK / 46.99㎡ / 5階
賃貸マンション
大阪市北区中崎西4丁目 15階建 2012年築

地下鉄谷町線 / 中崎町駅 徒歩6分
築14年 / 15階建
大阪府大阪市北区中崎西4丁目3番6号

15.5万円 / 管理費10,480円
敷
15.5万円礼
15.5万円2DK / 42.2㎡ / 13階
賃貸マンション
大阪市北区中崎西4丁目 15階建 2025年築

地下鉄谷町線 / 中崎町駅 徒歩6分
新築 / 15階建
大阪府大阪市北区中崎西4丁目3番28号

17.4万円 / 管理費15,000円
敷
無料礼
無料1LDK / 43.65㎡ / 14階
賃貸マンション
大阪市北区中崎西4丁目 15階建 2012年築

地下鉄谷町線 / 中崎町駅 徒歩6分
築14年 / 15階建
大阪府大阪市北区中崎西4丁目

15.5万円 / 管理費10,480円
敷
15.5万円礼
15.5万円2DK / 42.2㎡ / 13階
賃貸マンション
グレンパーク梅田北

地下鉄谷町線 / 中崎町駅 徒歩6分
築19年 / 15階建
大阪府大阪市北区中崎3丁目

14.8万円 / 管理費10,000円
敷
14.8万円礼
14.8万円1LDK / 49.55㎡ / 3階
賃貸マンション
大阪市北区黒崎町 11階建 2025年築

地下鉄谷町線 / 中崎町駅 徒歩4分
築1年 / 11階建
大阪府大阪市北区黒崎町

17.7万円 / 管理費13,000円
敷
無料礼
無料2LDK / 42.17㎡ / 11階
賃貸マンション
大阪市北区 15階建 2018年築

阪神本線 / 大阪梅田駅 徒歩2分
築8年 / 15階建
大阪府大阪市北区堂島3丁目

15.6万円 / 管理費10,000円
敷
無料礼
15.6万円1LDK / 50.02㎡ / 3階
賃貸マンション
エステムプラザ梅田・中崎町Ⅲツインマークスサウスレジデンス

地下鉄谷町線 / 中崎町駅 徒歩7分
築16年 / 15階建
大阪府大阪市北区中崎西4丁目3-6

15.5万円 / 管理費10,480円
敷
15.5万円礼
15.5万円2DK / 42.2㎡ / 13階
賃貸マンション
スプランディッド梅田北

地下鉄谷町線 / 中崎町駅 徒歩7分
築3年 / 9階建
大阪府大阪市北区本庄西1丁目

14.6万円 / 管理費12,000円
敷
無料礼
14.6万円1LDK / 40.18㎡ / 2階
賃貸マンション
大阪市北区 19階建 2025年築

阪急宝塚線 / 大阪梅田駅 徒歩10分
築1年 / 19階建
大阪府大阪市北区豊崎5丁目

18万円 / 管理費25,000円
敷
無料礼
41万円1LDK / 46.99㎡ / 5階
賃貸マンション
大阪市北区中崎西4丁目 15階建 2012年築

地下鉄谷町線 / 中崎町駅 徒歩6分
築14年 / 15階建
大阪府大阪市北区中崎西4丁目3番6号

15.5万円 / 管理費10,480円
敷
15.5万円礼
15.5万円2DK / 42.2㎡ / 13階






































)

)
