Sereno検見川1K/1階/106(千葉県千葉市花見川区 / 検見川駅)の賃貸
1/20
1/20
5.9万円
初期費用を知りたい管理費4,000円
- 敷金
- 無料
- 保証金
- なし
- 礼金
- 無料
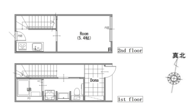
- 広さ
- 27.1㎡
- 階数
- 1階 / 2階建
- 間取り
- 1K
- 建物
- アパート (木造)
- 築年数
- 築14年
- 向き
- 北
- 交通
- 京成千葉線 / 検見川駅徒歩11分
- 総武線 / 新検見川駅徒歩15分
- 総武線 / 幕張駅徒歩26分
- 住所
- 千葉県千葉市 花見川区検見川町3丁目160-1
西友新検見川店 499m
ローソン 千葉検見川町三丁目店 39m
ヤックスドラッグ 新検見川店 609m
日高屋 新検見川南口店 635m
津田胃腸科医院 537m
千葉検見川郵便局 143m
無料で10秒! カンタンお問い合わせ

Sereno検見川
敷
無料礼
無料特徴
バス・トイレ別
2階以上
エアコン付き
ペット相談可
駐車場あり
室内洗濯機置場
オートロック
洗面所独立
- 入居条件
- 敷金不要、礼金不要最新の空室状況が知りたい
- バス・トイレ
- 洗面台、バストイレ別、オートバス、追焚機能浴室、温水洗浄便座、洗面所独立
- キッチン
- ガスコンロ対応、1口コンロ
- 室内設備
- インターネット対応、ネット使用料不要、エアコン、室内洗濯置お部屋の詳しい情報を知りたい
- 部屋の特徴
- バルコニー写真を送ってほしい
- その他の特徴
- 駐車場あり、公営水道、下水
無料で10秒! カンタンお問い合わせ

Sereno検見川
敷
無料礼
無料不動産会社からのコメント
月次手数料 月額630円/雑費1月額 町内会費月額 150円(非課税)/更新事務手数料11000円/短期解約違約金半年未満2ヶ月1年未満1ヶ月 (別途フリーレント適用分賃料が加算されます)/火災保険加入料 20000円(2年間) コンビニ払い/短期解約違約金2年未満1ヶ月1年未満2ヶ月(別途フリーレント分)/室内清掃費用借主負担
その他
- 駐車/駐輪
- 近隣 費用: 8,800円(税込) 距離: 583m / なし駐車可能な車種や台数を知りたい
- 入居時期
- 2026年4月下旬最新の空室状況が知りたい
- 損保
- 住宅保険: 要
- 保証人代行
- 保証人代行: 必須 保証人代行会社: その他 月額手数料:1440円
- その他費用
初期費用を知りたいその他費用(除菌費用:1.65万円/他):33,000円
鍵交換費:27,500円
- 情報
情報登録日:2026/3/21
情報更新日:2026/4/7
次回更新予定日:2026/4/22
- 備考
- 契約期間: 2年
取扱い会社
- 取扱い会社
- アエラス千葉店 (株式会社アエラス)条件が近い物件も紹介してほしい
- 免許番号
- 国土交通大臣(3)第8522号
- 取引態様
- 仲介
- 所在地
- 千葉県千葉市中央区新千葉1丁目4-2 ウェストリオ2 6階
- 電話番号
- 043-441-4611
- 営業時間
- 10:00~19:00
- 定休日
- 毎週水曜日
- 所属団体名
- 全日本不動産協会
おすすめ物件 (20件)
賃貸アパート
クレイノ扶桑

総武線 / 幕張駅 徒歩14分
築9年 / 2階建
千葉県千葉市花見川区幕張町3丁目1492-2

7.1万円 / 管理費5,000円
敷
無料礼
7.1万円1K / 25.17㎡ / 1階
賃貸アパート
グランデ新検見川
)
総武線 / 新検見川駅 徒歩9分
築3年 / 3階建
千葉県千葉市花見川区検見川町3丁目336-8
)
7.3万円 / 管理費3,000円
敷
無料礼
無料1LDK / 29.81㎡ / 1階
賃貸マンション
ブルーム

総武線 / 幕張駅 徒歩4分
築6年 / 3階建
千葉県千葉市 花見川区幕張町6丁目86-7

7.6万円 / 管理費4,000円
敷
7.6万円礼
15.2万円1K / 28.63㎡ / 2階
賃貸アパート
MOKTERRACE SHINKEMIGAWA

総武線 / 新検見川駅 徒歩13分
新築 / 3階建
千葉県千葉市 花見川区南花園1丁目6

7.1万円 / 管理費4,000円
敷
7.1万円礼
7.1万円1K / 29.84㎡ / 1階
賃貸マンション
エスペランサ
)
総武線 / 新検見川駅 徒歩3分
築3年 / 3階建
千葉県千葉市花見川区南花園2丁目9-12
)
7.5万円 / 管理費5,000円
敷
7.5万円礼
7.5万円1K / 23.6㎡ / 1階
賃貸マンション
プライディア幕張
)
総武線 / 幕張駅 徒歩4分
築12年 / 4階建
千葉県千葉市花見川区幕張町5丁目135-11
)
7.2万円 / 管理費5,000円
敷
7.2万円礼
無料1DK / 26.33㎡ / 4階
賃貸アパート
リブリ・新検見川Ⅱ

総武線 / 新検見川駅 徒歩11分
築1年 / 3階建
千葉県千葉市花見川区花園町1569-3

7.1万円 / 管理費3,000円
敷
無料礼
7.1万円1K / 26.08㎡ / 1階
賃貸マンション
リブリ・検見川町

京成千葉線 / 検見川駅 徒歩5分
築8年 / 3階建
千葉県千葉市花見川区検見川町3丁目309-8

6.9万円 / 管理費4,000円
敷
無料礼
6.9万円1K / 23.18㎡ / 3階
賃貸マンション
リブリ・ツカサ

京成千葉線 / 検見川駅 徒歩7分
築8年 / 3階建
千葉県千葉市花見川区検見川町1丁目727-4

6.8万円 / 管理費4,000円
敷
無料礼
6.8万円1K / 28.15㎡ / 2階
賃貸アパート
リブリ・シトロン

総武線 / 新検見川駅 徒歩8分
築9年 / 2階建
千葉県千葉市花見川区検見川町5丁目2327-1

6.9万円 / 管理費4,000円
敷
無料礼
6.9万円1K / 27.32㎡ / 1階
賃貸アパート
リブリ・マロングラッセ

京成千葉線 / 検見川駅 徒歩6分
築10年 / 2階建
千葉県千葉市花見川区検見川町2丁目557

6.7万円 / 管理費4,000円
敷
無料礼
6.7万円1K / 27.32㎡ / 2階
賃貸アパート
グランメゾンOC

総武線 / 新検見川駅 徒歩25分
築43年 / 2階建
千葉県千葉市花見川区宮野木台1丁目6-10

4.6万円 / 管理費3,000円
敷
無料礼
無料2DK / 35.9㎡ / 2階
賃貸アパート
リブリ・JOY MAKUHARI

総武線 / 幕張駅 徒歩5分
築13年 / 2階建
千葉県千葉市花見川区幕張町6丁目307-22

6.7万円 / 管理費4,000円
敷
無料礼
6.7万円1K / 24.84㎡ / 2階
賃貸アパート
ヴィレッタ花園

総武線 / 新検見川駅 徒歩8分
築8年 / 2階建
千葉県千葉市花見川区花園5丁目16-11

5.7万円 / 管理費11,000円
敷
無料礼
5.7万円1K / 21.96㎡ / 1階
賃貸アパート
The Terrace新検見川

総武線 / 新検見川駅 徒歩9分
築4年 / 2階建
千葉県千葉市花見川区南花園1丁目8-34

6.4万円 / 管理費11,000円
敷
無料礼
6.4万円ワンルーム / 19.2㎡ / 1階
賃貸アパート
クレイノ扶桑

総武線 / 幕張駅 徒歩14分
築9年 / 2階建
千葉県千葉市花見川区幕張町3丁目1492-2

7.1万円 / 管理費5,000円
敷
無料礼
7.1万円1K / 25.17㎡ / 1階
賃貸アパート
グランデ新検見川
)
総武線 / 新検見川駅 徒歩9分
築3年 / 3階建
千葉県千葉市花見川区検見川町3丁目336-8
)
7.3万円 / 管理費3,000円
敷
無料礼
無料1LDK / 29.81㎡ / 1階
賃貸マンション
ブルーム

総武線 / 幕張駅 徒歩4分
築6年 / 3階建
千葉県千葉市 花見川区幕張町6丁目86-7

7.6万円 / 管理費4,000円
敷
7.6万円礼
15.2万円1K / 28.63㎡ / 2階
賃貸アパート
MOKTERRACE SHINKEMIGAWA

総武線 / 新検見川駅 徒歩13分
新築 / 3階建
千葉県千葉市 花見川区南花園1丁目6

7.1万円 / 管理費4,000円
敷
7.1万円礼
7.1万円1K / 29.84㎡ / 1階
賃貸マンション
エスペランサ
)
総武線 / 新検見川駅 徒歩3分
築3年 / 3階建
千葉県千葉市花見川区南花園2丁目9-12
)
7.5万円 / 管理費5,000円
敷
7.5万円礼
7.5万円1K / 23.6㎡ / 1階
賃貸マンション
プライディア幕張
)
総武線 / 幕張駅 徒歩4分
築12年 / 4階建
千葉県千葉市花見川区幕張町5丁目135-11
)
7.2万円 / 管理費5,000円
敷
7.2万円礼
無料1DK / 26.33㎡ / 4階
賃貸アパート
リブリ・新検見川Ⅱ

総武線 / 新検見川駅 徒歩11分
築1年 / 3階建
千葉県千葉市花見川区花園町1569-3

7.1万円 / 管理費3,000円
敷
無料礼
7.1万円1K / 26.08㎡ / 1階
賃貸マンション
リブリ・検見川町

京成千葉線 / 検見川駅 徒歩5分
築8年 / 3階建
千葉県千葉市花見川区検見川町3丁目309-8

6.9万円 / 管理費4,000円
敷
無料礼
6.9万円1K / 23.18㎡ / 3階
賃貸マンション
リブリ・ツカサ

京成千葉線 / 検見川駅 徒歩7分
築8年 / 3階建
千葉県千葉市花見川区検見川町1丁目727-4

6.8万円 / 管理費4,000円
敷
無料礼
6.8万円1K / 28.15㎡ / 2階
賃貸アパート
リブリ・シトロン

総武線 / 新検見川駅 徒歩8分
築9年 / 2階建
千葉県千葉市花見川区検見川町5丁目2327-1

6.9万円 / 管理費4,000円
敷
無料礼
6.9万円1K / 27.32㎡ / 1階
賃貸アパート
リブリ・マロングラッセ

京成千葉線 / 検見川駅 徒歩6分
築10年 / 2階建
千葉県千葉市花見川区検見川町2丁目557

6.7万円 / 管理費4,000円
敷
無料礼
6.7万円1K / 27.32㎡ / 2階
賃貸アパート
グランメゾンOC

総武線 / 新検見川駅 徒歩25分
築43年 / 2階建
千葉県千葉市花見川区宮野木台1丁目6-10

4.6万円 / 管理費3,000円
敷
無料礼
無料2DK / 35.9㎡ / 2階
賃貸アパート
リブリ・JOY MAKUHARI

総武線 / 幕張駅 徒歩5分
築13年 / 2階建
千葉県千葉市花見川区幕張町6丁目307-22

6.7万円 / 管理費4,000円
敷
無料礼
6.7万円1K / 24.84㎡ / 2階
賃貸アパート
ヴィレッタ花園

総武線 / 新検見川駅 徒歩8分
築8年 / 2階建
千葉県千葉市花見川区花園5丁目16-11

5.7万円 / 管理費11,000円
敷
無料礼
5.7万円1K / 21.96㎡ / 1階
賃貸アパート
The Terrace新検見川

総武線 / 新検見川駅 徒歩9分
築4年 / 2階建
千葉県千葉市花見川区南花園1丁目8-34

6.4万円 / 管理費11,000円
敷
無料礼
6.4万円ワンルーム / 19.2㎡ / 1階
























)
)
)
)
)
)

