オーキッドレジデンス両国1K/8階/803(東京都墨田区 / 両国駅)の賃貸
1/23
1/23
12.7万円
初期費用を知りたい管理費12,000円
- 敷金
- 12.7万円
- 保証金
- なし
- 礼金
- 無料
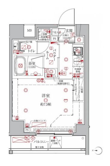
- 広さ
- 25.3㎡
- 階数
- 8階 / 8階建
- 間取り
- 1K
- 建物
- マンション (鉄筋コンクリート)
- 築年数
- 築6年
- 向き
- 西
- 交通
- 都営大江戸線 / 両国駅徒歩5分
- 都営新宿線 / 森下駅徒歩10分
- 住所
- 東京都墨田区緑1丁目6-1
コンビニエンスストア 225m
スーパーマーケット 200m
総合病院 1000m
公園 353m
ドラッグストア 644m
銀行 229m
ホワイト急便亀沢1丁目店 470m
無料で10秒! カンタンお問い合わせ

オーキッドレジデンス両国
敷
12.7万円礼
無料特徴
バス・トイレ別
2階以上
エアコン付き
ペット相談可
駐車場あり
室内洗濯機置場
オートロック
洗面所独立
- 入居条件
- 保証人不要、初期費用カード決済可最新の空室状況が知りたい
- バス・トイレ
- バストイレ別、温水洗浄便座、浴室乾燥機、洗面所独立、シャワー付洗面化粧台、専用バス、専用トイレ
- キッチン
- システムキッチン、ガスコンロ対応、2口コンロ
- セキュリティ
- オートロック、防犯カメラ
- 室内設備
- 室内洗濯置、フローリング、ネット使用料不要、インターネット対応、BS、CS、エアコン、クロゼット、全居室収納、シューズボックスお部屋の詳しい情報を知りたい
- 部屋の特徴
- バルコニー、二階以上、最上階写真を送ってほしい
- 共用部
- エレベーター、宅配ボックス、駐輪場、バイク置場
- その他の特徴
- 家賃保証付き、公営水道、下水、都市ガス
無料で10秒! カンタンお問い合わせ

オーキッドレジデンス両国
敷
12.7万円礼
無料不動産会社からのコメント
当物件はオンラインまたはお近くの店舗でご相談お申込を承ります
当物件は「住まいのリライフ」で取り扱っております。リライフは首都圏25店舗のネットワークで豊富な物件情報をお客様へご提供します。当物件に類似した未公開物件なども合わせてご提案可能です。お気軽にお問合せください。違約金有:1年未満解約:賃料の1か月分
その他
- 駐車/駐輪
- 空無 / あり駐車可能な車種や台数を知りたい
- 入居時期
- 2026年3月上旬最新の空室状況が知りたい
- 損保
- 住宅保険: 要
- 保証人代行
- 加入要 費用: 初回:総賃料540%、月額:1%
- その他費用
初期費用を知りたい鍵交換費用:33,000円
- 情報
情報登録日:2026/1/29
情報更新日:2026/1/29
次回更新予定日:2026/2/5
- 備考
- 現況: 居住中 更新料: 新賃料の1.0ヶ月分 契約期間: 2年 総戸数: 46戸 自社管理番号: B25429R200105
取扱い会社
- 取扱い会社
- 株式会社 リライフ 浅草橋店条件が近い物件も紹介してほしい
- 免許番号
- 国土交通大臣(1)第10792号
- 取引態様
- 仲介
- 所在地
- 東京都台東区柳橋1-13-5 大島屋浅草橋ビル2階
- 電話番号
- 03-6756-7471
- 営業時間
- 10:00~20:00
- 定休日
- なし ※年末年始休業(12/27~1/4)
- 所属団体名
- 公益社団法⼈東京都宅地建物取引業協会、公益社団法⼈全国宅地建物取引業保証協会
おすすめ物件 (20件)
賃貸マンション
GRANPASEO 両国 North

都営大江戸線 / 両国駅 徒歩10分
築4年 / 10階建
東京都墨田区緑3丁目16-3

12万円 / 管理費10,000円
敷
無料礼
無料1K / 25.12㎡ / 5階
賃貸マンション
メゾン・ド・クロシェット

都営大江戸線 / 森下駅 徒歩12分
築9年 / 7階建
東京都墨田区立川3丁目16-11

11.2万円 / 管理費8,000円
敷
11.2万円礼
11.2万円1K / 26.74㎡ / 6階
賃貸マンション
メインステージ錦糸町Ⅸ

都営大江戸線 / 両国駅 徒歩9分
築7年 / 12階建
東京都墨田区緑3丁目18-8

11.9万円 / 管理費15,000円
敷
無料礼
11.9万円1K / 25.6㎡ / 2階
賃貸マンション
グランヒルズ錦糸町

都営大江戸線 / 両国駅 徒歩15分
新築 / 10階建
東京都墨田区石原4丁目18-2

11.9万円 / 管理費10,000円
敷
11.9万円礼
11.9万円1DK / 27.41㎡ / 6階
賃貸マンション
ブラウ菊川プレイス

都営大江戸線 / 森下駅 徒歩12分
築5年 / 11階建
東京都墨田区立川3丁目9-9

12.4万円 / 管理費15,000円
敷
12.4万円礼
無料1DK / 25.32㎡ / 9階
賃貸マンション
グランエール森下EAST

都営大江戸線 / 森下駅 徒歩2分
新築 / 8階建
東京都江東区森下2丁目31-11

13.9万円 / 管理費10,000円
敷
13.9万円礼
無料1DK / 25.26㎡ / 6階
賃貸マンション
プラウドフラット両国イースト

都営大江戸線 / 両国駅 徒歩8分
築5年 / 13階建
東京都墨田区緑3丁目15-12

13万円 / 管理費10,000円
敷
13万円礼
無料1K / 25.12㎡ / 9階
賃貸マンション
コンフォリア森下リバーサイド

都営新宿線 / 森下駅 徒歩7分
築4年 / 11階建
東京都江東区常盤1丁目6-5

13.8万円 / 管理費8,000円
敷
13.8万円礼
無料1K / 25.08㎡ / 10階
賃貸マンション
ディアレイシャス両国

都営大江戸線 / 両国駅 徒歩9分
築6年 / 7階建
東京都墨田区石原3丁目9-9

12.3万円 / 管理費11,000円
敷
無料礼
12.3万円1K / 25.32㎡ / 6階
賃貸マンション
墨田区 11階建 2008年築

都営大江戸線 / 両国駅 徒歩11分
築18年 / 11階建
東京都墨田区亀沢3丁目27-7

11.8万円 / 管理費8,000円
敷
11.8万円礼
11.8万円1K / 25.77㎡ / 6階
賃貸マンション
コンフォリア・リヴ森下MUTIO

都営新宿線 / 森下駅 徒歩5分
新築 / 10階建
東京都江東区森下3丁目6-7

13.8万円 / 管理費10,000円
敷
13.8万円礼
無料1K / 25.81㎡ / 4階
賃貸マンション
クレイシア森下ステーションサイト

都営新宿線 / 森下駅 徒歩3分
築5年 / 9階建
東京都江東区森下1丁目10-2

12万円 / 管理費12,000円
敷
12万円礼
12万円1K / 25.5㎡ / 5階
賃貸マンション
プライマル森下Ⅱ(旧GRANPASEO森下Ⅱ)

都営大江戸線 / 森下駅 徒歩3分
築2年 / 13階建
東京都江東区森下2丁目31-2

13.7万円 / 管理費12,000円
敷
13.7万円礼
無料1DK / 25.3㎡ / 7階
賃貸マンション
パークフロント常盤

都営大江戸線 / 森下駅 徒歩6分
築12年 / 6階建
東京都江東区常盤1丁目10-5

13.1万円 / 管理費8,000円
敷
13.1万円礼
無料1K / 25.51㎡ / 3階
賃貸マンション
メイクスデザイン森下

都営大江戸線 / 森下駅 徒歩1分
築6年 / 15階建
東京都江東区森下1丁目14-8

12万円 / 管理費12,000円
敷
12万円礼
12万円1K / 26.06㎡ / 2階
賃貸マンション
グランカーサ菊川

都営大江戸線 / 森下駅 徒歩11分
新築 / 10階建
東京都江東区森下4丁目10-5

家賃カード決済可
14.6万円 / 管理費10,000円
敷
無料礼
無料1DK / 26.49㎡ / 10階
賃貸マンション
江東区 13階建 2007年築

都営大江戸線 / 森下駅 徒歩1分
築19年 / 13階建
東京都江東区森下2丁目23-2

11.45万円 / 管理費15,000円
敷
無料礼
11.45万円1K / 23.7㎡ / 7階
賃貸マンション
ルネサンスコート両国

都営大江戸線 / 両国駅 徒歩9分
築5年 / 7階建
東京都墨田区石原2丁目30-4

11.5万円 / 管理費12,000円
敷
無料礼
11.5万円1K / 25.75㎡ / 6階
賃貸マンション
GRANPASEO 両国 North

都営大江戸線 / 両国駅 徒歩10分
築4年 / 10階建
東京都墨田区緑3丁目16-3

12万円 / 管理費10,000円
敷
無料礼
無料1K / 25.12㎡ / 5階
賃貸マンション
メゾン・ド・クロシェット

都営大江戸線 / 森下駅 徒歩12分
築9年 / 7階建
東京都墨田区立川3丁目16-11

11.2万円 / 管理費8,000円
敷
11.2万円礼
11.2万円1K / 26.74㎡ / 6階
賃貸マンション
メインステージ錦糸町Ⅸ

都営大江戸線 / 両国駅 徒歩9分
築7年 / 12階建
東京都墨田区緑3丁目18-8

11.9万円 / 管理費15,000円
敷
無料礼
11.9万円1K / 25.6㎡ / 2階
賃貸マンション
グランヒルズ錦糸町

都営大江戸線 / 両国駅 徒歩15分
新築 / 10階建
東京都墨田区石原4丁目18-2

11.9万円 / 管理費10,000円
敷
11.9万円礼
11.9万円1DK / 27.41㎡ / 6階
賃貸マンション
ブラウ菊川プレイス

都営大江戸線 / 森下駅 徒歩12分
築5年 / 11階建
東京都墨田区立川3丁目9-9

12.4万円 / 管理費15,000円
敷
12.4万円礼
無料1DK / 25.32㎡ / 9階
賃貸マンション
グランエール森下EAST

都営大江戸線 / 森下駅 徒歩2分
新築 / 8階建
東京都江東区森下2丁目31-11

13.9万円 / 管理費10,000円
敷
13.9万円礼
無料1DK / 25.26㎡ / 6階
賃貸マンション
プラウドフラット両国イースト

都営大江戸線 / 両国駅 徒歩8分
築5年 / 13階建
東京都墨田区緑3丁目15-12

13万円 / 管理費10,000円
敷
13万円礼
無料1K / 25.12㎡ / 9階
賃貸マンション
コンフォリア森下リバーサイド

都営新宿線 / 森下駅 徒歩7分
築4年 / 11階建
東京都江東区常盤1丁目6-5

13.8万円 / 管理費8,000円
敷
13.8万円礼
無料1K / 25.08㎡ / 10階
賃貸マンション
ディアレイシャス両国

都営大江戸線 / 両国駅 徒歩9分
築6年 / 7階建
東京都墨田区石原3丁目9-9

12.3万円 / 管理費11,000円
敷
無料礼
12.3万円1K / 25.32㎡ / 6階
賃貸マンション
墨田区 11階建 2008年築

都営大江戸線 / 両国駅 徒歩11分
築18年 / 11階建
東京都墨田区亀沢3丁目27-7

11.8万円 / 管理費8,000円
敷
11.8万円礼
11.8万円1K / 25.77㎡ / 6階
賃貸マンション
コンフォリア・リヴ森下MUTIO

都営新宿線 / 森下駅 徒歩5分
新築 / 10階建
東京都江東区森下3丁目6-7

13.8万円 / 管理費10,000円
敷
13.8万円礼
無料1K / 25.81㎡ / 4階
賃貸マンション
クレイシア森下ステーションサイト

都営新宿線 / 森下駅 徒歩3分
築5年 / 9階建
東京都江東区森下1丁目10-2

12万円 / 管理費12,000円
敷
12万円礼
12万円1K / 25.5㎡ / 5階
賃貸マンション
プライマル森下Ⅱ(旧GRANPASEO森下Ⅱ)

都営大江戸線 / 森下駅 徒歩3分
築2年 / 13階建
東京都江東区森下2丁目31-2

13.7万円 / 管理費12,000円
敷
13.7万円礼
無料1DK / 25.3㎡ / 7階
賃貸マンション
パークフロント常盤

都営大江戸線 / 森下駅 徒歩6分
築12年 / 6階建
東京都江東区常盤1丁目10-5

13.1万円 / 管理費8,000円
敷
13.1万円礼
無料1K / 25.51㎡ / 3階
賃貸マンション
メイクスデザイン森下

都営大江戸線 / 森下駅 徒歩1分
築6年 / 15階建
東京都江東区森下1丁目14-8

12万円 / 管理費12,000円
敷
12万円礼
12万円1K / 26.06㎡ / 2階
賃貸マンション
グランカーサ菊川

都営大江戸線 / 森下駅 徒歩11分
新築 / 10階建
東京都江東区森下4丁目10-5

家賃カード決済可
14.6万円 / 管理費10,000円
敷
無料礼
無料1DK / 26.49㎡ / 10階
賃貸マンション
江東区 13階建 2007年築

都営大江戸線 / 森下駅 徒歩1分
築19年 / 13階建
東京都江東区森下2丁目23-2

11.45万円 / 管理費15,000円
敷
無料礼
11.45万円1K / 23.7㎡ / 7階
賃貸マンション
ルネサンスコート両国

都営大江戸線 / 両国駅 徒歩9分
築5年 / 7階建
東京都墨田区石原2丁目30-4

11.5万円 / 管理費12,000円
敷
無料礼
11.5万円1K / 25.75㎡ / 6階
同じ最寄り駅 × 同じ特徴 で探す
同じ市区町村 × 同じ特徴 で探す




























