アルティザ池尻1K/2階(東京都世田谷区 / 池尻大橋駅)の賃貸
1/20
1/20
13.9万円
初期費用を知りたい管理費7,000円
- 敷金
- 13.9万円
- 保証金
- なし
- 礼金
- 13.9万円
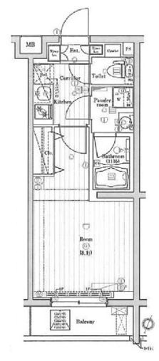
- 広さ
- 26.08㎡
- 階数
- 2階 / 5階建
- 間取り
- 1K
- 建物
- マンション (鉄筋コンクリート)
- 築年数
- 築12年
- 向き
- 交通
- 東急田園都市線 / 池尻大橋駅徒歩9分
- 東急田園都市線 / 三軒茶屋駅徒歩10分
- 東急世田谷線 / 西太子堂駅徒歩18分
- 住所
- 東京都世田谷区池尻3
オーケー池尻大橋店(スーパー)まで184m
まいばすけっと池尻2丁目店(スーパー)まで318m
スーパーオオゼキ池尻店(スーパー)まで372m
ローソン池尻三宿通店(コンビニ)まで23m
セブンイレブン世田谷池尻3丁目店(コンビニ)まで240m
ローソン世田谷三宿一丁目店(コンビニ)まで276m
無料で10秒! カンタンお問い合わせ
アルティザ池尻
敷
13.9万円礼
13.9万円特徴
バス・トイレ別
2階以上
エアコン付き
ペット相談可
駐車場あり
室内洗濯機置場
オートロック
洗面所独立
- 入居条件
- ペット相談、保証人不要、保証金不要最新の空室状況が知りたい
- バス・トイレ
- バストイレ別、追焚機能浴室、温水洗浄便座、脱衣所、洗面所独立、洗面化粧台、オートバス、洗面所にドア
- キッチン
- システムキッチン、2口コンロ
- セキュリティ
- オートロック、防犯カメラ、ディンプルキー、セキュリティ会社加入済
- 室内設備
- エアコン、クロゼット、フローリング、室内洗濯置、シューズボックス、光ファイバー、2面採光、全居室洋室、全居室フローリング、ネット使用料不要お部屋の詳しい情報を知りたい
- 部屋の特徴
- バルコニー、角住戸、通風良好、二階以上写真を送ってほしい
- 共用部
- エレベーター、敷地内ごみ置き場
- その他の特徴
- 外壁タイル張り、デザイナーズ、都市ガス、保証会社利用可
無料で10秒! カンタンお問い合わせ
アルティザ池尻
敷
13.9万円礼
13.9万円同じ建物で掲載中の物件 (1件)
不動産会社からのコメント
【年度内入居可能】嬉しいネット無料!
バストイレ別・独立洗面台付きはもちろん追い焚き機能付きの充実の設備!オートロック等のセキュリティもございますので、安心してお住まいできます。
その他
- 駐車/駐輪
- 要確認 / なし駐車可能な車種や台数を知りたい
- 入居時期
- 2026年3月中旬最新の空室状況が知りたい
- 損保
- 2万円2年
- 保証人代行
- -
- その他費用
合計2.2万円(内訳:鍵交換代:22000円) 初期費用を知りたい- 情報
情報登録日:2026/3/3
情報更新日:2026/3/2
次回更新予定日:2026/3/18
- 備考
- 保証会社: 保証会社利用必 初回保証料総賃料の50% 月額保証料総賃料の1.5% その他:巡回管理 / 条件: ペット相談 / ほか初期費用: 合計2.2万円(内訳:鍵交換代:22000円) / ほか諸費用: 更新料:新賃料の1ヶ月分
取扱い会社
- 取扱い会社
- 株式会社ルームコネクト条件が近い物件も紹介してほしい
- 免許番号
- 東京都知事(1)第103938号
- 取引態様
- 一般媒介
- 所在地
- 東京都品川区上大崎2丁目15-19 MG目黒駅前3F
- 電話番号
- 03-4530-3883
- 営業時間
- 10:00~19:00
- 定休日
- 水曜日
- 所属団体名
- 公益社団法人全国宅地建物取引業保証協会
おすすめ物件 (20件)
賃貸マンション
RELUXIA三軒茶屋

東急田園都市線 / 三軒茶屋駅 徒歩10分
築2年 / 4階建
東京都世田谷区太子堂3丁目24-12

12.9万円 / 管理費20,000円
敷
無料礼
12.9万円1DK / 25.9㎡ / 3階
賃貸マンション
リヴシティ駒沢大学

東急世田谷線 / 西太子堂駅 徒歩15分
築11年 / 15階建
東京都世田谷区上馬4丁目1-4

13.6万円 / 管理費10,000円
敷
無料礼
13.6万円1K / 25.29㎡ / 14階
賃貸マンション
パークフラッツ中目黒

東急田園都市線 / 池尻大橋駅 徒歩7分
築16年 / 地上13階地下1階建
東京都目黒区大橋1丁目7-9

14.9万円 / 管理費7,000円
敷
14.9万円礼
14.9万円ワンルーム / 26.86㎡ / 6階
賃貸マンション
アジールコート池尻大橋

東急田園都市線 / 池尻大橋駅 徒歩11分
新築 / 地上5階地下1階建
東京都目黒区青葉台3丁目

15.2万円 / 管理費12,000円
敷
15.2万円礼
無料1DK / 25.2㎡ / 3階
賃貸マンション
アジールコート三宿テラス

東急田園都市線 / 三軒茶屋駅 徒歩9分
新築 / 地上5階地下1階建
東京都世田谷区三宿1丁目15-10

14.8万円 / 管理費12,000円
敷
14.8万円礼
無料ワンルーム / 25.58㎡ / 5階
賃貸マンション
GRAND三軒茶屋WEST

東急世田谷線 / 西太子堂駅 徒歩8分
築4年 / 8階建
東京都世田谷区若林2丁目17-6

14.4万円 / 管理費10,000円
敷
14.4万円礼
28.8万円1DK / 31.69㎡ / 5階
賃貸マンション
Cion SANGEN-JYAYA

東急世田谷線 / 西太子堂駅 徒歩13分
築2年 / 11階建
東京都世田谷区上馬1丁目15-1

12.5万円 / 管理費20,000円
敷
無料礼
12.5万円1DK / 26.07㎡ / 2階
賃貸マンション
世田谷区 10階建 2003年築

東急田園都市線 / 池尻大橋駅 徒歩2分
築23年 / 10階建
東京都世田谷区池尻3丁目4-14

14.7万円 / 管理費11,000円
敷
無料礼
14.7万円1K / 23.22㎡ / 2階
賃貸マンション
リルシア三軒茶屋
東急田園都市線 / 三軒茶屋駅 徒歩10分
築2年 / 5階建
東京都世田谷区太子堂3
12.9万円 / 管理費20,000円
敷
無料礼
12.9万円1DK / 25.9㎡ / 3階
賃貸マンション
BluRock青葉台

東急田園都市線 / 池尻大橋駅 徒歩11分
築6年 / 10階建
東京都目黒区青葉台4丁目1-1

15.6万円 / 管理費12,000円
敷
15.6万円礼
15.6万円1K / 25.22㎡ / 3階
賃貸マンション
コンフォリア世田谷上馬

東急田園都市線 / 三軒茶屋駅 徒歩14分
築9年 / 10階建
東京都世田谷区上馬3丁目6-11

14.4万円 / 管理費6,000円
敷
14.4万円礼
無料1K / 25.41㎡ / 8階
賃貸マンション
ザ・パークハビオ三軒茶屋

東急田園都市線 / 三軒茶屋駅 徒歩8分
築7年 / 6階建
東京都世田谷区太子堂2丁目35-1

14.2万円 / 管理費10,000円
敷
14.2万円礼
14.2万円ワンルーム / 27.51㎡ / 4階
賃貸マンション
エムレジデンス渋谷神泉

東急田園都市線 / 池尻大橋駅 徒歩10分
築10年 / 17階建
東京都目黒区青葉台4丁目7-3

15.6万円 / 管理費10,000円
敷
15.6万円礼
無料ワンルーム / 29.43㎡ / 10階
賃貸マンション
ザ・パークハビオ神泉

東急田園都市線 / 池尻大橋駅 徒歩12分
築5年 / 地上7階地下1階建
東京都目黒区駒場1丁目1-6

14.8万円 / 管理費13,000円
敷
14.8万円礼
14.8万円1K / 25.33㎡ / 3階
賃貸マンション
JMFレジデンス世田谷三宿
東急田園都市線 / 池尻大橋駅 徒歩14分
築19年 / 地上4階地下1階建
東京都世田谷区三宿2丁目11-17
12.6万円 / 管理費10,000円
敷
12.6万円礼
12.6万円1K / 25.5㎡ / 4階
賃貸マンション
エルファーロ池尻

東急田園都市線 / 池尻大橋駅 徒歩4分
築3年 / 4階建
東京都世田谷区池尻2丁目26-2

12万円 / 管理費12,000円
敷
無料礼
無料ワンルーム / 20.37㎡ / 3階
賃貸マンション
世田谷区 10階建 2011年築

東急世田谷線 / 西太子堂駅 徒歩4分
築15年 / 10階建
東京都世田谷区三軒茶屋2丁目19-20

12.3万円 / 管理費10,000円
敷
12.3万円礼
12.3万円1K / 25.21㎡ / 2階
賃貸マンション
プレミアムキューブ三宿

東急田園都市線 / 池尻大橋駅 徒歩9分
築14年 / 5階建
東京都世田谷区池尻2丁目7-20

14.1万円 / 管理費12,000円
敷
14.1万円礼
28.2万円1K / 25.44㎡ / 2階
賃貸マンション
クレイシアIDZ祐天寺

東急田園都市線 / 三軒茶屋駅 徒歩16分
築3年 / 9階建
東京都世田谷区下馬1丁目47-25

12.3万円 / 管理費12,000円
敷
12.3万円礼
12.3万円1DK / 25.3㎡ / 6階
賃貸マンション
JMFResidence学芸大学

東急東横線 / 学芸大学駅 徒歩10分
築4年 / 5階建
東京都世田谷区野沢3丁目9-13

15.2万円 / 管理費10,000円
敷
15.2万円礼
15.2万円1DK / 25.14㎡ / 2階
賃貸マンション
RELUXIA三軒茶屋

東急田園都市線 / 三軒茶屋駅 徒歩10分
築2年 / 4階建
東京都世田谷区太子堂3丁目24-12

12.9万円 / 管理費20,000円
敷
無料礼
12.9万円1DK / 25.9㎡ / 3階
賃貸マンション
リヴシティ駒沢大学

東急世田谷線 / 西太子堂駅 徒歩15分
築11年 / 15階建
東京都世田谷区上馬4丁目1-4

13.6万円 / 管理費10,000円
敷
無料礼
13.6万円1K / 25.29㎡ / 14階
賃貸マンション
パークフラッツ中目黒

東急田園都市線 / 池尻大橋駅 徒歩7分
築16年 / 地上13階地下1階建
東京都目黒区大橋1丁目7-9

14.9万円 / 管理費7,000円
敷
14.9万円礼
14.9万円ワンルーム / 26.86㎡ / 6階
賃貸マンション
アジールコート池尻大橋

東急田園都市線 / 池尻大橋駅 徒歩11分
新築 / 地上5階地下1階建
東京都目黒区青葉台3丁目

15.2万円 / 管理費12,000円
敷
15.2万円礼
無料1DK / 25.2㎡ / 3階
賃貸マンション
アジールコート三宿テラス

東急田園都市線 / 三軒茶屋駅 徒歩9分
新築 / 地上5階地下1階建
東京都世田谷区三宿1丁目15-10

14.8万円 / 管理費12,000円
敷
14.8万円礼
無料ワンルーム / 25.58㎡ / 5階
賃貸マンション
GRAND三軒茶屋WEST

東急世田谷線 / 西太子堂駅 徒歩8分
築4年 / 8階建
東京都世田谷区若林2丁目17-6

14.4万円 / 管理費10,000円
敷
14.4万円礼
28.8万円1DK / 31.69㎡ / 5階
賃貸マンション
Cion SANGEN-JYAYA

東急世田谷線 / 西太子堂駅 徒歩13分
築2年 / 11階建
東京都世田谷区上馬1丁目15-1

12.5万円 / 管理費20,000円
敷
無料礼
12.5万円1DK / 26.07㎡ / 2階
賃貸マンション
世田谷区 10階建 2003年築

東急田園都市線 / 池尻大橋駅 徒歩2分
築23年 / 10階建
東京都世田谷区池尻3丁目4-14

14.7万円 / 管理費11,000円
敷
無料礼
14.7万円1K / 23.22㎡ / 2階
賃貸マンション
リルシア三軒茶屋
東急田園都市線 / 三軒茶屋駅 徒歩10分
築2年 / 5階建
東京都世田谷区太子堂3
12.9万円 / 管理費20,000円
敷
無料礼
12.9万円1DK / 25.9㎡ / 3階
賃貸マンション
BluRock青葉台

東急田園都市線 / 池尻大橋駅 徒歩11分
築6年 / 10階建
東京都目黒区青葉台4丁目1-1

15.6万円 / 管理費12,000円
敷
15.6万円礼
15.6万円1K / 25.22㎡ / 3階
賃貸マンション
コンフォリア世田谷上馬

東急田園都市線 / 三軒茶屋駅 徒歩14分
築9年 / 10階建
東京都世田谷区上馬3丁目6-11

14.4万円 / 管理費6,000円
敷
14.4万円礼
無料1K / 25.41㎡ / 8階
賃貸マンション
ザ・パークハビオ三軒茶屋

東急田園都市線 / 三軒茶屋駅 徒歩8分
築7年 / 6階建
東京都世田谷区太子堂2丁目35-1

14.2万円 / 管理費10,000円
敷
14.2万円礼
14.2万円ワンルーム / 27.51㎡ / 4階
賃貸マンション
エムレジデンス渋谷神泉

東急田園都市線 / 池尻大橋駅 徒歩10分
築10年 / 17階建
東京都目黒区青葉台4丁目7-3

15.6万円 / 管理費10,000円
敷
15.6万円礼
無料ワンルーム / 29.43㎡ / 10階
賃貸マンション
ザ・パークハビオ神泉

東急田園都市線 / 池尻大橋駅 徒歩12分
築5年 / 地上7階地下1階建
東京都目黒区駒場1丁目1-6

14.8万円 / 管理費13,000円
敷
14.8万円礼
14.8万円1K / 25.33㎡ / 3階
賃貸マンション
JMFレジデンス世田谷三宿
東急田園都市線 / 池尻大橋駅 徒歩14分
築19年 / 地上4階地下1階建
東京都世田谷区三宿2丁目11-17
12.6万円 / 管理費10,000円
敷
12.6万円礼
12.6万円1K / 25.5㎡ / 4階
賃貸マンション
エルファーロ池尻

東急田園都市線 / 池尻大橋駅 徒歩4分
築3年 / 4階建
東京都世田谷区池尻2丁目26-2

12万円 / 管理費12,000円
敷
無料礼
無料ワンルーム / 20.37㎡ / 3階
賃貸マンション
世田谷区 10階建 2011年築

東急世田谷線 / 西太子堂駅 徒歩4分
築15年 / 10階建
東京都世田谷区三軒茶屋2丁目19-20

12.3万円 / 管理費10,000円
敷
12.3万円礼
12.3万円1K / 25.21㎡ / 2階
賃貸マンション
プレミアムキューブ三宿

東急田園都市線 / 池尻大橋駅 徒歩9分
築14年 / 5階建
東京都世田谷区池尻2丁目7-20

14.1万円 / 管理費12,000円
敷
14.1万円礼
28.2万円1K / 25.44㎡ / 2階
賃貸マンション
クレイシアIDZ祐天寺

東急田園都市線 / 三軒茶屋駅 徒歩16分
築3年 / 9階建
東京都世田谷区下馬1丁目47-25

12.3万円 / 管理費12,000円
敷
12.3万円礼
12.3万円1DK / 25.3㎡ / 6階
賃貸マンション
JMFResidence学芸大学

東急東横線 / 学芸大学駅 徒歩10分
築4年 / 5階建
東京都世田谷区野沢3丁目9-13

15.2万円 / 管理費10,000円
敷
15.2万円礼
15.2万円1DK / 25.14㎡ / 2階
同じ最寄り駅 × 同じ特徴 で探す
同じ市区町村 × 同じ特徴 で探す

