NCKビル2LDK/5階(埼玉県川口市 / 西川口駅)の賃貸
1/18
1/18
8.5万円
初期費用を知りたい管理費10,000円
- 敷金
- 8.5万円
- 保証金
- なし
- 礼金
- 無料
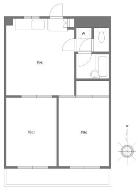
- 広さ
- 40.5㎡
- 階数
- 5階 / 6階建
- 間取り
- 2LDK
- 建物
- マンション (鉄筋コンクリート)
- 築年数
- 築36年
- 向き
- 南
- 交通
- 京浜東北線 / 西川口駅徒歩15分
- 京浜東北線 / 川口駅徒歩22分
- 埼京線 / 戸田公園駅徒歩27分
- 住所
- 埼玉県川口市宮町
コモディイイダ(スーパー)まで690m
仁志町保育園(幼稚園・保育園)まで400m
ララガーデン川口(ショッピングセンター)まで270m
ローソンストア100(コンビニ)まで310m
セブンイレブン(コンビニ)まで420m
喜沢郵便局(郵便局)まで560m
無料で10秒! カンタンお問い合わせ
NCKビル
敷
8.5万円礼
無料特徴
バス・トイレ別
2階以上
エアコン付き
ペット相談可
駐車場あり
室内洗濯機置場
オートロック
洗面所独立
- 入居条件
- 即入居可最新の空室状況が知りたい
- バス・トイレ
- バストイレ別
- キッチン
- 2口コンロ
- セキュリティ
- オートロック、防犯カメラ
- 室内設備
- エアコン、フローリング、室内洗濯置、シューズボックス、光ファイバー、CATVインターネットお部屋の詳しい情報を知りたい
- 部屋の特徴
- バルコニー、二階以上写真を送ってほしい
- 共用部
- エレベーター、駐輪場、バイク置場、敷地内ごみ置き場
- その他の特徴
- 都市ガス、駐車場あり
無料で10秒! カンタンお問い合わせ
NCKビル
敷
8.5万円礼
無料不動産会社からのコメント
バス停すぐそこ。オートロック付き住環境いいですよ。
西川口駅の駅ビルには、スーパーや総菜屋さんがあり、嬉しいお店がたくさん!!駅前には、ドンキホーテがあり言う事なしですね。詳しいお部屋の情報や諸条件のご相談・確認等お気軽にお問合せ下さい。
その他
- 駐車/駐輪
- 敷地内25000円 / あり駐車可能な車種や台数を知りたい
- 入居時期
- 損保
- 2.3万円2年
- 保証人代行
- -
- その他費用
合計6.02万円(内訳:消毒料1.76万円/入居安心サービス料1.76万円/駐車場紹介料2.5万円) 初期費用を知りたい- 情報
情報登録日:2026/2/9
情報更新日:2026/3/23
次回更新予定日:2026/4/8
- 備考
- 保証会社: 保証会社利用必 指定賃貸保証会社 家賃保証会社 初回保証料50% その他:条件: 二人入居可 / ほか初期費用: 合計6.02万円(内訳:消毒料1.76万円/入居安心サービス料1.76万円/駐車場紹介料2.5万円)
取扱い会社
- 取扱い会社
- 株式会社ミニミニ城北 川口店条件が近い物件も紹介してほしい
- 免許番号
- 国土交通大臣(5)第6346号
- 取引態様
- 一般媒介
- 所在地
- 埼玉県 川口市栄町3丁目5-1 川口ミツワビル 1F
- 電話番号
- 048-257-3232
- 営業時間
- 10:00~18:00
- 定休日
- 無し(3月31日まで)
- 所属団体名
- なし
おすすめ物件 (7件)
賃貸アパート
アーバンヒルズ

埼玉高速鉄道 / 鳩ヶ谷駅 徒歩13分
築18年 / 3階建
埼玉県川口市赤井1丁目4-14

8.6万円 / 管理費3,000円
敷
5万円礼
8.6万円1LDK / 38.69㎡ / 3階
賃貸アパート
ラ・ヴィベール

埼玉高速鉄道 / 鳩ヶ谷駅 徒歩14分
築3年 / 2階建
埼玉県川口市南鳩ヶ谷7丁目27-23

10.15万円 / 管理費2,900円
敷
無料礼
10.15万円1LDK / 41.88㎡ / 2階
賃貸マンション
スパシエルクス西川口

京浜東北線 / 西川口駅 徒歩6分
築19年 / 10階建
埼玉県川口市並木3丁目28-9

8.95万円 / 管理費10,000円
敷
無料礼
8.95万円1DK / 35.49㎡ / 5階
賃貸マンション
プランドル戸田公園

埼京線 / 戸田公園駅 徒歩7分
築29年 / 6階建
埼玉県戸田市本町4丁目3-9

8.3万円 / 管理費5,000円
敷
4.15万円礼
8.3万円2DK / 40.14㎡ / 5階
賃貸アパート
Villa Garland Court

京浜東北線 / 西川口駅 徒歩29分
築13年 / 3階建
埼玉県蕨市中央4丁目26-11

10.5万円 / 管理費5,500円
敷
無料礼
15万円1LDK / 39.63㎡ / 2階
賃貸アパート
アーバンヒルズ

埼玉高速鉄道 / 鳩ヶ谷駅 徒歩13分
築18年 / 3階建
埼玉県川口市赤井1丁目4-14

8.6万円 / 管理費3,000円
敷
5万円礼
8.6万円1LDK / 38.69㎡ / 3階
賃貸アパート
ラ・ヴィベール

埼玉高速鉄道 / 鳩ヶ谷駅 徒歩14分
築3年 / 2階建
埼玉県川口市南鳩ヶ谷7丁目27-23

10.15万円 / 管理費2,900円
敷
無料礼
10.15万円1LDK / 41.88㎡ / 2階
賃貸マンション
スパシエルクス西川口

京浜東北線 / 西川口駅 徒歩6分
築19年 / 10階建
埼玉県川口市並木3丁目28-9

8.95万円 / 管理費10,000円
敷
無料礼
8.95万円1DK / 35.49㎡ / 5階
賃貸マンション
プランドル戸田公園

埼京線 / 戸田公園駅 徒歩7分
築29年 / 6階建
埼玉県戸田市本町4丁目3-9

8.3万円 / 管理費5,000円
敷
4.15万円礼
8.3万円2DK / 40.14㎡ / 5階
賃貸アパート
Villa Garland Court

京浜東北線 / 西川口駅 徒歩29分
築13年 / 3階建
埼玉県蕨市中央4丁目26-11

10.5万円 / 管理費5,500円
敷
無料礼
15万円1LDK / 39.63㎡ / 2階



