開洋館(神奈川県横浜市神奈川区 / 京急新子安駅) の賃貸物件情報
募集中のお部屋が3件あります






1/3
1/3
- 建物
- マンション (鉄筋コンクリート)
- 築年数
- 築14年 (2011年)
- 駐車場
- 空有 費用: 22,000円 空き数: 1 備考: 台数:1
- 交通
- 京急本線 / 京急新子安駅徒歩6分
- 京浜東北線 / 新子安駅徒歩9分
- 京急本線 / 生麦駅徒歩11分
- 住所
- 神奈川県横浜市神奈川区子安通3丁目-
掲載中の物件(3件)
- コンビニエンスストア 101m
その他
- 駐車/駐輪
- 空有 費用: 22,000円 空き数: 1 備考: 台数:1
- 入居時期
- 相談
- 損保
- 住宅保険: 要
- 保証代行人
- 加入要 費用: 期間:2年 初期;月額賃料・共益費等の50%。月額;月額賃料・共益費等の1%。外国籍の場合;初期;月額賃料・共益費等の60%、月額;月額賃料・共益費等2%。
- その他費用
- -
- 情報
情報登録日:2025/11/3
情報更新日:2025/12/6
次回更新予定日:2025/12/17
- 備考
- 現況: 空家 更新料: 新賃料の1.0ヶ月分 契約期間: 2年 自社管理番号: 918744
この建物からのPick Up
1LDK/5階
1/10
1/10
12.5 万円 / 管理費15,000円
- 敷金
- 12.5万円
- 保証金
- なし
- 礼金
- 12.5万円
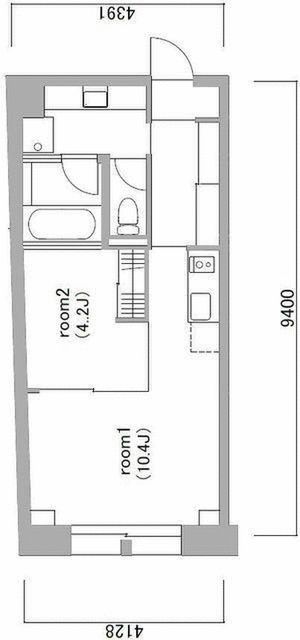
- 広さ
- 40.03㎡
- 階数
- 5階 / 地上10階地下1階建
- 間取り
- 1LDK (洋4.2帖 / LDK10.4帖)
- 向き
- 北西
無料で10秒! カンタンお問い合わせ

開洋館
敷
12.5万円礼
12.5万円特徴
バス・トイレ別
2階以上
エアコン付き
ペット相談可
駐車場あり
室内洗濯機置場
オートロック
洗面所独立
- 入居条件
- 楽器不可、事務所(SOHO)不可、ペット不可、法人希望
- バス・トイレ
- 専用バス、追焚機能浴室、浴室乾燥機、給湯、バストイレ別、専用トイレ、温水洗浄便座、洗面所独立
- キッチン
- システムキッチン、ガスコンロ対応
- セキュリティ
- オートロック
- 室内設備
- クロゼット、照明付、エアコン、インターネット対応、室内洗濯置、フローリング、シューズボックス
- 部屋の特徴
- 角住戸、二階以上
- 共用部
- エレベーター、駐輪場、宅配ボックス、バイク置場、敷地内駐車場
- その他の特徴
- 下水、公営水道、駐車場あり、デザイナーズ、都市ガス
無料で10秒! カンタンお問い合わせ

開洋館
敷
12.5万円礼
12.5万円おすすめ物件 (10件)
賃貸マンション
開洋館

京急本線 / 京急新子安駅 徒歩6分
築14年 / 地上10階地下1階建
神奈川県横浜市神奈川区子安通3丁目-

28万円 / 管理費15,000円
敷
28万円礼
28万円3LDK / 107.85㎡ / 9階
賃貸マンション
メルビック新子安ビル
)
京浜東北線 / 新子安駅 徒歩3分
築38年 / 5階建
神奈川県横浜市神奈川区新子安1丁目7-9
)
19.5万円 / 管理費5,000円
敷
19.5万円礼
19.5万円2LDK / 101.48㎡ / 5階
賃貸マンション
T′sgarden西寺尾C棟

京急本線 / 京急新子安駅 徒歩22分
築26年 / 5階建
神奈川県横浜市 神奈川区西寺尾4丁目25

16.6万円 / 管理費12,000円
敷
16.6万円礼
無料3LDK / 91.04㎡ / 4階
賃貸マンション
リーデンススクエア横浜鶴見

横浜線 / 菊名駅 バス20分 岸谷二丁目下車 徒歩5分
築21年 / 9階建
神奈川県横浜市 鶴見区岸谷2丁目12-1

16万円 / 管理費10,000円
敷
16万円礼
16万円3LDK / 80.78㎡ / 5階
賃貸マンション
JR京浜東北線新子安駅地下1地上18階建築17年
京浜東北線 / 新子安駅 徒歩6分
築16年 / 地上18階地下1階建
神奈川県横浜市神奈川区子安通2
19万円 / 管理費10,000円
敷
19万円礼
19万円3LDK / 73.21㎡ / 6階
賃貸アパート
JR横浜線大口駅2階建築8年
京急本線 / 京急新子安駅 徒歩24分
築7年 / 2階建
神奈川県横浜市神奈川区西寺尾2
18.7万円 / 管理費7,000円
敷
無料礼
37.4万円3LDK / 68.42㎡ / 2階
賃貸マンション
PATH横浜新子安

京急本線 / 京急新子安駅 徒歩6分
築18年 / 10階建
神奈川県横浜市神奈川区子安通2丁目

21.4万円 / 管理費10,000円
敷
21.4万円礼
無料2LDK / 67.8㎡ / 10階
賃貸マンション
ラクラッセ西寺尾

京急本線 / 京急新子安駅 徒歩19分
築30年 / 8階建
神奈川県横浜市神奈川区西寺尾3丁目25-19

12.8万円 / 管理費5,500円
敷
12.8万円礼
12.8万円3DK / 67.32㎡ / 5階
賃貸マンション
開洋館

京急本線 / 京急新子安駅 徒歩6分
築14年 / 地上10階地下1階建
神奈川県横浜市神奈川区子安通3丁目-

28万円 / 管理費15,000円
敷
28万円礼
28万円3LDK / 107.85㎡ / 9階
賃貸マンション
メルビック新子安ビル
)
京浜東北線 / 新子安駅 徒歩3分
築38年 / 5階建
神奈川県横浜市神奈川区新子安1丁目7-9
)
19.5万円 / 管理費5,000円
敷
19.5万円礼
19.5万円2LDK / 101.48㎡ / 5階
賃貸マンション
T′sgarden西寺尾C棟

京急本線 / 京急新子安駅 徒歩22分
築26年 / 5階建
神奈川県横浜市 神奈川区西寺尾4丁目25

16.6万円 / 管理費12,000円
敷
16.6万円礼
無料3LDK / 91.04㎡ / 4階
賃貸マンション
リーデンススクエア横浜鶴見

横浜線 / 菊名駅 バス20分 岸谷二丁目下車 徒歩5分
築21年 / 9階建
神奈川県横浜市 鶴見区岸谷2丁目12-1

16万円 / 管理費10,000円
敷
16万円礼
16万円3LDK / 80.78㎡ / 5階
賃貸マンション
JR京浜東北線新子安駅地下1地上18階建築17年
京浜東北線 / 新子安駅 徒歩6分
築16年 / 地上18階地下1階建
神奈川県横浜市神奈川区子安通2
19万円 / 管理費10,000円
敷
19万円礼
19万円3LDK / 73.21㎡ / 6階
賃貸アパート
JR横浜線大口駅2階建築8年
京急本線 / 京急新子安駅 徒歩24分
築7年 / 2階建
神奈川県横浜市神奈川区西寺尾2
18.7万円 / 管理費7,000円
敷
無料礼
37.4万円3LDK / 68.42㎡ / 2階
賃貸マンション
PATH横浜新子安

京急本線 / 京急新子安駅 徒歩6分
築18年 / 10階建
神奈川県横浜市神奈川区子安通2丁目

21.4万円 / 管理費10,000円
敷
21.4万円礼
無料2LDK / 67.8㎡ / 10階
賃貸マンション
ラクラッセ西寺尾

京急本線 / 京急新子安駅 徒歩19分
築30年 / 8階建
神奈川県横浜市神奈川区西寺尾3丁目25-19

12.8万円 / 管理費5,500円
敷
12.8万円礼
12.8万円3DK / 67.32㎡ / 5階
同じ最寄り駅 で探す
同じ市区町村 で探す
横浜市神奈川区 の賃貸








