アスピシャス西大井2K/2階/201号室(東京都品川区 / 馬込駅)の賃貸
1/10
1/10
12万円
初期費用を知りたい管理費なし
- 敷金
- 12万円
- 保証金
- なし
- 礼金
- 12万円
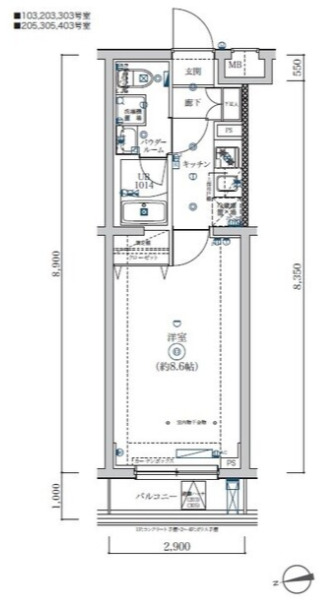
- 広さ
- 31.18㎡
- 階数
- 2階 / 2階建
- 間取り
- 2K
- 建物
- アパート (木造)
- 築年数
- 築48年
- 向き
- 交通
- 都営浅草線 / 馬込駅徒歩5分
- 東急大井町線 / 中延駅徒歩9分
- 湘南新宿ライン宇須 / 西大井駅徒歩12分
- 住所
- 東京都品川区西大井5丁目2-16
伊藤小学校 467m
富士見台中学校 158m
コンビニ 370m
スーパー 283m
無料で10秒! カンタンお問い合わせ
)
アスピシャス西大井
敷
12万円礼
12万円特徴
バス・トイレ別
2階以上
エアコン付き
ペット相談可
駐車場あり
室内洗濯機置場
オートロック
洗面所独立
- 入居条件
- ルームシェア可、二人入居可最新の空室状況が知りたい
- バス・トイレ
- 追焚機能浴室、バストイレ別
- キッチン
- ガスキッチン
- 室内設備
- エアコン、インターホン、リノベーション、フローリング、室内洗濯置、クロゼットお部屋の詳しい情報を知りたい
- 部屋の特徴
- 二階以上、最上階写真を送ってほしい
- 共用部
- 駐輪場
無料で10秒! カンタンお問い合わせ
)
アスピシャス西大井
敷
12万円礼
12万円同じ建物で掲載中の物件 (1件)
その他
- 駐車/駐輪
- 無し / あり駐車可能な車種や台数を知りたい
- 入居時期
- 損保
- 住宅保険: 要 18000円
- 保証人代行
- 保証人: 要
- その他費用
- 情報
情報登録日:2025/11/16
情報更新日:2025/12/30
次回更新予定日:2026/1/20
- 備考
- 更新料: 120000円 退去時費用備考: 退去費用実費精算 その他: リロレント24(2年間)19800円 保証会社利用必須 契約時保証料:賃料等の40% 月次保証料:1.2% 業者管理CD: 99583057
取扱い会社
- 取扱い会社
- アパマンショップ武蔵小杉JR口店 株式会社 アップル神奈川条件が近い物件も紹介してほしい
- 免許番号
- 神奈川県知事(10)13668
- 取引態様
- 一般媒介
- 所在地
- 神奈川県川崎市中原区新丸子東2丁目
- 電話番号
- 044-920-8513
- 所属団体名
- (公社)神奈川県宅地建物取引業協会,(公社) 首都圏不動産公正取引協議会加盟
おすすめ物件 (20件)
賃貸マンション
ザ・パークハビオ荏原中延駅前
東急大井町線 / 中延駅 徒歩7分
築3年 / 13階建
東京都品川区東中延1丁目9-13
13.4万円 / 管理費15,000円
敷
13.4万円礼
13.4万円1K / 25.2㎡ / 6階
賃貸マンション
品川区 7階建 2020年築
横須賀線 / 西大井駅 徒歩7分
築6年 / 7階建
東京都品川区西大井1丁目16-19
13万円 / 管理費10,000円
敷
13万円礼
無料1K / 23.55㎡ / 6階
賃貸マンション
品川区 9階建 2023年築
湘南新宿ライン宇須 / 西大井駅 徒歩7分
築3年 / 9階建
東京都品川区西大井2丁目11-14
12.1万円 / 管理費15,000円
敷
12.1万円礼
12.1万円1K / 25.6㎡ / 3階
賃貸アパート
品川区豊町4丁目 2階建 2014年築

東急大井町線 / 中延駅 徒歩8分
築12年 / 2階建
東京都品川区豊町4丁目

13万円 / 管理費5,000円
敷
無料礼
13万円1SLDK / 37.96㎡ / 2階
賃貸マンション
West OI

湘南新宿ライン宇須 / 西大井駅 徒歩3分
築7年 / 5階建
東京都品川区西大井1丁目4-31

13.2万円 / 管理費7,000円
敷
13.2万円礼
13.2万円1DK / 32.13㎡ / 3階
賃貸マンション
東急大井町線 旗の台駅 3階建 築7年
都営浅草線 / 馬込駅 徒歩15分
築7年 / 3階建
東京都品川区旗の台4
13.5万円 / 管理費5,000円
敷
13.5万円礼
27万円1LDK / 32.89㎡ / 2階
賃貸マンション
都営浅草線 馬込駅 7階建 築2年
都営浅草線 / 馬込駅 徒歩5分
築2年 / 7階建
東京都大田区中馬込2
13.9万円 / 管理費15,000円
敷
13.9万円礼
無料1LDK / 29.92㎡ / 6階
賃貸マンション
水神櫻郷レジデンス
)
湘南新宿ライン宇須 / 西大井駅 徒歩24分
築3年 / 10階建
東京都品川区南大井6丁目
)
家賃カード決済可
12.5万円 / 管理費12,500円
敷
無料礼
12.5万円1K / 25.48㎡ / 5階
賃貸マンション
パークアクシス馬込レジデンス
)
都営浅草線 / 馬込駅 徒歩5分
築12年 / 5階建
東京都大田区南馬込1丁目
)
11.7万円 / 管理費10,000円
敷
11.7万円礼
11.7万円ワンルーム / 26㎡ / 2階
賃貸マンション
イオスメゾン

横須賀線 / 西大井駅 徒歩13分
築22年 / 3階建
東京都大田区山王1丁目23-24

10.4万円 / 管理費なし
敷
10.4万円礼
10.4万円ワンルーム / 28.75㎡ / 2階
賃貸マンション
ガリシア旗の台

都営浅草線 / 馬込駅 徒歩10分
築3年 / 5階建
東京都大田区北馬込1丁目

11.3万円 / 管理費10,000円
敷
11.3万円礼
11.3万円1K / 25.73㎡ / 5階
賃貸マンション
Lighthouse中馬込

都営浅草線 / 馬込駅 徒歩5分
築2年 / 7階建
東京都大田区中馬込2丁目

13.7万円 / 管理費15,000円
敷
13.7万円礼
無料1LDK / 29.92㎡ / 5階
賃貸マンション
SQUARE CITY NAKAMAGOME

都営浅草線 / 馬込駅 徒歩7分
築3年 / 5階建
東京都大田区中馬込1丁目

10.5万円 / 管理費20,000円
敷
無料礼
10.5万円1K / 25.81㎡ / 3階
賃貸マンション
ロイジェント山王
)
都営浅草線 / 馬込駅 徒歩13分
築3年 / 11階建
東京都大田区山王2丁目
)
13.4万円 / 管理費10,000円
敷
13.4万円礼
13.4万円1DK / 29.3㎡ / 8階
賃貸マンション
ザ・レジデンス・オブ・トーキョー OM06
)
都営浅草線 / 馬込駅 徒歩9分
新築 / 8階建
東京都大田区中馬込1丁目
)
11.4万円 / 管理費10,000円
敷
11.4万円礼
11.4万円1DK / 25.5㎡ / 5階
賃貸マンション
ザ・パークハビオ荏原中延駅前
東急大井町線 / 中延駅 徒歩7分
築3年 / 13階建
東京都品川区東中延1丁目9-13
13.4万円 / 管理費15,000円
敷
13.4万円礼
13.4万円1K / 25.2㎡ / 6階
賃貸マンション
品川区 7階建 2020年築
横須賀線 / 西大井駅 徒歩7分
築6年 / 7階建
東京都品川区西大井1丁目16-19
13万円 / 管理費10,000円
敷
13万円礼
無料1K / 23.55㎡ / 6階
賃貸マンション
品川区 9階建 2023年築
湘南新宿ライン宇須 / 西大井駅 徒歩7分
築3年 / 9階建
東京都品川区西大井2丁目11-14
12.1万円 / 管理費15,000円
敷
12.1万円礼
12.1万円1K / 25.6㎡ / 3階
賃貸アパート
品川区豊町4丁目 2階建 2014年築

東急大井町線 / 中延駅 徒歩8分
築12年 / 2階建
東京都品川区豊町4丁目

13万円 / 管理費5,000円
敷
無料礼
13万円1SLDK / 37.96㎡ / 2階
賃貸マンション
West OI

湘南新宿ライン宇須 / 西大井駅 徒歩3分
築7年 / 5階建
東京都品川区西大井1丁目4-31

13.2万円 / 管理費7,000円
敷
13.2万円礼
13.2万円1DK / 32.13㎡ / 3階
賃貸マンション
東急大井町線 旗の台駅 3階建 築7年
都営浅草線 / 馬込駅 徒歩15分
築7年 / 3階建
東京都品川区旗の台4
13.5万円 / 管理費5,000円
敷
13.5万円礼
27万円1LDK / 32.89㎡ / 2階
賃貸マンション
都営浅草線 馬込駅 7階建 築2年
都営浅草線 / 馬込駅 徒歩5分
築2年 / 7階建
東京都大田区中馬込2
13.9万円 / 管理費15,000円
敷
13.9万円礼
無料1LDK / 29.92㎡ / 6階
賃貸マンション
水神櫻郷レジデンス
)
湘南新宿ライン宇須 / 西大井駅 徒歩24分
築3年 / 10階建
東京都品川区南大井6丁目
)
家賃カード決済可
12.5万円 / 管理費12,500円
敷
無料礼
12.5万円1K / 25.48㎡ / 5階
賃貸マンション
パークアクシス馬込レジデンス
)
都営浅草線 / 馬込駅 徒歩5分
築12年 / 5階建
東京都大田区南馬込1丁目
)
11.7万円 / 管理費10,000円
敷
11.7万円礼
11.7万円ワンルーム / 26㎡ / 2階
賃貸マンション
イオスメゾン

横須賀線 / 西大井駅 徒歩13分
築22年 / 3階建
東京都大田区山王1丁目23-24

10.4万円 / 管理費なし
敷
10.4万円礼
10.4万円ワンルーム / 28.75㎡ / 2階
賃貸マンション
ガリシア旗の台

都営浅草線 / 馬込駅 徒歩10分
築3年 / 5階建
東京都大田区北馬込1丁目

11.3万円 / 管理費10,000円
敷
11.3万円礼
11.3万円1K / 25.73㎡ / 5階
賃貸マンション
Lighthouse中馬込

都営浅草線 / 馬込駅 徒歩5分
築2年 / 7階建
東京都大田区中馬込2丁目

13.7万円 / 管理費15,000円
敷
13.7万円礼
無料1LDK / 29.92㎡ / 5階
賃貸マンション
SQUARE CITY NAKAMAGOME

都営浅草線 / 馬込駅 徒歩7分
築3年 / 5階建
東京都大田区中馬込1丁目

10.5万円 / 管理費20,000円
敷
無料礼
10.5万円1K / 25.81㎡ / 3階
賃貸マンション
ロイジェント山王
)
都営浅草線 / 馬込駅 徒歩13分
築3年 / 11階建
東京都大田区山王2丁目
)
13.4万円 / 管理費10,000円
敷
13.4万円礼
13.4万円1DK / 29.3㎡ / 8階
賃貸マンション
ザ・レジデンス・オブ・トーキョー OM06
)
都営浅草線 / 馬込駅 徒歩9分
新築 / 8階建
東京都大田区中馬込1丁目
)
11.4万円 / 管理費10,000円
敷
11.4万円礼
11.4万円1DK / 25.5㎡ / 5階
)
)
)
)
)
)
)
)
)
)



)
)
)
)
)
)
)