クレイシア森下ステーションサイト2K/4階(東京都江東区 / 森下駅)の賃貸
1/25
1/25
12.7万円
初期費用を知りたい管理費12,000円
- 敷金
- 12.7万円
- 保証金
- なし
- 礼金
- 12.7万円
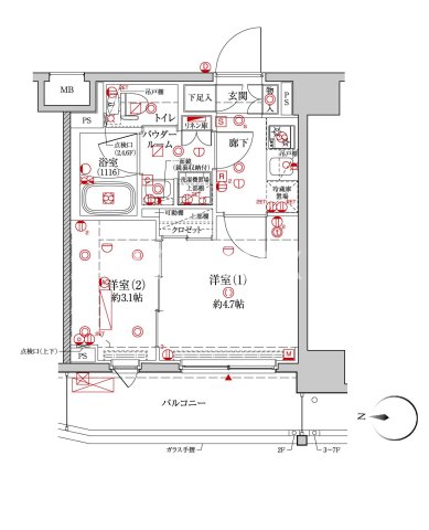
- 広さ
- 25.48㎡
- 階数
- 4階 / 9階建
- 間取り
- 2K
- 建物
- マンション (鉄筋コンクリート)
- 築年数
- 築4年
- 向き
- 西
- 交通
- 都営大江戸線 / 森下駅徒歩3分
- 東京メトロ半蔵門線 / 清澄白河駅徒歩10分
- 住所
- 東京都江東区森下1丁目
コンビニエンスストア 149m
スーパーマーケット 211m
総合病院 100m
公園 884m
ドラッグストア 113m
墨田両国三郵便局 849m
無料で10秒! カンタンお問い合わせ

クレイシア森下ステーションサイト
敷
12.7万円礼
12.7万円特徴
バス・トイレ別
2階以上
エアコン付き
ペット相談可
駐車場あり
室内洗濯機置場
オートロック
洗面所独立
- 入居条件
- 初期費用カード決済可、楽器不可、事務所(SOHO)不可、ペット不可、保証人不要最新の空室状況が知りたい
- バス・トイレ
- 専用バス、専用トイレ、バストイレ別、シャワー、給湯、温水洗浄便座、浴室乾燥機、洗面所独立
- キッチン
- ガスコンロ対応、2口コンロ、システムキッチン
- セキュリティ
- オートロック、防犯カメラ
- 室内設備
- エアコン、室内洗濯置、フローリング、光ファイバー、ネット使用料不要、クロゼット、シューズボックス、照明付お部屋の詳しい情報を知りたい
- 部屋の特徴
- バルコニー、角住戸、二階以上写真を送ってほしい
- 共用部
- エレベーター、宅配ボックス、駐輪場、バイク置場
- その他の特徴
- 公営水道、都市ガス、下水、外壁タイル張り、デザイナーズ、分譲賃貸
無料で10秒! カンタンお問い合わせ

クレイシア森下ステーションサイト
敷
12.7万円礼
12.7万円不動産会社からのコメント
★エリア最大級★経験豊富なスタッフが多数在籍しております♪ 初期費用クレジット支払可能!オンライン
FAST ASSIST241100円(月額) 初期費用クレジット支払可能!オンライン内覧・オンライン契約等弊社に一度も来店せずとも問題ありません♪弊社ではネットに掲載されている物件も全てご紹介可能になりますので気になる物件は全て申し付けください★
その他
- 駐車/駐輪
- 近隣 距離: 100m / あり駐車可能な車種や台数を知りたい
- 入居時期
- 2026年3月中旬最新の空室状況が知りたい
- 損保
- 住宅保険: 要
- 保証人代行
- 加入要 会社名: 新日本信用保証 費用: 初回:月額総賃料の40% 年間保証料:1万円/年 (初回契約時)40%、保証料(年間)10,000円
- その他費用
初期費用を知りたいエアコン清掃:13,200円
室内除菌消臭代:8,800円
室内清掃費用:48,400円
鍵交換費用:35,200円
- 情報
情報登録日:2025/12/27
情報更新日:2025/12/27
次回更新予定日:2026/1/10
- 備考
- 現況: 居住中 更新料: 新賃料の1.0ヶ月分 契約期間: 2年 管理人: 巡回 その他交通: 東京都新宿線 浜町駅 徒歩14分 自社管理番号: 6550666
取扱い会社
- 取扱い会社
- 株式会社リブマックスリーシング 銀座店条件が近い物件も紹介してほしい
- 免許番号
- 国土交通大臣 (3) 第8116号
- 取引態様
- 仲介
- 所在地
- 東京都中央区築地2丁目12-1 ホテルリブマックス東銀座 1F
- 電話番号
- 03-3545-4545
- 定休日
- 水曜日(年末年始、GW、夏季)
- 所属団体名
- 公益社団法人 全国宅地建物取引業保証協会
おすすめ物件 (20件)
賃貸マンション
HF両国レジデンス

都営新宿線 / 森下駅 徒歩8分
築8年 / 12階建
東京都墨田区緑1丁目9-3

11.9万円 / 管理費7,000円
敷
11.9万円礼
11.9万円1K / 27.04㎡ / 3階
賃貸マンション
パークアクシス両国

都営新宿線 / 森下駅 徒歩10分
築13年 / 11階建
東京都墨田区緑1丁目5-13

12.9万円 / 管理費8,000円
敷
12.9万円礼
12.9万円1K / 25.82㎡ / 11階
賃貸マンション
ルフォンプログレ清澄白河プレミア

東京メトロ半蔵門線 / 清澄白河駅 徒歩3分
築6年 / 11階建
東京都江東区白河2丁目23-7

14.5万円 / 管理費10,000円
敷
14.5万円礼
14.5万円1K / 25.23㎡ / 8階
賃貸マンション
プライマル門前仲町

東京メトロ半蔵門線 / 清澄白河駅 徒歩14分
築4年 / 7階建
東京都江東区深川2丁目2-31

14.3万円 / 管理費10,000円
敷
14.3万円礼
14.3万円2K / 25.38㎡ / 7階
賃貸マンション
プライムメゾン清澄白河

東京メトロ半蔵門線 / 清澄白河駅 徒歩12分
築2年 / 7階建
東京都江東区平野2丁目2-29

12.6万円 / 管理費10,000円
敷
12.6万円礼
無料1K / 25.05㎡ / 6階
賃貸マンション
ウエリスアーバン水天宮前

東京メトロ半蔵門線 / 清澄白河駅 徒歩12分
築2年 / 13階建
東京都江東区佐賀2丁目8-6

13.9万円 / 管理費20,000円
敷
13.9万円礼
無料1DK / 26.1㎡ / 5階
賃貸マンション
セリーズ門前仲町

東京メトロ半蔵門線 / 清澄白河駅 徒歩12分
築17年 / 9階建
東京都江東区深川2丁目2-4

12.8万円 / 管理費10,000円
敷
12.8万円礼
12.8万円1K / 25.12㎡ / 6階
賃貸マンション
グランエール森下EAST

都営大江戸線 / 森下駅 徒歩2分
新築 / 8階建
東京都江東区森下2丁目31-11

14万円 / 管理費10,000円
敷
14万円礼
無料1DK / 25.26㎡ / 6階
賃貸マンション
ドゥーエ両国Ⅲ

都営新宿線 / 森下駅 徒歩8分
築3年 / 11階建
東京都墨田区緑1丁目2-5

12.6万円 / 管理費10,000円
敷
12.6万円礼
12.6万円2K / 25.53㎡ / 4階
賃貸マンション
オーキッドレジデンス森下

都営新宿線 / 森下駅 徒歩9分
築5年 / 11階建
東京都墨田区緑1丁目1-10

12.7万円 / 管理費10,000円
敷
12.7万円礼
無料1K / 25.78㎡ / 3階
賃貸マンション
GRAN PASEO菊川

都営大江戸線 / 森下駅 徒歩6分
築6年 / 7階建
東京都墨田区菊川1丁目9-7

12.7万円 / 管理費10,000円
敷
無料礼
無料1K / 25.55㎡ / 3階
賃貸マンション
レジデンス清澄白河スクエア

都営大江戸線 / 清澄白河駅 徒歩10分
築8年 / 6階建
東京都江東区白河4丁目4-15

12.5万円 / 管理費15,000円
敷
無料礼
無料1K / 25.25㎡ / 5階
賃貸マンション
クレイシア門前仲町

東京メトロ半蔵門線 / 清澄白河駅 徒歩13分
築9年 / 14階建
東京都江東区深川2丁目6-6

12.8万円 / 管理費11,000円
敷
無料礼
12.8万円1K / 25.68㎡ / 3階
賃貸マンション
アジールコート門前仲町

都営大江戸線 / 清澄白河駅 徒歩10分
新築 / 10階建
東京都江東区深川1丁目5-12

13.8万円 / 管理費12,000円
敷
13.8万円礼
無料1K / 25.16㎡ / 9階
賃貸マンション
ライオンズフォーシア清澄白河

都営新宿線 / 森下駅 徒歩4分
築4年 / 13階建
東京都江東区高橋9-5

14.3万円 / 管理費10,000円
敷
14.3万円礼
無料ワンルーム / 26.32㎡ / 6階
賃貸マンション
コンフォリア森下リバーサイド

都営新宿線 / 森下駅 徒歩7分
築3年 / 11階建
東京都江東区常盤1丁目6-5

13.8万円 / 管理費8,000円
敷
13.8万円礼
無料1K / 25.08㎡ / 10階
賃貸マンション
クレイシア森下ステーションサイト

都営新宿線 / 森下駅 徒歩3分
築4年 / 9階建
東京都江東区森下1丁目10-2

11.8万円 / 管理費12,000円
敷
11.8万円礼
11.8万円2K / 25.52㎡ / 3階
賃貸マンション
エルスタンザ清澄白河

東京メトロ半蔵門線 / 清澄白河駅 徒歩5分
築7年 / 6階建
東京都江東区三好2丁目5-1

13.5万円 / 管理費15,000円
敷
13.5万円礼
13.5万円1K / 25.6㎡ / 6階
賃貸マンション
ESーGrande門前仲町

東京メトロ半蔵門線 / 清澄白河駅 徒歩11分
築1年 / 7階建
東京都江東区冬木23-4

14.5万円 / 管理費10,000円
敷
無料礼
無料1K / 26.29㎡ / 5階
賃貸マンション
HF両国レジデンス

都営新宿線 / 森下駅 徒歩8分
築8年 / 12階建
東京都墨田区緑1丁目9-3

11.9万円 / 管理費7,000円
敷
11.9万円礼
11.9万円1K / 27.04㎡ / 3階
賃貸マンション
パークアクシス両国

都営新宿線 / 森下駅 徒歩10分
築13年 / 11階建
東京都墨田区緑1丁目5-13

12.9万円 / 管理費8,000円
敷
12.9万円礼
12.9万円1K / 25.82㎡ / 11階
賃貸マンション
ルフォンプログレ清澄白河プレミア

東京メトロ半蔵門線 / 清澄白河駅 徒歩3分
築6年 / 11階建
東京都江東区白河2丁目23-7

14.5万円 / 管理費10,000円
敷
14.5万円礼
14.5万円1K / 25.23㎡ / 8階
賃貸マンション
プライマル門前仲町

東京メトロ半蔵門線 / 清澄白河駅 徒歩14分
築4年 / 7階建
東京都江東区深川2丁目2-31

14.3万円 / 管理費10,000円
敷
14.3万円礼
14.3万円2K / 25.38㎡ / 7階
賃貸マンション
プライムメゾン清澄白河

東京メトロ半蔵門線 / 清澄白河駅 徒歩12分
築2年 / 7階建
東京都江東区平野2丁目2-29

12.6万円 / 管理費10,000円
敷
12.6万円礼
無料1K / 25.05㎡ / 6階
賃貸マンション
ウエリスアーバン水天宮前

東京メトロ半蔵門線 / 清澄白河駅 徒歩12分
築2年 / 13階建
東京都江東区佐賀2丁目8-6

13.9万円 / 管理費20,000円
敷
13.9万円礼
無料1DK / 26.1㎡ / 5階
賃貸マンション
セリーズ門前仲町

東京メトロ半蔵門線 / 清澄白河駅 徒歩12分
築17年 / 9階建
東京都江東区深川2丁目2-4

12.8万円 / 管理費10,000円
敷
12.8万円礼
12.8万円1K / 25.12㎡ / 6階
賃貸マンション
グランエール森下EAST

都営大江戸線 / 森下駅 徒歩2分
新築 / 8階建
東京都江東区森下2丁目31-11

14万円 / 管理費10,000円
敷
14万円礼
無料1DK / 25.26㎡ / 6階
賃貸マンション
ドゥーエ両国Ⅲ

都営新宿線 / 森下駅 徒歩8分
築3年 / 11階建
東京都墨田区緑1丁目2-5

12.6万円 / 管理費10,000円
敷
12.6万円礼
12.6万円2K / 25.53㎡ / 4階
賃貸マンション
オーキッドレジデンス森下

都営新宿線 / 森下駅 徒歩9分
築5年 / 11階建
東京都墨田区緑1丁目1-10

12.7万円 / 管理費10,000円
敷
12.7万円礼
無料1K / 25.78㎡ / 3階
賃貸マンション
GRAN PASEO菊川

都営大江戸線 / 森下駅 徒歩6分
築6年 / 7階建
東京都墨田区菊川1丁目9-7

12.7万円 / 管理費10,000円
敷
無料礼
無料1K / 25.55㎡ / 3階
賃貸マンション
レジデンス清澄白河スクエア

都営大江戸線 / 清澄白河駅 徒歩10分
築8年 / 6階建
東京都江東区白河4丁目4-15

12.5万円 / 管理費15,000円
敷
無料礼
無料1K / 25.25㎡ / 5階
賃貸マンション
クレイシア門前仲町

東京メトロ半蔵門線 / 清澄白河駅 徒歩13分
築9年 / 14階建
東京都江東区深川2丁目6-6

12.8万円 / 管理費11,000円
敷
無料礼
12.8万円1K / 25.68㎡ / 3階
賃貸マンション
アジールコート門前仲町

都営大江戸線 / 清澄白河駅 徒歩10分
新築 / 10階建
東京都江東区深川1丁目5-12

13.8万円 / 管理費12,000円
敷
13.8万円礼
無料1K / 25.16㎡ / 9階
賃貸マンション
ライオンズフォーシア清澄白河

都営新宿線 / 森下駅 徒歩4分
築4年 / 13階建
東京都江東区高橋9-5

14.3万円 / 管理費10,000円
敷
14.3万円礼
無料ワンルーム / 26.32㎡ / 6階
賃貸マンション
コンフォリア森下リバーサイド

都営新宿線 / 森下駅 徒歩7分
築3年 / 11階建
東京都江東区常盤1丁目6-5

13.8万円 / 管理費8,000円
敷
13.8万円礼
無料1K / 25.08㎡ / 10階
賃貸マンション
クレイシア森下ステーションサイト

都営新宿線 / 森下駅 徒歩3分
築4年 / 9階建
東京都江東区森下1丁目10-2

11.8万円 / 管理費12,000円
敷
11.8万円礼
11.8万円2K / 25.52㎡ / 3階
賃貸マンション
エルスタンザ清澄白河

東京メトロ半蔵門線 / 清澄白河駅 徒歩5分
築7年 / 6階建
東京都江東区三好2丁目5-1

13.5万円 / 管理費15,000円
敷
13.5万円礼
13.5万円1K / 25.6㎡ / 6階
賃貸マンション
ESーGrande門前仲町

東京メトロ半蔵門線 / 清澄白河駅 徒歩11分
築1年 / 7階建
東京都江東区冬木23-4

14.5万円 / 管理費10,000円
敷
無料礼
無料1K / 26.29㎡ / 5階
同じ最寄り駅 × 同じ特徴 で探す
同じ市区町村 × 同じ特徴 で探す

























)


