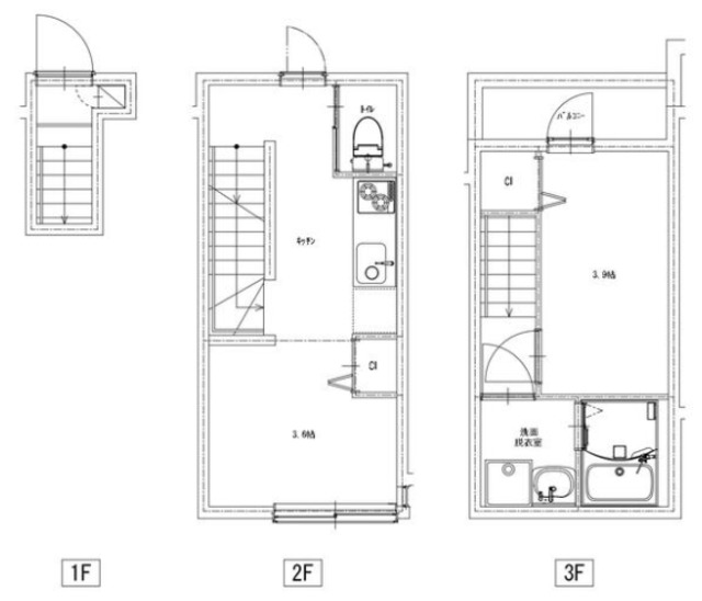
ウェルスクエアイズム下北沢WEST1LDK/1階/106(東京都世田谷区 / 下北沢駅)の賃貸
1/16
1/16
13.8万円
初期費用を知りたい管理費10,000円
- 敷金
- 13.8万円
- 保証金
- なし
- 礼金
- 13.8万円
- 広さ
- 30.74㎡
- 階数
- 1階 / 3階建
- 間取り
- 1LDK
- 建物
- マンション (鉄筋コンクリート)
- 築年数
- 築4年
- 向き
- 東
- 交通
- 小田急小田原線 / 下北沢駅徒歩9分
- 京王井の頭線 / 下北沢駅徒歩9分
- 住所
- 東京都世田谷区代田2丁目29-2
スーパーマーケット 644m
公園 981m
無料で10秒! カンタンお問い合わせ

ウェルスクエアイズム下北沢WEST
敷
13.8万円礼
13.8万円特徴
バス・トイレ別
2階以上
エアコン付き
ペット相談可
駐車場あり
室内洗濯機置場
オートロック
洗面所独立
- バス・トイレ
- 専用バス、専用トイレ、バストイレ別、温水洗浄便座、洗面所独立
- 室内設備
- エアコン、室内洗濯置、CS、BS、ネット使用料不要お部屋の詳しい情報を知りたい
- 共用部
- 宅配ボックス
- その他の特徴
- 公営水道、下水
無料で10秒! カンタンお問い合わせ

ウェルスクエアイズム下北沢WEST
敷
13.8万円礼
13.8万円不動産会社からのコメント
留守中に注文した商品が届くので、配送時間を気にせず注文ができる宅配ボックスを共用部に備えております。
収納スペースが大きいため化粧品や整髪料などの小物類もまとめてスッキリ収納できる、洗面化粧台が付いています。共用部には宅配ボックスが備え付けられているため、日々忙しくて家にいる時間が少なくても荷物を受け取れます。こだわりのある住まいを探している方、当社にお任せしませんか?豊富な賃貸情報と地域情報をご提供しておりますので、ご安心していただけます。ご要望やご不明な点など、お気軽にご連絡下さい。
その他
- 駐車/駐輪
- 要確認 / なし駐車可能な車種や台数を知りたい
- 入居時期
- 2026年3月上旬最新の空室状況が知りたい
- 損保
- 住宅保険: 要
- 保証人代行
- 加入要 費用: 保証会社利用必:レジデンシャルパートナーズ 保証料:賃料等の50%(最低2万)、月額保証・事務手数料:賃料等の1%(更新料無)
- その他費用
初期費用を知りたい鍵交換費用:44,000円
、エアコン清掃費:33,000円
- 情報
情報登録日:2025/12/12
情報更新日:2026/1/7
次回更新予定日:2026/1/17
- 備考
- 現況: 居住中 契約期間: 2年 自社管理番号: 1117224
取扱い会社
- 取扱い会社
- VR360株式会社 新宿本店条件が近い物件も紹介してほしい
- 免許番号
- 東京都知事免許(1)第109214号
- 取引態様
- 仲介
- 所在地
- 東京都新宿区西新宿3丁目1-2 Ski西新宿ビル 1F,B1F
- 電話番号
- 03-4500-8852
- 営業時間
- 09:30~18:30(お盆休暇 年末年始)
- 定休日
- 水曜日
- 所属団体名
- 全国宅地建物取引業協会連合会
おすすめ物件 (12件)
賃貸マンション
エルスタンザ下北沢

京王井の頭線 / 下北沢駅 徒歩9分
築18年 / 3階建
東京都世田谷区代田2丁目

14.3万円 / 管理費10,000円
敷
無料礼
無料ワンルーム / 32.65㎡ / 地下2階
賃貸マンション
ウェルスクエアイズム下北沢WEST

京王井の頭線 / 下北沢駅 徒歩9分
築4年 / 3階建
東京都世田谷区代田2丁目29-2

13.9万円 / 管理費10,000円
敷
13.9万円礼
13.9万円1LDK / 30.74㎡ / 2階
賃貸マンション
サニーハイマート下北沢
小田急小田原線 / 下北沢駅 徒歩4分
築22年 / 7階建
東京都世田谷区北沢1丁目40-11
11.9万円 / 管理費6,000円
敷
11.9万円礼
11.9万円1K / 26.56㎡ / 3階
賃貸マンション
世田谷区代田5丁目 4階建 2000年築

小田急小田原線 / 下北沢駅 徒歩1分
築26年 / 4階建
東京都世田谷区代田5丁目34

12.4万円 / 管理費6,000円
敷
12.4万円礼
12.4万円1K / 25.27㎡ / 1階
賃貸アパート
世田谷区大原1丁目 3階建 2025年築

京王井の頭線 / 下北沢駅 徒歩14分
新築 / 3階建
東京都世田谷区大原1丁目34-20

12.8万円 / 管理費15,000円
敷
無料礼
無料1DK / 31.88㎡ / 2階
賃貸マンション
エルスタンザ下北沢
小田急小田原線 / 下北沢駅 徒歩8分
築19年 / 地上3階地下2階建
東京都世田谷区代田2丁目
14.9万円 / 管理費10,000円
敷
無料礼
無料ワンルーム / 36.58㎡ / 地下1階
賃貸マンション
グランデュオ下北沢11
小田急小田原線 / 下北沢駅 徒歩13分
築3年 / 8階建
東京都世田谷区羽根木1丁目8-8
13.4万円 / 管理費10,000円
敷
無料礼
無料1K / 26㎡ / 7階
賃貸マンション
アーデン北沢
)
京王井の頭線 / 下北沢駅 徒歩13分
築19年 / 地上3階地下1階建
東京都世田谷区北沢5丁目
)
15.2万円 / 管理費8,000円
敷
無料礼
無料1K / 31.16㎡ / 1階
賃貸マンション
コージーヴィラ
)
小田急小田原線 / 下北沢駅 徒歩7分
築10年 / 2階建
東京都世田谷区代沢5丁目
)
15.8万円 / 管理費5,000円
敷
15.8万円礼
23.7万円1LDK / 38.12㎡ / 1階
賃貸マンション
DIAMANTE下北沢(ディアマンテ)
)
小田急小田原線 / 下北沢駅 徒歩4分
築3年 / 3階建
東京都世田谷区代田6丁目
)
14.8万円 / 管理費7,000円
敷
14.8万円礼
29.6万円1LDK / 33.91㎡ / 1階
賃貸マンション
エルファーロ下北沢Ⅴ

京王井の頭線 / 下北沢駅 徒歩8分
新築 / 3階建
東京都世田谷区代田6丁目29‐16

15.3万円 / 管理費10,000円
敷
15.3万円礼
15.3万円1LDK / 29.71㎡ / 1階
賃貸マンション
エルスタンザ下北沢

京王井の頭線 / 下北沢駅 徒歩9分
築18年 / 3階建
東京都世田谷区代田2丁目

14.3万円 / 管理費10,000円
敷
無料礼
無料ワンルーム / 32.65㎡ / 地下2階
賃貸マンション
ウェルスクエアイズム下北沢WEST

京王井の頭線 / 下北沢駅 徒歩9分
築4年 / 3階建
東京都世田谷区代田2丁目29-2

13.9万円 / 管理費10,000円
敷
13.9万円礼
13.9万円1LDK / 30.74㎡ / 2階
賃貸マンション
サニーハイマート下北沢
小田急小田原線 / 下北沢駅 徒歩4分
築22年 / 7階建
東京都世田谷区北沢1丁目40-11
11.9万円 / 管理費6,000円
敷
11.9万円礼
11.9万円1K / 26.56㎡ / 3階
賃貸マンション
世田谷区代田5丁目 4階建 2000年築

小田急小田原線 / 下北沢駅 徒歩1分
築26年 / 4階建
東京都世田谷区代田5丁目34

12.4万円 / 管理費6,000円
敷
12.4万円礼
12.4万円1K / 25.27㎡ / 1階
賃貸アパート
世田谷区大原1丁目 3階建 2025年築

京王井の頭線 / 下北沢駅 徒歩14分
新築 / 3階建
東京都世田谷区大原1丁目34-20

12.8万円 / 管理費15,000円
敷
無料礼
無料1DK / 31.88㎡ / 2階
賃貸マンション
エルスタンザ下北沢
小田急小田原線 / 下北沢駅 徒歩8分
築19年 / 地上3階地下2階建
東京都世田谷区代田2丁目
14.9万円 / 管理費10,000円
敷
無料礼
無料ワンルーム / 36.58㎡ / 地下1階
賃貸マンション
グランデュオ下北沢11
小田急小田原線 / 下北沢駅 徒歩13分
築3年 / 8階建
東京都世田谷区羽根木1丁目8-8
13.4万円 / 管理費10,000円
敷
無料礼
無料1K / 26㎡ / 7階
賃貸マンション
アーデン北沢
)
京王井の頭線 / 下北沢駅 徒歩13分
築19年 / 地上3階地下1階建
東京都世田谷区北沢5丁目
)
15.2万円 / 管理費8,000円
敷
無料礼
無料1K / 31.16㎡ / 1階
賃貸マンション
コージーヴィラ
)
小田急小田原線 / 下北沢駅 徒歩7分
築10年 / 2階建
東京都世田谷区代沢5丁目
)
15.8万円 / 管理費5,000円
敷
15.8万円礼
23.7万円1LDK / 38.12㎡ / 1階
賃貸マンション
DIAMANTE下北沢(ディアマンテ)
)
小田急小田原線 / 下北沢駅 徒歩4分
築3年 / 3階建
東京都世田谷区代田6丁目
)
14.8万円 / 管理費7,000円
敷
14.8万円礼
29.6万円1LDK / 33.91㎡ / 1階
賃貸マンション
エルファーロ下北沢Ⅴ

京王井の頭線 / 下北沢駅 徒歩8分
新築 / 3階建
東京都世田谷区代田6丁目29‐16

15.3万円 / 管理費10,000円
敷
15.3万円礼
15.3万円1LDK / 29.71㎡ / 1階
同じ最寄り駅 × 同じ特徴 で探す
同じ市区町村 × 同じ特徴 で探す

















)
)