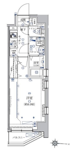
墨田区 7階建 2016年築2K/3階(東京都墨田区 / 菊川駅)の賃貸
1/30
1/30
13.9万円
初期費用を知りたい管理費15,000円
- 敷金
- 13.9万円
- 保証金
- なし
- 礼金
- 13.9万円
- 広さ
- 30.55㎡
- 階数
- 3階 / 7階建
- 間取り
- 2K
- 建物
- マンション (鉄筋コンクリート)
- 築年数
- 築10年
- 向き
- 南
- 交通
- 都営新宿線 / 菊川駅徒歩3分
- 都営新宿線 / 森下駅徒歩8分
- 住所
- 東京都墨田区菊川2丁目11-12
コンビニエンスストア 120m
スーパーマーケット 400m
総合病院 400m
銀行 800m
菊川駅(都営地下鉄 新宿線) 260m
無料で10秒! カンタンお問い合わせ
墨田区 7階建 2016年築
敷
13.9万円礼
13.9万円特徴
バス・トイレ別
2階以上
エアコン付き
ペット相談可
駐車場あり
室内洗濯機置場
オートロック
洗面所独立
- 入居条件
- 保証人不要、二人入居可最新の空室状況が知りたい
- バス・トイレ
- 専用バス、浴室乾燥機、シャワー、専用トイレ、温水洗浄便座、バストイレ別、洗面所独立
- キッチン
- ガスコンロ対応、2口コンロ、システムキッチン
- セキュリティ
- オートロック、防犯カメラ
- 室内設備
- BS、CS、インターネット対応、光ファイバー、エアコン、冷房、照明付、クロゼット、シューズボックス、室内洗濯置、フローリング、ネット使用料不要お部屋の詳しい情報を知りたい
- 部屋の特徴
- バルコニー、角住戸、二階以上写真を送ってほしい
- 共用部
- エレベーター、宅配ボックス
- その他の特徴
- 下水、公営水道、都市ガス、外壁タイル張り、分譲賃貸
無料で10秒! カンタンお問い合わせ
墨田区 7階建 2016年築
敷
13.9万円礼
13.9万円不動産会社からのコメント
菊川駅徒歩圏内 分譲賃貸マンション ペット相談 浴室乾燥機 キッチン2口 洗面所独立 角部屋二面採光
短期解約時違約金あり 駐輪場・駐車場:要空き確認 更新事務手数料0,5ヶ月 解約予告一ヶ月前
その他
- 駐車/駐輪
- 無 / なし駐車可能な車種や台数を知りたい
- 入居時期
- 2026年4月下旬最新の空室状況が知りたい
- 損保
- 住宅保険: 要
- 保証人代行
- 加入要 会社名: その他 費用: 初回保証料40% 年間保証料10000円
- その他費用
初期費用を知りたいエアコン清掃費:14,300円
除菌消臭費:8,800円
鍵交換費用:35,200円
24時間緊急対応費/月:1,100円
室内清掃費用:55,000円
- 情報
情報登録日:2026/3/29
情報更新日:2026/3/28
次回更新予定日:2026/4/6
- 備考
- 現況: 居住中 更新料: 新賃料の1.0ヶ月分 契約期間: 2年
取扱い会社
- 取扱い会社
- スタートライングループ株式会社 清澄白河資料館通り店条件が近い物件も紹介してほしい
- 免許番号
- 東京都知事(6)第76891号
- 取引態様
- 仲介
- 所在地
- 東京都江東区白河2-2-1 kiyosumi terrace1F
- 電話番号
- 03-5809-8595
- 営業時間
- 10:00~19:00
- 定休日
- 受付:年中無休/店舗:水曜日(年末年始/GW/お盆)
- 所属団体名
- 公益社団法人全日本不動産協会
おすすめ物件 (20件)
賃貸マンション
クロスレジデンス清澄白河

都営新宿線 / 菊川駅 徒歩12分
築18年 / 9階建
東京都江東区白河3丁目1-12

13万円 / 管理費10,000円
敷
13万円礼
無料ワンルーム / 26.12㎡ / 8階
賃貸マンション
コンフォリア・リヴ森下MUTIO

都営新宿線 / 森下駅 徒歩5分
新築 / 10階建
東京都江東区森下3丁目6-7

14.7万円 / 管理費10,000円
敷
14.7万円礼
無料1K / 25.36㎡ / 9階
賃貸マンション
ルフォンプログレ清澄白河プレミア

都営新宿線 / 菊川駅 徒歩10分
築7年 / 11階建
東京都江東区白河2丁目23-7

15.2万円 / 管理費15,000円
敷
15.2万円礼
15.2万円1DK / 26.84㎡ / 7階
賃貸マンション
パークアクシス錦糸町ヴェール

都営新宿線 / 菊川駅 徒歩9分
築10年 / 9階建
東京都墨田区緑4丁目19-17

13.1万円 / 管理費12,000円
敷
13.1万円礼
13.1万円ワンルーム / 26.72㎡ / 2階
賃貸マンション
墨田区 11階建 2021年築

都営新宿線 / 菊川駅 徒歩9分
築5年 / 11階建
東京都墨田区緑3丁目11-8

12.2万円 / 管理費12,000円
敷
12.2万円礼
無料1K / 25.61㎡ / 4階
賃貸マンション
パークアクシス菊川ステーションイースト

都営新宿線 / 菊川駅 徒歩3分
築4年 / 11階建
東京都墨田区菊川3丁目11-12

15万円 / 管理費12,000円
敷
15万円礼
15万円1LDK / 27.61㎡ / 10階
賃貸マンション
S-RESIDENCE菊川rivie

都営新宿線 / 菊川駅 徒歩7分
築4年 / 9階建
東京都墨田区緑3丁目1-13

13.2万円 / 管理費13,000円
敷
無料礼
13.2万円1DK / 29.66㎡ / 4階
賃貸マンション
パークアクシス錦糸町WEST

都営新宿線 / 菊川駅 徒歩8分
築7年 / 9階建
東京都墨田区緑4丁目4-5

12.4万円 / 管理費20,000円
敷
無料礼
無料ワンルーム / 25.95㎡ / 2階
賃貸マンション
プライムアーバン菊川

都営新宿線 / 菊川駅 徒歩3分
築4年 / 7階建
東京都墨田区菊川3丁目20-7

11.9万円 / 管理費15,000円
敷
11.9万円礼
11.9万円1K / 25.14㎡ / 7階
賃貸マンション
Brillia ist 清澄白河

都営新宿線 / 菊川駅 徒歩11分
築8年 / 13階建
東京都江東区白河3丁目8-13

14.9万円 / 管理費10,000円
敷
14.9万円礼
14.9万円1K / 26.16㎡ / 12階
賃貸マンション
Belleviage Kinshicho

都営新宿線 / 菊川駅 徒歩9分
築36年 / 7階建
東京都墨田区緑4丁目16-6

15万円 / 管理費10,000円
敷
15万円礼
15万円1DK / 30.6㎡ / 2階
賃貸マンション
アトリオフラッツ菊川north

都営新宿線 / 菊川駅 徒歩5分
築2年 / 5階建
東京都墨田区立川4丁目3-9

14.5万円 / 管理費10,000円
敷
14.5万円礼
無料1DK / 28.99㎡ / 4階
賃貸マンション
アトリオフラッツ菊川

都営新宿線 / 菊川駅 徒歩6分
築4年 / 4階建
東京都江東区森下5丁目16-8

12.5万円 / 管理費10,000円
敷
12.5万円礼
無料1DK / 25.55㎡ / 2階
賃貸マンション
墨田区立川1丁目 7階建 2021年築

都営大江戸線 / 森下駅 徒歩6分
築5年 / 7階建
東京都墨田区立川1丁目

15.7万円 / 管理費12,000円
敷
無料礼
15.7万円1DK / 28.91㎡ / 4階
賃貸マンション
パークアクシス菊川

都営新宿線 / 菊川駅 徒歩5分
築12年 / 10階建
東京都墨田区菊川3丁目14-24

13万円 / 管理費10,000円
敷
13万円礼
13万円ワンルーム / 25.02㎡ / 5階
賃貸マンション
パークアクシス新大橋
都営新宿線 / 森下駅 徒歩5分
新築 / 12階建
東京都江東区新大橋2丁目15-6
15.3万円 / 管理費10,000円
敷
15.3万円礼
無料1DK / 27.35㎡ / 5階
賃貸マンション
カバナ清澄(CAVANA清澄)
都営新宿線 / 森下駅 徒歩7分
築4年 / 9階建
東京都江東区清澄3丁目11-8
14.5万円 / 管理費10,000円
敷
無料礼
無料1K / 25.55㎡ / 3階
賃貸マンション
墨田区 9階建 2022年築
都営新宿線 / 森下駅 徒歩8分
築4年 / 9階建
東京都墨田区両国4丁目12-5
12.8万円 / 管理費10,000円
敷
12.8万円礼
12.8万円ワンルーム / 25.27㎡ / 8階
賃貸マンション
ライオンズフォーシア清澄白河
都営新宿線 / 森下駅 徒歩4分
築5年 / 13階建
東京都江東区高橋9-5
14.2万円 / 管理費10,000円
敷
14.2万円礼
無料ワンルーム / 26.32㎡ / 3階
賃貸マンション
クロスレジデンス清澄白河

都営新宿線 / 菊川駅 徒歩12分
築18年 / 9階建
東京都江東区白河3丁目1-12

13万円 / 管理費10,000円
敷
13万円礼
無料ワンルーム / 26.12㎡ / 8階
賃貸マンション
コンフォリア・リヴ森下MUTIO

都営新宿線 / 森下駅 徒歩5分
新築 / 10階建
東京都江東区森下3丁目6-7

14.7万円 / 管理費10,000円
敷
14.7万円礼
無料1K / 25.36㎡ / 9階
賃貸マンション
ルフォンプログレ清澄白河プレミア

都営新宿線 / 菊川駅 徒歩10分
築7年 / 11階建
東京都江東区白河2丁目23-7

15.2万円 / 管理費15,000円
敷
15.2万円礼
15.2万円1DK / 26.84㎡ / 7階
賃貸マンション
パークアクシス錦糸町ヴェール

都営新宿線 / 菊川駅 徒歩9分
築10年 / 9階建
東京都墨田区緑4丁目19-17

13.1万円 / 管理費12,000円
敷
13.1万円礼
13.1万円ワンルーム / 26.72㎡ / 2階
賃貸マンション
墨田区 11階建 2021年築

都営新宿線 / 菊川駅 徒歩9分
築5年 / 11階建
東京都墨田区緑3丁目11-8

12.2万円 / 管理費12,000円
敷
12.2万円礼
無料1K / 25.61㎡ / 4階
賃貸マンション
パークアクシス菊川ステーションイースト

都営新宿線 / 菊川駅 徒歩3分
築4年 / 11階建
東京都墨田区菊川3丁目11-12

15万円 / 管理費12,000円
敷
15万円礼
15万円1LDK / 27.61㎡ / 10階
賃貸マンション
S-RESIDENCE菊川rivie

都営新宿線 / 菊川駅 徒歩7分
築4年 / 9階建
東京都墨田区緑3丁目1-13

13.2万円 / 管理費13,000円
敷
無料礼
13.2万円1DK / 29.66㎡ / 4階
賃貸マンション
パークアクシス錦糸町WEST

都営新宿線 / 菊川駅 徒歩8分
築7年 / 9階建
東京都墨田区緑4丁目4-5

12.4万円 / 管理費20,000円
敷
無料礼
無料ワンルーム / 25.95㎡ / 2階
賃貸マンション
プライムアーバン菊川

都営新宿線 / 菊川駅 徒歩3分
築4年 / 7階建
東京都墨田区菊川3丁目20-7

11.9万円 / 管理費15,000円
敷
11.9万円礼
11.9万円1K / 25.14㎡ / 7階
賃貸マンション
Brillia ist 清澄白河

都営新宿線 / 菊川駅 徒歩11分
築8年 / 13階建
東京都江東区白河3丁目8-13

14.9万円 / 管理費10,000円
敷
14.9万円礼
14.9万円1K / 26.16㎡ / 12階
賃貸マンション
Belleviage Kinshicho

都営新宿線 / 菊川駅 徒歩9分
築36年 / 7階建
東京都墨田区緑4丁目16-6

15万円 / 管理費10,000円
敷
15万円礼
15万円1DK / 30.6㎡ / 2階
賃貸マンション
アトリオフラッツ菊川north

都営新宿線 / 菊川駅 徒歩5分
築2年 / 5階建
東京都墨田区立川4丁目3-9

14.5万円 / 管理費10,000円
敷
14.5万円礼
無料1DK / 28.99㎡ / 4階
賃貸マンション
アトリオフラッツ菊川

都営新宿線 / 菊川駅 徒歩6分
築4年 / 4階建
東京都江東区森下5丁目16-8

12.5万円 / 管理費10,000円
敷
12.5万円礼
無料1DK / 25.55㎡ / 2階
賃貸マンション
墨田区立川1丁目 7階建 2021年築

都営大江戸線 / 森下駅 徒歩6分
築5年 / 7階建
東京都墨田区立川1丁目

15.7万円 / 管理費12,000円
敷
無料礼
15.7万円1DK / 28.91㎡ / 4階
賃貸マンション
パークアクシス菊川

都営新宿線 / 菊川駅 徒歩5分
築12年 / 10階建
東京都墨田区菊川3丁目14-24

13万円 / 管理費10,000円
敷
13万円礼
13万円ワンルーム / 25.02㎡ / 5階
賃貸マンション
パークアクシス新大橋
都営新宿線 / 森下駅 徒歩5分
新築 / 12階建
東京都江東区新大橋2丁目15-6
15.3万円 / 管理費10,000円
敷
15.3万円礼
無料1DK / 27.35㎡ / 5階
賃貸マンション
カバナ清澄(CAVANA清澄)
都営新宿線 / 森下駅 徒歩7分
築4年 / 9階建
東京都江東区清澄3丁目11-8
14.5万円 / 管理費10,000円
敷
無料礼
無料1K / 25.55㎡ / 3階
賃貸マンション
墨田区 9階建 2022年築
都営新宿線 / 森下駅 徒歩8分
築4年 / 9階建
東京都墨田区両国4丁目12-5
12.8万円 / 管理費10,000円
敷
12.8万円礼
12.8万円ワンルーム / 25.27㎡ / 8階
賃貸マンション
ライオンズフォーシア清澄白河
都営新宿線 / 森下駅 徒歩4分
築5年 / 13階建
東京都江東区高橋9-5
14.2万円 / 管理費10,000円
敷
14.2万円礼
無料ワンルーム / 26.32㎡ / 3階
同じ最寄り駅 × 同じ特徴 で探す
同じ市区町村 × 同じ特徴 で探す




