コンフォリア南品川1LDK/5階(東京都品川区 / 新馬場駅)の賃貸
1/30
1/30
17.9万円
初期費用を知りたい管理費10,000円
適用で最大2年間4.8万円割引
本物件のヘヤワリ適用可否については、不動産会社へご確認ください。
- 敷金
- 17.9万円
- 保証金
- なし
- 礼金
- 無料
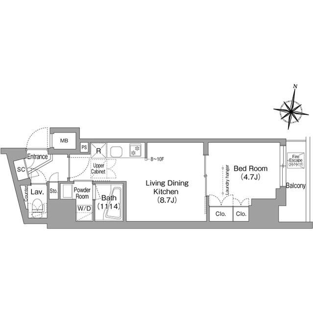
- 広さ
- 33.91㎡
- 階数
- 5階 / 16階建
- 間取り
- 1LDK
- 建物
- マンション (鉄筋コンクリート)
- 築年数
- 新築
- 向き
- 東
- 交通
- 京急本線 / 新馬場駅徒歩2分
- 京浜東北線 / 大井町駅徒歩15分
- 住所
- 東京都品川区南品川4丁目2-9
コンビニエンスストア 70m
スーパーマーケット 390m
ドラッグストア 550m
Can★Do 620m
無料で10秒! カンタンお問い合わせ
コンフォリア南品川
敷
17.9万円礼
無料特徴
バス・トイレ別
2階以上
エアコン付き
ペット相談可
駐車場あり
室内洗濯機置場
オートロック
洗面所独立
- 入居条件
- ペット相談、初期費用カード決済可、即入居可最新の空室状況が知りたい
- バス・トイレ
- バストイレ別、浴室乾燥機、温水洗浄便座、洗面所独立
- セキュリティ
- オートロック、防犯カメラ
- 室内設備
- BS、CS、トランクルーム、シューズボックス、フローリング、エアコン、室内洗濯置、照明付、ネット使用料不要お部屋の詳しい情報を知りたい
- 部屋の特徴
- 二階以上写真を送ってほしい
- 共用部
- エレベーター、宅配ボックス
無料で10秒! カンタンお問い合わせ
コンフォリア南品川
敷
17.9万円礼
無料同じ建物で掲載中の物件 (13件)
不動産会社からのコメント
タウンハウジングでご予約受付中です!
初期費用クレジット決済可(一部)/IT重説対応/オンライン相談・内見可
その他
- 駐車/駐輪
- 無 / なし駐車可能な車種や台数を知りたい
- 入居時期
- 損保
- 住宅保険: 要
- 保証人代行
- 加入要 会社名: その他 費用: 保証料:賃料等の50%(最低2万)、月額保証料:賃料等の1%(更新料無)
- その他費用
- 情報
情報登録日:2026/2/27
情報更新日:2026/3/24
次回更新予定日:2026/4/4
- 備考
- 現況: 空家 状態: 未入居 更新料: 179,000円 契約期間: 2年 総戸数: 51戸
取扱い会社
- 取扱い会社
- 株式会社タウンハウジング 浜松町店条件が近い物件も紹介してほしい
- 免許番号
- 国土交通大臣(1)9926号
- 取引態様
- 仲介
- 所在地
- 東京都港区芝大門2-3-2 第2大吉ビル1階
- 電話番号
- 03-3436-1537
- 所属団体名
- 東京都宅地建物取引業協会
おすすめ物件 (14件)
賃貸マンション
ルミーク北品川(LUMIEC KITASHINAGAWA )
京急本線 / 新馬場駅 徒歩4分
築2年 / 10階建
東京都品川区北品川2丁目9-7
19.7万円 / 管理費20,000円
敷
無料礼
無料1LDK / 35.81㎡ / 8階
賃貸マンション
品川区 10階建 2025年築
京浜東北線 / 大井町駅 徒歩16分
新築 / 10階建
東京都品川区南品川3丁目6-14
18.2万円 / 管理費15,000円
敷
18.2万円礼
無料1SLDK / 38.55㎡ / 2階
賃貸マンション
品川区 16階建 2025年築
京急本線 / 新馬場駅 徒歩4分
新築 / 16階建
東京都品川区南品川4丁目2-9
16.7万円 / 管理費10,000円
敷
16.7万円礼
無料1LDK / 33.16㎡ / 13階
賃貸マンション
Brillia ist 大井町

京浜東北線 / 大井町駅 徒歩4分
築2年 / 14階建
東京都品川区大井1丁目54-10

17.6万円 / 管理費10,000円
敷
17.6万円礼
無料1DK / 25.08㎡ / 11階
賃貸マンション
クロスレジデンス大崎
京急本線 / 新馬場駅 徒歩14分
築6年 / 13階建
東京都品川区北品川5丁目9-25
17.3万円 / 管理費12,000円
敷
17.3万円礼
17.3万円1DK / 31.05㎡ / 13階
賃貸マンション
品川区南大井5丁目 5階建 2024年築

京浜東北線 / 大井町駅 徒歩14分
築2年 / 5階建
東京都品川区南大井5丁目

16万円 / 管理費15,000円
敷
無料礼
無料1LDK / 30.6㎡ / 5階
賃貸マンション
品川区大井1丁目 14階建 2008年築

京浜東北線 / 大井町駅 徒歩5分
築18年 / 14階建
東京都品川区大井1丁目

16.5万円 / 管理費10,000円
敷
16.5万円礼
16.5万円ワンルーム / 26.62㎡ / 13階
賃貸マンション
品川区東大井3丁目 15階建 2024年築

京浜東北線 / 大井町駅 徒歩10分
築2年 / 15階建
東京都品川区東大井3丁目

16.9万円 / 管理費12,000円
敷
16.9万円礼
無料1LDK / 33.04㎡ / 11階
賃貸マンション
プラウドフラット品川大井町

京浜東北線 / 大井町駅 徒歩9分
築4年 / 5階建
東京都品川区南品川6丁目2-3

16.2万円 / 管理費15,000円
敷
16.2万円礼
無料1DK / 26.7㎡ / 2階
賃貸マンション
パークアクシス品川天王洲アイル
)
京急本線 / 新馬場駅 徒歩16分
築1年 / 14階建
東京都品川区東品川3丁目32-27
)
17.5万円 / 管理費12,000円
敷
17.5万円礼
無料1LDK / 34.72㎡ / 8階
賃貸マンション
ブリリアイスト大井町
りんかい線 / 大井町駅 徒歩5分
築2年 / 14階建
東京都品川区大井1丁目54-10
17.6万円 / 管理費10,000円
敷
17.6万円礼
無料1DK / 25.08㎡ / 11階
賃貸マンション
コンフォリア東大井
りんかい線 / 大井町駅 徒歩12分
築2年 / 15階建
東京都品川区東大井3丁目16-3
16.9万円 / 管理費12,000円
敷
16.9万円礼
無料1LDK / 33.04㎡ / 11階
賃貸マンション
レピュア南大井レジデンス
)
東急大井町線 / 大井町駅 徒歩14分
築1年 / 5階建
東京都品川区南大井5丁目5-13
)
16万円 / 管理費15,000円
敷
無料礼
無料1LDK / 30.6㎡ / 4階
賃貸マンション
ルミーク北品川(LUMIEC KITASHINAGAWA )
京急本線 / 新馬場駅 徒歩4分
築2年 / 10階建
東京都品川区北品川2丁目9-7
19.7万円 / 管理費20,000円
敷
無料礼
無料1LDK / 35.81㎡ / 8階
賃貸マンション
品川区 10階建 2025年築
京浜東北線 / 大井町駅 徒歩16分
新築 / 10階建
東京都品川区南品川3丁目6-14
18.2万円 / 管理費15,000円
敷
18.2万円礼
無料1SLDK / 38.55㎡ / 2階
賃貸マンション
品川区 16階建 2025年築
京急本線 / 新馬場駅 徒歩4分
新築 / 16階建
東京都品川区南品川4丁目2-9
16.7万円 / 管理費10,000円
敷
16.7万円礼
無料1LDK / 33.16㎡ / 13階
賃貸マンション
Brillia ist 大井町

京浜東北線 / 大井町駅 徒歩4分
築2年 / 14階建
東京都品川区大井1丁目54-10

17.6万円 / 管理費10,000円
敷
17.6万円礼
無料1DK / 25.08㎡ / 11階
賃貸マンション
クロスレジデンス大崎
京急本線 / 新馬場駅 徒歩14分
築6年 / 13階建
東京都品川区北品川5丁目9-25
17.3万円 / 管理費12,000円
敷
17.3万円礼
17.3万円1DK / 31.05㎡ / 13階
賃貸マンション
品川区南大井5丁目 5階建 2024年築

京浜東北線 / 大井町駅 徒歩14分
築2年 / 5階建
東京都品川区南大井5丁目

16万円 / 管理費15,000円
敷
無料礼
無料1LDK / 30.6㎡ / 5階
賃貸マンション
品川区大井1丁目 14階建 2008年築

京浜東北線 / 大井町駅 徒歩5分
築18年 / 14階建
東京都品川区大井1丁目

16.5万円 / 管理費10,000円
敷
16.5万円礼
16.5万円ワンルーム / 26.62㎡ / 13階
賃貸マンション
品川区東大井3丁目 15階建 2024年築

京浜東北線 / 大井町駅 徒歩10分
築2年 / 15階建
東京都品川区東大井3丁目

16.9万円 / 管理費12,000円
敷
16.9万円礼
無料1LDK / 33.04㎡ / 11階
賃貸マンション
プラウドフラット品川大井町

京浜東北線 / 大井町駅 徒歩9分
築4年 / 5階建
東京都品川区南品川6丁目2-3

16.2万円 / 管理費15,000円
敷
16.2万円礼
無料1DK / 26.7㎡ / 2階
賃貸マンション
パークアクシス品川天王洲アイル
)
京急本線 / 新馬場駅 徒歩16分
築1年 / 14階建
東京都品川区東品川3丁目32-27
)
17.5万円 / 管理費12,000円
敷
17.5万円礼
無料1LDK / 34.72㎡ / 8階
賃貸マンション
ブリリアイスト大井町
りんかい線 / 大井町駅 徒歩5分
築2年 / 14階建
東京都品川区大井1丁目54-10
17.6万円 / 管理費10,000円
敷
17.6万円礼
無料1DK / 25.08㎡ / 11階
賃貸マンション
コンフォリア東大井
りんかい線 / 大井町駅 徒歩12分
築2年 / 15階建
東京都品川区東大井3丁目16-3
16.9万円 / 管理費12,000円
敷
16.9万円礼
無料1LDK / 33.04㎡ / 11階
賃貸マンション
レピュア南大井レジデンス
)
東急大井町線 / 大井町駅 徒歩14分
築1年 / 5階建
東京都品川区南大井5丁目5-13
)
16万円 / 管理費15,000円
敷
無料礼
無料1LDK / 30.6㎡ / 4階
同じ最寄り駅 × 同じ特徴 で探す
同じ市区町村 × 同じ特徴 で探す

)
)





)
)