
























1/25

























1/25
1分で完了!空室状況をお問い合わせ(無料)
カナリーでの掲載は終了しました
同じ建物で掲載中の物件 (0件)
つるかめランド吉祥寺店 444m
ローソン 吉祥寺南町店 716m
スギ薬局吉祥寺南町店 263m
丸井吉祥寺店 495m
吉祥寺公園 215m
吉祥寺あさひ病院 172m
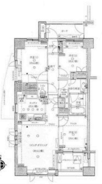
特徴
バス・トイレ別
2階以上
エアコン付き
ペット相談可
駐車場あり
室内洗濯機置場
オートロック
洗面所独立
- 入居条件
- 二人入居相談、子供可、保証人不要
- バス・トイレ
- シャワー、給湯、洗面台、バストイレ別、浴室乾燥機、追焚機能浴室、脱衣所、温水洗浄便座、洗面所独立
- キッチン
- ガスコンロ対応、3口以上コンロ、ガスレンジ、グリル付、カウンターキッチン、システムキッチン
- 室内設備
- インターネット対応、エアコン、シューズボックス、クロゼット、2面採光、室内洗濯置
- 部屋の特徴
- 二階以上、角住戸、収納1間半、クロゼット3ヶ所、収納3ヵ所、バルコニー
- 共用部
- 敷地内ごみ置き場、宅配ボックス、エレベーター
- その他の特徴
- 玄関ホール、駐車場あり、都市ガス、公営水道、下水、外壁タイル張り
不動産会社からのコメント
室内清掃費用借主負担(退去時)/保険料 月額1835円
取扱い会社
- 取扱い会社
- アエラス三鷹店 (株式会社アエラス.PR)
- 免許番号
- 国土交通大臣(1)第10782号
- 取引態様
- 仲介
- 所在地
- 東京都武蔵野市中町1丁目13-2 村越ビル 4階
- 電話番号
- 0422-50-0693
- 営業時間
- 10:00~19:00
- 定休日
- 年中無休(年末年始などを除く)
- 所属団体名
- 全日本不動産協会
同じ最寄り駅 で探す
同じ最寄り駅 × 同じ特徴 で探す
同じ市区町村 × 同じ特徴 で探す
