プチハウス1K/1階(東京都国分寺市 / 西国分寺駅)の賃貸
1/19
1/19
5.6万円
初期費用を知りたい管理費2,000円
- 敷金
- 5.6万円
- 保証金
- なし
- 礼金
- 5.6万円
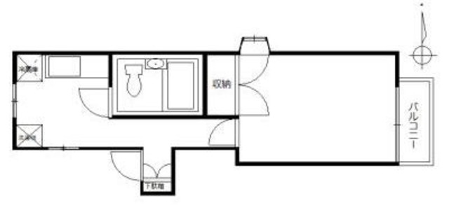
- 広さ
- 19㎡
- 階数
- 1階 / 2階建
- 間取り
- 1K
- 建物
- アパート (木造)
- 築年数
- 築32年
- 向き
- 南東
- 交通
- 中央線 / 西国分寺駅徒歩7分
- 中央線 / 国立駅徒歩15分
- 住所
- 東京都国分寺市内藤2丁目
コンビニエンスストア 737m
スーパーマーケット 612m
銀行 898m
西国分寺レガ 695m
無料で10秒! カンタンお問い合わせ
プチハウス
敷
5.6万円礼
5.6万円特徴
バス・トイレ別
2階以上
エアコン付き
ペット相談可
駐車場あり
室内洗濯機置場
オートロック
洗面所独立
- 入居条件
- 保証人不要、初期費用カード決済可最新の空室状況が知りたい
- 室内設備
- フローリング、室内洗濯置、エアコンお部屋の詳しい情報を知りたい
- 部屋の特徴
- バルコニー、角住戸写真を送ってほしい
- その他の特徴
- 都市ガス
無料で10秒! カンタンお問い合わせ
プチハウス
敷
5.6万円礼
5.6万円その他
- 駐車/駐輪
- 要確認 / なし駐車可能な車種や台数を知りたい
- 入居時期
- 損保
- 住宅保険: 要
- 保証人代行
- 加入要 会社名: その他 費用: 利用可能な保証人代行会社につきましては、営業担当まで直接ご確認下さいませ。
- その他費用
初期費用を知りたい24時間サポート:16,500円
鍵交換費用:18,700円
雑費:5,500円
消火剤:6,600円
- 情報
情報登録日:2026/2/26
情報更新日:2026/2/25
次回更新予定日:2026/3/6
- 備考
- 現況: 空家 更新料: 新賃料の1.0ヶ月分 契約期間: 2年
取扱い会社
- 取扱い会社
- 株式会社 LIBRE 国分寺店条件が近い物件も紹介してほしい
- 免許番号
- 東京都知事免許(4)第91757号
- 取引態様
- 一般媒介
- 所在地
- 東京都国分寺市南町3-23-4第3浦野ビル3階
- 電話番号
- 050-1722-1660
- 営業時間
- 10:00~18:00
- 定休日
- 火曜水曜日
- 所属団体名
- 全日本不動産協会
おすすめ物件 (20件)
賃貸アパート
国立市 2階建 1993年築
中央線 / 国立駅 徒歩11分
築33年 / 2階建
東京都国立市中1丁目
5.8万円 / 管理費2,000円
敷
5.8万円礼
5.8万円1K / 20.65㎡ / 2階
賃貸アパート
国立市富士見台1丁目 2階建 1993年築

中央線 / 国立駅 徒歩26分
築33年 / 2階建
東京都国立市富士見台1丁目

4.4万円 / 管理費3,000円
敷
4.4万円礼
無料1K / 20.79㎡ / 1階
賃貸マンション
コンフォートいづみ
中央線 / 国立駅 徒歩6分
築28年 / 地上5階地下1階建
東京都国立市中1丁目
家賃カード決済可
7.6万円 / 管理費3,000円
敷
7.6万円礼
7.6万円2K / 26㎡ / 3階
賃貸アパート
国立市東 2階建 2006年築
)
中央線 / 国立駅 徒歩6分
築20年 / 2階建
東京都国立市東1丁目20-61
)
6.7万円 / 管理費4,000円
敷
6.7万円礼
6.7万円ワンルーム / 15.37㎡ / 1階
賃貸アパート
ファミーユ国分寺

中央線 / 西国分寺駅 徒歩9分
築35年 / 2階建
東京都府中市武蔵台3丁目25-2

家賃カード決済可
5.1万円 / 管理費2,000円
敷
5.1万円礼
5.1万円1K / 17.58㎡ / 2階
賃貸マンション
ソリッドリファイン西国立

中央線 / 国立駅 徒歩24分
築34年 / 3階建
東京都立川市羽衣町2丁目56-1

4万円 / 管理費4,000円
敷
無料礼
無料ワンルーム / 15.32㎡ / 3階
賃貸マンション
ヒルハウスコンフォートⅡ
)
中央線 / 西国分寺駅 徒歩18分
築30年 / 4階建
東京都国分寺市南町3丁目29-8
)
5.9万円 / 管理費なし
敷
5.9万円礼
無料1K / 17.39㎡ / 3階
賃貸アパート
パールハイツ

武蔵野線 / 西国分寺駅 徒歩19分
築37年 / 2階建
東京都国分寺市東恋ヶ窪3丁目3-19

5.2万円 / 管理費3,000円
敷
5.2万円礼
5.2万円1K / 24㎡ / 1階
賃貸マンション
藤和シティ―コープ国分寺

武蔵野線 / 西国分寺駅 徒歩28分
築33年 / 8階建
東京都国分寺市本多1丁目6-6

5.6万円 / 管理費3,000円
敷
5.6万円礼
2.8万円ワンルーム / 19.8㎡ / 3階
賃貸アパート
国立市 2階建 1993年築
中央線 / 国立駅 徒歩11分
築33年 / 2階建
東京都国立市中1丁目
5.8万円 / 管理費2,000円
敷
5.8万円礼
5.8万円1K / 20.65㎡ / 2階
賃貸アパート
国立市富士見台1丁目 2階建 1993年築

中央線 / 国立駅 徒歩26分
築33年 / 2階建
東京都国立市富士見台1丁目

4.4万円 / 管理費3,000円
敷
4.4万円礼
無料1K / 20.79㎡ / 1階
賃貸マンション
コンフォートいづみ
中央線 / 国立駅 徒歩6分
築28年 / 地上5階地下1階建
東京都国立市中1丁目
家賃カード決済可
7.6万円 / 管理費3,000円
敷
7.6万円礼
7.6万円2K / 26㎡ / 3階
賃貸アパート
国立市東 2階建 2006年築
)
中央線 / 国立駅 徒歩6分
築20年 / 2階建
東京都国立市東1丁目20-61
)
6.7万円 / 管理費4,000円
敷
6.7万円礼
6.7万円ワンルーム / 15.37㎡ / 1階
賃貸アパート
ファミーユ国分寺

中央線 / 西国分寺駅 徒歩9分
築35年 / 2階建
東京都府中市武蔵台3丁目25-2

家賃カード決済可
5.1万円 / 管理費2,000円
敷
5.1万円礼
5.1万円1K / 17.58㎡ / 2階
賃貸マンション
ソリッドリファイン西国立

中央線 / 国立駅 徒歩24分
築34年 / 3階建
東京都立川市羽衣町2丁目56-1

4万円 / 管理費4,000円
敷
無料礼
無料ワンルーム / 15.32㎡ / 3階
賃貸マンション
ヒルハウスコンフォートⅡ
)
中央線 / 西国分寺駅 徒歩18分
築30年 / 4階建
東京都国分寺市南町3丁目29-8
)
5.9万円 / 管理費なし
敷
5.9万円礼
無料1K / 17.39㎡ / 3階
賃貸アパート
パールハイツ

武蔵野線 / 西国分寺駅 徒歩19分
築37年 / 2階建
東京都国分寺市東恋ヶ窪3丁目3-19

5.2万円 / 管理費3,000円
敷
5.2万円礼
5.2万円1K / 24㎡ / 1階
賃貸マンション
藤和シティ―コープ国分寺

武蔵野線 / 西国分寺駅 徒歩28分
築33年 / 8階建
東京都国分寺市本多1丁目6-6

5.6万円 / 管理費3,000円
敷
5.6万円礼
2.8万円ワンルーム / 19.8㎡ / 3階
同じ最寄り駅 × 同じ特徴 で探す
同じ市区町村 × 同じ特徴 で探す
















