ハイツオーエド1DK/6階/602(東京都豊島区 / 池袋駅)の賃貸
1/28
1/28
9万円
初期費用を知りたい管理費7,000円
- 敷金
- 9万円
- 保証金
- なし
- 礼金
- 9万円
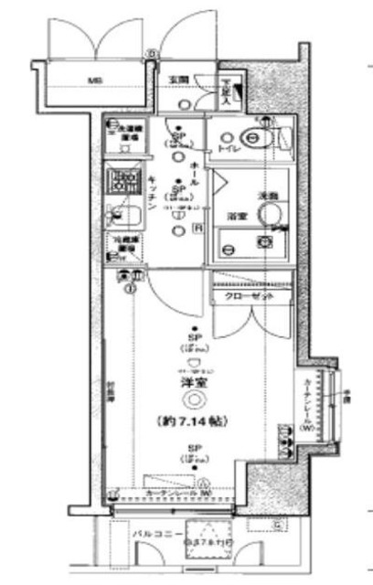
- 広さ
- 24㎡
- 階数
- 6階 / 12階建
- 間取り
- 1DK
- 建物
- マンション (鉄骨鉄筋)
- 築年数
- 築41年
- 向き
- 西
- 交通
- 東京メトロ丸ノ内線 / 池袋駅徒歩6分
- 東京メトロ有楽町線 / 要町駅徒歩13分
- 住所
- 東京都豊島区池袋2丁目68-5
コンビニエンスストア 46m
スーパーマーケット 82m
総合病院 338m
公園 609m
ドラッグストア 196m
銀行 434m
白洋舎 東武池袋店 703m
無料で10秒! カンタンお問い合わせ

ハイツオーエド
敷
9万円礼
9万円特徴
バス・トイレ別
2階以上
エアコン付き
ペット相談可
駐車場あり
室内洗濯機置場
オートロック
洗面所独立
- 入居条件
- 事務所(SOHO)可、保証人不要、高齢者歓迎、初期費用カード決済可、即入居可最新の空室状況が知りたい
- バス・トイレ
- 専用バス、専用トイレ
- キッチン
- ガスコンロ対応、2口コンロ
- 室内設備
- 洗濯機置場、フローリング、光ファイバー、エアコン、クロゼット、シューズボックスお部屋の詳しい情報を知りたい
- 部屋の特徴
- バルコニー、二階以上写真を送ってほしい
- 共用部
- エレベーター、駐輪場
- その他の特徴
- 家賃保証付き、公営水道、下水、都市ガス
無料で10秒! カンタンお問い合わせ

ハイツオーエド
敷
9万円礼
9万円同じ建物で掲載中の物件 (1件)
不動産会社からのコメント
リライフは全ての物件が仲介料半額です。
当物件は全物件仲介料半額の「住まいのリライフ」で取り扱っております。リライフは首都圏23店舗のネットワークで豊富な物件情報をご提供いたします。当物件に類似した未公開物件のご提案も可能です。お気軽にお問い合わせください。
その他
- 駐車/駐輪
- 無 / あり駐車可能な車種や台数を知りたい
- 入居時期
- 損保
- 住宅保険: 要
- 保証人代行
- 加入要 費用: 初回:月額総賃料の50%~
- その他費用
初期費用を知りたいくらしーど24(初回のみ):16,500円
事務手数料(初回のみ):11,000円
除菌消臭(初回のみ):22,000円
鍵交換費用:8,800円
- 情報
情報登録日:2026/3/23
情報更新日:2026/3/23
次回更新予定日:2026/3/30
- 備考
- 現況: 空家 更新料: 新賃料の1.0ヶ月分 契約期間: 2年 管理人: 常駐 自社管理番号: B72308R483449
取扱い会社
- 取扱い会社
- 株式会社 リライフ 池袋店条件が近い物件も紹介してほしい
- 免許番号
- 国土交通大臣(1)第10792号
- 取引態様
- 仲介
- 所在地
- 東京都豊島区南池袋1-21-7 南池袋一丁目1番地ビル502
- 電話番号
- 03-6370-0632
- 営業時間
- 10:00~20:00
- 定休日
- なし 年末年始(12/27~1/4)
- 所属団体名
- 公益社団法⼈東京都宅地建物取引業協会、公益社団法⼈全国宅地建物取引業保証協会
おすすめ物件 (20件)
賃貸マンション
フェニックス池袋参番館

東京メトロ丸ノ内線 / 池袋駅 徒歩15分
築15年 / 8階建
東京都豊島区池袋4丁目17-13

10.5万円 / 管理費10,000円
敷
10.5万円礼
無料1K / 21㎡ / 3階
賃貸マンション
カスタリア要町

東京メトロ有楽町線 / 要町駅 徒歩2分
築21年 / 13階建
東京都豊島区西池袋5丁目

10.5万円 / 管理費7,000円
敷
10.5万円礼
10.5万円1K / 22.14㎡ / 6階
賃貸マンション
エル・ヴィエント・アース池袋

東京メトロ丸ノ内線 / 池袋駅 徒歩14分
築19年 / 7階建
東京都豊島区池袋本町2丁目2-23

9.4万円 / 管理費5,000円
敷
無料礼
9.4万円1K / 23.58㎡ / 3階
賃貸マンション
レオパレススペーシア東池袋

東京メトロ丸ノ内線 / 池袋駅 徒歩12分
築16年 / 3階建
東京都豊島区東池袋2丁目39-6

9.8万円 / 管理費5,500円
敷
無料礼
9.8万円1K / 20.28㎡ / 3階
賃貸マンション
KDXレジデンス池袋ウエスト
東京メトロ有楽町線 / 要町駅 徒歩14分
築6年 / 14階建
東京都板橋区中丸町
9.9万円 / 管理費15,000円
敷
無料礼
4.95万円1K / 25.5㎡ / 7階
賃貸マンション
RASIS 大山‐山手通り
山手線 / 池袋駅 徒歩20分
築18年 / 13階建
東京都板橋区大山金井町6-5
9.4万円 / 管理費15,000円
敷
9.4万円礼
無料1K / 24.65㎡ / 2階
賃貸マンション
Caldo池袋R

山手線 / 池袋駅 徒歩12分
築19年 / 13階建
東京都豊島区上池袋3丁目32-18

11万円 / 管理費19,000円
敷
無料礼
11万円ワンルーム / 29.12㎡ / 4階
賃貸マンション
プレール・ドゥーク目白

東京メトロ有楽町線 / 要町駅 徒歩16分
築15年 / 10階建
東京都豊島区目白5丁目8-11

8.8万円 / 管理費8,000円
敷
無料礼
8.8万円1K / 22.15㎡ / 10階
賃貸マンション
エクセリア池袋ウエスト

東京メトロ有楽町線 / 要町駅 徒歩8分
築22年 / 12階建
東京都板橋区南町15-5

9万円 / 管理費12,000円
敷
無料礼
9万円1K / 22.73㎡ / 2階
賃貸アパート
クレール東池袋

山手線 / 池袋駅 徒歩16分
築23年 / 地上10階地下6階建
東京都豊島区東池袋5丁目21-1

8.5万円 / 管理費3,000円
敷
8.5万円礼
8.5万円1K / 24.22㎡ / 2階
賃貸アパート
プリマ シエル 池袋

東京メトロ有楽町線 / 要町駅 徒歩5分
築5年 / 2階建
東京都豊島区池袋3丁目19-2

10.2万円 / 管理費5,000円
敷
10.2万円礼
10.2万円1K / 20.3㎡ / 2階
賃貸マンション
KDXレジデンス池袋要町

東京メトロ有楽町線 / 要町駅 徒歩14分
築2年 / 5階建
東京都板橋区中丸町21-3

11万円 / 管理費10,000円
敷
11万円礼
11万円1DK / 25.59㎡ / 4階
賃貸マンション
ヴァレッシア池袋シティ

山手線 / 池袋駅 徒歩9分
築14年 / 10階建
東京都豊島区池袋4丁目26-2

9.3万円 / 管理費10,000円
敷
9.3万円礼
9.3万円1K / 20.75㎡ / 2階
賃貸マンション
ヴェルデ池袋西

東京メトロ有楽町線 / 要町駅 徒歩5分
築15年 / 4階建
東京都豊島区高松1丁目

10.7万円 / 管理費5,000円
敷
10.7万円礼
10.7万円1K / 23.59㎡ / 2階
賃貸マンション
フェニックス池袋参番館

東京メトロ丸ノ内線 / 池袋駅 徒歩15分
築15年 / 8階建
東京都豊島区池袋4丁目17-13

10.5万円 / 管理費10,000円
敷
10.5万円礼
無料1K / 21㎡ / 3階
賃貸マンション
カスタリア要町

東京メトロ有楽町線 / 要町駅 徒歩2分
築21年 / 13階建
東京都豊島区西池袋5丁目

10.5万円 / 管理費7,000円
敷
10.5万円礼
10.5万円1K / 22.14㎡ / 6階
賃貸マンション
エル・ヴィエント・アース池袋

東京メトロ丸ノ内線 / 池袋駅 徒歩14分
築19年 / 7階建
東京都豊島区池袋本町2丁目2-23

9.4万円 / 管理費5,000円
敷
無料礼
9.4万円1K / 23.58㎡ / 3階
賃貸マンション
レオパレススペーシア東池袋

東京メトロ丸ノ内線 / 池袋駅 徒歩12分
築16年 / 3階建
東京都豊島区東池袋2丁目39-6

9.8万円 / 管理費5,500円
敷
無料礼
9.8万円1K / 20.28㎡ / 3階
賃貸マンション
KDXレジデンス池袋ウエスト
東京メトロ有楽町線 / 要町駅 徒歩14分
築6年 / 14階建
東京都板橋区中丸町
9.9万円 / 管理費15,000円
敷
無料礼
4.95万円1K / 25.5㎡ / 7階
賃貸マンション
RASIS 大山‐山手通り
山手線 / 池袋駅 徒歩20分
築18年 / 13階建
東京都板橋区大山金井町6-5
9.4万円 / 管理費15,000円
敷
9.4万円礼
無料1K / 24.65㎡ / 2階
賃貸マンション
Caldo池袋R

山手線 / 池袋駅 徒歩12分
築19年 / 13階建
東京都豊島区上池袋3丁目32-18

11万円 / 管理費19,000円
敷
無料礼
11万円ワンルーム / 29.12㎡ / 4階
賃貸マンション
プレール・ドゥーク目白

東京メトロ有楽町線 / 要町駅 徒歩16分
築15年 / 10階建
東京都豊島区目白5丁目8-11

8.8万円 / 管理費8,000円
敷
無料礼
8.8万円1K / 22.15㎡ / 10階
賃貸マンション
エクセリア池袋ウエスト

東京メトロ有楽町線 / 要町駅 徒歩8分
築22年 / 12階建
東京都板橋区南町15-5

9万円 / 管理費12,000円
敷
無料礼
9万円1K / 22.73㎡ / 2階
賃貸アパート
クレール東池袋

山手線 / 池袋駅 徒歩16分
築23年 / 地上10階地下6階建
東京都豊島区東池袋5丁目21-1

8.5万円 / 管理費3,000円
敷
8.5万円礼
8.5万円1K / 24.22㎡ / 2階
賃貸アパート
プリマ シエル 池袋

東京メトロ有楽町線 / 要町駅 徒歩5分
築5年 / 2階建
東京都豊島区池袋3丁目19-2

10.2万円 / 管理費5,000円
敷
10.2万円礼
10.2万円1K / 20.3㎡ / 2階
賃貸マンション
KDXレジデンス池袋要町

東京メトロ有楽町線 / 要町駅 徒歩14分
築2年 / 5階建
東京都板橋区中丸町21-3

11万円 / 管理費10,000円
敷
11万円礼
11万円1DK / 25.59㎡ / 4階
賃貸マンション
ヴァレッシア池袋シティ

山手線 / 池袋駅 徒歩9分
築14年 / 10階建
東京都豊島区池袋4丁目26-2

9.3万円 / 管理費10,000円
敷
9.3万円礼
9.3万円1K / 20.75㎡ / 2階
賃貸マンション
ヴェルデ池袋西

東京メトロ有楽町線 / 要町駅 徒歩5分
築15年 / 4階建
東京都豊島区高松1丁目

10.7万円 / 管理費5,000円
敷
10.7万円礼
10.7万円1K / 23.59㎡ / 2階
同じ最寄り駅 × 同じ特徴 で探す
同じ市区町村 × 同じ特徴 で探す






























