レニール本駒込1LDK/10階(東京都文京区 / 千石駅)の賃貸
1/18
1/18
18.5万円
初期費用を知りたい管理費15,000円
- 敷金
- 無料
- 保証金
- なし
- 礼金
- 無料
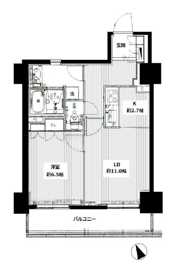
- 広さ
- 40.2㎡
- 階数
- 10階 / 12階建
- 間取り
- 1LDK
- 建物
- マンション (鉄骨鉄筋)
- 築年数
- 築20年
- 向き
- 北西
- 交通
- 都営三田線 / 千石駅徒歩2分
- 山手線 / 巣鴨駅徒歩9分
- 東京メトロ南北線 / 本駒込駅徒歩12分
- 住所
- 東京都文京区本駒込2
マルエツプチ(スーパー)まで490m
ピーコックストア(スーパー)まで100m
セブンイレブン(コンビニ)まで260m
ドラッグぱぱす(ドラッグストア)まで190m
千石郵便局(郵便局)まで350m
東洋大学白山キャンパス(大学・短大)まで1400m
無料で10秒! カンタンお問い合わせ
レニール本駒込
敷
無料礼
無料特徴
バス・トイレ別
2階以上
エアコン付き
ペット相談可
駐車場あり
室内洗濯機置場
オートロック
洗面所独立
- 入居条件
- 即入居可、フリーレント最新の空室状況が知りたい
- バス・トイレ
- バストイレ別、浴室乾燥機、温水洗浄便座、洗面所独立、洗面化粧台
- キッチン
- ガスコンロ対応、システムキッチン、2口コンロ
- セキュリティ
- オートロック、防犯カメラ
- 室内設備
- エアコン、クロゼット、フローリング、室内洗濯置、シューズボックス、光ファイバー、2面採光、出窓、CS、ネット専用回線、BSお部屋の詳しい情報を知りたい
- 部屋の特徴
- バルコニー、角住戸、二階以上写真を送ってほしい
- 共用部
- エレベーター、駐輪場、宅配ボックス
- その他の特徴
- 都市ガス
無料で10秒! カンタンお問い合わせ
レニール本駒込
敷
無料礼
無料同じ建物で掲載中の物件 (12件)
不動産会社からのコメント
ミニミニではLINEのやり取りでお部屋探しが可能です。
遠隔地のお客様や、忙しく店舗まで足を運ぶのが難しいお客様にも安心のオンラインシステム。弊社は来店不要で契約が可能です。オンライン接客・内見・IT重要事項説明等のご要望がございましたらご相談下さい。
その他
- 駐車/駐輪
- 要確認 / あり駐車可能な車種や台数を知りたい
- 入居時期
- 損保
- 2.2万円2年
- 保証人代行
- -
- その他費用
合計2.2万円(内訳:鍵交換費用2.2万円) 初期費用を知りたい- 情報
情報登録日:2025/11/15
情報更新日:2026/4/4
次回更新予定日:2026/4/20
- 備考
- 保証会社: 保証会社利用必 その他 家賃保証会社 初回保証料50% 毎月賃料等請求金額の合計1% その他:巡回管理/東京都文京区周辺、東京メトロ丸の内線・都営三田線沿線の賃貸物件のご紹介はミニミニ茗荷谷店にお任せください!【お部屋探しはミニミニ茗荷谷店で】初期費用のお見積りもお気軽にご相談ください。 / 条件: 二人入居可/フリーレント1ヶ月 2026年4月末までの契約開始に限る / ほか初期費用: 合計2.2万円(内訳:鍵交換費用2.2万円)
取扱い会社
- 取扱い会社
- 株式会社ミニミニ城北 茗荷谷店条件が近い物件も紹介してほしい
- 免許番号
- 国土交通大臣(5)第6346号
- 取引態様
- 一般媒介
- 所在地
- 東京都文京区小石川5丁目5-2 フロレゾン小石川5階
- 電話番号
- 03-5940-0132
- 営業時間
- 10:00~18:00
- 定休日
- 無し(3月31日まで)
- 所属団体名
- なし
おすすめ物件 (20件)
賃貸マンション
グローリオタワー巣鴨

山手線 / 巣鴨駅 徒歩14分
築20年 / 地上29階地下2階建
東京都豊島区巣鴨4丁目

18万円 / 管理費なし
敷
18万円礼
18万円1LDK / 46.32㎡ / 2階
賃貸マンション
文京区本駒込2丁目 12階建 2019年築

都営三田線 / 千石駅 徒歩9分
築7年 / 12階建
東京都文京区本駒込2丁目

16.5万円 / 管理費20,000円
敷
16.5万円礼
16.5万円1LDK / 40.37㎡ / 8階
賃貸マンション
ボナール白山
都営三田線 / 千石駅 徒歩6分
築7年 / 10階建
東京都文京区白山5
家賃カード決済可
18.5万円 / 管理費17,000円
敷
無料礼
18.5万円1LDK / 40.06㎡ / 8階
賃貸マンション
クレアール巣鴨

山手線 / 巣鴨駅 徒歩5分
築19年 / 11階建
東京都豊島区北大塚1丁目2-13

18.4万円 / 管理費15,000円
敷
無料礼
18.4万円2K / 41.92㎡ / 11階
賃貸マンション
AIFLAT文京本駒込
都営三田線 / 千石駅 徒歩12分
築4年 / 12階建
東京都文京区本駒込5丁目
家賃カード決済可
19.5万円 / 管理費10,000円
敷
無料礼
19.5万円1LDK / 40.99㎡ / 4階
賃貸マンション
Brillia ist 文京六義園
都営三田線 / 千石駅 徒歩4分
築3年 / 6階建
東京都文京区本駒込6丁目
家賃カード決済可
20.3万円 / 管理費15,000円
敷
20.3万円礼
無料1LDK / 39.59㎡ / 3階
賃貸マンション
都営三田線 千石駅 12階建 築21年
都営三田線 / 千石駅 徒歩2分
築20年 / 12階建
東京都文京区本駒込2
18.5万円 / 管理費15,000円
敷
無料礼
無料1LDK / 40.2㎡ / 8階
賃貸マンション
ザ・テラス千駄木
東京メトロ南北線 / 本駒込駅 徒歩8分
築15年 / 8階建
東京都文京区千駄木5丁目41-9
家賃カード決済可
16.8万円 / 管理費10,000円
敷
16.8万円礼
無料1LDK / 49.62㎡ / 3階
賃貸マンション
レニール本駒込
都営三田線 / 千石駅 徒歩2分
築20年 / 12階建
東京都文京区本駒込2丁目
家賃カード決済可
19.5万円 / 管理費15,000円
敷
無料礼
無料1DK / 46.46㎡ / 11階
賃貸マンション
ミュプレ巣鴨駅前
都営三田線 / 巣鴨駅 徒歩1分
築3年 / 14階建
東京都豊島区巣鴨3
17.1万円 / 管理費12,000円
敷
17.1万円礼
17.1万円1LDK / 32.5㎡ / 11階
賃貸マンション
PATH駒込(旧プライムアーバン駒込)

山手線 / 巣鴨駅 徒歩11分
築38年 / 4階建
東京都豊島区駒込6丁目12-15

20万円 / 管理費15,000円
敷
20万円礼
20万円2DK / 44.22㎡ / 4階
賃貸マンション
S-RESIDENCE駒込六義園

東京メトロ南北線 / 本駒込駅 徒歩14分
築4年 / 14階建
東京都文京区本駒込5丁目69-4

18.6万円 / 管理費15,000円
敷
無料礼
18.6万円1LDK / 40.21㎡ / 6階
賃貸マンション
デュオメゾン文京白山
東京メトロ南北線 / 本駒込駅 徒歩9分
新築 / 10階建
東京都文京区白山5
18.4万円 / 管理費10,000円
敷
18.4万円礼
無料1LDK / 30.48㎡ / 8階
賃貸マンション
LUMIEC BUNKYO SENGOKU
都営三田線 / 千石駅 徒歩10分
築2年 / 5階建
東京都文京区千石3
18.1万円 / 管理費15,000円
敷
無料礼
無料1LDK / 32.73㎡ / 3階
賃貸マンション
La Douceur巣鴨West

都営三田線 / 巣鴨駅 徒歩5分
築6年 / 5階建
東京都豊島区巣鴨3丁目18-3

19.5万円 / 管理費20,000円
敷
19.5万円礼
19.5万円1LDK / 39.12㎡ / 4階
賃貸マンション
クレヴィア文京白山

都営三田線 / 千石駅 徒歩6分
築17年 / 11階建
東京都文京区白山4丁目37-26

16.5万円 / 管理費なし
敷
8.25万円礼
24.75万円1LDK / 31.43㎡ / 6階
賃貸マンション
グローリオタワー巣鴨

山手線 / 巣鴨駅 徒歩14分
築20年 / 地上29階地下2階建
東京都豊島区巣鴨4丁目

18万円 / 管理費なし
敷
18万円礼
18万円1LDK / 46.32㎡ / 2階
賃貸マンション
文京区本駒込2丁目 12階建 2019年築

都営三田線 / 千石駅 徒歩9分
築7年 / 12階建
東京都文京区本駒込2丁目

16.5万円 / 管理費20,000円
敷
16.5万円礼
16.5万円1LDK / 40.37㎡ / 8階
賃貸マンション
ボナール白山
都営三田線 / 千石駅 徒歩6分
築7年 / 10階建
東京都文京区白山5
家賃カード決済可
18.5万円 / 管理費17,000円
敷
無料礼
18.5万円1LDK / 40.06㎡ / 8階
賃貸マンション
クレアール巣鴨

山手線 / 巣鴨駅 徒歩5分
築19年 / 11階建
東京都豊島区北大塚1丁目2-13

18.4万円 / 管理費15,000円
敷
無料礼
18.4万円2K / 41.92㎡ / 11階
賃貸マンション
AIFLAT文京本駒込
都営三田線 / 千石駅 徒歩12分
築4年 / 12階建
東京都文京区本駒込5丁目
家賃カード決済可
19.5万円 / 管理費10,000円
敷
無料礼
19.5万円1LDK / 40.99㎡ / 4階
賃貸マンション
Brillia ist 文京六義園
都営三田線 / 千石駅 徒歩4分
築3年 / 6階建
東京都文京区本駒込6丁目
家賃カード決済可
20.3万円 / 管理費15,000円
敷
20.3万円礼
無料1LDK / 39.59㎡ / 3階
賃貸マンション
都営三田線 千石駅 12階建 築21年
都営三田線 / 千石駅 徒歩2分
築20年 / 12階建
東京都文京区本駒込2
18.5万円 / 管理費15,000円
敷
無料礼
無料1LDK / 40.2㎡ / 8階
賃貸マンション
ザ・テラス千駄木
東京メトロ南北線 / 本駒込駅 徒歩8分
築15年 / 8階建
東京都文京区千駄木5丁目41-9
家賃カード決済可
16.8万円 / 管理費10,000円
敷
16.8万円礼
無料1LDK / 49.62㎡ / 3階
賃貸マンション
レニール本駒込
都営三田線 / 千石駅 徒歩2分
築20年 / 12階建
東京都文京区本駒込2丁目
家賃カード決済可
19.5万円 / 管理費15,000円
敷
無料礼
無料1DK / 46.46㎡ / 11階
賃貸マンション
ミュプレ巣鴨駅前
都営三田線 / 巣鴨駅 徒歩1分
築3年 / 14階建
東京都豊島区巣鴨3
17.1万円 / 管理費12,000円
敷
17.1万円礼
17.1万円1LDK / 32.5㎡ / 11階
賃貸マンション
PATH駒込(旧プライムアーバン駒込)

山手線 / 巣鴨駅 徒歩11分
築38年 / 4階建
東京都豊島区駒込6丁目12-15

20万円 / 管理費15,000円
敷
20万円礼
20万円2DK / 44.22㎡ / 4階
賃貸マンション
S-RESIDENCE駒込六義園

東京メトロ南北線 / 本駒込駅 徒歩14分
築4年 / 14階建
東京都文京区本駒込5丁目69-4

18.6万円 / 管理費15,000円
敷
無料礼
18.6万円1LDK / 40.21㎡ / 6階
賃貸マンション
デュオメゾン文京白山
東京メトロ南北線 / 本駒込駅 徒歩9分
新築 / 10階建
東京都文京区白山5
18.4万円 / 管理費10,000円
敷
18.4万円礼
無料1LDK / 30.48㎡ / 8階
賃貸マンション
LUMIEC BUNKYO SENGOKU
都営三田線 / 千石駅 徒歩10分
築2年 / 5階建
東京都文京区千石3
18.1万円 / 管理費15,000円
敷
無料礼
無料1LDK / 32.73㎡ / 3階
賃貸マンション
La Douceur巣鴨West

都営三田線 / 巣鴨駅 徒歩5分
築6年 / 5階建
東京都豊島区巣鴨3丁目18-3

19.5万円 / 管理費20,000円
敷
19.5万円礼
19.5万円1LDK / 39.12㎡ / 4階
賃貸マンション
クレヴィア文京白山

都営三田線 / 千石駅 徒歩6分
築17年 / 11階建
東京都文京区白山4丁目37-26

16.5万円 / 管理費なし
敷
8.25万円礼
24.75万円1LDK / 31.43㎡ / 6階







