大阪市淀川区田川3丁目 10階建 2026年築1LDK/8階(大阪府大阪市淀川区 / 塚本駅)の賃貸
1/13
1/13
10.5万円
初期費用を知りたい管理費10,000円
- 敷金
- 無料
- 保証金
- なし
- 礼金
- 無料
- 広さ
- 34.08㎡
- 階数
- 8階 / 10階建
- 間取り
- 1LDK
- 建物
- マンション (鉄筋コンクリート)
- 築年数
- 新築
- 向き
- 北
- 交通
- 東海道本線 / 塚本駅徒歩12分
- 住所
- 大阪府大阪市淀川区田川3丁目5-5
コンビニエンスストア 187m
スーパーマーケット 310m
ドラッグストア 398m
無料で10秒! カンタンお問い合わせ

大阪市淀川区田川3丁目 10階建 2026年築
敷
無料礼
無料特徴
バス・トイレ別
2階以上
エアコン付き
ペット相談可
駐車場あり
室内洗濯機置場
オートロック
洗面所独立
- 入居条件
- 二人入居可、ペット相談、礼金不要、敷金不要最新の空室状況が知りたい
- バス・トイレ
- 追焚機能浴室、シャワー付洗面化粧台、温水洗浄便座、浴室乾燥機、TV付浴室、専用バス、バストイレ別、シャワー
- キッチン
- カウンターキッチン、2口コンロ
- セキュリティ
- 防犯カメラ、オートロック
- 室内設備
- CS、BS、クロゼット、照明付、エアコン、フローリング、ネット使用料不要お部屋の詳しい情報を知りたい
- 部屋の特徴
- 二階以上写真を送ってほしい
- 共用部
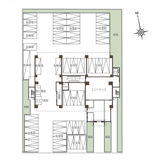
- 宅配ボックス、エレベーター、敷地内駐車場
- その他の特徴
- 公営水道、都市ガス、下水、駐車場あり
無料で10秒! カンタンお問い合わせ

大阪市淀川区田川3丁目 10階建 2026年築
敷
無料礼
無料同じ建物で掲載中の物件 (36件)
不動産会社からのコメント
敷金・礼金0円、仲介手数料無料!小型犬・猫飼育可!
2026年7月入居開始予定の新築マンション!オートロック、24時間ゴミ捨て場有り!インターネットWi-Fi無料で、犬猫飼育可能なおすすめ高級賃貸マンションです!
その他
- 駐車/駐輪
- 空有 費用: 27,500円 税: 税込み 空き数: 1 / なし駐車可能な車種や台数を知りたい
- 入居時期
- 2026年6月下旬最新の空室状況が知りたい
- 損保
- 住宅保険: 要
- 保証人代行
- 加入要 会社名: エポス 費用: 個人初回20% 更新料1%/月 、法人初回50% 更新料10,000円/年 ※総賃料15万円以上の時更新年1.4万円 ※大手法人で加入不可の時敷金賃料1ヶ月分要
- その他費用
初期費用を知りたい・退去時クリーニング代:38,500円
・PREGIO CLUB24(要加入):20,000円
・スマートロック登録料:16,500円
- 情報
情報登録日:2025/12/24
情報更新日:2026/5/12
次回更新予定日:2026/5/19
- 備考
- 現況: 空家 状態: 未入居 契約期間: 2年 総戸数: 108戸 自社管理番号: 13523006
取扱い会社
- 取扱い会社
- 株式会社ベイシス プレジオ不動産投資ギャラリー条件が近い物件も紹介してほしい
- 免許番号
- 国土交通大臣(1)第10343号
- 取引態様
- 貸主
- 所在地
- 大阪府大阪市中央区南船場2丁目3番2号南船場ハートビル1階
- 電話番号
- 06-6271-0239
- 営業時間
- 09:00~18:00
- 定休日
- 年中無休(年末年始・お盆など臨時休業あり)
- 所属団体名
- 近畿地区不動産公正取引協議会
おすすめ物件 (19件)
賃貸マンション
大阪市淀川区田川3丁目 10階建 2026年築

東海道本線 / 塚本駅 徒歩12分
新築 / 10階建
大阪府大阪市淀川区田川3丁目5-5

12.2万円 / 管理費10,000円
敷
無料礼
無料1LDK / 38.4㎡ / 7階
賃貸マンション
エスタート塚本

東海道本線 / 塚本駅 徒歩3分
築3年 / 12階建
大阪府大阪市西淀川区柏里1丁目14番14号

家賃カード決済可
8.5万円 / 管理費7,000円
敷
無料礼
無料1DK / 25.06㎡ / 2階
賃貸マンション
幸 court tsukamoto

東海道本線 / 塚本駅 徒歩6分
築9年 / 8階建
大阪府大阪市西淀川区柏里1丁目

9.1万円 / 管理費12,100円
敷
無料礼
18万円1LDK / 33.34㎡ / 5階
賃貸マンション
エスリードレジデンス ザ・グラン大阪ノア

東海道本線 / 塚本駅 徒歩7分
新築 / 15階建
大阪府大阪市西淀川区柏里2丁目

9.15万円 / 管理費15,000円
敷
無料礼
無料1LDK / 27.8㎡ / 3階
賃貸マンション
大阪市淀川区 11階建 2014年築

東海道本線 / 塚本駅 徒歩16分
築12年 / 11階建
大阪府大阪市淀川区新北野1丁目

8.6万円 / 管理費8,000円
敷
無料礼
8.6万円1LDK / 30.05㎡ / 11階
賃貸マンション
ザ・パークハビオ塚本

東海道本線 / 塚本駅 徒歩2分
築2年 / 14階建
大阪府大阪市淀川区塚本2丁目

9.7万円 / 管理費10,000円
敷
9.7万円礼
9.7万円1DK / 28.47㎡ / 7階
賃貸マンション
レジュールアッシュ塚本レジデンス

東海道本線 / 塚本駅 徒歩9分
築4年 / 10階建
大阪府大阪市西淀川区野里2丁目

11.3万円 / 管理費10,000円
敷
無料礼
11.3万円1LDK / 35㎡ / 9階
賃貸マンション
プレジオ御幣島

東海道本線 / 塚本駅 徒歩15分
築3年 / 15階建
大阪府大阪市西淀川区御幣島5丁目9-16

12.1万円 / 管理費15,000円
敷
無料礼
12.1万円1LDK / 41.27㎡ / 7階
賃貸マンション
大阪市 淀川区加島1丁目 11階建 2024年築

東海道本線 / 塚本駅 徒歩30分
築2年 / 11階建
大阪府大阪市 淀川区加島1丁目

8.8万円 / 管理費13,000円
敷
無料礼
無料1LDK / 32.47㎡ / 5階
賃貸アパート
Art Garden

東海道本線 / 塚本駅 徒歩17分
築4年 / 3階建
大阪府大阪市西淀川区姫里1丁目

10.2万円 / 管理費4,500円
敷
無料礼
15.3万円2DK / 41.92㎡ / 3階
賃貸マンション
ES-Grande大阪CityAvenue
東海道本線 / 塚本駅 徒歩15分
築17年 / 10階建
大阪府大阪市西淀川区姫里2
10.6万円 / 管理費10,000円
敷
無料礼
無料1LDK / 34.8㎡ / 7階
賃貸マンション
阪急京都線 十三駅 13階建 築2年
東海道本線 / 塚本駅 徒歩20分
築2年 / 13階建
大阪府大阪市淀川区十三本町2
9万円 / 管理費7,000円
敷
無料礼
無料1DK / 25.44㎡ / 3階
賃貸マンション
JR東海道本線 塚本駅 14階建 築2年
東海道本線 / 塚本駅 徒歩2分
築2年 / 14階建
大阪府大阪市淀川区塚本2
9.7万円 / 管理費10,000円
敷
9.7万円礼
9.7万円1DK / 28.47㎡ / 7階
賃貸マンション
大阪市 淀川区木川西3丁目 15階建 2020年築

東海道本線 / 塚本駅 徒歩30分
築6年 / 15階建
大阪府大阪市 淀川区木川西3丁目

8.51万円 / 管理費6,900円
敷
無料礼
9.2万円1LDK / 29.6㎡ / 11階
賃貸マンション
ソルテラスOSAKA塚本
東海道本線 / 塚本駅 徒歩8分
築1年 / 9階建
大阪府大阪市淀川区塚本2
10.4万円 / 管理費10,000円
敷
無料礼
10.4万円1LDK / 33.75㎡ / 5階
賃貸マンション
大阪市淀川区田川北3丁目 10階建 2026年築

東海道本線 / 塚本駅 徒歩14分
新築 / 10階建
大阪府大阪市淀川区田川北3丁目(住居表示未定)

10.5万円 / 管理費10,000円
敷
無料礼
10.5万円1LDK / 34.08㎡ / 8階
賃貸マンション
大阪市淀川区田川3丁目 10階建 2026年築

東海道本線 / 塚本駅 徒歩12分
新築 / 10階建
大阪府大阪市淀川区田川3丁目5-5

12.2万円 / 管理費10,000円
敷
無料礼
無料1LDK / 38.4㎡ / 7階
賃貸マンション
エスタート塚本

東海道本線 / 塚本駅 徒歩3分
築3年 / 12階建
大阪府大阪市西淀川区柏里1丁目14番14号

家賃カード決済可
8.5万円 / 管理費7,000円
敷
無料礼
無料1DK / 25.06㎡ / 2階
賃貸マンション
幸 court tsukamoto

東海道本線 / 塚本駅 徒歩6分
築9年 / 8階建
大阪府大阪市西淀川区柏里1丁目

9.1万円 / 管理費12,100円
敷
無料礼
18万円1LDK / 33.34㎡ / 5階
賃貸マンション
エスリードレジデンス ザ・グラン大阪ノア

東海道本線 / 塚本駅 徒歩7分
新築 / 15階建
大阪府大阪市西淀川区柏里2丁目

9.15万円 / 管理費15,000円
敷
無料礼
無料1LDK / 27.8㎡ / 3階
賃貸マンション
大阪市淀川区 11階建 2014年築

東海道本線 / 塚本駅 徒歩16分
築12年 / 11階建
大阪府大阪市淀川区新北野1丁目

8.6万円 / 管理費8,000円
敷
無料礼
8.6万円1LDK / 30.05㎡ / 11階
賃貸マンション
ザ・パークハビオ塚本

東海道本線 / 塚本駅 徒歩2分
築2年 / 14階建
大阪府大阪市淀川区塚本2丁目

9.7万円 / 管理費10,000円
敷
9.7万円礼
9.7万円1DK / 28.47㎡ / 7階
賃貸マンション
レジュールアッシュ塚本レジデンス

東海道本線 / 塚本駅 徒歩9分
築4年 / 10階建
大阪府大阪市西淀川区野里2丁目

11.3万円 / 管理費10,000円
敷
無料礼
11.3万円1LDK / 35㎡ / 9階
賃貸マンション
プレジオ御幣島

東海道本線 / 塚本駅 徒歩15分
築3年 / 15階建
大阪府大阪市西淀川区御幣島5丁目9-16

12.1万円 / 管理費15,000円
敷
無料礼
12.1万円1LDK / 41.27㎡ / 7階
賃貸マンション
大阪市 淀川区加島1丁目 11階建 2024年築

東海道本線 / 塚本駅 徒歩30分
築2年 / 11階建
大阪府大阪市 淀川区加島1丁目

8.8万円 / 管理費13,000円
敷
無料礼
無料1LDK / 32.47㎡ / 5階
賃貸アパート
Art Garden

東海道本線 / 塚本駅 徒歩17分
築4年 / 3階建
大阪府大阪市西淀川区姫里1丁目

10.2万円 / 管理費4,500円
敷
無料礼
15.3万円2DK / 41.92㎡ / 3階
賃貸マンション
ES-Grande大阪CityAvenue
東海道本線 / 塚本駅 徒歩15分
築17年 / 10階建
大阪府大阪市西淀川区姫里2
10.6万円 / 管理費10,000円
敷
無料礼
無料1LDK / 34.8㎡ / 7階
賃貸マンション
阪急京都線 十三駅 13階建 築2年
東海道本線 / 塚本駅 徒歩20分
築2年 / 13階建
大阪府大阪市淀川区十三本町2
9万円 / 管理費7,000円
敷
無料礼
無料1DK / 25.44㎡ / 3階
賃貸マンション
JR東海道本線 塚本駅 14階建 築2年
東海道本線 / 塚本駅 徒歩2分
築2年 / 14階建
大阪府大阪市淀川区塚本2
9.7万円 / 管理費10,000円
敷
9.7万円礼
9.7万円1DK / 28.47㎡ / 7階
賃貸マンション
大阪市 淀川区木川西3丁目 15階建 2020年築

東海道本線 / 塚本駅 徒歩30分
築6年 / 15階建
大阪府大阪市 淀川区木川西3丁目

8.51万円 / 管理費6,900円
敷
無料礼
9.2万円1LDK / 29.6㎡ / 11階
賃貸マンション
ソルテラスOSAKA塚本
東海道本線 / 塚本駅 徒歩8分
築1年 / 9階建
大阪府大阪市淀川区塚本2
10.4万円 / 管理費10,000円
敷
無料礼
10.4万円1LDK / 33.75㎡ / 5階
賃貸マンション
大阪市淀川区田川北3丁目 10階建 2026年築

東海道本線 / 塚本駅 徒歩14分
新築 / 10階建
大阪府大阪市淀川区田川北3丁目(住居表示未定)

10.5万円 / 管理費10,000円
敷
無料礼
10.5万円1LDK / 34.08㎡ / 8階
同じ最寄り駅 で探す
同じ最寄り駅 × 同じ特徴 で探す
同じ市区町村 × 同じ特徴 で探す














































)






