世田谷区 3階建 2025年築2LDK/2階/1(東京都世田谷区 / 新代田駅)の賃貸
1/22
1/22
29.8万円
初期費用を知りたい管理費12,000円
家賃割引サービス適用で最大2年間4.8万円割引
- 敷金
- 29.8万円
- 保証金
- なし
- 礼金
- 29.8万円
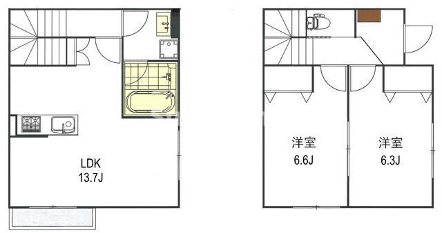
- 広さ
- 66.64㎡
- 階数
- 2階 / 3階建
- 間取り
- 2LDK
- 建物
- マンション (鉄筋コンクリート)
- 築年数
- 新築
- 向き
- 東
- 交通
- 京王井の頭線 / 新代田駅徒歩2分
- 小田急小田原線 / 下北沢駅徒歩5分
- 住所
- 東京都世田谷区代田5丁目25-10
コンビニエンスストア 220m
スーパーマーケット 380m
ドラッグストア 400m
オリジン弁当世田谷代田店 610m
無料で10秒! カンタンお問い合わせ
世田谷区 3階建 2025年築
敷
29.8万円礼
29.8万円特徴
バス・トイレ別
2階以上
エアコン付き
ペット相談可
駐車場あり
室内洗濯機置場
オートロック
洗面所独立
- 入居条件
- 保証人不要、初期費用カード決済可、即入居可最新の空室状況が知りたい
- バス・トイレ
- 専用バス、追焚機能浴室、浴室乾燥機、シャワー、専用トイレ、温水洗浄便座、バストイレ別、シャワー付洗面化粧台、洗面所独立
- キッチン
- ガスコンロ対応、2口コンロ、3口以上コンロ、システムキッチン
- 室内設備
- CATV、インターネット対応、エアコン、クロゼット、シューズボックス、室内洗濯置お部屋の詳しい情報を知りたい
- 部屋の特徴
- バルコニー、眺望が良い、二階以上写真を送ってほしい
- その他の特徴
- 下水、公営水道、都市ガス
無料で10秒! カンタンお問い合わせ
世田谷区 3階建 2025年築
敷
29.8万円礼
29.8万円不動産会社からのコメント
★お問い合わせ、ご内見のご予約先は【タウンハウジング】になります★お間違いなく♪
★お部屋探しは地域密着のタウンハウジングにお任せ下さい★2023年度全国仲介件数第2位(全国賃貸新聞2024掲載)★毎日新着情報更新中★
その他
- 駐車/駐輪
- 要確認 / なし駐車可能な車種や台数を知りたい
- 入居時期
- 損保
- 住宅保険: 不要
- 保証人代行
- 加入要 会社名: その他 費用: 初回保証料:50% 事務手数料:1%/毎月更新手数料:10,000円/年
- その他費用
初期費用を知りたい火災保険料/月:1,200円
- 情報
情報登録日:2025/9/30
情報更新日:2025/10/11
次回更新予定日:2025/12/25
- 備考
- 現況: 空家 状態: 未入居 更新料: 新賃料の1.0ヶ月分 契約期間: 2年
取扱い会社
- 取扱い会社
- 株式会社タウンハウジング 千歳烏山店条件が近い物件も紹介してほしい
- 免許番号
- 国土交通大臣(1)9926号
- 取引態様
- 仲介
- 所在地
- 東京都世田谷区南烏山6丁目 5-15 中央駅前ビル1F
- 電話番号
- 03-3305-3411
- 所属団体名
- 東京都宅地建物取引業協会
おすすめ物件 (1件)
賃貸マンション
3ROOM代田

京王井の頭線 / 新代田駅 徒歩2分
新築 / 3階建
東京都世田谷区代田5丁目

28.8万円 / 管理費12,000円
敷
28.8万円礼
28.8万円2LDK / 66.64㎡ / 2階
賃貸マンション
3ROOM代田

京王井の頭線 / 新代田駅 徒歩2分
新築 / 3階建
東京都世田谷区代田5丁目

28.8万円 / 管理費12,000円
敷
28.8万円礼
28.8万円2LDK / 66.64㎡ / 2階
同じ最寄り駅 × 同じ特徴 で探す
同じ市区町村 × 同じ特徴 で探す


