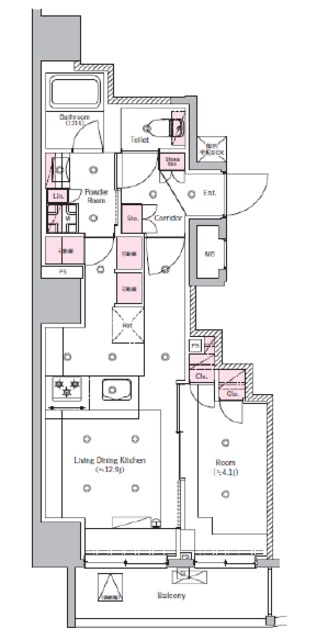
シーフォルム板橋31LDK/5階/502(東京都板橋区 / 新板橋駅)の賃貸
1/27
1/27
21.2万円
初期費用を知りたい管理費12,000円
- 敷金
- 無料
- 保証金
- なし
- 礼金
- 無料
- 広さ
- 41.2㎡
- 階数
- 5階 / 13階建
- 間取り
- 1LDK
- 建物
- マンション (鉄筋コンクリート)
- 築年数
- 新築
- 向き
- 北
- 交通
- 都営三田線 / 新板橋駅徒歩2分
- 埼京線 / 板橋駅徒歩6分
- 東武東上線 / 下板橋駅徒歩8分
- 住所
- 東京都板橋区板橋1丁目47-10
コープ 板橋駅前店 185m
ファミリーマート 板橋駅西口店 109m
ウエルシア板橋新板橋店 79m
TSUTAYA JR板橋駅前店 198m
中華食堂日高屋板橋駅西口店 182m
板橋区立板橋第五中学校 821m
無料で10秒! カンタンお問い合わせ

シーフォルム板橋3
敷
無料礼
無料特徴
バス・トイレ別
2階以上
エアコン付き
ペット相談可
駐車場あり
室内洗濯機置場
オートロック
洗面所独立
- 入居条件
- 二人入居相談、子供可、事務所不可、ペット相談、ルームシェア不可、敷金不要、礼金不要、即入居可最新の空室状況が知りたい
- バス・トイレ
- 洗面台、バストイレ別、オートバス、浴室乾燥機、追焚機能浴室、脱衣所、温水洗浄便座、洗面所独立
- キッチン
- ガスコンロ対応、1口コンロ、グリル付、カウンターキッチン、システムキッチン
- セキュリティ
- 防犯カメラ、オートロック
- 室内設備
- 乾燥機付、インターネット対応、ネット使用料不要、エアコン、室内洗濯置、フローリング、全居室フローリングお部屋の詳しい情報を知りたい
- 部屋の特徴
- 二階以上、角住戸、バルコニー写真を送ってほしい
- 共用部
- 敷地内ごみ置き場、宅配ボックス、エレベーター、バイク置場、駐輪場
- その他の特徴
- 駐車場あり、都市ガス、公営水道、下水、外壁タイル張り
無料で10秒! カンタンお問い合わせ

シーフォルム板橋3
敷
無料礼
無料不動産会社からのコメント
平置き月額550円4台/ラック式屋内19台屋外16台上段月額330円下段月額550円ミニバイク置き場月額3300円屋根なし2台/退去時清掃費A/B/Ctype52800円D/E/F/Gtype82500円火災保険料A/B/Ctype20000円2年D/E/F/Gtype24000円ペット飼育小型犬または猫2匹まで可(敷金1ヶ月追加)現況優先/駐輪場代借主負担(使用時)/鍵交換代借主負担
その他
- 駐車/駐輪
- 近隣 費用: 33,000円(税込) 距離: 234m / あり駐車可能な車種や台数を知りたい
- 入居時期
- 損保
- 住宅保険: 要
- 保証人代行
- 保証人代行: 必須 保証人代行会社: その他 初回:賃料等の40%、以降毎年:10000円(賃料等15万円以上:14000円)
- その他費用
- 情報
情報登録日:2025/11/21
情報更新日:2025/12/11
次回更新予定日:2025/12/27
- 備考
- 82500円火災保険料A/B/Ctype20000円2年D/E/F/Gtype24000円ペット飼育小型犬または猫2匹まで可(敷金1ヶ月追加)現況優先/駐輪場代借主負担(使用時)/鍵交換代借主負担 契約期間: 2年
取扱い会社
- 取扱い会社
- アエラス十条店 (株式会社アエラス)条件が近い物件も紹介してほしい
- 免許番号
- 国土交通大臣(3)第8522号
- 取引態様
- 仲介
- 所在地
- 東京都北区上十条2丁目30-2 協栄堂ビル 2階・4階・5階
- 電話番号
- 03-5963-5444
- 営業時間
- 10:00~19:00
- 定休日
- 年中無休(年末年始などを除く)
- 所属団体名
- 全日本不動産協会
おすすめ物件 (8件)
賃貸マンション
S-RESIDENCE板橋大山brim

東武東上線 / 下板橋駅 徒歩12分
新築 / 11階建
東京都板橋区熊野町

19.45万円 / 管理費18,000円
敷
無料礼
19.45万円1SLDK / 47.5㎡ / 6階
賃貸マンション
豊島区池袋本町3丁目 5階建 2024年築

東武東上線 / 下板橋駅 徒歩7分
築1年 / 5階建
東京都豊島区池袋本町3丁目

21.3万円 / 管理費15,000円
敷
無料礼
無料1LDK / 41.28㎡ / 3階
賃貸マンション
パークアクシス新板橋ウエスト
都営三田線 / 新板橋駅 徒歩2分
築18年 / 地上14階地下1階建
東京都板橋区板橋4
19.9万円 / 管理費10,000円
敷
19.9万円礼
19.9万円2DK / 50.82㎡ / 12階
賃貸マンション
北区滝野川7丁目 6階建 2025年築

埼京線 / 板橋駅 徒歩5分
新築 / 6階建
東京都北区滝野川7丁目

22.3万円 / 管理費10,000円
敷
無料礼
無料1K / 42.33㎡ / 6階
賃貸マンション
シーフォルム板橋3

都営三田線 / 新板橋駅 徒歩2分
新築 / 13階建
東京都板橋区板橋1丁目47-10

21.15万円 / 管理費12,000円
敷
無料礼
無料1LDK / 41.2㎡ / 4階
賃貸マンション
SーRESIDENCE板橋大山BRIM
)
東武東上線 / 下板橋駅 徒歩9分
新築 / 11階建
東京都板橋区熊野町15-3
)
19.8万円 / 管理費18,000円
敷
無料礼
19.8万円1SLDK / 47.5㎡ / 6階
賃貸マンション
S-RESIDENCE板橋大山brim

東武東上線 / 下板橋駅 徒歩12分
新築 / 11階建
東京都板橋区熊野町

19.45万円 / 管理費18,000円
敷
無料礼
19.45万円1SLDK / 47.5㎡ / 6階
賃貸マンション
豊島区池袋本町3丁目 5階建 2024年築

東武東上線 / 下板橋駅 徒歩7分
築1年 / 5階建
東京都豊島区池袋本町3丁目

21.3万円 / 管理費15,000円
敷
無料礼
無料1LDK / 41.28㎡ / 3階
賃貸マンション
パークアクシス新板橋ウエスト
都営三田線 / 新板橋駅 徒歩2分
築18年 / 地上14階地下1階建
東京都板橋区板橋4
19.9万円 / 管理費10,000円
敷
19.9万円礼
19.9万円2DK / 50.82㎡ / 12階
賃貸マンション
北区滝野川7丁目 6階建 2025年築

埼京線 / 板橋駅 徒歩5分
新築 / 6階建
東京都北区滝野川7丁目

22.3万円 / 管理費10,000円
敷
無料礼
無料1K / 42.33㎡ / 6階
賃貸マンション
シーフォルム板橋3

都営三田線 / 新板橋駅 徒歩2分
新築 / 13階建
東京都板橋区板橋1丁目47-10

21.15万円 / 管理費12,000円
敷
無料礼
無料1LDK / 41.2㎡ / 4階
賃貸マンション
SーRESIDENCE板橋大山BRIM
)
東武東上線 / 下板橋駅 徒歩9分
新築 / 11階建
東京都板橋区熊野町15-3
)
19.8万円 / 管理費18,000円
敷
無料礼
19.8万円1SLDK / 47.5㎡ / 6階
































