S-RESIDENCE阿波座West1K/12階/1201(大阪府大阪市西区 / 阿波座駅)の賃貸
1/26
1/26
7.95万円
初期費用を知りたい管理費11,000円
- 敷金
- 無料
- 保証金
- なし
- 礼金
- 7.95万円
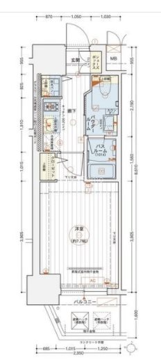
- 広さ
- 25.77㎡
- 階数
- 12階 / 15階建
- 間取り
- 1K
- 建物
- マンション (鉄筋コンクリート)
- 築年数
- 築7年
- 向き
- 北西
- 交通
- 地下鉄中央線 / 阿波座駅徒歩8分
- 地下鉄千日前線 / 西長堀駅徒歩11分
- 住所
- 大阪府大阪市西区本田1丁目6-22
コンビニエンスストア 211m
スーパーマーケット 565m
ドラッグストア 566m
無料で10秒! カンタンお問い合わせ

S-RESIDENCE阿波座West
敷
無料礼
7.95万円特徴
バス・トイレ別
2階以上
エアコン付き
ペット相談可
駐車場あり
室内洗濯機置場
オートロック
洗面所独立
- 入居条件
- ペット相談、敷金不要最新の空室状況が知りたい
- バス・トイレ
- 追焚機能浴室、温水洗浄便座、浴室乾燥機、洗面所独立、専用バス、バストイレ別、シャワー
- キッチン
- システムキッチン、2口コンロ
- セキュリティ
- 防犯カメラ、オートロック
- 室内設備
- CATV、CS、BS、全居室収納、クロゼット、シューズボックス、エアコン、室内洗濯置、フローリングお部屋の詳しい情報を知りたい
- 部屋の特徴
- バルコニー、二階以上写真を送ってほしい
- 共用部
- 宅配ボックス、駐輪場、バイク置場、エレベーター
- その他の特徴
- 公営水道、都市ガス、下水
無料で10秒! カンタンお問い合わせ

S-RESIDENCE阿波座West
敷
無料礼
7.95万円同じ建物で掲載中の物件 (8件)
不動産会社からのコメント
梅田駅5分圏内に店舗がございます。平日のお仕事終わりでもお気軽にご来店お待ちしております♪
その他
- 駐車/駐輪
- 無 / あり駐車可能な車種や台数を知りたい
- 入居時期
- 損保
- 住宅保険: 要
- 保証人代行
- 不要
- その他費用
- 情報
情報登録日:2026/4/23
情報更新日:2026/4/27
次回更新予定日:2026/5/4
- 備考
- 現況: 空家 契約期間: 1年 総戸数: 140戸 その他交通: JR大阪環状線大正駅 徒歩19分 自社管理番号: 14257284
取扱い会社
- 取扱い会社
- 株式会社レオンワークス 大阪賃貸事業部条件が近い物件も紹介してほしい
- 免許番号
- 大阪府知事免許(4)第52620号
- 取引態様
- 仲介
- 所在地
- 大阪府大阪市北区梅田1丁目12-17 JRE梅田スクエアビル5階
- 電話番号
- 06-4256-7025
- 定休日
- 年末年始のみ
- 所属団体名
- 社団法人 全日本不動産協会会員
おすすめ物件 (20件)
賃貸マンション
大阪市西区立売堀5丁目 15階建 2023年築

地下鉄中央線 / 阿波座駅 徒歩3分
築3年 / 15階建
大阪府大阪市西区立売堀5丁目

9.4万円 / 管理費8,000円
敷
無料礼
無料ワンルーム / 24.81㎡ / 13階
賃貸マンション
W.O.B HONMACHI-WEST

地下鉄中央線 / 阿波座駅 徒歩1分
築19年 / 9階建
大阪府大阪市西区立売堀3丁目

8.25万円 / 管理費13,000円
敷
無料礼
8.25万円1K / 26.3㎡ / 8階
賃貸マンション
W.O.B SHINMACHI

地下鉄千日前線 / 西長堀駅 徒歩1分
築19年 / 10階建
大阪府大阪市西区新町4丁目

8万円 / 管理費11,000円
敷
無料礼
8万円1K / 30.63㎡ / 7階
賃貸マンション
エステムコート南堀江ⅢCHURA

地下鉄長堀鶴見緑地線 / 西長堀駅 徒歩4分
築9年 / 15階建
大阪府大阪市西区南堀江3丁目

7.6万円 / 管理費10,010円
敷
無料礼
無料1K / 24.91㎡ / 12階
賃貸マンション
S-RESIDENCE阿波座bouncy

地下鉄中央線 / 阿波座駅 徒歩3分
築1年 / 15階建
大阪府大阪市西区江之子島1丁目

9.2万円 / 管理費10,000円
敷
無料礼
無料1K / 23.39㎡ / 11階
賃貸マンション
セレニテ阿波座ミラク

地下鉄中央線 / 阿波座駅 徒歩7分
築2年 / 15階建
大阪府大阪市西区川口3丁目

9.9万円 / 管理費10,200円
敷
無料礼
無料1LDK / 29.23㎡ / 11階
賃貸マンション
エステムコート中之島GATEⅡ

地下鉄千日前線 / 阿波座駅 徒歩6分
築7年 / 12階建
大阪府大阪市西区川口2丁目

6.2万円 / 管理費8,950円
敷
無料礼
無料1K / 20.85㎡ / 2階
賃貸マンション
エステムコート大阪WESTII

地下鉄千日前線 / 阿波座駅 徒歩13分
築5年 / 13階建
大阪府大阪市西区川口4丁目

6.4万円 / 管理費5,500円
敷
無料礼
6.95万円1K / 22.04㎡ / 7階
賃貸マンション
Dolce(ドルチェ)

地下鉄長堀鶴見緑地線 / 西長堀駅 徒歩3分
築6年 / 11階建
大阪府大阪市西区北堀江4丁目

6.15万円 / 管理費8,000円
敷
無料礼
9.225万円1K / 20.74㎡ / 8階
賃貸マンション
エスリード中之島ザ・コア

地下鉄千日前線 / 阿波座駅 徒歩11分
築6年 / 9階建
大阪府大阪市西区川口3丁目

6.5万円 / 管理費5,000円
敷
無料礼
6.5万円1K / 21.23㎡ / 2階
賃貸マンション
エステムコート中之島ゲート2

地下鉄千日前線 / 阿波座駅 徒歩8分
築7年 / 12階建
大阪府大阪市西区川口2丁目

6.4万円 / 管理費8,950円
敷
無料礼
無料1K / 20.85㎡ / 9階
賃貸マンション
アーバネックス西長堀

地下鉄長堀鶴見緑地線 / 西長堀駅 徒歩5分
築18年 / 15階建
大阪府大阪市西区新町4丁目

7.2万円 / 管理費12,000円
敷
無料礼
無料1K / 25.05㎡ / 6階
賃貸マンション
サニーハウス南堀江

地下鉄長堀鶴見緑地線 / 西長堀駅 徒歩7分
築13年 / 9階建
大阪府大阪市西区南堀江4丁目

9.7万円 / 管理費8,000円
敷
無料礼
19.4万円1DK / 30.03㎡ / 8階
賃貸マンション
LAV心斎橋WEST

地下鉄長堀鶴見緑地線 / 西長堀駅 徒歩5分
築16年 / 15階建
大阪府大阪市西区立売堀4丁目

6.9万円 / 管理費9,000円
敷
無料礼
6.9万円1K / 24.9㎡ / 15階
賃貸マンション
ブリリアント大阪西

地下鉄中央線 / 阿波座駅 徒歩2分
築9年 / 15階建
大阪府大阪市西区立売堀4丁目

6.05万円 / 管理費6,600円
敷
6.05万円礼
6.05万円1K / 21.65㎡ / 7階
賃貸マンション
レオンコンフォート阿波座西

地下鉄千日前線 / 阿波座駅 徒歩10分
築7年 / 11階建
大阪府大阪市西区川口3丁目

6万円 / 管理費8,000円
敷
無料礼
6万円1K / 22.42㎡ / 4階
賃貸マンション
エスリード阿波座サウスプレイス

地下鉄千日前線 / 阿波座駅 徒歩5分
築14年 / 13階建
大阪府大阪市西区立売堀3丁目

6.1万円 / 管理費5,000円
敷
無料礼
6.1万円1K / 21.5㎡ / 5階
賃貸マンション
アーデンタワー靱公園

地下鉄中央線 / 阿波座駅 徒歩2分
築20年 / 13階建
大阪府大阪市西区靱本町3丁目10番27号

9.1万円 / 管理費10,000円
敷
無料礼
無料1K / 29.66㎡ / 12階
賃貸マンション
エスリード阿波座プライムコート

地下鉄千日前線 / 阿波座駅 徒歩7分
築3年 / 15階建
大阪府大阪市西区川口3丁目3-5

家賃カード決済可
6.27万円 / 管理費5,500円
敷
無料礼
6.82万円1K / 21.09㎡ / 4階
賃貸マンション
メインステージ京町堀

地下鉄千日前線 / 阿波座駅 徒歩9分
築9年 / 11階建
大阪府大阪市西区京町堀2丁目

7.2万円 / 管理費8,000円
敷
無料礼
7.2万円1K / 22.26㎡ / 11階
賃貸マンション
大阪市西区立売堀5丁目 15階建 2023年築

地下鉄中央線 / 阿波座駅 徒歩3分
築3年 / 15階建
大阪府大阪市西区立売堀5丁目

9.4万円 / 管理費8,000円
敷
無料礼
無料ワンルーム / 24.81㎡ / 13階
賃貸マンション
W.O.B HONMACHI-WEST

地下鉄中央線 / 阿波座駅 徒歩1分
築19年 / 9階建
大阪府大阪市西区立売堀3丁目

8.25万円 / 管理費13,000円
敷
無料礼
8.25万円1K / 26.3㎡ / 8階
賃貸マンション
W.O.B SHINMACHI

地下鉄千日前線 / 西長堀駅 徒歩1分
築19年 / 10階建
大阪府大阪市西区新町4丁目

8万円 / 管理費11,000円
敷
無料礼
8万円1K / 30.63㎡ / 7階
賃貸マンション
エステムコート南堀江ⅢCHURA

地下鉄長堀鶴見緑地線 / 西長堀駅 徒歩4分
築9年 / 15階建
大阪府大阪市西区南堀江3丁目

7.6万円 / 管理費10,010円
敷
無料礼
無料1K / 24.91㎡ / 12階
賃貸マンション
S-RESIDENCE阿波座bouncy

地下鉄中央線 / 阿波座駅 徒歩3分
築1年 / 15階建
大阪府大阪市西区江之子島1丁目

9.2万円 / 管理費10,000円
敷
無料礼
無料1K / 23.39㎡ / 11階
賃貸マンション
セレニテ阿波座ミラク

地下鉄中央線 / 阿波座駅 徒歩7分
築2年 / 15階建
大阪府大阪市西区川口3丁目

9.9万円 / 管理費10,200円
敷
無料礼
無料1LDK / 29.23㎡ / 11階
賃貸マンション
エステムコート中之島GATEⅡ

地下鉄千日前線 / 阿波座駅 徒歩6分
築7年 / 12階建
大阪府大阪市西区川口2丁目

6.2万円 / 管理費8,950円
敷
無料礼
無料1K / 20.85㎡ / 2階
賃貸マンション
エステムコート大阪WESTII

地下鉄千日前線 / 阿波座駅 徒歩13分
築5年 / 13階建
大阪府大阪市西区川口4丁目

6.4万円 / 管理費5,500円
敷
無料礼
6.95万円1K / 22.04㎡ / 7階
賃貸マンション
Dolce(ドルチェ)

地下鉄長堀鶴見緑地線 / 西長堀駅 徒歩3分
築6年 / 11階建
大阪府大阪市西区北堀江4丁目

6.15万円 / 管理費8,000円
敷
無料礼
9.225万円1K / 20.74㎡ / 8階
賃貸マンション
エスリード中之島ザ・コア

地下鉄千日前線 / 阿波座駅 徒歩11分
築6年 / 9階建
大阪府大阪市西区川口3丁目

6.5万円 / 管理費5,000円
敷
無料礼
6.5万円1K / 21.23㎡ / 2階
賃貸マンション
エステムコート中之島ゲート2

地下鉄千日前線 / 阿波座駅 徒歩8分
築7年 / 12階建
大阪府大阪市西区川口2丁目

6.4万円 / 管理費8,950円
敷
無料礼
無料1K / 20.85㎡ / 9階
賃貸マンション
アーバネックス西長堀

地下鉄長堀鶴見緑地線 / 西長堀駅 徒歩5分
築18年 / 15階建
大阪府大阪市西区新町4丁目

7.2万円 / 管理費12,000円
敷
無料礼
無料1K / 25.05㎡ / 6階
賃貸マンション
サニーハウス南堀江

地下鉄長堀鶴見緑地線 / 西長堀駅 徒歩7分
築13年 / 9階建
大阪府大阪市西区南堀江4丁目

9.7万円 / 管理費8,000円
敷
無料礼
19.4万円1DK / 30.03㎡ / 8階
賃貸マンション
LAV心斎橋WEST

地下鉄長堀鶴見緑地線 / 西長堀駅 徒歩5分
築16年 / 15階建
大阪府大阪市西区立売堀4丁目

6.9万円 / 管理費9,000円
敷
無料礼
6.9万円1K / 24.9㎡ / 15階
賃貸マンション
ブリリアント大阪西

地下鉄中央線 / 阿波座駅 徒歩2分
築9年 / 15階建
大阪府大阪市西区立売堀4丁目

6.05万円 / 管理費6,600円
敷
6.05万円礼
6.05万円1K / 21.65㎡ / 7階
賃貸マンション
レオンコンフォート阿波座西

地下鉄千日前線 / 阿波座駅 徒歩10分
築7年 / 11階建
大阪府大阪市西区川口3丁目

6万円 / 管理費8,000円
敷
無料礼
6万円1K / 22.42㎡ / 4階
賃貸マンション
エスリード阿波座サウスプレイス

地下鉄千日前線 / 阿波座駅 徒歩5分
築14年 / 13階建
大阪府大阪市西区立売堀3丁目

6.1万円 / 管理費5,000円
敷
無料礼
6.1万円1K / 21.5㎡ / 5階
賃貸マンション
アーデンタワー靱公園

地下鉄中央線 / 阿波座駅 徒歩2分
築20年 / 13階建
大阪府大阪市西区靱本町3丁目10番27号

9.1万円 / 管理費10,000円
敷
無料礼
無料1K / 29.66㎡ / 12階
賃貸マンション
エスリード阿波座プライムコート

地下鉄千日前線 / 阿波座駅 徒歩7分
築3年 / 15階建
大阪府大阪市西区川口3丁目3-5

家賃カード決済可
6.27万円 / 管理費5,500円
敷
無料礼
6.82万円1K / 21.09㎡ / 4階
賃貸マンション
メインステージ京町堀

地下鉄千日前線 / 阿波座駅 徒歩9分
築9年 / 11階建
大阪府大阪市西区京町堀2丁目

7.2万円 / 管理費8,000円
敷
無料礼
7.2万円1K / 22.26㎡ / 11階
































