Long Island Ebisu1K/5階(東京都渋谷区 / 恵比寿駅)の賃貸
1/17
1/17
17.8万円
初期費用を知りたい管理費10,000円
- 敷金
- 17.8万円
- 保証金
- なし
- 礼金
- 17.8万円
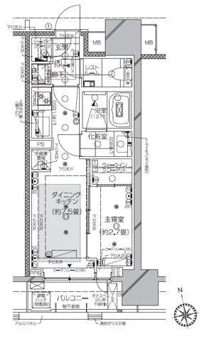
- 広さ
- 28.38㎡
- 階数
- 5階 / 13階建
- 間取り
- 1K
- 建物
- マンション (鉄筋コンクリート)
- 築年数
- 築9年
- 向き
- 南
- 交通
- 山手線 / 恵比寿駅徒歩4分
- 東急東横線 / 代官山駅徒歩13分
- 住所
- 東京都渋谷区恵比寿1丁目22-21
コンビニエンスストア 927m
スーパーマーケット 1212m
無料で10秒! カンタンお問い合わせ

Long Island Ebisu
敷
17.8万円礼
17.8万円特徴
バス・トイレ別
2階以上
エアコン付き
ペット相談可
駐車場あり
室内洗濯機置場
オートロック
洗面所独立
- 入居条件
- 保証人不要、初期費用カード決済可最新の空室状況が知りたい
- バス・トイレ
- 追焚機能浴室、温水洗浄便座、浴室乾燥機、洗面所独立、専用バス、バストイレ別
- キッチン
- システムキッチン、2口コンロ
- セキュリティ
- 防犯カメラ、オートロック
- 室内設備
- CS、BS、クロゼット、シューズボックス、照明付、エアコン、室内洗濯置、フローリングお部屋の詳しい情報を知りたい
- 部屋の特徴
- 角住戸、バルコニー、二階以上写真を送ってほしい
- 共用部
- 宅配ボックス、駐輪場、エレベーター
- その他の特徴
- 定期借家
無料で10秒! カンタンお問い合わせ

Long Island Ebisu
敷
17.8万円礼
17.8万円その他
- 駐車/駐輪
- 近隣 費用: 40,000円 距離: 50m 空き数: 1 / あり駐車可能な車種や台数を知りたい
- 入居時期
- 2026年6月中旬最新の空室状況が知りたい
- 損保
- 住宅保険: 要
- 保証人代行
- 加入要 会社名: レジデントアシスタント 費用: 初回契約時:50%、更新時:9,600円
- その他費用
初期費用を知りたい室内清掃費用:55,000円
口座振替事務手数料:220円
鍵交換費用:33,000円
- 情報
情報登録日:2026/4/8
情報更新日:2026/4/30
次回更新予定日:2026/5/7
- 備考
- 現況: 居住中 契約期間: 2年 ※定期借家 管理人: 日勤 その他交通: 東京メトロ日比谷線広尾駅 徒歩13分 自社管理番号: 14108143
取扱い会社
- 取扱い会社
- 株式会社カムグラン 本店条件が近い物件も紹介してほしい
- 免許番号
- 東京都知事 (1) 第113019号
- 取引態様
- 一般媒介
- 所在地
- 東京都港区麻布十番2-19-4 Laniビル4F
- 電話番号
- 03-6809-3842
- 定休日
- 無
- 所属団体名
- 東京都宅地建物取引業協会
おすすめ物件 (20件)
賃貸マンション
ザ・パークハビオ恵比寿プレイス

山手線 / 恵比寿駅 徒歩9分
築8年 / 11階建
東京都渋谷区恵比寿3丁目

17.5万円 / 管理費10,000円
敷
17.5万円礼
17.5万円ワンルーム / 28.32㎡ / 2階
賃貸マンション
渋谷区 12階建 2023年築
山手線 / 恵比寿駅 徒歩11分
築3年 / 12階建
東京都渋谷区広尾5丁目23-3
17.4万円 / 管理費10,000円
敷
無料礼
無料1K / 25.44㎡ / 9階
賃貸マンション
パークフラッツ渋谷代官山
東急東横線 / 代官山駅 徒歩12分
築21年 / 9階建
東京都渋谷区東1丁目27-2
18万円 / 管理費10,000円
敷
18万円礼
18万円1DK / 30.33㎡ / 4階
賃貸マンション
渋谷区 12階建 2002年築
山手線 / 恵比寿駅 徒歩3分
築24年 / 12階建
東京都渋谷区恵比寿西1丁目3-5
18万円 / 管理費なし
敷
18万円礼
無料1K / 25.12㎡ / 5階
賃貸マンション
プライムレジデンス渋谷

東京メトロ日比谷線 / 恵比寿駅 徒歩12分
築9年 / 15階建
東京都渋谷区東2丁目

18.6万円 / 管理費12,000円
敷
18.6万円礼
無料1LDK / 33.39㎡ / 5階
賃貸マンション
ピアース渋谷

東急東横線 / 代官山駅 徒歩12分
築4年 / 地上14階地下1階建
東京都渋谷区桜丘町

17.9万円 / 管理費16,000円
敷
17.9万円礼
17.9万円1DK / 27.66㎡ / 7階
賃貸マンション
レジディア恵比寿Ⅱ

東京メトロ日比谷線 / 恵比寿駅 徒歩5分
築20年 / 15階建
東京都渋谷区恵比寿西1丁目

18.3万円 / 管理費15,000円
敷
無料礼
無料ワンルーム / 28.49㎡ / 14階
賃貸マンション
Court Hills 広尾南

山手線 / 恵比寿駅 徒歩13分
築17年 / 地上15階地下1階建
東京都渋谷区恵比寿2丁目

18.9万円 / 管理費9,000円
敷
18.9万円礼
18.9万円ワンルーム / 31.27㎡ / 11階
賃貸マンション
パークハビオ渋谷

東急東横線 / 代官山駅 徒歩17分
築14年 / 地上14階地下1階建
東京都渋谷区渋谷3丁目

16万円 / 管理費12,000円
敷
16万円礼
無料ワンルーム / 24.11㎡ / 8階
賃貸マンション
品川区上大崎2丁目 3階建 2008年築

山手線 / 恵比寿駅 徒歩13分
築18年 / 地上3階地下1階建
東京都品川区上大崎2丁目

17.8万円 / 管理費10,000円
敷
17.8万円礼
無料ワンルーム / 34.68㎡ / 3階
賃貸マンション
渋谷区恵比寿南1丁目 14階建 2013年築

山手線 / 恵比寿駅 徒歩2分
築13年 / 14階建
東京都渋谷区恵比寿南1丁目10-7

16万円 / 管理費10,000円
敷
16万円礼
16万円ワンルーム / 25.04㎡ / 7階
賃貸マンション
渋谷区恵比寿2丁目 地上15階地下1階建 2009年築

山手線 / 恵比寿駅 徒歩11分
築17年 / 地上15階地下1階建
東京都渋谷区恵比寿2丁目13-12

18万円 / 管理費9,000円
敷
18万円礼
18万円ワンルーム / 31.27㎡ / 11階
賃貸マンション
渋谷区恵比寿1丁目 地上13階地下1階建 2017年築

山手線 / 恵比寿駅 徒歩4分
築9年 / 13階建
東京都渋谷区恵比寿1丁目22-21

17.8万円 / 管理費10,000円
敷
17.8万円礼
17.8万円1K / 28.38㎡ / 5階
賃貸マンション
グランドコンシェルジュ恵比寿

山手線 / 恵比寿駅 徒歩8分
築11年 / 11階建
東京都渋谷区恵比寿3丁目

19.8万円 / 管理費8,000円
敷
無料礼
39.6万円1DK / 34.65㎡ / 3階
賃貸マンション
コンフォリア目黒青葉台

東急東横線 / 代官山駅 徒歩10分
築12年 / 地上3階地下1階建
東京都目黒区青葉台1丁目10-11

17.1万円 / 管理費8,000円
敷
17.1万円礼
17.1万円1K / 30.61㎡ / 3階
賃貸マンション
フィオーレ渋谷

山手線 / 恵比寿駅 徒歩13分
築19年 / 3階建
東京都渋谷区東2丁目

17.8万円 / 管理費6,000円
敷
17.8万円礼
17.8万円1LDK / 32.87㎡ / 3階
賃貸マンション
渋谷区 10階建 2006年築
山手線 / 恵比寿駅 徒歩9分
築20年 / 10階建
東京都渋谷区東3丁目6-20
19.4万円 / 管理費20,000円
敷
19.4万円礼
19.4万円1LDK / 34.38㎡ / 5階
賃貸マンション
ザ・パークハビオ恵比寿プレイス

山手線 / 恵比寿駅 徒歩9分
築8年 / 11階建
東京都渋谷区恵比寿3丁目

17.5万円 / 管理費10,000円
敷
17.5万円礼
17.5万円ワンルーム / 28.32㎡ / 2階
賃貸マンション
渋谷区 12階建 2023年築
山手線 / 恵比寿駅 徒歩11分
築3年 / 12階建
東京都渋谷区広尾5丁目23-3
17.4万円 / 管理費10,000円
敷
無料礼
無料1K / 25.44㎡ / 9階
賃貸マンション
パークフラッツ渋谷代官山
東急東横線 / 代官山駅 徒歩12分
築21年 / 9階建
東京都渋谷区東1丁目27-2
18万円 / 管理費10,000円
敷
18万円礼
18万円1DK / 30.33㎡ / 4階
賃貸マンション
渋谷区 12階建 2002年築
山手線 / 恵比寿駅 徒歩3分
築24年 / 12階建
東京都渋谷区恵比寿西1丁目3-5
18万円 / 管理費なし
敷
18万円礼
無料1K / 25.12㎡ / 5階
賃貸マンション
プライムレジデンス渋谷

東京メトロ日比谷線 / 恵比寿駅 徒歩12分
築9年 / 15階建
東京都渋谷区東2丁目

18.6万円 / 管理費12,000円
敷
18.6万円礼
無料1LDK / 33.39㎡ / 5階
賃貸マンション
ピアース渋谷

東急東横線 / 代官山駅 徒歩12分
築4年 / 地上14階地下1階建
東京都渋谷区桜丘町

17.9万円 / 管理費16,000円
敷
17.9万円礼
17.9万円1DK / 27.66㎡ / 7階
賃貸マンション
レジディア恵比寿Ⅱ

東京メトロ日比谷線 / 恵比寿駅 徒歩5分
築20年 / 15階建
東京都渋谷区恵比寿西1丁目

18.3万円 / 管理費15,000円
敷
無料礼
無料ワンルーム / 28.49㎡ / 14階
賃貸マンション
Court Hills 広尾南

山手線 / 恵比寿駅 徒歩13分
築17年 / 地上15階地下1階建
東京都渋谷区恵比寿2丁目

18.9万円 / 管理費9,000円
敷
18.9万円礼
18.9万円ワンルーム / 31.27㎡ / 11階
賃貸マンション
パークハビオ渋谷

東急東横線 / 代官山駅 徒歩17分
築14年 / 地上14階地下1階建
東京都渋谷区渋谷3丁目

16万円 / 管理費12,000円
敷
16万円礼
無料ワンルーム / 24.11㎡ / 8階
賃貸マンション
品川区上大崎2丁目 3階建 2008年築

山手線 / 恵比寿駅 徒歩13分
築18年 / 地上3階地下1階建
東京都品川区上大崎2丁目

17.8万円 / 管理費10,000円
敷
17.8万円礼
無料ワンルーム / 34.68㎡ / 3階
賃貸マンション
渋谷区恵比寿南1丁目 14階建 2013年築

山手線 / 恵比寿駅 徒歩2分
築13年 / 14階建
東京都渋谷区恵比寿南1丁目10-7

16万円 / 管理費10,000円
敷
16万円礼
16万円ワンルーム / 25.04㎡ / 7階
賃貸マンション
渋谷区恵比寿2丁目 地上15階地下1階建 2009年築

山手線 / 恵比寿駅 徒歩11分
築17年 / 地上15階地下1階建
東京都渋谷区恵比寿2丁目13-12

18万円 / 管理費9,000円
敷
18万円礼
18万円ワンルーム / 31.27㎡ / 11階
賃貸マンション
渋谷区恵比寿1丁目 地上13階地下1階建 2017年築

山手線 / 恵比寿駅 徒歩4分
築9年 / 13階建
東京都渋谷区恵比寿1丁目22-21

17.8万円 / 管理費10,000円
敷
17.8万円礼
17.8万円1K / 28.38㎡ / 5階
賃貸マンション
グランドコンシェルジュ恵比寿

山手線 / 恵比寿駅 徒歩8分
築11年 / 11階建
東京都渋谷区恵比寿3丁目

19.8万円 / 管理費8,000円
敷
無料礼
39.6万円1DK / 34.65㎡ / 3階
賃貸マンション
コンフォリア目黒青葉台

東急東横線 / 代官山駅 徒歩10分
築12年 / 地上3階地下1階建
東京都目黒区青葉台1丁目10-11

17.1万円 / 管理費8,000円
敷
17.1万円礼
17.1万円1K / 30.61㎡ / 3階
賃貸マンション
フィオーレ渋谷

山手線 / 恵比寿駅 徒歩13分
築19年 / 3階建
東京都渋谷区東2丁目

17.8万円 / 管理費6,000円
敷
17.8万円礼
17.8万円1LDK / 32.87㎡ / 3階
賃貸マンション
渋谷区 10階建 2006年築
山手線 / 恵比寿駅 徒歩9分
築20年 / 10階建
東京都渋谷区東3丁目6-20
19.4万円 / 管理費20,000円
敷
19.4万円礼
19.4万円1LDK / 34.38㎡ / 5階
同じ最寄り駅 × 同じ特徴 で探す
同じ市区町村 × 同じ特徴 で探す

























