グランフォーレ平尾レジデンス3LDK/2階/202(福岡県福岡市中央区 / 西鉄平尾駅)の賃貸
1/14
1/14
15.5万円
初期費用を知りたい管理費なし
- 敷金
- 無料
- 保証金
- なし
- 礼金
- 31万円
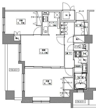
- 広さ
- 73.07㎡
- 階数
- 2階 / 8階建
- 間取り
- 3LDK
- 建物
- マンション (鉄筋コンクリート)
- 築年数
- 築13年
- 向き
- 南西
- 交通
- 西鉄天神大牟田線 / 西鉄平尾駅徒歩9分
- 地下鉄七隈線 / 薬院大通駅徒歩11分
- 西鉄天神大牟田線 / 薬院駅徒歩11分
- 住所
- 福岡県福岡市中央区平尾3丁目
無料で10秒! カンタンお問い合わせ
)
グランフォーレ平尾レジデンス
敷
無料礼
31万円特徴
バス・トイレ別
2階以上
エアコン付き
ペット相談可
駐車場あり
室内洗濯機置場
オートロック
洗面所独立
- 入居条件
- 子供可、二人入居可最新の空室状況が知りたい
- バス・トイレ
- 給湯、シャワー、シャンプードレッサー、追焚機能浴室、バストイレ別、浴室乾燥機、洗面所独立、温水洗浄便座
- キッチン
- ガスキッチン、コンロ2口以上、システムキッチン、カウンターキッチン
- セキュリティ
- オートロック、オートロック
- 室内設備
- エアコン、インターホン、フローリング、室内洗濯置、クロゼット、押入、シューズボックスお部屋の詳しい情報を知りたい
- 部屋の特徴
- バルコニー、二階以上写真を送ってほしい
- 共用部
- エレベーター、宅配ボックス、敷地内ごみ置き場、駐輪場
- その他の特徴
- 地デジ対応、分譲賃貸、都市ガス、駐車場あり
無料で10秒! カンタンお問い合わせ
)
グランフォーレ平尾レジデンス
敷
無料礼
31万円その他
- 駐車/駐輪
- 有り(敷地内) 費用: 15,000円 距離: 0m 備考: ※問い合わせ時サイズ、空き状況要確認 / あり駐車可能な車種や台数を知りたい
- 入居時期
- 損保
- -
- 保証人代行
- 保証人: 不要
- その他費用
- 情報
情報登録日:2026/1/30
情報更新日:2026/1/28
次回更新予定日:2026/2/14
- 備考
- 退去時費用備考: 退去時清掃代:賃料1ヶ月分×1.1(税込) その他: エアコンは、1年半から2年周期でフィルター交換を借主にて行って頂く必要あり/サービス設置品:照明器具(LDK2台、手前洋室1台)予定 保証会社利用必須 初回:月額総賃料の50%、更新料:1万円/年、月額保証料:月額総賃料1.2% その他初期費用 38500円 業者管理CD: 112007674
取扱い会社
- 取扱い会社
- 株式会社明和不動産 アパマンショップ薬院店条件が近い物件も紹介してほしい
- 免許番号
- 国土交通大臣(3)8432号
- 取引態様
- 一般媒介
- 所在地
- 福岡県福岡市中央区高砂1丁目1-27 プレミールホサカ1F
- 電話番号
- 096-322-5555
- 営業時間
- 10:00~18:00
- 定休日
- 水曜日
- 所属団体名
- (公社)福岡県宅地建物取引業協会
おすすめ物件 (9件)
賃貸マンション
天神プレイス WEST
)
西鉄天神大牟田線 / 薬院駅 徒歩7分
築18年 / 17階建
福岡県福岡市中央区今泉1丁目2-20
)
16.9万円 / 管理費5,000円
敷
無料礼
33.8万円2LDK / 69.99㎡ / 8階
賃貸アパート
D-ROOM美野島
西鉄天神大牟田線 / 西鉄平尾駅 徒歩19分
築1年 / 3階建
福岡県福岡市博多区美野島1
16.5万円 / 管理費6,000円
敷
無料礼
16.5万円2LDK / 70.54㎡ / 2階
賃貸マンション
天神プレイス ウエスト
西鉄天神大牟田線 / 薬院駅 徒歩4分
築18年 / 17階建
福岡県福岡市中央区今泉1
16.9万円 / 管理費5,000円
敷
無料礼
33.8万円2LDK / 69.99㎡ / 8階
賃貸マンション
西鉄天神大牟田線 西鉄福岡(天神)駅 17階建 築18年
西鉄天神大牟田線 / 薬院駅 徒歩7分
築18年 / 17階建
福岡県福岡市中央区今泉1
16.9万円 / 管理費5,000円
敷
無料礼
33.8万円2LDK / 69.99㎡ / 8階
賃貸マンション
リファレンス寺塚
西鉄天神大牟田線 / 西鉄平尾駅 徒歩32分
築28年 / 6階建
福岡県福岡市南区寺塚2
13.5万円 / 管理費5,000円
敷
無料礼
27万円3LDK / 72.23㎡ / 3階
賃貸アパート
地下鉄七隈線 渡辺通駅 3階建 新築
西鉄天神大牟田線 / 西鉄平尾駅 徒歩17分
新築 / 3階建
福岡県福岡市博多区美野島1
17.5万円 / 管理費6,000円
敷
無料礼
17.5万円3LDK / 75.98㎡ / 3階
賃貸アパート
D-Room高宮駅前
西鉄天神大牟田線 / 西鉄平尾駅 徒歩16分
築10年 / 3階建
福岡県福岡市南区高宮5
16.5万円 / 管理費4,000円
敷
無料礼
無料3LDK / 77.55㎡ / 2階
賃貸マンション
福岡市中央区今泉1丁目 17階建 2008年築

西鉄天神大牟田線 / 薬院駅 徒歩5分
築18年 / 17階建
福岡県福岡市中央区今泉1丁目

16.9万円 / 管理費5,000円
敷
無料礼
33.8万円2LDK / 69.99㎡ / 9階
賃貸マンション
KM原田ビル
)
地下鉄七隈線 / 薬院大通駅 徒歩14分
築37年 / 10階建
福岡県福岡市中央区赤坂2丁目3-13
)
15.5万円 / 管理費なし
敷
無料礼
31万円2LDK / 72.75㎡ / 9階
賃貸マンション
天神プレイス WEST
)
西鉄天神大牟田線 / 薬院駅 徒歩7分
築18年 / 17階建
福岡県福岡市中央区今泉1丁目2-20
)
16.9万円 / 管理費5,000円
敷
無料礼
33.8万円2LDK / 69.99㎡ / 8階
賃貸アパート
D-ROOM美野島
西鉄天神大牟田線 / 西鉄平尾駅 徒歩19分
築1年 / 3階建
福岡県福岡市博多区美野島1
16.5万円 / 管理費6,000円
敷
無料礼
16.5万円2LDK / 70.54㎡ / 2階
賃貸マンション
天神プレイス ウエスト
西鉄天神大牟田線 / 薬院駅 徒歩4分
築18年 / 17階建
福岡県福岡市中央区今泉1
16.9万円 / 管理費5,000円
敷
無料礼
33.8万円2LDK / 69.99㎡ / 8階
賃貸マンション
西鉄天神大牟田線 西鉄福岡(天神)駅 17階建 築18年
西鉄天神大牟田線 / 薬院駅 徒歩7分
築18年 / 17階建
福岡県福岡市中央区今泉1
16.9万円 / 管理費5,000円
敷
無料礼
33.8万円2LDK / 69.99㎡ / 8階
賃貸マンション
リファレンス寺塚
西鉄天神大牟田線 / 西鉄平尾駅 徒歩32分
築28年 / 6階建
福岡県福岡市南区寺塚2
13.5万円 / 管理費5,000円
敷
無料礼
27万円3LDK / 72.23㎡ / 3階
賃貸アパート
地下鉄七隈線 渡辺通駅 3階建 新築
西鉄天神大牟田線 / 西鉄平尾駅 徒歩17分
新築 / 3階建
福岡県福岡市博多区美野島1
17.5万円 / 管理費6,000円
敷
無料礼
17.5万円3LDK / 75.98㎡ / 3階
賃貸アパート
D-Room高宮駅前
西鉄天神大牟田線 / 西鉄平尾駅 徒歩16分
築10年 / 3階建
福岡県福岡市南区高宮5
16.5万円 / 管理費4,000円
敷
無料礼
無料3LDK / 77.55㎡ / 2階
賃貸マンション
福岡市中央区今泉1丁目 17階建 2008年築

西鉄天神大牟田線 / 薬院駅 徒歩5分
築18年 / 17階建
福岡県福岡市中央区今泉1丁目

16.9万円 / 管理費5,000円
敷
無料礼
33.8万円2LDK / 69.99㎡ / 9階
賃貸マンション
KM原田ビル
)
地下鉄七隈線 / 薬院大通駅 徒歩14分
築37年 / 10階建
福岡県福岡市中央区赤坂2丁目3-13
)
15.5万円 / 管理費なし
敷
無料礼
31万円2LDK / 72.75㎡ / 9階
同じ最寄り駅 × 同じ特徴 で探す
)
)
)
)
)
)
)
)
)
)
)
)
)
