プラチナフォルム中延WEST1R/1階/202(東京都品川区 / 中延駅)の賃貸
1/35
1/35
8.2万円
初期費用を知りたい管理費9,500円
- 敷金
- 無料
- 保証金
- なし
- 礼金
- 無料
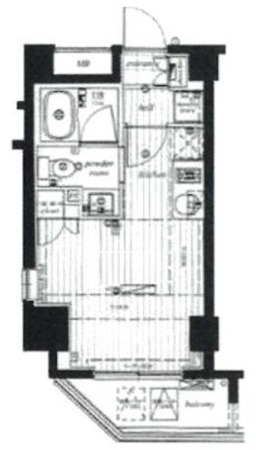
- 広さ
- 21.03㎡
- 階数
- 1階 / 地上4階地下1階建
- 間取り
- 1R
- 建物
- マンション (鉄筋コンクリート)
- 築年数
- 築5年
- 向き
- 北
- 交通
- 都営浅草線 / 中延駅徒歩6分
- 東急大井町線 / 荏原町駅徒歩7分
- 都営浅草線 / 馬込駅徒歩9分
- 住所
- 東京都品川区中延6丁目10-1
昭和大学病院 1303m
品川小山五郵便局 2081m
まいばすけっと西小山駅前 2218m
大井町駅 2176m
大森駅 2299m
品川小山三郵便局 2370m
ライフ武蔵小山店 2407m
東急ストア武蔵小山駅ビル 2519m
源氏前小学校 269m
富士見台中学校 661m
コンビニ 313m
スーパー 620m
無料で10秒! カンタンお問い合わせ
)
プラチナフォルム中延WEST
敷
無料礼
無料特徴
バス・トイレ別
2階以上
エアコン付き
ペット相談可
駐車場あり
室内洗濯機置場
オートロック
洗面所独立
- バス・トイレ
- 給湯、シャワー、バストイレ別、浴室乾燥機、洗面所独立、温水洗浄便座
- キッチン
- コンロ2口以上、システムキッチン、IHクッキングヒーター
- セキュリティ
- オートロック、防犯カメラ、オートロック
- 室内設備
- エアコン、インターホン、インターネット対応、ネット使用料不要、フローリング、室内洗濯置、シューズボックス、24時間換気システムお部屋の詳しい情報を知りたい
- 部屋の特徴
- 角住戸写真を送ってほしい
- 共用部
- 宅配ボックス
無料で10秒! カンタンお問い合わせ
)
プラチナフォルム中延WEST
敷
無料礼
無料その他
- 駐車/駐輪
- 無し / なし駐車可能な車種や台数を知りたい
- 入居時期
- 2026年5月上旬最新の空室状況が知りたい
- 損保
- 住宅保険: 要 17000円
- 保証人代行
- 保証人: 要
- その他費用
- 情報
情報登録日:2026/4/17
情報更新日:2026/4/15
次回更新予定日:2026/5/2
- 備考
- 更新料: 82000円 フリーレントあり その他: 短期解約違約金発生(半年以内の解約→総賃料4ヶ月分、1年以内の解約→総賃料2ヶ月分、2年以内の解約→総賃料1ヶ月分)申込日から2週間以内の契約開始必須 保証会社利用必須 エポスウェルスター■初回保証料:総賃料の50%■月次保証料:総賃料1.3% その他初期費用 20200円 業者管理CD: 98881352
取扱い会社
- 取扱い会社
- アパマンショップ品川駅前店 株式会社 アップル条件が近い物件も紹介してほしい
- 免許番号
- 国土交通大臣(5)6971
- 取引態様
- 一般媒介
- 所在地
- 東京都港区港南2丁目
- 電話番号
- 03-5715-5353
- 所属団体名
- (公社)東京都宅地建物取引協会,(公社) 首都圏不動産公正取引協議会加盟
おすすめ物件 (18件)
賃貸マンション
ステージファースト西大井一番館

都営浅草線 / 馬込駅 徒歩9分
築17年 / 5階建
東京都品川区西大井5丁目

9.7万円 / 管理費5,000円
敷
9.7万円礼
9.7万円1K / 20.9㎡ / 2階
賃貸マンション
SQUARE CITY NAKAMAGOME

都営浅草線 / 馬込駅 徒歩7分
築3年 / 5階建
東京都大田区中馬込1丁目

10.2万円 / 管理費20,000円
敷
無料礼
10.2万円1K / 25.81㎡ / 3階
賃貸マンション
品川区豊町 2階建 2006年築
)
都営浅草線 / 中延駅 徒歩7分
築20年 / 2階建
東京都品川区豊町5丁目
)
8.9万円 / 管理費3,000円
敷
8.9万円礼
8.9万円ワンルーム / 20.6㎡ / 2階
賃貸マンション
ウィスティリア大森山王

京浜東北線 / 大森駅 徒歩10分
築18年 / 12階建
東京都大田区山王3丁目13-4

10.2万円 / 管理費10,000円
敷
無料礼
11.2万円ワンルーム / 29.78㎡ / 6階
賃貸マンション
CASA SPROUT

都営浅草線 / 中延駅 徒歩8分
築11年 / 4階建
東京都品川区二葉4丁目

8.3万円 / 管理費4,000円
敷
無料礼
8.3万円ワンルーム / 18.13㎡ / 2階
賃貸アパート
Ts Cuore馬込I
都営浅草線 / 馬込駅 徒歩9分
築1年 / 3階建
東京都大田区中馬込1丁目14-7
9.1万円 / 管理費5,000円
敷
9.1万円礼
無料1K / 19.87㎡ / 1階
賃貸マンション
品川区豊町6丁目 地上6階地下1階建 2010年築

都営浅草線 / 中延駅 徒歩3分
築16年 / 地上6階地下1階建
東京都品川区豊町6丁目

9.3万円 / 管理費5,000円
敷
9.3万円礼
18.6万円1K / 20.73㎡ / 5階
賃貸マンション
BRANCHE大森山王
)
都営浅草線 / 馬込駅 徒歩11分
築19年 / 4階建
東京都品川区西大井4丁目22-23
)
8.9万円 / 管理費10,000円
敷
無料礼
無料1K / 20.21㎡ / 2階
賃貸マンション
HERME TOGOSHI
)
都営浅草線 / 中延駅 徒歩4分
築2年 / 4階建
東京都品川区戸越6丁目21-3
)
8.2万円 / 管理費18,000円
敷
無料礼
無料ワンルーム / 12㎡ / 2階
賃貸マンション
ステージファースト西大井一番館

都営浅草線 / 馬込駅 徒歩9分
築17年 / 5階建
東京都品川区西大井5丁目

9.7万円 / 管理費5,000円
敷
9.7万円礼
9.7万円1K / 20.9㎡ / 2階
賃貸マンション
SQUARE CITY NAKAMAGOME

都営浅草線 / 馬込駅 徒歩7分
築3年 / 5階建
東京都大田区中馬込1丁目

10.2万円 / 管理費20,000円
敷
無料礼
10.2万円1K / 25.81㎡ / 3階
賃貸マンション
品川区豊町 2階建 2006年築
)
都営浅草線 / 中延駅 徒歩7分
築20年 / 2階建
東京都品川区豊町5丁目
)
8.9万円 / 管理費3,000円
敷
8.9万円礼
8.9万円ワンルーム / 20.6㎡ / 2階
賃貸マンション
ウィスティリア大森山王

京浜東北線 / 大森駅 徒歩10分
築18年 / 12階建
東京都大田区山王3丁目13-4

10.2万円 / 管理費10,000円
敷
無料礼
11.2万円ワンルーム / 29.78㎡ / 6階
賃貸マンション
CASA SPROUT

都営浅草線 / 中延駅 徒歩8分
築11年 / 4階建
東京都品川区二葉4丁目

8.3万円 / 管理費4,000円
敷
無料礼
8.3万円ワンルーム / 18.13㎡ / 2階
賃貸アパート
Ts Cuore馬込I
都営浅草線 / 馬込駅 徒歩9分
築1年 / 3階建
東京都大田区中馬込1丁目14-7
9.1万円 / 管理費5,000円
敷
9.1万円礼
無料1K / 19.87㎡ / 1階
賃貸マンション
品川区豊町6丁目 地上6階地下1階建 2010年築

都営浅草線 / 中延駅 徒歩3分
築16年 / 地上6階地下1階建
東京都品川区豊町6丁目

9.3万円 / 管理費5,000円
敷
9.3万円礼
18.6万円1K / 20.73㎡ / 5階
賃貸マンション
BRANCHE大森山王
)
都営浅草線 / 馬込駅 徒歩11分
築19年 / 4階建
東京都品川区西大井4丁目22-23
)
8.9万円 / 管理費10,000円
敷
無料礼
無料1K / 20.21㎡ / 2階
賃貸マンション
HERME TOGOSHI
)
都営浅草線 / 中延駅 徒歩4分
築2年 / 4階建
東京都品川区戸越6丁目21-3
)
8.2万円 / 管理費18,000円
敷
無料礼
無料ワンルーム / 12㎡ / 2階
)
)
)
)
)
)
)
)
)
)
)
)
)
)
)
)
)
)
)
)
)
)
)
)
)
)
)
)
)
)
)
)
)
)





)
)


)
)