コンフォリア滝野川2LDK/11階/1108(東京都北区 / 西巣鴨駅)の賃貸
1/29
1/29
26.5万円
初期費用を知りたい管理費12,000円
- 敷金
- 26.5万円
- 保証金
- なし
- 礼金
- 無料
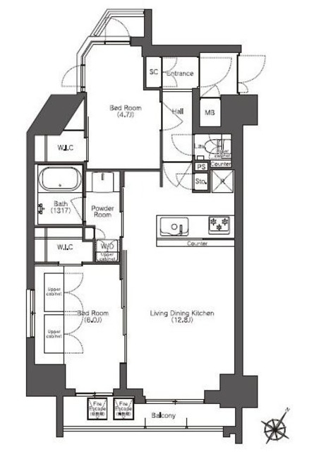
- 広さ
- 56.33㎡
- 階数
- 11階 / 15階建
- 間取り
- 2LDK
- 建物
- マンション (鉄筋コンクリート)
- 築年数
- 築8年
- 向き
- 南東
- 交通
- 都営三田線 / 西巣鴨駅徒歩6分
- 埼京線 / 板橋駅徒歩10分
- 都電荒川線 / 庚申塚駅徒歩10分
- 住所
- 東京都北区滝野川7丁目48-2
まいばすけっと 滝野川7丁目店 99m
ローソン 滝野川六丁目店 209m
くすりの福太郎上池袋店 329m
ゲオ板橋駅前店 762m
ほっともっと 滝野川6丁目店 567m
大正大学 509m
無料で10秒! カンタンお問い合わせ

コンフォリア滝野川
敷
26.5万円礼
無料特徴
バス・トイレ別
2階以上
エアコン付き
ペット相談可
駐車場あり
室内洗濯機置場
オートロック
洗面所独立
- 入居条件
- 二人入居相談、子供可、ペット相談、礼金不要最新の空室状況が知りたい
- バス・トイレ
- シャンプードレッサー、バストイレ別、オートバス、浴室乾燥機、追焚機能浴室、温水洗浄便座、洗面所独立
- キッチン
- ガスコンロ対応、1口コンロ、食器洗乾燥機
- セキュリティ
- 防犯カメラ、ディンプルキー、オートロック
- 室内設備
- CS、インターネット対応、BS、ネット使用料不要、エアコン、室内洗濯置お部屋の詳しい情報を知りたい
- 部屋の特徴
- 二階以上、角住戸、バルコニー写真を送ってほしい
- 共用部
- 宅配ボックス、エレベーター、バイク置場、駐輪場
- その他の特徴
- 駐車場あり、公営水道、下水、外壁タイル張り、分譲賃貸
無料で10秒! カンタンお問い合わせ

コンフォリア滝野川
敷
26.5万円礼
無料不動産会社からのコメント
敷金積増(詳細確認)/1年以内解約時賃料1ヶ月分違約金あり/償却金 0円月額次賃料等の2%(最低千円)/ペット相談小型犬1匹若しくは猫2匹迄敷金1ヶ月積増使用細則遵守/本物件南東側に東京都道305号芝新宿王子線(明治通り)が隣接しており騒音振動等が発生する可能性があります/バイク置場代借主負担(使用時)
その他
- 駐車/駐輪
- 近隣 費用: 28,930円(税込) 距離: 406m / あり駐車可能な車種や台数を知りたい
- 入居時期
- 2026年5月下旬最新の空室状況が知りたい
- 損保
- 住宅保険: 要
- 保証人代行
- 保証人代行: 必須 保証人代行会社: その他 初回:賃料等の50%(最低2万)、月額:賃料等の1%(更新料無)
- その他費用
初期費用を知りたい室内清掃費:52,800円
その他費用(鍵交換費:3.3万円/他):66,000円
- 情報
情報登録日:2026/3/26
情報更新日:2026/3/23
次回更新予定日:2026/4/6
- 備考
- 契約期間: 2年
取扱い会社
- 取扱い会社
- アエラス巣鴨店 (株式会社アエラス.PR)条件が近い物件も紹介してほしい
- 免許番号
- 国土交通大臣(1)第10782号
- 取引態様
- 仲介
- 所在地
- 東京都豊島区巣鴨2丁目5-4 巣鴨会館ビル 3階
- 電話番号
- 03-5980-6233
- 営業時間
- 10:00~19:00
- 定休日
- 年中無休(年末年始などを除く)
- 所属団体名
- 全日本不動産協会
おすすめ物件 (11件)
賃貸マンション
コンフォリア・リヴ板橋

埼京線 / 板橋駅 徒歩4分
築2年 / 14階建
東京都板橋区板橋1丁目51-5

24.9万円 / 管理費15,000円
敷
24.9万円礼
無料2SLDK / 55.47㎡ / 12階
賃貸マンション
パークアクシス西巣鴨

都営三田線 / 西巣鴨駅 徒歩5分
築14年 / 13階建
東京都北区滝野川7丁目46-2

24.8万円 / 管理費12,000円
敷
24.8万円礼
24.8万円2LDK / 56.72㎡ / 5階
賃貸マンション
エスティメゾン巣鴨

都営三田線 / 西巣鴨駅 徒歩9分
築19年 / 地上8階地下1階建
東京都豊島区巣鴨4丁目14-15

25.4万円 / 管理費10,000円
敷
25.4万円礼
25.4万円2LDK / 61.17㎡ / 2階
賃貸マンション
パークアクシス滝野川ラ ブリーズ

都営三田線 / 西巣鴨駅 徒歩6分
築12年 / 地上17階地下1階建
東京都北区滝野川6丁目21-7

27.8万円 / 管理費15,000円
敷
27.8万円礼
27.8万円2LDK / 61.01㎡ / 2階
賃貸マンション
コンフォリア滝野川

都営三田線 / 西巣鴨駅 徒歩7分
築8年 / 15階建
東京都北区滝野川7丁目48-2

27万円 / 管理費12,000円
敷
27万円礼
無料2LDK / 56.33㎡ / 11階
賃貸マンション
都営三田線 西巣鴨駅 地下2地上14階建 築17年
都営三田線 / 西巣鴨駅 徒歩9分
築17年 / 地上14階地下2階建
東京都北区西ケ原4
28万円 / 管理費15,000円
敷
28万円礼
28万円3LDK / 61.91㎡ / 3階
賃貸マンション
パークキューブ西ヶ原ステージ

都営三田線 / 西巣鴨駅 徒歩9分
築17年 / 地上14階地下2階建
東京都北区西ケ原4丁目51-35

28万円 / 管理費15,000円
敷
28万円礼
28万円3LDK / 61.91㎡ / 3階
賃貸マンション
シーフォルム板橋3

埼京線 / 板橋駅 徒歩6分
新築 / 13階建
東京都板橋区板橋1丁目47-10

28.45万円 / 管理費15,000円
敷
無料礼
無料2LDK / 56.81㎡ / 11階
賃貸マンション
レジディアタワー上池袋タワー棟

都営三田線 / 西巣鴨駅 徒歩14分
築17年 / 22階建
東京都豊島区上池袋1丁目37-22

27.5万円 / 管理費25,000円
敷
27.5万円礼
27.5万円1SLDK / 56.61㎡ / 20階
賃貸マンション
ジェノヴィア北池袋スカイガーデン

埼京線 / 板橋駅 徒歩7分
新築 / 6階建
東京都北区滝野川7丁目25-14

26.6万円 / 管理費15,000円
敷
無料礼
無料1LDK / 59.39㎡ / 3階
賃貸マンション
コンフォリア・リヴ板橋

埼京線 / 板橋駅 徒歩4分
築2年 / 14階建
東京都板橋区板橋1丁目51-5

24.9万円 / 管理費15,000円
敷
24.9万円礼
無料2SLDK / 55.47㎡ / 12階
賃貸マンション
パークアクシス西巣鴨

都営三田線 / 西巣鴨駅 徒歩5分
築14年 / 13階建
東京都北区滝野川7丁目46-2

24.8万円 / 管理費12,000円
敷
24.8万円礼
24.8万円2LDK / 56.72㎡ / 5階
賃貸マンション
エスティメゾン巣鴨

都営三田線 / 西巣鴨駅 徒歩9分
築19年 / 地上8階地下1階建
東京都豊島区巣鴨4丁目14-15

25.4万円 / 管理費10,000円
敷
25.4万円礼
25.4万円2LDK / 61.17㎡ / 2階
賃貸マンション
パークアクシス滝野川ラ ブリーズ

都営三田線 / 西巣鴨駅 徒歩6分
築12年 / 地上17階地下1階建
東京都北区滝野川6丁目21-7

27.8万円 / 管理費15,000円
敷
27.8万円礼
27.8万円2LDK / 61.01㎡ / 2階
賃貸マンション
コンフォリア滝野川

都営三田線 / 西巣鴨駅 徒歩7分
築8年 / 15階建
東京都北区滝野川7丁目48-2

27万円 / 管理費12,000円
敷
27万円礼
無料2LDK / 56.33㎡ / 11階
賃貸マンション
都営三田線 西巣鴨駅 地下2地上14階建 築17年
都営三田線 / 西巣鴨駅 徒歩9分
築17年 / 地上14階地下2階建
東京都北区西ケ原4
28万円 / 管理費15,000円
敷
28万円礼
28万円3LDK / 61.91㎡ / 3階
賃貸マンション
パークキューブ西ヶ原ステージ

都営三田線 / 西巣鴨駅 徒歩9分
築17年 / 地上14階地下2階建
東京都北区西ケ原4丁目51-35

28万円 / 管理費15,000円
敷
28万円礼
28万円3LDK / 61.91㎡ / 3階
賃貸マンション
シーフォルム板橋3

埼京線 / 板橋駅 徒歩6分
新築 / 13階建
東京都板橋区板橋1丁目47-10

28.45万円 / 管理費15,000円
敷
無料礼
無料2LDK / 56.81㎡ / 11階
賃貸マンション
レジディアタワー上池袋タワー棟

都営三田線 / 西巣鴨駅 徒歩14分
築17年 / 22階建
東京都豊島区上池袋1丁目37-22

27.5万円 / 管理費25,000円
敷
27.5万円礼
27.5万円1SLDK / 56.61㎡ / 20階
賃貸マンション
ジェノヴィア北池袋スカイガーデン

埼京線 / 板橋駅 徒歩7分
新築 / 6階建
東京都北区滝野川7丁目25-14

26.6万円 / 管理費15,000円
敷
無料礼
無料1LDK / 59.39㎡ / 3階


































