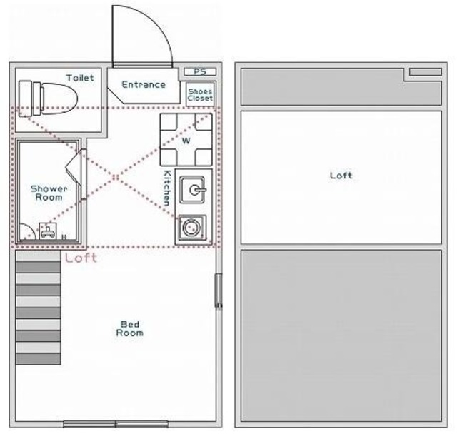
コーポ・サカエ1R/1階/101(東京都北区 / 栄町駅)の賃貸
1/10
1/10
5.3万円
初期費用を知りたい管理費なし
- 敷金
- 5.3万円
- 保証金
- なし
- 礼金
- 5.3万円
- 広さ
- 14.08㎡
- 階数
- 1階 / 2階建
- 間取り
- 1R
- 建物
- アパート (木造)
- 築年数
- 築32年
- 向き
- 南
- 交通
- 都電荒川線 / 栄町駅徒歩2分
- 京浜東北線 / 王子駅徒歩6分
- 京浜東北線 / 上中里駅徒歩13分
- 東京メトロ南北線 / 西ケ原駅徒歩14分
- 高崎線 / 尾久駅徒歩15分
- 住所
- 東京都北区栄町30-12
サンスクエア 837m
オーケー王子堀船店 336m
ファミリーマート王子駅南口店 543m
ココカラファイン ドラッグセガミ王子駅前店 675m
ホームセンターコーナン王子堀船店 327m
日高屋 王子駅前明治通店 813m
無料で10秒! カンタンお問い合わせ

コーポ・サカエ
敷
5.3万円礼
5.3万円特徴
バス・トイレ別
2階以上
エアコン付き
ペット相談可
駐車場あり
室内洗濯機置場
オートロック
洗面所独立
- 入居条件
- 即入居可最新の空室状況が知りたい
- キッチン
- ガスコンロ対応、1口コンロ
- 室内設備
- インターネット対応、エアコン、室内洗濯置お部屋の詳しい情報を知りたい
- 部屋の特徴
- 角住戸写真を送ってほしい
- その他の特徴
- 駐車場あり、公営水道、下水
無料で10秒! カンタンお問い合わせ

コーポ・サカエ
敷
5.3万円礼
5.3万円不動産会社からのコメント
更新料新賃料1ヶ月/借家賠責保険2年間18、000円/鍵交換代借主負担/室内清掃費用借主負担
その他
- 駐車/駐輪
- 近隣 費用: 21,600円(税込) 距離: 141m / なし駐車可能な車種や台数を知りたい
- 入居時期
- 損保
- 住宅保険: 要
- 保証人代行
- -
- その他費用
初期費用を知りたい借家賠責保険2年間:18,000円
- 情報
情報登録日:2026/2/16
情報更新日:2026/2/14
次回更新予定日:2026/2/27
- 備考
- 契約期間: 2年
取扱い会社
- 取扱い会社
- アエラス赤羽店 (株式会社アエラス.PR)条件が近い物件も紹介してほしい
- 免許番号
- 国土交通大臣(1)第10782号
- 取引態様
- 仲介
- 所在地
- 東京都北区赤羽南1丁目6-5 鈴木ビル 2階
- 電話番号
- 03-5249-4441
- 営業時間
- 10:00~19:00
- 定休日
- 年中無休(年末年始などを除く)
- 所属団体名
- 全日本不動産協会
おすすめ物件 (20件)
賃貸アパート
京浜東北線 王子駅 2階建て 築18年
東京メトロ南北線 / 王子駅 徒歩10分
築25年 / 2階建
東京都北区王子2丁目4-3
7万円 / 管理費3,000円
敷
7万円礼
無料1K / 23.2㎡ / 1階
賃貸マンション
Terrasse Oku
宇都宮線 / 尾久駅 徒歩2分
築24年 / 3階建
東京都荒川区西尾久7
6.3万円 / 管理費2,000円
敷
6.3万円礼
6.3万円ワンルーム / 18.55㎡ / 1階
賃貸アパート
スマイルホーム王子

京浜東北線 / 王子駅 徒歩17分
築8年 / 2階建
東京都北区王子4丁目4-16

7.25万円 / 管理費3,500円
敷
7.25万円礼
7.25万円ワンルーム / 11.57㎡ / 1階
賃貸アパート
Amitie Ojikamiya

東京メトロ南北線 / 王子神谷駅 徒歩13分
築8年 / 3階建
東京都足立区新田3丁目2-11

6.1万円 / 管理費3,000円
敷
無料礼
無料1K / 14.1㎡ / 2階
賃貸アパート
グランサムハウス王子神谷

京浜東北線 / 王子駅 徒歩27分
築8年 / 2階建
東京都北区豊島8丁目28-6

6.1万円 / 管理費4,000円
敷
無料礼
無料ワンルーム / 10.73㎡ / 1階
賃貸アパート
京浜東北線 王子駅 2階建て 築18年
東京メトロ南北線 / 王子駅 徒歩10分
築25年 / 2階建
東京都北区王子2丁目4-3
7万円 / 管理費3,000円
敷
7万円礼
無料1K / 23.2㎡ / 1階
賃貸マンション
Terrasse Oku
宇都宮線 / 尾久駅 徒歩2分
築24年 / 3階建
東京都荒川区西尾久7
6.3万円 / 管理費2,000円
敷
6.3万円礼
6.3万円ワンルーム / 18.55㎡ / 1階
賃貸アパート
スマイルホーム王子

京浜東北線 / 王子駅 徒歩17分
築8年 / 2階建
東京都北区王子4丁目4-16

7.25万円 / 管理費3,500円
敷
7.25万円礼
7.25万円ワンルーム / 11.57㎡ / 1階
賃貸アパート
Amitie Ojikamiya

東京メトロ南北線 / 王子神谷駅 徒歩13分
築8年 / 3階建
東京都足立区新田3丁目2-11

6.1万円 / 管理費3,000円
敷
無料礼
無料1K / 14.1㎡ / 2階
賃貸アパート
グランサムハウス王子神谷

京浜東北線 / 王子駅 徒歩27分
築8年 / 2階建
東京都北区豊島8丁目28-6

6.1万円 / 管理費4,000円
敷
無料礼
無料ワンルーム / 10.73㎡ / 1階

















