SINCREASE代田橋1R/3階/301(東京都杉並区 / 代田橋駅)の賃貸
1/32
1/32
8.7万円
初期費用を知りたい管理費5,000円
- 敷金
- 無料
- 保証金
- なし
- 礼金
- 無料
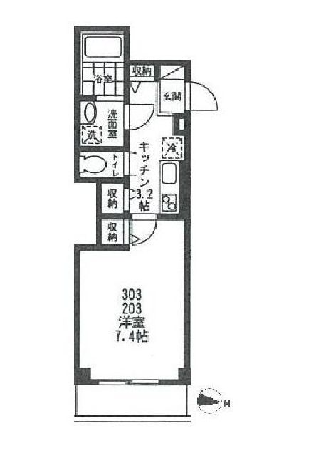
- 広さ
- 16.04㎡
- 階数
- 3階 / 4階建
- 間取り
- 1R
- 建物
- アパート (木造)
- 築年数
- 築7年
- 向き
- 北西
- 交通
- 京王線 / 代田橋駅徒歩11分
- 東京メトロ丸ノ内線 / 方南町駅徒歩12分
- 京王線 / 笹塚駅徒歩16分
- 住所
- 東京都杉並区和泉1丁目32-11
セブンイレブン 326m
ファミリーマート 363m
ローソン 515m
薬 マツモトキヨシ 方南町店 788m
(株)みずほ銀行/方南町支店 794m
島忠ホームズ 966m
ローソンストア100 1186m
新泉小学校 185m
富士見丘中学校 1021m
コンビニ 206m
スーパー 361m
無料で10秒! カンタンお問い合わせ
)
SINCREASE代田橋
敷
無料礼
無料特徴
バス・トイレ別
2階以上
エアコン付き
ペット相談可
駐車場あり
室内洗濯機置場
オートロック
洗面所独立
- バス・トイレ
- 給湯、シャワー、バストイレ別、浴室乾燥機、洗面所独立、温水洗浄便座
- キッチン
- ガスキッチン
- セキュリティ
- オートロック、24時間緊急通報システム、防犯カメラ、オートロック、24時間緊急通報システム
- 室内設備
- エアコン、冷房、暖房、CATV、インターホン、インターネット対応、ネット使用料不要、室内洗濯置、24時間換気システムお部屋の詳しい情報を知りたい
- 部屋の特徴
- 二階以上写真を送ってほしい
- その他の特徴
- 都市ガス
無料で10秒! カンタンお問い合わせ
)
SINCREASE代田橋
敷
無料礼
無料その他
- 駐車/駐輪
- 無し / なし駐車可能な車種や台数を知りたい
- 入居時期
- 損保
- 住宅保険: 要 18000円
- 保証人代行
- 保証人: 不要
- その他費用
- 情報
情報登録日:2025/10/6
情報更新日:2025/12/8
次回更新予定日:2025/12/25
- 備考
- 更新料: 87000円 退去時費用備考: 退去費用実費精算 その他: 二人入居不可/1年未満の解約は違約金1ヶ月分 保証会社利用必須 保証料:エポス初回総賃料50%継続保証委託料毎月1.5% その他初期費用 79100円 業者管理CD: 89288599
取扱い会社
- 取扱い会社
- アパマンショップ三軒茶屋駅前店 Apaman Leasing 株式会社条件が近い物件も紹介してほしい
- 免許番号
- 国土交通大臣(1)10927
- 取引態様
- 一般媒介
- 所在地
- 東京都世田谷区三軒茶屋2丁目
- 電話番号
- 03-5779-7135
- 所属団体名
- (公社)東京都宅地建物取引業協会,(公社) 首都圏不動産公正取引協議会加盟
おすすめ物件 (19件)
賃貸マンション
クレヴィスタ方南町

東京メトロ丸ノ内線 / 方南町駅 徒歩10分
築5年 / 7階建
東京都杉並区堀ノ内3丁目

10.7万円 / 管理費11,000円
敷
無料礼
10.7万円ワンルーム / 20.58㎡ / 4階
賃貸マンション
中野区南台3丁目 4階建 2025年築

東京メトロ丸ノ内線 / 方南町駅 徒歩7分
新築 / 4階建
東京都中野区南台3丁目

10.7万円 / 管理費8,000円
敷
無料礼
無料ワンルーム / 20.45㎡ / 2階
賃貸マンション
HJ PLACE SASAZUKA

京王線 / 笹塚駅 徒歩7分
築3年 / 地上3階地下1階建
東京都世田谷区大原1丁目34-7

7.5万円 / 管理費5,000円
敷
7.5万円礼
7.5万円ワンルーム / 10.68㎡ / 2階
賃貸マンション
渋谷区 地上4階地下1階建 2023年築

京王線 / 笹塚駅 徒歩7分
築2年 / 4階建
東京都渋谷区笹塚2丁目25-11

8.7万円 / 管理費8,000円
敷
無料礼
無料ワンルーム / 12.25㎡ / 4階
賃貸マンション
パークキューブ笹塚
京王線 / 笹塚駅 徒歩4分
築16年 / 地上15階地下1階建
東京都渋谷区笹塚2
10.4万円 / 管理費6,000円
敷
10.4万円礼
10.4万円1K / 20.03㎡ / 3階
賃貸マンション
アレッタ笹塚

京王線 / 笹塚駅 徒歩9分
築2年 / 地上4階地下1階建
東京都渋谷区笹塚3丁目63-7

9.7万円 / 管理費9,500円
敷
9.7万円礼
9.7万円ワンルーム / 20.04㎡ / 2階
賃貸マンション
スタイルレジデンス渋谷笹塚

京王線 / 笹塚駅 徒歩10分
築6年 / 4階建
東京都渋谷区笹塚3丁目46-1

9.8万円 / 管理費8,000円
敷
9.8万円礼
9.8万円ワンルーム / 19.34㎡ / 4階
賃貸マンション
ボヌール和泉

東京メトロ丸ノ内線 / 方南町駅 徒歩9分
築15年 / 5階建
東京都杉並区和泉4丁目18-33

8.3万円 / 管理費6,000円
敷
8.3万円礼
8.3万円1K / 23.4㎡ / 2階
賃貸マンション
BRANCHE中野富士見町
)
東京メトロ丸ノ内線 / 方南町駅 徒歩15分
築14年 / 4階建
東京都中野区弥生町4丁目23-10
)
9万円 / 管理費5,000円
敷
9万円礼
9万円ワンルーム / 23.71㎡ / 3階
賃貸マンション
杉並区方南1丁目 5階建 2019年築

京王線 / 代田橋駅 徒歩10分
築6年 / 5階建
東京都杉並区方南1丁目26-3

8.1万円 / 管理費18,000円
敷
無料礼
無料1K / 19.98㎡ / 5階
賃貸マンション
渋谷区幡ヶ谷 3階建 2023年築
)
京王線 / 笹塚駅 徒歩18分
築2年 / 4階建
東京都渋谷区幡ヶ谷3丁目8-3
)
10.3万円 / 管理費12,000円
敷
無料礼
無料1K / 20.65㎡ / 3階
賃貸マンション
クレヴィスタ方南町

東京メトロ丸ノ内線 / 方南町駅 徒歩10分
築5年 / 7階建
東京都杉並区堀ノ内3丁目

10.7万円 / 管理費11,000円
敷
無料礼
10.7万円ワンルーム / 20.58㎡ / 4階
賃貸マンション
中野区南台3丁目 4階建 2025年築

東京メトロ丸ノ内線 / 方南町駅 徒歩7分
新築 / 4階建
東京都中野区南台3丁目

10.7万円 / 管理費8,000円
敷
無料礼
無料ワンルーム / 20.45㎡ / 2階
賃貸マンション
HJ PLACE SASAZUKA

京王線 / 笹塚駅 徒歩7分
築3年 / 地上3階地下1階建
東京都世田谷区大原1丁目34-7

7.5万円 / 管理費5,000円
敷
7.5万円礼
7.5万円ワンルーム / 10.68㎡ / 2階
賃貸マンション
渋谷区 地上4階地下1階建 2023年築

京王線 / 笹塚駅 徒歩7分
築2年 / 4階建
東京都渋谷区笹塚2丁目25-11

8.7万円 / 管理費8,000円
敷
無料礼
無料ワンルーム / 12.25㎡ / 4階
賃貸マンション
パークキューブ笹塚
京王線 / 笹塚駅 徒歩4分
築16年 / 地上15階地下1階建
東京都渋谷区笹塚2
10.4万円 / 管理費6,000円
敷
10.4万円礼
10.4万円1K / 20.03㎡ / 3階
賃貸マンション
アレッタ笹塚

京王線 / 笹塚駅 徒歩9分
築2年 / 地上4階地下1階建
東京都渋谷区笹塚3丁目63-7

9.7万円 / 管理費9,500円
敷
9.7万円礼
9.7万円ワンルーム / 20.04㎡ / 2階
賃貸マンション
スタイルレジデンス渋谷笹塚

京王線 / 笹塚駅 徒歩10分
築6年 / 4階建
東京都渋谷区笹塚3丁目46-1

9.8万円 / 管理費8,000円
敷
9.8万円礼
9.8万円ワンルーム / 19.34㎡ / 4階
賃貸マンション
ボヌール和泉

東京メトロ丸ノ内線 / 方南町駅 徒歩9分
築15年 / 5階建
東京都杉並区和泉4丁目18-33

8.3万円 / 管理費6,000円
敷
8.3万円礼
8.3万円1K / 23.4㎡ / 2階
賃貸マンション
BRANCHE中野富士見町
)
東京メトロ丸ノ内線 / 方南町駅 徒歩15分
築14年 / 4階建
東京都中野区弥生町4丁目23-10
)
9万円 / 管理費5,000円
敷
9万円礼
9万円ワンルーム / 23.71㎡ / 3階
賃貸マンション
杉並区方南1丁目 5階建 2019年築

京王線 / 代田橋駅 徒歩10分
築6年 / 5階建
東京都杉並区方南1丁目26-3

8.1万円 / 管理費18,000円
敷
無料礼
無料1K / 19.98㎡ / 5階
賃貸マンション
渋谷区幡ヶ谷 3階建 2023年築
)
京王線 / 笹塚駅 徒歩18分
築2年 / 4階建
東京都渋谷区幡ヶ谷3丁目8-3
)
10.3万円 / 管理費12,000円
敷
無料礼
無料1K / 20.65㎡ / 3階
)
)
)
)
)
)
)
)
)
)
)
)
)
)
)
)
)
)
)
)
)
)
)
)
)
)
)
)
)
















