ディアコート西新井2LDK/3階/301(東京都足立区 / 梅島駅)の賃貸
1/24
1/24
17.6万円
初期費用を知りたい管理費7,000円
- 敷金
- 17.6万円
- 保証金
- なし
- 礼金
- 17.6万円
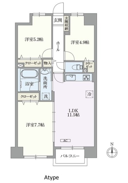
- 広さ
- 67.82㎡
- 階数
- 3階 / 3階建
- 間取り
- 2LDK
- 建物
- マンション (鉄骨)
- 築年数
- 築2年
- 向き
- 交通
- 東武伊勢崎線 / 梅島駅徒歩9分
- 東武伊勢崎線 / 西新井駅徒歩11分
- 住所
- 東京都足立区島根1丁目
コンビニエンスストア 448m
スーパーマーケット 458m
総合病院 280m
公園 1216m
商店街 1502m
梅島駅前通り商店街 694m
無料で10秒! カンタンお問い合わせ

ディアコート西新井
敷
17.6万円礼
17.6万円特徴
バス・トイレ別
2階以上
エアコン付き
ペット相談可
駐車場あり
室内洗濯機置場
オートロック
洗面所独立
- 入居条件
- 楽器不可、事務所(SOHO)不可、ペット不可、保証人不要、初期費用カード決済可最新の空室状況が知りたい
- バス・トイレ
- 専用バス、専用トイレ、バストイレ別、シャワー、給湯、温水洗浄便座、洗面所独立
- キッチン
- IHクッキングヒーター、3口以上コンロ、システムキッチン、カウンターキッチン
- セキュリティ
- オートロック、防犯カメラ
- 室内設備
- エアコン、室内洗濯置、フローリング、シューズボックスお部屋の詳しい情報を知りたい
- 部屋の特徴
- バルコニー、二階以上、最上階写真を送ってほしい
- その他の特徴
- 公営水道、下水
無料で10秒! カンタンお問い合わせ

ディアコート西新井
敷
17.6万円礼
17.6万円同じ建物で掲載中の物件 (1件)
不動産会社からのコメント
築浅!便利なエレベーター付き!
毎月集送金手数料825円(月額) お車でご案内いたします。ご来店お待ちしております。更新事務手数料16500円 掲載情報と現況が異なる場合は、現況を優先とします。
その他
- 駐車/駐輪
- 要確認 / なし駐車可能な車種や台数を知りたい
- 入居時期
- 2026年4月下旬最新の空室状況が知りたい
- 損保
- 住宅保険: 要
- 保証人代行
- 利用可 費用: 初回:月額賃料合計の60%(最低保証料30,000円)1年更新時:10,000円 毎月集送金手数料:825円
- その他費用
- 情報
情報登録日:2026/3/9
情報更新日:2026/3/14
次回更新予定日:2026/3/28
提供元:LIFULL HOME'S
- 備考
- 現況: 居住中 更新料: 新賃料の1.0ヶ月分 契約期間: 2年 LIFULL HOME'S物件番号: 1212220245445
取扱い会社
- 取扱い会社
- ハウス・トゥ・ハウス・ネットサービス株式会社 西日暮里店条件が近い物件も紹介してほしい
- 免許番号
- 国土交通大臣(04)第007400号
- 取引態様
- 一般媒介
- 所在地
- 東京都荒川区西日暮里5丁目21−5
- 電話番号
- 03-6806-6030
- 定休日
- 水曜日 (1月〜3月は無休)
- 所属団体名
- (公社)首都圏不動産公正取引協議会,(公社)全日本不動産協会
おすすめ物件 (1件)
賃貸マンション
U COURT 西新井

東武伊勢崎線 / 梅島駅 徒歩9分
築32年 / 10階建
東京都足立区梅島3丁目43-12

17万円 / 管理費10,000円
敷
17万円礼
無料3LDK / 64.5㎡ / 9階
賃貸マンション
U COURT 西新井

東武伊勢崎線 / 梅島駅 徒歩9分
築32年 / 10階建
東京都足立区梅島3丁目43-12

17万円 / 管理費10,000円
敷
17万円礼
無料3LDK / 64.5㎡ / 9階
同じ最寄り駅 × 同じ特徴 で探す
同じ市区町村 × 同じ特徴 で探す























