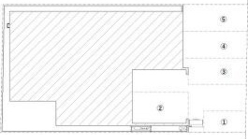
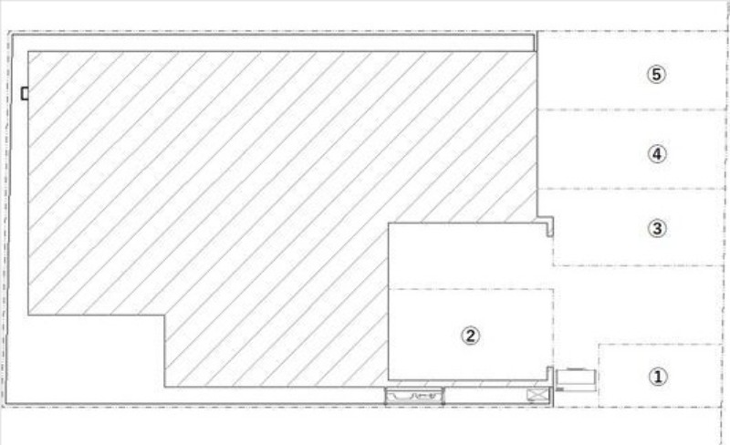
札幌市東区北二十条東18丁目 4階建 2023年築1LDK/3階(北海道札幌市東区 / 元町駅)の賃貸
1/22
1/22
6万円
初期費用を知りたい管理費4,000円
- 敷金
- 無料
- 保証金
- なし
- 礼金
- 無料
- 広さ
- 33.18㎡
- 階数
- 3階 / 4階建
- 間取り
- 1LDK
- 建物
- マンション (鉄骨鉄筋)
- 築年数
- 築3年
- 向き
- 南
- 交通
- 地下鉄東豊線 / 元町駅徒歩10分
- 地下鉄東豊線 / 環状通東駅徒歩12分
- 住所
- 北海道札幌市東区北二十条東18丁目
無料で10秒! カンタンお問い合わせ

札幌市東区北二十条東18丁目 4階建 2023年築
敷
無料礼
無料特徴
バス・トイレ別
2階以上
エアコン付き
ペット相談可
駐車場あり
室内洗濯機置場
オートロック
洗面所独立
- 入居条件
- 二人入居可、ペット相談、保証人要、礼金不要、敷金不要最新の空室状況が知りたい
- バス・トイレ
- 給湯、シャワー付洗面化粧台、温水洗浄便座、浴室乾燥機、洗面所独立、専用バス、バストイレ別、シャワー
- キッチン
- システムキッチン
- セキュリティ
- 防犯カメラ、オートロック
- 室内設備
- CS、BS、クロゼット、シューズボックス、エアコン、室内洗濯置、ネット使用料不要お部屋の詳しい情報を知りたい
- 部屋の特徴
- 二階以上写真を送ってほしい
- 共用部
- 宅配ボックス、駐輪場
- その他の特徴
- 公営水道、都市ガス、下水
無料で10秒! カンタンお問い合わせ

札幌市東区北二十条東18丁目 4階建 2023年築
敷
無料礼
無料その他
- 駐車/駐輪
- 空無 / あり駐車可能な車種や台数を知りたい
- 入居時期
- 損保
- 住宅保険: 要
- 保証人代行
- 加入要 会社名: その他 費用: オリコフォレントインシュア 初回引落時に50%、毎月1.5% オリコ否決時は内容に応じて全保連利用を相談。
- その他費用
初期費用を知りたい町内会費:330円
水廻り消毒料 契約時:27,500円
室内清掃費用:11,000円
エアコン清掃維持費 契約時:22,000円
- 情報
情報登録日:2026/1/9
情報更新日:2026/2/25
次回更新予定日:2026/3/4
- 備考
- 現況: 空家 契約期間: 2年 総戸数: 11戸 自社管理番号: 13570193
取扱い会社
- 取扱い会社
- 株式会社ジョンソン 本店条件が近い物件も紹介してほしい
- 免許番号
- 北海道(石狩)知事免許(01)第9484号
- 取引態様
- 仲介
- 所在地
- 北海道札幌市中央区南4条西6丁目8-3 晴ばれビル501-D
- 電話番号
- 011-351-0095
- 営業時間
- 11:00~18:00
- 定休日
- 不定休
- 所属団体名
- 全日不動産協会
おすすめ物件 (20件)
賃貸マンション
プレミアシティ元町
)
地下鉄東豊線 / 元町駅 徒歩9分
築13年 / 4階建
北海道札幌市東区北二十三条東9丁目2-17
)
5.7万円 / 管理費4,000円
敷
5.7万円礼
無料1LDK / 34㎡ / 2階
賃貸マンション
ヴェーロ・シャングリーラ

地下鉄東豊線 / 環状通東駅 徒歩8分
築18年 / 5階建
北海道札幌市東区北十二条東11丁目3番3号

5.7万円 / 管理費4,000円
敷
無料礼
無料1LDK / 35.49㎡ / 4階
賃貸マンション
札幌市東区北二十六条東 4階建 2022年築
)
地下鉄東豊線 / 元町駅 徒歩8分
築4年 / 4階建
北海道札幌市東区北二十六条東13丁目1-8
)
7.9万円 / 管理費3,000円
敷
7.9万円礼
無料2LDK / 40.8㎡ / 4階
賃貸マンション
ステラ
)
地下鉄東豊線 / 元町駅 徒歩3分
築12年 / 4階建
北海道札幌市東区北二十三条東14丁目3-19
)
5.5万円 / 管理費3,000円
敷
5.5万円礼
無料1LDK / 35.06㎡ / 4階
賃貸マンション
JEEK BLAU MOTOMACHI

地下鉄東豊線 / 元町駅 徒歩10分
新築 / 4階建
北海道札幌市東区北二十三条東19丁目

5.9万円 / 管理費5,000円
敷
5.9万円礼
5.9万円1LDK / 33.58㎡ / 2階
賃貸マンション
フロントロー栄町
)
地下鉄東豊線 / 元町駅 徒歩25分
築2年 / 4階建
北海道札幌市東区北三十八条東16丁目3
)
5.9万円 / 管理費4,000円
敷
5.9万円礼
無料1LDK / 35.81㎡ / 3階
賃貸マンション
POMMERAIE北13条(ポムレ北13条)
)
地下鉄東豊線 / 環状通東駅 徒歩6分
新築 / 4階建
北海道札幌市東区北十三条東16丁目4-23
)
6.8万円 / 管理費6,000円
敷
無料礼
無料1LDK / 42.98㎡ / 3階
賃貸マンション
SーRESIDENCE元町ALECTRA
)
地下鉄東豊線 / 元町駅 徒歩3分
築2年 / 4階建
北海道札幌市東区北二十四条東16丁目3
)
6.5万円 / 管理費5,000円
敷
無料礼
6.5万円1LDK / 35.19㎡ / 4階
賃貸マンション
札幌市東区北二十五条東16丁目 4階建 2025年築

地下鉄東豊線 / 元町駅 徒歩3分
新築 / 4階建
北海道札幌市東区北二十五条東16丁目

6.1万円 / 管理費5,000円
敷
無料礼
6.1万円1LDK / 34.18㎡ / 2階
賃貸マンション
グランメール北24条
)
地下鉄東豊線 / 元町駅 徒歩19分
築11年 / 4階建
北海道札幌市東区北二十四条東3丁目1-18
)
5.1万円 / 管理費4,000円
敷
無料礼
無料1LDK / 34.6㎡ / 4階
賃貸アパート
DAZZLE ME(ダズル ミー)
)
地下鉄東豊線 / 元町駅 徒歩10分
築2年 / 4階建
北海道札幌市東区北十九条東17丁目3番1号
)
6万円 / 管理費5,000円
敷
6万円礼
無料1LDK / 36.72㎡ / 4階
賃貸マンション
アレイズ元町
)
地下鉄東豊線 / 元町駅 徒歩4分
築9年 / 4階建
北海道札幌市東区北二十五条東14丁目3-6
)
4.8万円 / 管理費4,000円
敷
4.8万円礼
無料1DK / 31.07㎡ / 2階
賃貸マンション
GARBO
)
地下鉄東豊線 / 環状通東駅 徒歩8分
築6年 / 4階建
北海道札幌市東区北十六条東12丁目2-19
)
5.9万円 / 管理費4,000円
敷
5.9万円礼
無料1DK / 34.71㎡ / 4階
賃貸マンション
URBAN STAGE北20条

地下鉄東豊線 / 元町駅 徒歩9分
新築 / 4階建
北海道札幌市東区北二十条東16丁目

6万円 / 管理費4,000円
敷
無料礼
無料1LDK / 32.8㎡ / 4階
賃貸マンション
バンビーニM19

地下鉄東豊線 / 環状通東駅 徒歩8分
築12年 / 4階建
北海道札幌市東区北十九条東17丁目1番8号

5.3万円 / 管理費3,000円
敷
5.3万円礼
無料1LDK / 34.51㎡ / 3階
賃貸マンション
地下鉄東豊線 環状通東駅 4階建 新築
地下鉄東豊線 / 環状通東駅 徒歩5分
新築 / 4階建
北海道札幌市東区北十三条東16
6.8万円 / 管理費6,000円
敷
6.8万円礼
無料1LDK / 42.98㎡ / 3階
賃貸マンション
ベルツリーN19

地下鉄東豊線 / 環状通東駅 徒歩8分
新築 / 4階建
北海道札幌市東区北十九条東16丁目

7.9万円 / 管理費6,000円
敷
無料礼
7.9万円2LDK / 42.05㎡ / 4階
賃貸マンション
ラ・シュエット元町

地下鉄東豊線 / 元町駅 徒歩7分
新築 / 4階建
北海道札幌市東区北二十三条東18丁目

6.2万円 / 管理費5,000円
敷
無料礼
無料1LDK / 33.75㎡ / 4階
賃貸マンション
地下鉄東豊線 環状通東駅 4階建 新築
地下鉄東豊線 / 環状通東駅 徒歩8分
新築 / 4階建
北海道札幌市東区北十一条東12
6.4万円 / 管理費3,000円
敷
6.4万円礼
無料1LDK / 34.69㎡ / 4階
賃貸マンション
ムルソー・プルミエール

地下鉄東豊線 / 環状通東駅 徒歩4分
築10年 / 4階建
北海道札幌市東区北十四条東16丁目

5.6万円 / 管理費4,000円
敷
5.6万円礼
無料1LDK / 34.93㎡ / 4階
賃貸マンション
プレミアシティ元町
)
地下鉄東豊線 / 元町駅 徒歩9分
築13年 / 4階建
北海道札幌市東区北二十三条東9丁目2-17
)
5.7万円 / 管理費4,000円
敷
5.7万円礼
無料1LDK / 34㎡ / 2階
賃貸マンション
ヴェーロ・シャングリーラ

地下鉄東豊線 / 環状通東駅 徒歩8分
築18年 / 5階建
北海道札幌市東区北十二条東11丁目3番3号

5.7万円 / 管理費4,000円
敷
無料礼
無料1LDK / 35.49㎡ / 4階
賃貸マンション
札幌市東区北二十六条東 4階建 2022年築
)
地下鉄東豊線 / 元町駅 徒歩8分
築4年 / 4階建
北海道札幌市東区北二十六条東13丁目1-8
)
7.9万円 / 管理費3,000円
敷
7.9万円礼
無料2LDK / 40.8㎡ / 4階
賃貸マンション
ステラ
)
地下鉄東豊線 / 元町駅 徒歩3分
築12年 / 4階建
北海道札幌市東区北二十三条東14丁目3-19
)
5.5万円 / 管理費3,000円
敷
5.5万円礼
無料1LDK / 35.06㎡ / 4階
賃貸マンション
JEEK BLAU MOTOMACHI

地下鉄東豊線 / 元町駅 徒歩10分
新築 / 4階建
北海道札幌市東区北二十三条東19丁目

5.9万円 / 管理費5,000円
敷
5.9万円礼
5.9万円1LDK / 33.58㎡ / 2階
賃貸マンション
フロントロー栄町
)
地下鉄東豊線 / 元町駅 徒歩25分
築2年 / 4階建
北海道札幌市東区北三十八条東16丁目3
)
5.9万円 / 管理費4,000円
敷
5.9万円礼
無料1LDK / 35.81㎡ / 3階
賃貸マンション
POMMERAIE北13条(ポムレ北13条)
)
地下鉄東豊線 / 環状通東駅 徒歩6分
新築 / 4階建
北海道札幌市東区北十三条東16丁目4-23
)
6.8万円 / 管理費6,000円
敷
無料礼
無料1LDK / 42.98㎡ / 3階
賃貸マンション
SーRESIDENCE元町ALECTRA
)
地下鉄東豊線 / 元町駅 徒歩3分
築2年 / 4階建
北海道札幌市東区北二十四条東16丁目3
)
6.5万円 / 管理費5,000円
敷
無料礼
6.5万円1LDK / 35.19㎡ / 4階
賃貸マンション
札幌市東区北二十五条東16丁目 4階建 2025年築

地下鉄東豊線 / 元町駅 徒歩3分
新築 / 4階建
北海道札幌市東区北二十五条東16丁目

6.1万円 / 管理費5,000円
敷
無料礼
6.1万円1LDK / 34.18㎡ / 2階
賃貸マンション
グランメール北24条
)
地下鉄東豊線 / 元町駅 徒歩19分
築11年 / 4階建
北海道札幌市東区北二十四条東3丁目1-18
)
5.1万円 / 管理費4,000円
敷
無料礼
無料1LDK / 34.6㎡ / 4階
賃貸アパート
DAZZLE ME(ダズル ミー)
)
地下鉄東豊線 / 元町駅 徒歩10分
築2年 / 4階建
北海道札幌市東区北十九条東17丁目3番1号
)
6万円 / 管理費5,000円
敷
6万円礼
無料1LDK / 36.72㎡ / 4階
賃貸マンション
アレイズ元町
)
地下鉄東豊線 / 元町駅 徒歩4分
築9年 / 4階建
北海道札幌市東区北二十五条東14丁目3-6
)
4.8万円 / 管理費4,000円
敷
4.8万円礼
無料1DK / 31.07㎡ / 2階
賃貸マンション
GARBO
)
地下鉄東豊線 / 環状通東駅 徒歩8分
築6年 / 4階建
北海道札幌市東区北十六条東12丁目2-19
)
5.9万円 / 管理費4,000円
敷
5.9万円礼
無料1DK / 34.71㎡ / 4階
賃貸マンション
URBAN STAGE北20条

地下鉄東豊線 / 元町駅 徒歩9分
新築 / 4階建
北海道札幌市東区北二十条東16丁目

6万円 / 管理費4,000円
敷
無料礼
無料1LDK / 32.8㎡ / 4階
賃貸マンション
バンビーニM19

地下鉄東豊線 / 環状通東駅 徒歩8分
築12年 / 4階建
北海道札幌市東区北十九条東17丁目1番8号

5.3万円 / 管理費3,000円
敷
5.3万円礼
無料1LDK / 34.51㎡ / 3階
賃貸マンション
地下鉄東豊線 環状通東駅 4階建 新築
地下鉄東豊線 / 環状通東駅 徒歩5分
新築 / 4階建
北海道札幌市東区北十三条東16
6.8万円 / 管理費6,000円
敷
6.8万円礼
無料1LDK / 42.98㎡ / 3階
賃貸マンション
ベルツリーN19

地下鉄東豊線 / 環状通東駅 徒歩8分
新築 / 4階建
北海道札幌市東区北十九条東16丁目

7.9万円 / 管理費6,000円
敷
無料礼
7.9万円2LDK / 42.05㎡ / 4階
賃貸マンション
ラ・シュエット元町

地下鉄東豊線 / 元町駅 徒歩7分
新築 / 4階建
北海道札幌市東区北二十三条東18丁目

6.2万円 / 管理費5,000円
敷
無料礼
無料1LDK / 33.75㎡ / 4階
賃貸マンション
地下鉄東豊線 環状通東駅 4階建 新築
地下鉄東豊線 / 環状通東駅 徒歩8分
新築 / 4階建
北海道札幌市東区北十一条東12
6.4万円 / 管理費3,000円
敷
6.4万円礼
無料1LDK / 34.69㎡ / 4階
賃貸マンション
ムルソー・プルミエール

地下鉄東豊線 / 環状通東駅 徒歩4分
築10年 / 4階建
北海道札幌市東区北十四条東16丁目

5.6万円 / 管理費4,000円
敷
5.6万円礼
無料1LDK / 34.93㎡ / 4階
同じ最寄り駅 × 同じ特徴 で探す
同じ市区町村 × 同じ特徴 で探す





















