アローズ茗荷谷3LDK/5階(東京都文京区 / 茗荷谷駅)の賃貸
1/26
1/26
40万円
初期費用を知りたい管理費20,000円
- 敷金
- 40万円
- 保証金
- なし
- 礼金
- 無料
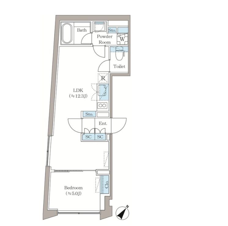
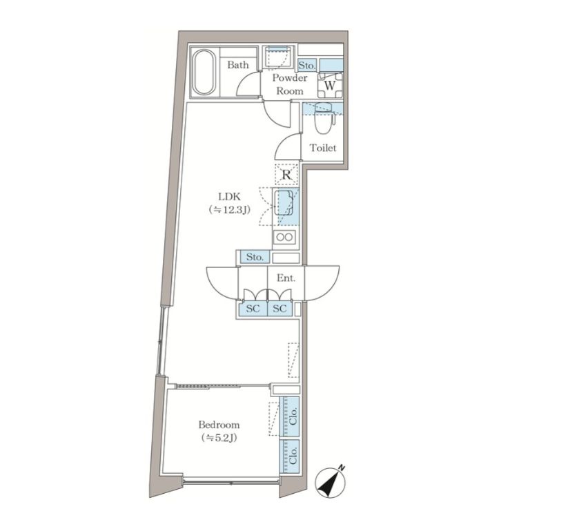
- 広さ
- 84.76㎡
- 階数
- 5階 / 6階建
- 間取り
- 3LDK
- 建物
- マンション (鉄筋コンクリート)
- 築年数
- 新築
- 向き
- 南西
- 交通
- 東京メトロ丸ノ内線 / 茗荷谷駅徒歩10分
- 東京メトロ丸ノ内線 / 新大塚駅徒歩10分
- 住所
- 東京都文京区大塚4丁目
コンビニエンスストア 218m
スーパーマーケット 484m
総合病院 664m
公園 187m
ドラッグストア 343m
銀行 523m
商店街 958m
ミニコープ氷川下店 436m
無料で10秒! カンタンお問い合わせ

アローズ茗荷谷
敷
40万円礼
無料特徴
バス・トイレ別
2階以上
エアコン付き
ペット相談可
駐車場あり
室内洗濯機置場
オートロック
洗面所独立
- 入居条件
- ペット相談、保証人不要、即入居可最新の空室状況が知りたい
- バス・トイレ
- 専用バス、専用トイレ、バストイレ別、シャワー、追焚機能浴室、温水洗浄便座、浴室乾燥機、洗面所独立
- キッチン
- ガスコンロ対応、3口以上コンロ、システムキッチン
- セキュリティ
- オートロック
- 室内設備
- エアコン、室内洗濯置、BS、フローリング、インターネット対応、ネット使用料不要、クロゼット、シューズボックスお部屋の詳しい情報を知りたい
- 部屋の特徴
- 角住戸、二階以上写真を送ってほしい
- 共用部
- エレベーター、宅配ボックス
- その他の特徴
- 公営水道、都市ガス、下水、定期借家
無料で10秒! カンタンお問い合わせ

アローズ茗荷谷
敷
40万円礼
無料同じ建物で掲載中の物件 (19件)
不動産会社からのコメント
口座振替手数料110円(月額) ・定借再契約相談可 ・退去時清掃費:158.501円・エアコン清掃費:借主負担 ※写真・図面と現況が異なる場合、現況を優先させていただきます ・ペット相談可(小型犬or猫1匹まで)+敷1・法人相談可 ・パントリー有り ・各詳細はお問い合わせの上ご確認お願いいたします
その他
- 駐車/駐輪
- 要確認 / なし駐車可能な車種や台数を知りたい
- 入居時期
- 損保
- 住宅保険: 要
- 保証人代行
- 加入要 費用: 初回保証料:総賃料の50%(最低15,000円) 2年目以降:10,000円/年
- その他費用
- 情報
情報登録日:2026/3/12
情報更新日:2026/3/11
次回更新予定日:2026/3/16
- 備考
- 現況: 空家 状態: 未入居 契約期間: 2年 ※定期借家 管理人: 巡回 自社管理番号: 327694
取扱い会社
- 取扱い会社
- New House株式会社 池袋店条件が近い物件も紹介してほしい
- 免許番号
- 東京都知事(3)第96228号
- 取引態様
- 仲介
- 所在地
- 東京都豊島区池袋2-53-1 小林ビル6F
- 電話番号
- 03-5927-1172
- 営業時間
- 10:00~19:00
- 定休日
- なし(GW・夏季・年末年始)
- 所属団体名
- (公社)全国宅地建物取引業保証協会
おすすめ物件 (1件)
賃貸マンション
ベルメゾン音羽

東京メトロ丸ノ内線 / 新大塚駅 徒歩9分
築44年 / 4階建
東京都文京区大塚2丁目13-3

38万円 / 管理費なし
敷
38万円礼
38万円3LDK / 79.39㎡ / 2階
賃貸マンション
ベルメゾン音羽

東京メトロ丸ノ内線 / 新大塚駅 徒歩9分
築44年 / 4階建
東京都文京区大塚2丁目13-3

38万円 / 管理費なし
敷
38万円礼
38万円3LDK / 79.39㎡ / 2階
同じ最寄り駅 × 同じ特徴 で探す
同じ市区町村 × 同じ特徴 で探す



































