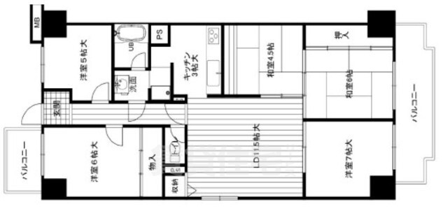
朝日プラザ千里北 C棟5LDK/6階/6階(大阪府茨木市 / 阪大病院前駅)の賃貸
1/6
1/6
12.8万円
初期費用を知りたい管理費なし
- 敷金
- 無料
- 保証金
- なし
- 礼金
- 25.6万円
- 広さ
- 91.48㎡
- 階数
- 6階 / 12階建
- 間取り
- 5LDK
- 建物
- マンション (鉄骨鉄筋)
- 築年数
- 築42年
- 向き
- 交通
- 大阪モノレール彩都線 / 阪大病院前駅徒歩6分
- 大阪モノレール彩都線 / 豊川駅徒歩19分
- 住所
- 大阪府茨木市美穂ケ丘19
沢池小学校 1116m
西陵中学校 1730m
コンビニ 211m
スーパー 1061m
無料で10秒! カンタンお問い合わせ
)
朝日プラザ千里北 C棟
敷
無料礼
25.6万円特徴
バス・トイレ別
2階以上
エアコン付き
ペット相談可
駐車場あり
室内洗濯機置場
オートロック
洗面所独立
- バス・トイレ
- 給湯、シャンプードレッサー、バストイレ別、洗面所独立、温水洗浄便座
- キッチン
- システムキッチン
- 室内設備
- インターホン、インターネット対応、フローリング、室内洗濯置、クロゼット、押入お部屋の詳しい情報を知りたい
- 部屋の特徴
- バルコニー、二階以上写真を送ってほしい
- 共用部
- 敷地内ごみ置き場、駐輪場
- その他の特徴
- 地デジ対応、都市ガス、駐車場あり
無料で10秒! カンタンお問い合わせ
)
朝日プラザ千里北 C棟
敷
無料礼
25.6万円同じ建物で掲載中の物件 (1件)
その他
- 駐車/駐輪
- 有り(敷地内) 費用: 7,600円 距離: 0m 備考: 7600円~11900円(管理事務所確認要) / あり駐車可能な車種や台数を知りたい
- 入居時期
- 損保
- 住宅保険: 要 15000円
- 保証人代行
- 保証人: 要
- その他費用
- 情報
情報登録日:2026/2/25
情報更新日:2026/2/23
次回更新予定日:2026/3/12
- 備考
- その他: 借主都合による1年未満の解約には短期解約違約金として総賃料2ヶ月分の支払義務が借主に発生します。 保証会社利用必須 初回:総賃料の50%、月額保証料1%、引落手数料\330円 業者管理CD: 112110409
取扱い会社
- 取扱い会社
- 株式会社三島コーポレーション JR茨木駅前店条件が近い物件も紹介してほしい
- 免許番号
- 大阪府知事(12)第21564号
- 取引態様
- 一般媒介
- 所在地
- 大阪府茨木市駅前1-2-7
- 電話番号
- 072-620-1515
- 定休日
- 水曜日(12/26~1/6)
- 所属団体名
- 大阪府宅地建物取引業協会
)
)
)
)
)

