VITA八王子1SLDK/2階/204(東京都八王子市 / 八王子駅)の賃貸
1/30
1/30
17.8万円
初期費用を知りたい管理費なし
- 敷金
- 17.8万円
- 保証金
- なし
- 礼金
- 17.8万円
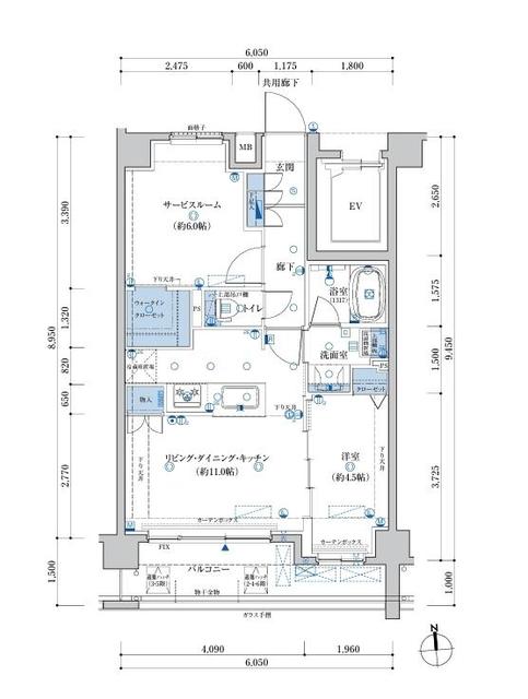
- 広さ
- 50.03㎡
- 階数
- 2階 / 7階建
- 間取り
- 1SLDK
- 建物
- マンション (鉄筋コンクリート)
- 築年数
- 築1年
- 向き
- 南
- 交通
- 中央線 / 八王子駅徒歩16分
- 八高線 / 八王子駅徒歩16分
- 住所
- 東京都八王子市南新町22
八王子第七小学校 800m
八王子市立第六中学校 789m
聖公会八王子幼稚園 1174m
無料で10秒! カンタンお問い合わせ

VITA八王子
敷
17.8万円礼
17.8万円特徴
バス・トイレ別
2階以上
エアコン付き
ペット相談可
駐車場あり
室内洗濯機置場
オートロック
洗面所独立
- 入居条件
- 初期費用カード決済可、二人入居可、ペット相談、保証人不要最新の空室状況が知りたい
- バス・トイレ
- 専用バス、専用トイレ、バストイレ別、シャワー、給湯、追焚機能浴室、温水洗浄便座、浴室乾燥機、洗面所独立、オートバス
- キッチン
- ガスコンロ対応、3口以上コンロ、システムキッチン、カウンターキッチン
- セキュリティ
- オートロック、防犯カメラ
- 室内設備
- エアコン、室内洗濯置、フローリング、インターネット対応、ネット使用料不要、全居室収納、クロゼット、シューズボックス、照明付お部屋の詳しい情報を知りたい
- 部屋の特徴
- バルコニー、二階以上写真を送ってほしい
- 共用部
- エレベーター、駐輪場、バイク置場、敷地内駐車場
- その他の特徴
- 公営水道、都市ガス、下水、駐車場あり
無料で10秒! カンタンお問い合わせ

VITA八王子
敷
17.8万円礼
17.8万円不動産会社からのコメント
鍵交換代:55000円 入居安心サポート:月額1100円 口座振替手数料:月額550円
その他
- 駐車/駐輪
- 空有 費用: 27,500円 / あり駐車可能な車種や台数を知りたい
- 入居時期
- 2026年6月上旬最新の空室状況が知りたい
- 損保
- 住宅保険: 要
- 保証人代行
- 加入要 費用: 初回保証料:賃料等総額の50% 継続保証料:1年ごと15000円
- その他費用
- 情報
情報登録日:2026/4/6
情報更新日:2026/4/6
次回更新予定日:2026/4/16
- 備考
- 現況: 居住中 更新料: 新賃料の1.0ヶ月分 契約期間: 2年 自社管理番号: 700571
取扱い会社
- 取扱い会社
- 株式会社ドリームアーク いえらび 八王子店条件が近い物件も紹介してほしい
- 免許番号
- 国土交通大臣(2)第9444号
- 取引態様
- 仲介
- 所在地
- 東京都八王子市東町13-12 CRビル 5階
- 電話番号
- 042-649-4883
おすすめ物件 (2件)
賃貸マンション
プライマル八王子横山町

中央線 / 八王子駅 徒歩8分
築9年 / 14階建
東京都八王子市横山町14-4

19.2万円 / 管理費10,000円
敷
19.2万円礼
無料1SLDK / 56.16㎡ / 4階
賃貸マンション
プライマル八王子横山町

中央線 / 八王子駅 徒歩8分
築9年 / 14階建
東京都八王子市横山町14-4

19.2万円 / 管理費10,000円
敷
19.2万円礼
無料1SLDK / 56.16㎡ / 4階
同じ最寄り駅 × 同じ特徴 で探す
同じ市区町村 × 同じ特徴 で探す

































