ウインド ビバーチェ1LDK/1階(大阪府寝屋川市 / 萱島駅)の賃貸
1/30
1/30
7.9万円
初期費用を知りたい管理費6,500円
- 敷金
- 無料
- 保証金
- なし
- 礼金
- 7.9万円
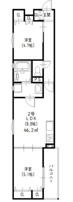
- 広さ
- 45.9㎡
- 階数
- 1階 / 3階建
- 間取り
- 1LDK
- 建物
- マンション (鉄骨)
- 築年数
- 築5年
- 向き
- 南
- 交通
- 京阪本線 / 萱島駅徒歩7分
- 住所
- 大阪府寝屋川市中神田町
寝屋川市立神田小学校 815m
コンビニエンスストア 284m
スーパーマーケット 563m
ドラッグストア 497m
萱島 623m
無料で10秒! カンタンお問い合わせ

ウインド ビバーチェ
敷
無料礼
7.9万円特徴
バス・トイレ別
2階以上
エアコン付き
ペット相談可
駐車場あり
室内洗濯機置場
オートロック
洗面所独立
- バス・トイレ
- 専用バス、専用トイレ、バストイレ別、シャワー、給湯、追焚機能浴室、シャワー付洗面化粧台、温水洗浄便座、浴室乾燥機
- キッチン
- システムキッチン、カウンターキッチン
- セキュリティ
- オートロック
- 室内設備
- エアコン、床下収納、室内洗濯置、CS、BS、フローリング、ネット使用料不要、クロゼットお部屋の詳しい情報を知りたい
- 部屋の特徴
- バルコニー写真を送ってほしい
- 共用部
- バイク置場、敷地内駐車場
- その他の特徴
- 都市ガス、駐車場あり
無料で10秒! カンタンお問い合わせ

ウインド ビバーチェ
敷
無料礼
7.9万円不動産会社からのコメント
寝屋川市は、大阪と京都の中間点に位置し、交通の便や自然環境、子育て支援の充実などが特徴のまちです。?
淀川や寝屋川が流れ、河川公園や緑地公園等があり、自然を身近に感じることができます?♪北摂山系と生駒山系に囲まれていることから、寒気が防がれる比較的温暖な気候となっている点も〇(^^)/
その他
- 駐車/駐輪
- 空有 費用: 11,000円 税: 税込み 距離: 0m 空き数: 0 / なし駐車可能な車種や台数を知りたい
- 入居時期
- 2026年4月下旬最新の空室状況が知りたい
- 損保
- 住宅保険: 要
- 保証人代行
- 加入要 費用: 保証人代行サービス保証料・家賃集金サービス手数料 10,000円/入居時、以降は月額賃料の1%/毎月(入居期間中)、他プラン有
- その他費用
初期費用を知りたい消毒施工料(当社扱)(入居時のみ):17,050円
- 情報
情報登録日:2026/3/20
情報更新日:2026/3/19
次回更新予定日:2026/4/2
- 備考
- 現況: 居住中 契約期間: 2年 管理人: 巡回 自社管理番号: 268968
取扱い会社
- 取扱い会社
- TAKE ONE 本店条件が近い物件も紹介してほしい
- 免許番号
- 大阪府知事(1)65820号
- 取引態様
- 仲介
- 所在地
- 大阪府摂津市鳥飼野々1-30-1
- 電話番号
- 090-8445-0816
- 営業時間
- 10:00~18:00
- 定休日
- 日
- 所属団体名
- 大阪府宅地建物取引業協会
おすすめ物件 (17件)
賃貸アパート
門真市島頭3丁目 2階建 2015年築

京阪本線 / 萱島駅 徒歩23分
築11年 / 2階建
大阪府門真市島頭3丁目

8.5万円 / 管理費6,000円
敷
無料礼
17万円2LDK / 55.2㎡ / 1階
賃貸アパート
フォレストクリエオーレ宮前町壱番館

京阪本線 / 萱島駅 徒歩10分
築2年 / 3階建
大阪府門真市宮前町

8.8万円 / 管理費5,000円
敷
無料礼
8.8万円1SLDK / 44.05㎡ / 3階
賃貸アパート
門真市島頭3丁目 2階建 2015年築

京阪本線 / 萱島駅 徒歩23分
築11年 / 2階建
大阪府門真市島頭3丁目

8.5万円 / 管理費6,000円
敷
無料礼
17万円2LDK / 55.44㎡ / 1階
賃貸マンション
寝屋川市中神田町 3階建 2021年築

京阪本線 / 萱島駅 徒歩10分
築5年 / 3階建
大阪府寝屋川市中神田町10-8

8.2万円 / 管理費6,500円
敷
8.2万円礼
8.2万円1LDK / 40.26㎡ / 2階
賃貸アパート
門真市寿町 3階建 2016年築

京阪本線 / 萱島駅 徒歩28分
築10年 / 3階建
大阪府門真市寿町

7.2万円 / 管理費5,000円
敷
無料礼
7.2万円1LDK / 44.08㎡ / 1階
賃貸マンション
MAISON DE RAFFINE
)
京阪本線 / 萱島駅 徒歩13分
築11年 / 3階建
大阪府門真市野里町
)
8.5万円 / 管理費6,000円
敷
5万円礼
20万円1LDK / 42.21㎡ / 2階
賃貸アパート
門真市島頭3丁目 2階建 2015年築

京阪本線 / 萱島駅 徒歩23分
築11年 / 2階建
大阪府門真市島頭3丁目

8.5万円 / 管理費6,000円
敷
無料礼
17万円2LDK / 55.2㎡ / 1階
賃貸アパート
フォレストクリエオーレ宮前町壱番館

京阪本線 / 萱島駅 徒歩10分
築2年 / 3階建
大阪府門真市宮前町

8.8万円 / 管理費5,000円
敷
無料礼
8.8万円1SLDK / 44.05㎡ / 3階
賃貸アパート
門真市島頭3丁目 2階建 2015年築

京阪本線 / 萱島駅 徒歩23分
築11年 / 2階建
大阪府門真市島頭3丁目

8.5万円 / 管理費6,000円
敷
無料礼
17万円2LDK / 55.44㎡ / 1階
賃貸マンション
寝屋川市中神田町 3階建 2021年築

京阪本線 / 萱島駅 徒歩10分
築5年 / 3階建
大阪府寝屋川市中神田町10-8

8.2万円 / 管理費6,500円
敷
8.2万円礼
8.2万円1LDK / 40.26㎡ / 2階
賃貸アパート
門真市寿町 3階建 2016年築

京阪本線 / 萱島駅 徒歩28分
築10年 / 3階建
大阪府門真市寿町

7.2万円 / 管理費5,000円
敷
無料礼
7.2万円1LDK / 44.08㎡ / 1階
賃貸マンション
MAISON DE RAFFINE
)
京阪本線 / 萱島駅 徒歩13分
築11年 / 3階建
大阪府門真市野里町
)
8.5万円 / 管理費6,000円
敷
5万円礼
20万円1LDK / 42.21㎡ / 2階
同じ最寄り駅 で探す
同じ最寄り駅 × 同じ特徴 で探す
同じ市区町村 × 同じ特徴 で探す






























)
)
















)
)
)
)