ジュノール札幌植物園2LDK/6階/0605(北海道札幌市中央区 / 西11丁目駅)の賃貸
1/36
1/36
12.8万円
初期費用を知りたい管理費200円
- 敷金
- 12.8万円
- 保証金
- なし
- 礼金
- 12.8万円
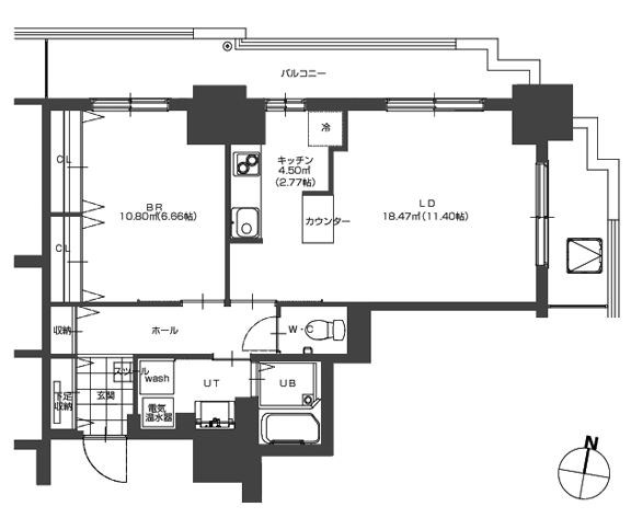
- 広さ
- 56.75㎡
- 階数
- 6階 / 14階建
- 間取り
- 2LDK
- 建物
- マンション (鉄筋コンクリート)
- 築年数
- 新築
- 向き
- 南
- 交通
- 地下鉄東西線 / 西11丁目駅徒歩9分
- 札沼線 / 桑園駅徒歩14分
- 地下鉄南北線 / さっぽろ駅徒歩17分
- 住所
- 北海道札幌市中央区北三条西12丁目1-1
セイコーマート 202m
セブンイレブン 142m
コープさっぽろ 273m
まいばすけっと北2条西14丁目店 346m
ファミリーマート 396m
ロイトン札幌 432m
まいばすけっと北5条西10丁目店 530m
ローソン 530m
二条小学校 1114m
向陵中学校 2059m
コンビニ 129m
スーパー 273m
無料で10秒! カンタンお問い合わせ
)
ジュノール札幌植物園
敷
12.8万円礼
12.8万円特徴
バス・トイレ別
2階以上
エアコン付き
ペット相談可
駐車場あり
室内洗濯機置場
オートロック
洗面所独立
- バス・トイレ
- 給湯、シャワー、シャンプードレッサー、バストイレ別、洗面所独立、温水洗浄便座
- キッチン
- ガスキッチン、コンロ2口以上、システムキッチン、カウンターキッチン
- セキュリティ
- オートロック、オートロック
- 室内設備
- エアコン、冷房、暖房、BS、CS、インターホン、インターネット対応、室内洗濯置、クロゼット、押入、照明付、シューズボックス、24時間換気システムお部屋の詳しい情報を知りたい
- 部屋の特徴
- ベランダ、ペアガラス、陽当り良好、バルコニー、二階以上写真を送ってほしい
- 共用部
- エレベーター、宅配ボックス、敷地内ごみ置き場、駐輪場
- その他の特徴
- タワー型マンション、都市ガス
無料で10秒! カンタンお問い合わせ
)
ジュノール札幌植物園
敷
12.8万円礼
12.8万円同じ建物で掲載中の物件 (25件)
その他
- 駐車/駐輪
- 無し / あり駐車可能な車種や台数を知りたい
- 入居時期
- 損保
- -
- 保証人代行
- 保証人: 要
- その他費用
- 情報
情報登録日:2026/1/17
情報更新日:2026/4/25
次回更新予定日:2026/5/12
- 備考
- 更新料: 128000円 退去時費用備考: 退去費用実費精算 その他: 【更新料あり】■解約時費用:ハウスクリーニング(1,210円/平米)エアコン洗浄(27,500円/台)■室内禁煙(電子タバコ含む)※共用部も不可■ペット飼育の場合:敷金1ヶ月追加/小型犬または猫いずれか1匹まで※飼育細則等遵守のこと■楽器演奏不可■管理費: 保証会社利用必須 【オリコ】<保証料>契約時:賃料等の60%(最低3万円)/月額:賃料等の1.5% その他月額費用 1210円 業者管理CD: 111558650
取扱い会社
- 取扱い会社
- 株式会社三光不動産 アパマンショップ北大前店条件が近い物件も紹介してほしい
- 免許番号
- 北海道知事 石狩(5)7008号
- 取引態様
- 一般媒介
- 所在地
- 北海道札幌市北区北14条西4丁目1番19号 北大病院前ビル1階
- 電話番号
- 011-738-5210
- 営業時間
- 09:30~18:00
- 定休日
- 第一、第二、第三火曜日
- 所属団体名
- 公益社団法人不動産保証協会
おすすめ物件 (20件)
賃貸マンション
札幌市東区北七条東3丁目 5階建 2024年築

地下鉄南北線 / さっぽろ駅 徒歩6分
築2年 / 5階建
北海道札幌市東区北七条東3丁目

12.6万円 / 管理費5,000円
敷
12.6万円礼
12.6万円2LDK / 55.15㎡ / 5階
賃貸マンション
Terrace Sakura(テラスサクラ)

函館本線 / 桑園駅 徒歩9分
新築 / 5階建
北海道札幌市中央区北七条西11丁目

11.3万円 / 管理費5,000円
敷
無料礼
11.3万円2LDK / 49.64㎡ / 2階
賃貸マンション
札幌市中央区北一条東 5階建 2026年築
)
地下鉄南北線 / さっぽろ駅 徒歩29分
新築 / 5階建
北海道札幌市中央区北一条東13丁目1-1
)
11.6万円 / 管理費8,000円
敷
11.6万円礼
無料2LDK / 58.6㎡ / 4階
賃貸マンション
ジュノール札幌植物園
)
地下鉄東西線 / 西11丁目駅 徒歩9分
新築 / 14階建
北海道札幌市中央区北三条西12丁目1-1
)
12万円 / 管理費200円
敷
12万円礼
12万円2LDK / 57.05㎡ / 2階
賃貸マンション
フローリス
)
札幌市電 / 西線11条駅 徒歩8分
新築 / 4階建
北海道札幌市中央区南十二条西18丁目2ー1
)
10.8万円 / 管理費8,000円
敷
無料礼
無料2LDK / 55.62㎡ / 4階
賃貸マンション
札幌市中央区南五条西11丁目 5階建 2026年築

地下鉄東西線 / 西11丁目駅 徒歩9分
新築 / 5階建
北海道札幌市中央区南五条西11丁目

12.3万円 / 管理費5,000円
敷
12.3万円礼
12.3万円2LDK / 53.06㎡ / 2階
賃貸マンション
エクレール
)
地下鉄東西線 / 西11丁目駅 徒歩12分
築8年 / 14階建
北海道札幌市中央区南一条西17丁目1-17
)
14.8万円 / 管理費10,000円
敷
14.8万円礼
14.8万円2LDK / 56.2㎡ / 12階
賃貸マンション
レジディア大通公園

地下鉄東西線 / 西11丁目駅 徒歩3分
築19年 / 14階建
北海道札幌市中央区大通西13丁目

12.8万円 / 管理費7,000円
敷
12.8万円礼
12.8万円2LDK / 59.64㎡ / 6階
賃貸マンション
コローレ知事公館前

函館本線 / 桑園駅 徒歩9分
築10年 / 10階建
北海道札幌市中央区北四条西15丁目1番地7

12.1万円 / 管理費9,000円
敷
12.1万円礼
無料3LDK / 64.49㎡ / 2階
賃貸マンション
MODENA SIAN

地下鉄東西線 / 西11丁目駅 徒歩12分
築5年 / 10階建
北海道札幌市中央区南六条西12丁目

11.6万円 / 管理費7,000円
敷
11.6万円礼
無料2LDK / 57.97㎡ / 4階
賃貸マンション
シティコート北一条

地下鉄南北線 / さっぽろ駅 徒歩5分
築19年 / 15階建
北海道札幌市中央区北一条東1丁目

13.8万円 / 管理費7,000円
敷
13.8万円礼
13.8万円2LDK / 62.23㎡ / 15階
賃貸マンション
レガーロ札幌ステーション
)
地下鉄東豊線 / さっぽろ駅 徒歩10分
築19年 / 15階建
北海道札幌市中央区北四条東2丁目8-1
)
12.3万円 / 管理費7,000円
敷
12.3万円礼
12.3万円2LDK / 51.72㎡ / 15階
賃貸マンション
グランファーレ桑園レジェンドスクエア

函館本線 / 桑園駅 徒歩10分
築6年 / 13階建
北海道札幌市中央区北十条西20丁目

14.5万円 / 管理費6,500円
敷
無料礼
無料2LDK / 54.81㎡ / 6階
賃貸マンション
ブランシャールSAPPORO STATION WEST

地下鉄南北線 / さっぽろ駅 徒歩9分
築3年 / 5階建
北海道札幌市中央区北五条西9丁目

11万円 / 管理費5,000円
敷
無料礼
11万円2LDK / 50.18㎡ / 5階
賃貸マンション
RーFINO札幌桑園
)
札沼線 / 桑園駅 徒歩13分
築2年 / 5階建
北海道札幌市中央区北八条西20丁目1ー3
)
13.8万円 / 管理費7,000円
敷
無料礼
13.8万円2LDK / 66.12㎡ / 5階
賃貸マンション
ALPHA GRANDE札幌南4条

地下鉄東西線 / 西11丁目駅 徒歩9分
築1年 / 5階建
北海道札幌市中央区南四条西12丁目

11.1万円 / 管理費7,000円
敷
無料礼
11.1万円2LDK / 54.08㎡ / 2階
賃貸マンション
スペチアーレ・プリーモ
)
地下鉄東西線 / 西11丁目駅 徒歩3分
築12年 / 11階建
北海道札幌市中央区南一条西10丁目4-163
)
11.3万円 / 管理費7,000円
敷
無料礼
無料2LDK / 58.66㎡ / 2階
賃貸マンション
レジディア北2条イースト

地下鉄南北線 / さっぽろ駅 徒歩6分
築20年 / 15階建
北海道札幌市中央区北二条東2丁目1番地27

14.7万円 / 管理費5,000円
敷
14.7万円礼
14.7万円2LDK / 66.41㎡ / 11階
賃貸マンション
パシフィックタワー札幌

地下鉄南北線 / さっぽろ駅 徒歩7分
築18年 / 地上31階地下1階建
北海道札幌市中央区北四条東1丁目

10.8万円 / 管理費8,000円
敷
10.8万円礼
10.8万円1LDK / 51.67㎡ / 2階
賃貸マンション
ロックヒルズ札幌

地下鉄東西線 / 西11丁目駅 徒歩15分
築6年 / 9階建
北海道札幌市中央区南九条西11丁目

11.8万円 / 管理費8,000円
敷
11.8万円礼
無料2LDK / 60.07㎡ / 7階
賃貸マンション
札幌市東区北七条東3丁目 5階建 2024年築

地下鉄南北線 / さっぽろ駅 徒歩6分
築2年 / 5階建
北海道札幌市東区北七条東3丁目

12.6万円 / 管理費5,000円
敷
12.6万円礼
12.6万円2LDK / 55.15㎡ / 5階
賃貸マンション
Terrace Sakura(テラスサクラ)

函館本線 / 桑園駅 徒歩9分
新築 / 5階建
北海道札幌市中央区北七条西11丁目

11.3万円 / 管理費5,000円
敷
無料礼
11.3万円2LDK / 49.64㎡ / 2階
賃貸マンション
札幌市中央区北一条東 5階建 2026年築
)
地下鉄南北線 / さっぽろ駅 徒歩29分
新築 / 5階建
北海道札幌市中央区北一条東13丁目1-1
)
11.6万円 / 管理費8,000円
敷
11.6万円礼
無料2LDK / 58.6㎡ / 4階
賃貸マンション
ジュノール札幌植物園
)
地下鉄東西線 / 西11丁目駅 徒歩9分
新築 / 14階建
北海道札幌市中央区北三条西12丁目1-1
)
12万円 / 管理費200円
敷
12万円礼
12万円2LDK / 57.05㎡ / 2階
賃貸マンション
フローリス
)
札幌市電 / 西線11条駅 徒歩8分
新築 / 4階建
北海道札幌市中央区南十二条西18丁目2ー1
)
10.8万円 / 管理費8,000円
敷
無料礼
無料2LDK / 55.62㎡ / 4階
賃貸マンション
札幌市中央区南五条西11丁目 5階建 2026年築

地下鉄東西線 / 西11丁目駅 徒歩9分
新築 / 5階建
北海道札幌市中央区南五条西11丁目

12.3万円 / 管理費5,000円
敷
12.3万円礼
12.3万円2LDK / 53.06㎡ / 2階
賃貸マンション
エクレール
)
地下鉄東西線 / 西11丁目駅 徒歩12分
築8年 / 14階建
北海道札幌市中央区南一条西17丁目1-17
)
14.8万円 / 管理費10,000円
敷
14.8万円礼
14.8万円2LDK / 56.2㎡ / 12階
賃貸マンション
レジディア大通公園

地下鉄東西線 / 西11丁目駅 徒歩3分
築19年 / 14階建
北海道札幌市中央区大通西13丁目

12.8万円 / 管理費7,000円
敷
12.8万円礼
12.8万円2LDK / 59.64㎡ / 6階
賃貸マンション
コローレ知事公館前

函館本線 / 桑園駅 徒歩9分
築10年 / 10階建
北海道札幌市中央区北四条西15丁目1番地7

12.1万円 / 管理費9,000円
敷
12.1万円礼
無料3LDK / 64.49㎡ / 2階
賃貸マンション
MODENA SIAN

地下鉄東西線 / 西11丁目駅 徒歩12分
築5年 / 10階建
北海道札幌市中央区南六条西12丁目

11.6万円 / 管理費7,000円
敷
11.6万円礼
無料2LDK / 57.97㎡ / 4階
賃貸マンション
シティコート北一条

地下鉄南北線 / さっぽろ駅 徒歩5分
築19年 / 15階建
北海道札幌市中央区北一条東1丁目

13.8万円 / 管理費7,000円
敷
13.8万円礼
13.8万円2LDK / 62.23㎡ / 15階
賃貸マンション
レガーロ札幌ステーション
)
地下鉄東豊線 / さっぽろ駅 徒歩10分
築19年 / 15階建
北海道札幌市中央区北四条東2丁目8-1
)
12.3万円 / 管理費7,000円
敷
12.3万円礼
12.3万円2LDK / 51.72㎡ / 15階
賃貸マンション
グランファーレ桑園レジェンドスクエア

函館本線 / 桑園駅 徒歩10分
築6年 / 13階建
北海道札幌市中央区北十条西20丁目

14.5万円 / 管理費6,500円
敷
無料礼
無料2LDK / 54.81㎡ / 6階
賃貸マンション
ブランシャールSAPPORO STATION WEST

地下鉄南北線 / さっぽろ駅 徒歩9分
築3年 / 5階建
北海道札幌市中央区北五条西9丁目

11万円 / 管理費5,000円
敷
無料礼
11万円2LDK / 50.18㎡ / 5階
賃貸マンション
RーFINO札幌桑園
)
札沼線 / 桑園駅 徒歩13分
築2年 / 5階建
北海道札幌市中央区北八条西20丁目1ー3
)
13.8万円 / 管理費7,000円
敷
無料礼
13.8万円2LDK / 66.12㎡ / 5階
賃貸マンション
ALPHA GRANDE札幌南4条

地下鉄東西線 / 西11丁目駅 徒歩9分
築1年 / 5階建
北海道札幌市中央区南四条西12丁目

11.1万円 / 管理費7,000円
敷
無料礼
11.1万円2LDK / 54.08㎡ / 2階
賃貸マンション
スペチアーレ・プリーモ
)
地下鉄東西線 / 西11丁目駅 徒歩3分
築12年 / 11階建
北海道札幌市中央区南一条西10丁目4-163
)
11.3万円 / 管理費7,000円
敷
無料礼
無料2LDK / 58.66㎡ / 2階
賃貸マンション
レジディア北2条イースト

地下鉄南北線 / さっぽろ駅 徒歩6分
築20年 / 15階建
北海道札幌市中央区北二条東2丁目1番地27

14.7万円 / 管理費5,000円
敷
14.7万円礼
14.7万円2LDK / 66.41㎡ / 11階
賃貸マンション
パシフィックタワー札幌

地下鉄南北線 / さっぽろ駅 徒歩7分
築18年 / 地上31階地下1階建
北海道札幌市中央区北四条東1丁目

10.8万円 / 管理費8,000円
敷
10.8万円礼
10.8万円1LDK / 51.67㎡ / 2階
賃貸マンション
ロックヒルズ札幌

地下鉄東西線 / 西11丁目駅 徒歩15分
築6年 / 9階建
北海道札幌市中央区南九条西11丁目

11.8万円 / 管理費8,000円
敷
11.8万円礼
無料2LDK / 60.07㎡ / 7階
同じ最寄り駅 で探す
同じ最寄り駅 × 同じ特徴 で探す
同じ市区町村 × 同じ特徴 で探す
)
)
)
)
)
)
)
)
)
)
)
)
)
)
)
)
)
)
)
)
)
)
)
)
)
)
)
)
)
)
)
)
)
)
)


)
)

)

)

)



)

)




)
