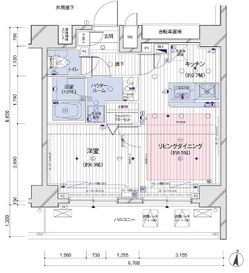
JR総武線 両国駅 9階建 新築1LDK/6階(東京都墨田区 / 両国駅)の賃貸
1/12
1/12
18.8万円
初期費用を知りたい管理費10,000円
家賃割引サービス適用で最大2年間4.8万円割引
- 敷金
- 18.8万円
- 保証金
- なし
- 礼金
- 無料
- 広さ
- 35.19㎡
- 階数
- 6階 / 9階建
- 間取り
- 1LDK
- 建物
- マンション (鉄筋コンクリート)
- 築年数
- 新築
- 向き
- 南
- 交通
- 総武線 / 両国駅徒歩8分
- 都営新宿線 / 森下駅徒歩9分
- 都営大江戸線 / 両国駅徒歩14分
- 住所
- 東京都墨田区千歳1
まいばすけっと新大橋1丁目店(スーパー)まで445m
まいばすけっと両国国技館通り店(スーパー)まで498m
ローソン江東新大橋二丁目店(コンビニ)まで321m
セブンイレブン墨田千歳店(コンビニ)まで265m
ドラッグセイムス墨田両国店(ドラッグストア)まで399m
ローソン墨田両国一丁目店(コンビニ)まで256m
無料で10秒! カンタンお問い合わせ
JR総武線 両国駅 9階建 新築
敷
18.8万円礼
無料特徴
バス・トイレ別
2階以上
エアコン付き
ペット相談可
駐車場あり
室内洗濯機置場
オートロック
洗面所独立
- 入居条件
- 保証人不要、敷金1ヶ月最新の空室状況が知りたい
- バス・トイレ
- バストイレ別、シャワー付洗面台、浴室乾燥機、追焚機能浴室、温水洗浄便座、洗面所独立、洗面化粧台、オートバス
- キッチン
- ガスコンロ対応、システムキッチン、2口コンロ、カウンターキッチン
- セキュリティ
- オートロック、防犯カメラ、24時間緊急通報システム、ディンプルキー、ダブルロックキー
- 室内設備
- エアコン、クロゼット、フローリング、室内洗濯置、シューズボックス、光ファイバー、BS・CS、全居室収納、全居室洋室、全居室フローリング、ネット専用回線、ネット使用料不要、エアコン全室お部屋の詳しい情報を知りたい
- 部屋の特徴
- バルコニー、陽当り良好、通風良好、二階以上写真を送ってほしい
- 共用部
- エレベーター、駐輪場、宅配ボックス、バイク置場、敷地内ごみ置き場、日勤管理
- その他の特徴
- デザイナーズ、眺望良好、都市ガス、保証会社利用可、駐車場あり
無料で10秒! カンタンお問い合わせ
JR総武線 両国駅 9階建 新築
敷
18.8万円礼
無料同じ建物で掲載中の物件 (16件)
不動産会社からのコメント
★★オンライン対応可能★★TEL03-6811-7005★★
★★★★★★★★この物件のご案内はルームまで★★★★★★★当社であればネットで気になる物件すべてまとめてご紹介可能です!
その他
- 駐車/駐輪
- 敷地内66000円 / あり駐車可能な車種や台数を知りたい
- 入居時期
- 損保
- -
- 保証人代行
- -
- その他費用
- 情報
情報登録日:2025/11/18
情報更新日:2025/12/9
次回更新予定日:2025/12/25
- 備考
- 契約期間: 普通借家 2年 保証会社: 保証会社利用必 初回契約時:25%、更新時:10,000円、保証会社あり法人の場合:30,000円(更新時) その他:ローソン墨田両国一丁目店まで256m/セブンイレブン墨田千歳店まで265m/更新料 1ヶ月 / 条件: 二人入居可/フリーレント1ヶ月 / ほか諸費用: バイク置き場 月額11000円 自転車駐輪場 月額330円
取扱い会社
- 取扱い会社
- 株式会社ルーム条件が近い物件も紹介してほしい
- 免許番号
- 東京都知事免許(1)第105336号
- 取引態様
- 一般媒介
- 所在地
- 東京都千代田区神田駿河台2丁目4-2 叶ビル2階
- 電話番号
- 03-6811-7005
- 営業時間
- 10:00~18:00
- 定休日
- 無し(冬季休業あり)
おすすめ物件 (20件)
賃貸マンション
墨田区両国3丁目 11階建 2016年築

総武線 / 両国駅 徒歩4分
築9年 / 11階建
東京都墨田区両国3丁目18-7

17.8万円 / 管理費10,000円
敷
17.8万円礼
17.8万円1LDK / 40.72㎡ / 10階
賃貸マンション
ジェノヴィア本所吾妻橋スカイガーデン
都営大江戸線 / 両国駅 徒歩12分
築4年 / 7階建
東京都墨田区石原3丁目34-3
17.7万円 / 管理費20,000円
敷
無料礼
無料1LDK / 40.58㎡ / 3階
賃貸マンション
レジデンス両国駅前
総武線 / 両国駅 徒歩3分
築19年 / 14階建
東京都墨田区両国4丁目37-10
16.8万円 / 管理費10,000円
敷
16.8万円礼
無料1DK / 37.14㎡ / 3階
賃貸マンション
ジェノヴィア両国VIグリーンヴェール
都営大江戸線 / 両国駅 徒歩9分
築3年 / 12階建
東京都墨田区緑3丁目17-11
19万円 / 管理費18,000円
敷
無料礼
無料1DK / 41.47㎡ / 12階
賃貸マンション
墨田区 10階建 2025年築
都営大江戸線 / 森下駅 徒歩8分
新築 / 10階建
東京都墨田区菊川2丁目8-6
20.1万円 / 管理費15,000円
敷
20.1万円礼
無料1LDK / 38.77㎡ / 4階
賃貸マンション
ブランシエスタ両国

都営大江戸線 / 両国駅 徒歩4分
築4年 / 13階建
東京都墨田区両国4丁目2-5

20.6万円 / 管理費15,000円
敷
20.6万円礼
20.6万円1LDK / 41.74㎡ / 7階
賃貸マンション
墨田区両国3丁目 11階建 2016年築

総武線 / 両国駅 徒歩4分
築9年 / 11階建
東京都墨田区両国3丁目18-7

17.8万円 / 管理費10,000円
敷
17.8万円礼
17.8万円1LDK / 40.72㎡ / 10階
賃貸マンション
TRADIS両国III

都営大江戸線 / 両国駅 徒歩11分
新築 / 10階建
東京都墨田区緑2丁目11-11

18万円 / 管理費12,000円
敷
18万円礼
無料1LDK / 34.54㎡ / 10階
賃貸マンション
シーズンフラッツ両国

総武線 / 両国駅 徒歩6分
築2年 / 11階建
東京都墨田区両国3丁目13-11

18.3万円 / 管理費15,000円
敷
18.3万円礼
無料1LDK / 35.31㎡ / 10階
賃貸マンション
S−RESIDENCE両国parkside

都営大江戸線 / 両国駅 徒歩4分
築4年 / 8階建
東京都墨田区石原1丁目25-6

20.5万円 / 管理費15,000円
敷
無料礼
20.5万円1LDK / 40.54㎡ / 8階
賃貸マンション
メインステージ両国駅前

都営大江戸線 / 両国駅 徒歩1分
築14年 / 12階建
東京都墨田区緑1丁目18-3

18万円 / 管理費20,000円
敷
無料礼
無料1LDK / 41.2㎡ / 10階
賃貸マンション
ドムス・スタイル森下

都営新宿線 / 森下駅 徒歩6分
築4年 / 7階建
東京都墨田区立川1丁目18-6

17.2万円 / 管理費8,000円
敷
無料礼
17.2万円1LDK / 34.44㎡ / 7階
賃貸マンション
墨田区 10階建 2019年築

総武線 / 両国駅 徒歩8分
築6年 / 10階建
東京都墨田区両国3丁目2-2

19.4万円 / 管理費15,000円
敷
19.4万円礼
19.4万円1LDK / 40.27㎡ / 9階
賃貸マンション
ドゥーエ両国Ⅲ

都営大江戸線 / 両国駅 徒歩5分
築3年 / 11階建
東京都墨田区緑1丁目2-5

19.8万円 / 管理費15,000円
敷
19.8万円礼
19.8万円2DK / 40.68㎡ / 5階
賃貸マンション
プラウドフラット両国サウス

都営新宿線 / 森下駅 徒歩8分
築3年 / 9階建
東京都墨田区千歳1丁目2-4

20.6万円 / 管理費12,000円
敷
20.6万円礼
無料1LDK / 40.39㎡ / 4階
賃貸マンション
ジェノヴィア両国Ⅳスカイガーデン

都営大江戸線 / 両国駅 徒歩6分
築5年 / 12階建
東京都墨田区石原1丁目

18.4万円 / 管理費15,000円
敷
無料礼
無料1LDK / 41.65㎡ / 2階
賃貸マンション
アルテシモ リーノ

都営大江戸線 / 両国駅 徒歩8分
築6年 / 9階建
東京都墨田区緑2丁目5-13

17万円 / 管理費15,000円
敷
17万円礼
17万円1LDK / 41.61㎡ / 7階
賃貸マンション
コンフォリア両国サウス

都営新宿線 / 森下駅 徒歩7分
築14年 / 9階建
東京都墨田区千歳2丁目14-8

17.7万円 / 管理費10,000円
敷
17.7万円礼
無料1LDK / 37.4㎡ / 6階
賃貸マンション
墨田区両国3丁目 11階建 2016年築

総武線 / 両国駅 徒歩4分
築9年 / 11階建
東京都墨田区両国3丁目18-7

17.8万円 / 管理費10,000円
敷
17.8万円礼
17.8万円1LDK / 40.72㎡ / 10階
賃貸マンション
ジェノヴィア本所吾妻橋スカイガーデン
都営大江戸線 / 両国駅 徒歩12分
築4年 / 7階建
東京都墨田区石原3丁目34-3
17.7万円 / 管理費20,000円
敷
無料礼
無料1LDK / 40.58㎡ / 3階
賃貸マンション
レジデンス両国駅前
総武線 / 両国駅 徒歩3分
築19年 / 14階建
東京都墨田区両国4丁目37-10
16.8万円 / 管理費10,000円
敷
16.8万円礼
無料1DK / 37.14㎡ / 3階
賃貸マンション
ジェノヴィア両国VIグリーンヴェール
都営大江戸線 / 両国駅 徒歩9分
築3年 / 12階建
東京都墨田区緑3丁目17-11
19万円 / 管理費18,000円
敷
無料礼
無料1DK / 41.47㎡ / 12階
賃貸マンション
墨田区 10階建 2025年築
都営大江戸線 / 森下駅 徒歩8分
新築 / 10階建
東京都墨田区菊川2丁目8-6
20.1万円 / 管理費15,000円
敷
20.1万円礼
無料1LDK / 38.77㎡ / 4階
賃貸マンション
ブランシエスタ両国

都営大江戸線 / 両国駅 徒歩4分
築4年 / 13階建
東京都墨田区両国4丁目2-5

20.6万円 / 管理費15,000円
敷
20.6万円礼
20.6万円1LDK / 41.74㎡ / 7階
賃貸マンション
墨田区両国3丁目 11階建 2016年築

総武線 / 両国駅 徒歩4分
築9年 / 11階建
東京都墨田区両国3丁目18-7

17.8万円 / 管理費10,000円
敷
17.8万円礼
17.8万円1LDK / 40.72㎡ / 10階
賃貸マンション
TRADIS両国III

都営大江戸線 / 両国駅 徒歩11分
新築 / 10階建
東京都墨田区緑2丁目11-11

18万円 / 管理費12,000円
敷
18万円礼
無料1LDK / 34.54㎡ / 10階
賃貸マンション
シーズンフラッツ両国

総武線 / 両国駅 徒歩6分
築2年 / 11階建
東京都墨田区両国3丁目13-11

18.3万円 / 管理費15,000円
敷
18.3万円礼
無料1LDK / 35.31㎡ / 10階
賃貸マンション
S−RESIDENCE両国parkside

都営大江戸線 / 両国駅 徒歩4分
築4年 / 8階建
東京都墨田区石原1丁目25-6

20.5万円 / 管理費15,000円
敷
無料礼
20.5万円1LDK / 40.54㎡ / 8階
賃貸マンション
メインステージ両国駅前

都営大江戸線 / 両国駅 徒歩1分
築14年 / 12階建
東京都墨田区緑1丁目18-3

18万円 / 管理費20,000円
敷
無料礼
無料1LDK / 41.2㎡ / 10階
賃貸マンション
ドムス・スタイル森下

都営新宿線 / 森下駅 徒歩6分
築4年 / 7階建
東京都墨田区立川1丁目18-6

17.2万円 / 管理費8,000円
敷
無料礼
17.2万円1LDK / 34.44㎡ / 7階
賃貸マンション
墨田区 10階建 2019年築

総武線 / 両国駅 徒歩8分
築6年 / 10階建
東京都墨田区両国3丁目2-2

19.4万円 / 管理費15,000円
敷
19.4万円礼
19.4万円1LDK / 40.27㎡ / 9階
賃貸マンション
ドゥーエ両国Ⅲ

都営大江戸線 / 両国駅 徒歩5分
築3年 / 11階建
東京都墨田区緑1丁目2-5

19.8万円 / 管理費15,000円
敷
19.8万円礼
19.8万円2DK / 40.68㎡ / 5階
賃貸マンション
プラウドフラット両国サウス

都営新宿線 / 森下駅 徒歩8分
築3年 / 9階建
東京都墨田区千歳1丁目2-4

20.6万円 / 管理費12,000円
敷
20.6万円礼
無料1LDK / 40.39㎡ / 4階
賃貸マンション
ジェノヴィア両国Ⅳスカイガーデン

都営大江戸線 / 両国駅 徒歩6分
築5年 / 12階建
東京都墨田区石原1丁目

18.4万円 / 管理費15,000円
敷
無料礼
無料1LDK / 41.65㎡ / 2階
賃貸マンション
アルテシモ リーノ

都営大江戸線 / 両国駅 徒歩8分
築6年 / 9階建
東京都墨田区緑2丁目5-13

17万円 / 管理費15,000円
敷
17万円礼
17万円1LDK / 41.61㎡ / 7階
賃貸マンション
コンフォリア両国サウス

都営新宿線 / 森下駅 徒歩7分
築14年 / 9階建
東京都墨田区千歳2丁目14-8

17.7万円 / 管理費10,000円
敷
17.7万円礼
無料1LDK / 37.4㎡ / 6階


