グラングリーン大阪 THE NORTH RESIDENCE1LDK/10階/1011(大阪府大阪市北区 / 大阪梅田駅)の賃貸
1/18
1/18
48万円
初期費用を知りたい管理費60,000円
- 敷金
- 54万円
- 保証金
- なし
- 礼金
- 108万円
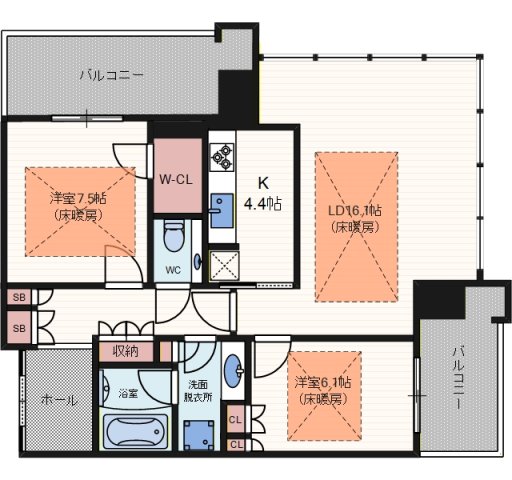
- 広さ
- 53.26㎡
- 階数
- 10階 / 46階建
- 間取り
- 1LDK
- 建物
- マンション (鉄筋コンクリート)
- 築年数
- 新築
- 向き
- 北
- 交通
- 阪神本線 / 大阪梅田駅徒歩1分
- 阪急宝塚線 / 大阪梅田駅徒歩1分
- 地下鉄御堂筋線 / 梅田駅徒歩1分
- 住所
- 大阪府大阪市北区大深町
成城石井三番街店 245m
ファミリーマート 281m
グランフロント大阪 376m
セブンイレブン 314m
大阪駅 387m
HEPファイブ 368m
HEP FIVE 377m
(株)いかりスーパーマーケット/JR大阪店 447m
扇町小学校 1157m
天満中学校夜間学級 1233m
コンビニ 161m
スーパー 202m
無料で10秒! カンタンお問い合わせ
)
グラングリーン大阪 THE NORTH RESIDENCE
敷
54万円礼
108万円特徴
バス・トイレ別
2階以上
エアコン付き
ペット相談可
駐車場あり
室内洗濯機置場
オートロック
洗面所独立
- 入居条件
- 二人入居可最新の空室状況が知りたい
- バス・トイレ
- シャワー、追焚機能浴室、バストイレ別、浴室乾燥機、洗面所独立、温水洗浄便座
- キッチン
- コンロ2口以上、システムキッチン
- セキュリティ
- オートロック、24時間緊急通報システム、防犯カメラ、オートロック、24時間緊急通報システム
- 室内設備
- エアコン、冷房、暖房、BS、インターホン、フローリング、室内洗濯置、クロゼット、押入、シューズボックス、24時間換気システムお部屋の詳しい情報を知りたい
- 部屋の特徴
- ベランダ、バルコニー、二階以上写真を送ってほしい
- 共用部
- エレベーター、宅配ボックス、敷地内ごみ置き場、駐輪場、バイク置場
- その他の特徴
- 地デジ対応、タワー型マンション、都市ガス
無料で10秒! カンタンお問い合わせ
)
グラングリーン大阪 THE NORTH RESIDENCE
敷
54万円礼
108万円同じ建物で掲載中の物件 (9件)
その他
- 駐車/駐輪
- 無し / あり駐車可能な車種や台数を知りたい
- 入居時期
- 損保
- 住宅保険: 要 20000円
- 保証人代行
- 保証人: 要
- その他費用
- 情報
情報登録日:2026/2/24
情報更新日:2026/4/13
次回更新予定日:2026/5/1
- 備考
- 定期借家 ※60ヶ月 その他: ペット可(犬・猫)1匹につき賃料1万円+敷金1ヶ月UP 早期解約違約金::12ヶ月未満退去で総賃料1ヶ月分 保証会社利用必須 初回保証料 総賃料50% 月額保証料 1400円 その他初期費用 69586円 業者管理CD: 112107722
取扱い会社
- 取扱い会社
- 株式会社タカラコンステレーション アパマンショップ大阪駅前店条件が近い物件も紹介してほしい
- 免許番号
- 国土交通大臣(5)6206
- 取引態様
- 一般媒介
- 所在地
- 大阪府大阪市北区梅田1丁目 2-2-100 大阪駅前第2ビル1F
- 電話番号
- 0120-958-730
- 営業時間
- 10:00~19:00
- 定休日
- 水曜日(不定休)
- 所属団体名
- 一般社団法人 大阪府宅地建物取引業協会 一般社団法人 兵庫県宅地建物取引業協会
)
)
)
)
)
)
)
)
)
)
)
)
)
)
)
)
)

)
)





)
