パティーナ蒲田南1K/5階(東京都大田区 / 雑色駅)の賃貸
1/20
1/20
10.6万円
初期費用を知りたい管理費15,000円
- 敷金
- 10.6万円
- 保証金
- なし
- 礼金
- 10.6万円
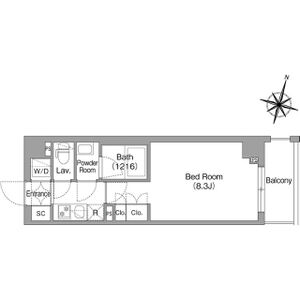
- 広さ
- 25.5㎡
- 階数
- 5階 / 6階建
- 間取り
- 1K
- 建物
- マンション (鉄筋コンクリート)
- 築年数
- 築11年
- 向き
- 東
- 交通
- 京急本線 / 雑色駅徒歩13分
- 京浜東北線 / 蒲田駅徒歩15分
- 住所
- 東京都大田区西六郷1丁目
コンビニエンスストア 544m
スーパーマーケット 323m
総合病院 1050m
ドラッグストア 1234m
商店街 1810m
蒲田駅前郵便局 1578m
無料で10秒! カンタンお問い合わせ

パティーナ蒲田南
敷
10.6万円礼
10.6万円特徴
バス・トイレ別
2階以上
エアコン付き
ペット相談可
駐車場あり
室内洗濯機置場
オートロック
洗面所独立
- 入居条件
- 初期費用カード決済可、ペット相談、保証人不要最新の空室状況が知りたい
- バス・トイレ
- 専用バス、専用トイレ、バストイレ別、シャワー、給湯、温水洗浄便座、浴室乾燥機、洗面所独立
- キッチン
- ガスコンロ対応、2口コンロ、システムキッチン
- セキュリティ
- オートロック、防犯カメラ
- 室内設備
- エアコン、室内洗濯置、CATV、CS、BS、フローリング、光ファイバー、ネット使用料不要、クロゼット、シューズボックス、照明付お部屋の詳しい情報を知りたい
- 部屋の特徴
- バルコニー、二階以上写真を送ってほしい
- 共用部
- エレベーター、宅配ボックス、駐輪場、バイク置場
- その他の特徴
- 公営水道、都市ガス、下水、デザイナーズ、分譲賃貸
無料で10秒! カンタンお問い合わせ

パティーナ蒲田南
敷
10.6万円礼
10.6万円同じ建物で掲載中の物件 (1件)
不動産会社からのコメント
通勤通学に大変便利な好立地です☆ネット無料など設備充実☆広めの1?をお探しの方に是非☆★エリア最大級
沿線や近隣エリアの物件もまとめてご紹介いたします。ぜひお問合せ下さい☆
その他
- 駐車/駐輪
- 要確認 / あり駐車可能な車種や台数を知りたい
- 入居時期
- 2026年4月最新の空室状況が知りたい
- 損保
- 住宅保険: 要
- 保証人代行
- 加入要 費用: 詳細はお問い合わせください
- その他費用
初期費用を知りたい入居中サポート:21,450円
契約事務手数料:11,000円
鍵交換費用:22,000円
室内抗菌処理代:17,600円
- 情報
情報登録日:2026/3/20
情報更新日:2026/3/20
次回更新予定日:2026/4/3
- 備考
- 現況: 居住中 更新料: 新賃料の1.0ヶ月分 契約期間: 2年 管理人: 巡回 その他交通: 東急池上線 蓮沼駅 徒歩17分 自社管理番号: 6799115
取扱い会社
- 取扱い会社
- 株式会社リブ・マックス 五反田店条件が近い物件も紹介してほしい
- 免許番号
- 国土交通大臣(5)第7032号
- 取引態様
- 仲介
- 所在地
- 東京都品川区東五反田1丁目11-12 五反田大力ビル 4F
- 電話番号
- 03-5447-8800
- 定休日
- 水曜日(年末年始、GW、夏季)
- 所属団体名
- 公益社団法人 全日本不動産保証協会
おすすめ物件 (12件)
賃貸マンション
レジディア蒲田Ⅱ

京浜東北線 / 蒲田駅 徒歩4分
築20年 / 15階建
東京都大田区蒲田5丁目45-11

12.1万円 / 管理費15,000円
敷
無料礼
無料1K / 22.59㎡ / 11階
賃貸マンション
ジェノヴィア蒲田Ⅱスカイガーデン

京浜東北線 / 蒲田駅 徒歩15分
築5年 / 9階建
東京都大田区南蒲田2丁目11-23

12.3万円 / 管理費15,000円
敷
無料礼
無料1K / 25.58㎡ / 5階
賃貸マンション
ハーモニーレジデンス東京サウス六郷

京急本線 / 雑色駅 徒歩7分
築5年 / 5階建
東京都大田区南六郷2丁目5-9

11.4万円 / 管理費20,000円
敷
無料礼
無料1DK / 25.51㎡ / 3階
賃貸マンション
ジェノヴィア本羽田スカイガーデン

京急本線 / 雑色駅 徒歩15分
築7年 / 6階建
東京都大田区本羽田1丁目18-13

12.1万円 / 管理費11,000円
敷
無料礼
12.1万円ワンルーム / 25.81㎡ / 6階
賃貸マンション
クオリタス蒲田

京浜東北線 / 蒲田駅 徒歩3分
築4年 / 11階建
東京都大田区西蒲田8丁目24-5

12.5万円 / 管理費10,000円
敷
無料礼
6.25万円1K / 26.26㎡ / 9階
賃貸マンション
京急本線 京急蒲田駅 14階建 築14年
京浜東北線 / 蒲田駅 徒歩13分
築14年 / 14階建
東京都大田区蒲田3
10万円 / 管理費15,000円
敷
無料礼
10万円1K / 22.42㎡ / 5階
賃貸マンション
コンフォリア・リヴ南六郷

京急本線 / 雑色駅 徒歩9分
新築 / 6階建
東京都大田区南六郷3丁目17-8

12.2万円 / 管理費8,000円
敷
12.2万円礼
無料1K / 25.2㎡ / 4階
賃貸マンション
レジディア蒲田Ⅱ

京浜東北線 / 蒲田駅 徒歩4分
築20年 / 15階建
東京都大田区蒲田5丁目45-11

12.1万円 / 管理費15,000円
敷
無料礼
無料1K / 22.59㎡ / 11階
賃貸マンション
ジェノヴィア蒲田Ⅱスカイガーデン

京浜東北線 / 蒲田駅 徒歩15分
築5年 / 9階建
東京都大田区南蒲田2丁目11-23

12.3万円 / 管理費15,000円
敷
無料礼
無料1K / 25.58㎡ / 5階
賃貸マンション
ハーモニーレジデンス東京サウス六郷

京急本線 / 雑色駅 徒歩7分
築5年 / 5階建
東京都大田区南六郷2丁目5-9

11.4万円 / 管理費20,000円
敷
無料礼
無料1DK / 25.51㎡ / 3階
賃貸マンション
ジェノヴィア本羽田スカイガーデン

京急本線 / 雑色駅 徒歩15分
築7年 / 6階建
東京都大田区本羽田1丁目18-13

12.1万円 / 管理費11,000円
敷
無料礼
12.1万円ワンルーム / 25.81㎡ / 6階
賃貸マンション
クオリタス蒲田

京浜東北線 / 蒲田駅 徒歩3分
築4年 / 11階建
東京都大田区西蒲田8丁目24-5

12.5万円 / 管理費10,000円
敷
無料礼
6.25万円1K / 26.26㎡ / 9階
賃貸マンション
京急本線 京急蒲田駅 14階建 築14年
京浜東北線 / 蒲田駅 徒歩13分
築14年 / 14階建
東京都大田区蒲田3
10万円 / 管理費15,000円
敷
無料礼
10万円1K / 22.42㎡ / 5階
賃貸マンション
コンフォリア・リヴ南六郷

京急本線 / 雑色駅 徒歩9分
新築 / 6階建
東京都大田区南六郷3丁目17-8

12.2万円 / 管理費8,000円
敷
12.2万円礼
無料1K / 25.2㎡ / 4階
同じ最寄り駅 × 同じ特徴 で探す
同じ市区町村 × 同じ特徴 で探す



























