レジデンストーキョー北上野1R/4階/401(東京都台東区 / 入谷駅)の賃貸
管理費9,000円
- 敷金
- 無料
- 保証金
- なし
- 礼金
- 8万円
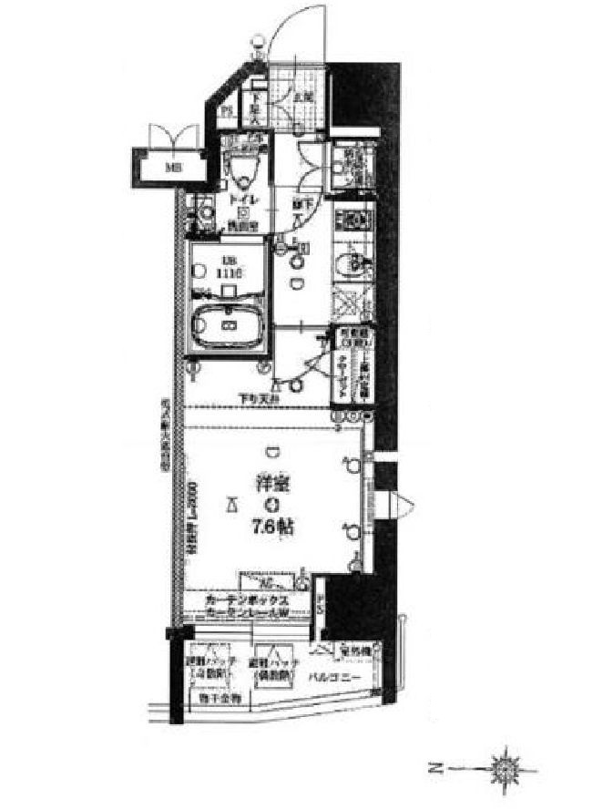
- 広さ
- 17.95㎡
- 階数
- 4階 / 4階建
- 間取り
- 1R
- 建物
- マンション (鉄筋コンクリート)
- 築年数
- 築9年
- 向き
- 南
- 交通
- 東京メトロ日比谷線 / 入谷駅徒歩4分
- 東京メトロ銀座線 / 稲荷町駅徒歩13分
- 住所
- 東京都台東区北上野2丁目26-7
無料で10秒! カンタンお問い合わせ

レジデンストーキョー北上野
- 入居条件
- 保証人不要、初期費用カード決済可最新の空室状況が知りたい
- バス・トイレ
- 温水洗浄便座、バスなし、専用トイレ
- キッチン
- IHクッキングヒーター、1口コンロ
- セキュリティ
- オートロック、防犯カメラ
- 室内設備
- 室内洗濯置、フローリング、ネット使用料不要、インターネット対応、BS、エアコンお部屋の詳しい情報を知りたい
- 部屋の特徴
- 角住戸、二階以上、最上階写真を送ってほしい
- 共用部
- 宅配ボックス
- その他の特徴
- 家賃保証付き、公営水道、下水、都市ガス
無料で10秒! カンタンお問い合わせ

レジデンストーキョー北上野
当物件はオンラインまたはお近くの店舗でご相談お申込を承ります。リライフは首都圏23店舗のネットワークで豊富な物件情報をご提供いたします。当物件に類似した未公開物件のご提案も可能です。お気軽にお問い合わせください。
- 駐車/駐輪
- 無 / なし駐車可能な車種や台数を知りたい
- 入居時期
- 損保
- 住宅保険: 要
- 保証人代行
- 加入要 費用: 初回:月額総家賃の50%~
- その他費用
初期費用を知りたい室内除菌消臭費(初回のみ):11,000円
鍵交換費用:27,500円
- 情報
情報登録日:2023/11/21
情報更新日:2026/5/30
次回更新予定日:2026/6/6
- 備考
- 現況: 空家 更新料: 新賃料の1.0ヶ月分 契約期間: 2年 自社管理番号: B76000R292368
- 取扱い会社
- 株式会社 リライフ 上野店条件が近い物件も紹介してほしい
- 免許番号
- 国土交通大臣(1)第10792号
- 取引態様
- 仲介
- 所在地
- 東京都台東区上野4-9-5 イシイビル3階
- 電話番号
- 03-4218-2689
- 営業時間
- 10:00~18:30
- 定休日
- 毎週火・水曜日
- 所属団体名
- 公益社団法⼈東京都宅地建物取引業協会、公益社団法⼈全国宅地建物取引業保証協会
おすすめ物件 (20件)
フュージョナル浅草フォレスト


エルニシア上野ノースイースト


クレイシア入谷竜泉


L-Flat入谷


セジョリ上野


パルティール・アサクサ


台東区竜泉2丁目 10階建 2021年築


台東区下谷3丁目 地上5階地下1階建 2022年築


台東区竜泉2丁目 13階建 2019年築
アプリコット上野入谷
台東区北上野2丁目 13階建 2008年築


つくばエクスプレス 浅草駅 9階建 築16年
レアライズ入谷


つくばエクスプレス 浅草駅徒歩10分 9階建て 築15年
REGNO CONFORT 浅草Ⅰ


台東区 10階建 2007年築
台東区 14階建 2008年築
リヴシティ上野入谷グロース


台東区浅草5丁目 10階建 2017年築
フュージョナル浅草フォレスト


エルニシア上野ノースイースト


クレイシア入谷竜泉


L-Flat入谷


セジョリ上野


パルティール・アサクサ


台東区竜泉2丁目 10階建 2021年築


台東区下谷3丁目 地上5階地下1階建 2022年築


台東区竜泉2丁目 13階建 2019年築
アプリコット上野入谷
台東区北上野2丁目 13階建 2008年築


つくばエクスプレス 浅草駅 9階建 築16年
レアライズ入谷


つくばエクスプレス 浅草駅徒歩10分 9階建て 築15年
REGNO CONFORT 浅草Ⅰ


台東区 10階建 2007年築
台東区 14階建 2008年築
リヴシティ上野入谷グロース


台東区浅草5丁目 10階建 2017年築
























