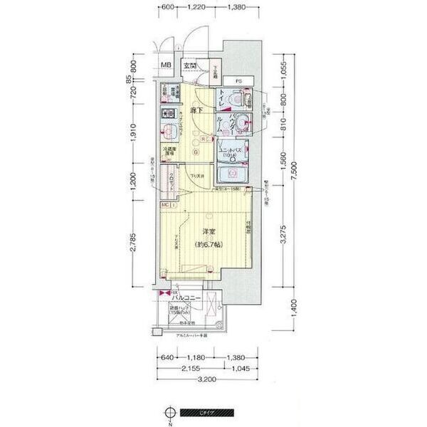
アプライズ西長堀1DK/9階/905(大阪府大阪市西区 / 西長堀駅)の賃貸
1/21
1/21
8.95万円
初期費用を知りたい管理費10,500円
- 敷金
- 無料
- 保証金
- なし
- 礼金
- 10万円
- 広さ
- 32.95㎡
- 階数
- 9階 / 10階建
- 間取り
- 1DK
- 建物
- マンション (鉄筋コンクリート)
- 築年数
- 築18年
- 向き
- 南西
- 交通
- 地下鉄千日前線 / 西長堀駅徒歩1分
- 地下鉄長堀鶴見緑地線 / 西大橋駅徒歩5分
- 住所
- 大阪府大阪市西区新町3丁目6-14
コンビニエンスストア 183m
スーパーマーケット 329m
FIT BASE(フィット ベース) 24 西長堀 482m
無料で10秒! カンタンお問い合わせ

アプライズ西長堀
敷
無料礼
10万円特徴
バス・トイレ別
2階以上
エアコン付き
ペット相談可
駐車場あり
室内洗濯機置場
オートロック
洗面所独立
- 入居条件
- 初期費用カード決済可、二人入居可最新の空室状況が知りたい
- バス・トイレ
- 専用バス、専用トイレ、バストイレ別、シャワー、シャワー付洗面化粧台、浴室乾燥機、洗面所独立
- キッチン
- IHクッキングヒーター、3口以上コンロ、システムキッチン
- セキュリティ
- オートロック、防犯カメラ
- 室内設備
- エアコン、室内洗濯置、CATV、BS、フローリング、インターネット対応、オール電化、クロゼット、シューズボックスお部屋の詳しい情報を知りたい
- 部屋の特徴
- バルコニー、二階以上写真を送ってほしい
- 共用部
- エレベーター、宅配ボックス、駐輪場
- その他の特徴
- 公営水道、下水
無料で10秒! カンタンお問い合わせ

アプライズ西長堀
敷
無料礼
10万円不動産会社からのコメント
町会費300円(月額)
その他
- 駐車/駐輪
- 要確認 / あり駐車可能な車種や台数を知りたい
- 入居時期
- 損保
- 住宅保険: 要
- 保証人代行
- 加入要 費用: ※詳細お問い合わせください。
- その他費用
初期費用を知りたい鍵交換費用:22,000円
室内除菌消臭費:16,500円
室内清掃費用:44,000円
- 情報
情報登録日:2026/4/17
情報更新日:2026/4/16
次回更新予定日:2026/4/17
- 備考
- 現況: 居住中 契約期間: 2年 自社管理番号: 1047848
取扱い会社
- 取扱い会社
- 株式会社H&C 心斎橋店条件が近い物件も紹介してほしい
- 免許番号
- 大阪府知事(3)第56116号
- 取引態様
- 一般媒介
- 所在地
- 大阪府大阪市中央区島之内1丁目19-13 山金ビル1階
- 電話番号
- 06-6243-7724
- 営業時間
- 10:00~19:00(夏期休暇、年末年始)
- 定休日
- 定休日なし
- 所属団体名
- 公益社団法人 全国宅地建物取引業保証協会
おすすめ物件 (20件)
賃貸マンション
大阪市西区新町2丁目 11階建 2011年築

地下鉄長堀鶴見緑地線 / 西大橋駅 徒歩3分
築15年 / 11階建
大阪府大阪市西区新町2丁目

7.95万円 / 管理費11,000円
敷
無料礼
7.95万円1K / 23.55㎡ / 8階
賃貸マンション
大阪市西区靱本町3丁目 13階建 2006年築

地下鉄長堀鶴見緑地線 / 西長堀駅 徒歩10分
築20年 / 13階建
大阪府大阪市西区靱本町3丁目

7.6万円 / 管理費10,000円
敷
8.6万円礼
17.2万円1DK / 30.13㎡ / 3階
賃貸マンション
大阪市西区新町1丁目 15階建 2020年築

地下鉄長堀鶴見緑地線 / 西大橋駅 徒歩7分
築6年 / 15階建
大阪府大阪市西区新町1丁目

10.4万円 / 管理費11,000円
敷
無料礼
15.6万円1LDK / 34.98㎡ / 3階
賃貸マンション
大阪市西区立売堀4丁目 11階建 2003年築

地下鉄長堀鶴見緑地線 / 西長堀駅 徒歩7分
築23年 / 11階建
大阪府大阪市西区立売堀4丁目

9万円 / 管理費10,000円
敷
無料礼
10万円1K / 36.51㎡ / 8階
賃貸マンション
W.O.B HONMACHI-WEST

地下鉄長堀鶴見緑地線 / 西長堀駅 徒歩8分
築19年 / 9階建
大阪府大阪市西区立売堀3丁目

8.55万円 / 管理費13,000円
敷
無料礼
8.55万円1K / 30.14㎡ / 4階
賃貸マンション
アーデンタワー靭公園

地下鉄長堀鶴見緑地線 / 西長堀駅 徒歩12分
築18年 / 13階建
大阪府大阪市西区靱本町3丁目

9.6万円 / 管理費10,000円
敷
無料礼
無料1K / 29.66㎡ / 10階
賃貸マンション
S-RESIDENCE西長堀

地下鉄千日前線 / 西長堀駅 徒歩2分
築6年 / 12階建
大阪府大阪市西区南堀江3丁目

8.25万円 / 管理費11,000円
敷
無料礼
8.25万円1K / 25.96㎡ / 5階
賃貸マンション
アルデールトモ北堀江

地下鉄長堀鶴見緑地線 / 西大橋駅 徒歩6分
築10年 / 10階建
大阪府大阪市西区北堀江1丁目

10.4万円 / 管理費9,000円
敷
無料礼
25万円1LDK / 40.03㎡ / 3階
賃貸マンション
プレサンス立売堀パークシティ

地下鉄千日前線 / 西長堀駅 徒歩9分
築8年 / 15階建
大阪府大阪市西区立売堀6丁目

9.501万円 / 管理費8,890円
敷
無料礼
12万円1K / 25.4㎡ / 9階
賃貸マンション
アーデンタワー南堀江

地下鉄千日前線 / 西長堀駅 徒歩3分
築19年 / 14階建
大阪府大阪市西区南堀江4丁目

10.9万円 / 管理費10,000円
敷
無料礼
無料1K / 30.47㎡ / 10階
賃貸マンション
樹樹ガーデン・アネックス

地下鉄長堀鶴見緑地線 / 西大橋駅 徒歩5分
築15年 / 14階建
大阪府大阪市西区南堀江1丁目

8.3万円 / 管理費10,000円
敷
8.3万円礼
12.45万円ワンルーム / 31.36㎡ / 4階
賃貸マンション
レオンコンフォート堀江公園

地下鉄長堀鶴見緑地線 / 西大橋駅 徒歩5分
築6年 / 15階建
大阪府大阪市西区南堀江1丁目

10.5万円 / 管理費10,000円
敷
無料礼
10.5万円1LDK / 33.42㎡ / 11階
賃貸マンション
プレサンス立売堀ベルヴィル

地下鉄長堀鶴見緑地線 / 西長堀駅 徒歩9分
築5年 / 15階建
大阪府大阪市西区立売堀4丁目

8万円 / 管理費11,000円
敷
無料礼
8万円1K / 23.2㎡ / 3階
賃貸マンション
南堀江プライマリーワン

地下鉄長堀鶴見緑地線 / 西長堀駅 徒歩5分
築19年 / 12階建
大阪府大阪市西区南堀江3丁目

8.5万円 / 管理費15,000円
敷
無料礼
無料ワンルーム / 31.57㎡ / 4階
賃貸マンション
カーサセレーネ
地下鉄長堀鶴見緑地線 / 西長堀駅 徒歩15分
築19年 / 10階建
大阪府大阪市西区靱本町3
9.9万円 / 管理費10,000円
敷
無料礼
9.9万円1DK / 36.1㎡ / 9階
賃貸マンション
ガリレオ新町

地下鉄千日前線 / 西長堀駅 徒歩3分
築11年 / 11階建
大阪府大阪市西区新町3丁目

10.2万円 / 管理費12,000円
敷
無料礼
10.2万円1K / 30.28㎡ / 4階
賃貸マンション
W.O.B SHINMACHI

地下鉄千日前線 / 西長堀駅 徒歩1分
築19年 / 10階建
大阪府大阪市西区新町4丁目

8万円 / 管理費11,000円
敷
無料礼
8万円1K / 30.63㎡ / 7階
賃貸マンション
プレサンス新町ウィズ ジョイ

地下鉄長堀鶴見緑地線 / 西長堀駅 徒歩2分
築8年 / 15階建
大阪府大阪市西区新町3丁目14-20

8.088万円 / 管理費9,120円
敷
無料礼
10万円1K / 24㎡ / 15階
賃貸マンション
ソルテラス阿波座ウィズ

地下鉄長堀鶴見緑地線 / 西長堀駅 徒歩6分
築3年 / 15階建
大阪府大阪市西区立売堀5丁目5-7

10万円 / 管理費8,000円
敷
無料礼
無料1DK / 26.65㎡ / 6階
賃貸マンション
大阪市西区新町2丁目 11階建 2011年築

地下鉄長堀鶴見緑地線 / 西大橋駅 徒歩3分
築15年 / 11階建
大阪府大阪市西区新町2丁目

7.95万円 / 管理費11,000円
敷
無料礼
7.95万円1K / 23.55㎡ / 8階
賃貸マンション
大阪市西区靱本町3丁目 13階建 2006年築

地下鉄長堀鶴見緑地線 / 西長堀駅 徒歩10分
築20年 / 13階建
大阪府大阪市西区靱本町3丁目

7.6万円 / 管理費10,000円
敷
8.6万円礼
17.2万円1DK / 30.13㎡ / 3階
賃貸マンション
大阪市西区新町1丁目 15階建 2020年築

地下鉄長堀鶴見緑地線 / 西大橋駅 徒歩7分
築6年 / 15階建
大阪府大阪市西区新町1丁目

10.4万円 / 管理費11,000円
敷
無料礼
15.6万円1LDK / 34.98㎡ / 3階
賃貸マンション
大阪市西区立売堀4丁目 11階建 2003年築

地下鉄長堀鶴見緑地線 / 西長堀駅 徒歩7分
築23年 / 11階建
大阪府大阪市西区立売堀4丁目

9万円 / 管理費10,000円
敷
無料礼
10万円1K / 36.51㎡ / 8階
賃貸マンション
W.O.B HONMACHI-WEST

地下鉄長堀鶴見緑地線 / 西長堀駅 徒歩8分
築19年 / 9階建
大阪府大阪市西区立売堀3丁目

8.55万円 / 管理費13,000円
敷
無料礼
8.55万円1K / 30.14㎡ / 4階
賃貸マンション
アーデンタワー靭公園

地下鉄長堀鶴見緑地線 / 西長堀駅 徒歩12分
築18年 / 13階建
大阪府大阪市西区靱本町3丁目

9.6万円 / 管理費10,000円
敷
無料礼
無料1K / 29.66㎡ / 10階
賃貸マンション
S-RESIDENCE西長堀

地下鉄千日前線 / 西長堀駅 徒歩2分
築6年 / 12階建
大阪府大阪市西区南堀江3丁目

8.25万円 / 管理費11,000円
敷
無料礼
8.25万円1K / 25.96㎡ / 5階
賃貸マンション
アルデールトモ北堀江

地下鉄長堀鶴見緑地線 / 西大橋駅 徒歩6分
築10年 / 10階建
大阪府大阪市西区北堀江1丁目

10.4万円 / 管理費9,000円
敷
無料礼
25万円1LDK / 40.03㎡ / 3階
賃貸マンション
プレサンス立売堀パークシティ

地下鉄千日前線 / 西長堀駅 徒歩9分
築8年 / 15階建
大阪府大阪市西区立売堀6丁目

9.501万円 / 管理費8,890円
敷
無料礼
12万円1K / 25.4㎡ / 9階
賃貸マンション
アーデンタワー南堀江

地下鉄千日前線 / 西長堀駅 徒歩3分
築19年 / 14階建
大阪府大阪市西区南堀江4丁目

10.9万円 / 管理費10,000円
敷
無料礼
無料1K / 30.47㎡ / 10階
賃貸マンション
樹樹ガーデン・アネックス

地下鉄長堀鶴見緑地線 / 西大橋駅 徒歩5分
築15年 / 14階建
大阪府大阪市西区南堀江1丁目

8.3万円 / 管理費10,000円
敷
8.3万円礼
12.45万円ワンルーム / 31.36㎡ / 4階
賃貸マンション
レオンコンフォート堀江公園

地下鉄長堀鶴見緑地線 / 西大橋駅 徒歩5分
築6年 / 15階建
大阪府大阪市西区南堀江1丁目

10.5万円 / 管理費10,000円
敷
無料礼
10.5万円1LDK / 33.42㎡ / 11階
賃貸マンション
プレサンス立売堀ベルヴィル

地下鉄長堀鶴見緑地線 / 西長堀駅 徒歩9分
築5年 / 15階建
大阪府大阪市西区立売堀4丁目

8万円 / 管理費11,000円
敷
無料礼
8万円1K / 23.2㎡ / 3階
賃貸マンション
南堀江プライマリーワン

地下鉄長堀鶴見緑地線 / 西長堀駅 徒歩5分
築19年 / 12階建
大阪府大阪市西区南堀江3丁目

8.5万円 / 管理費15,000円
敷
無料礼
無料ワンルーム / 31.57㎡ / 4階
賃貸マンション
カーサセレーネ
地下鉄長堀鶴見緑地線 / 西長堀駅 徒歩15分
築19年 / 10階建
大阪府大阪市西区靱本町3
9.9万円 / 管理費10,000円
敷
無料礼
9.9万円1DK / 36.1㎡ / 9階
賃貸マンション
ガリレオ新町

地下鉄千日前線 / 西長堀駅 徒歩3分
築11年 / 11階建
大阪府大阪市西区新町3丁目

10.2万円 / 管理費12,000円
敷
無料礼
10.2万円1K / 30.28㎡ / 4階
賃貸マンション
W.O.B SHINMACHI

地下鉄千日前線 / 西長堀駅 徒歩1分
築19年 / 10階建
大阪府大阪市西区新町4丁目

8万円 / 管理費11,000円
敷
無料礼
8万円1K / 30.63㎡ / 7階
賃貸マンション
プレサンス新町ウィズ ジョイ

地下鉄長堀鶴見緑地線 / 西長堀駅 徒歩2分
築8年 / 15階建
大阪府大阪市西区新町3丁目14-20

8.088万円 / 管理費9,120円
敷
無料礼
10万円1K / 24㎡ / 15階
賃貸マンション
ソルテラス阿波座ウィズ

地下鉄長堀鶴見緑地線 / 西長堀駅 徒歩6分
築3年 / 15階建
大阪府大阪市西区立売堀5丁目5-7

10万円 / 管理費8,000円
敷
無料礼
無料1DK / 26.65㎡ / 6階
同じ最寄り駅 × 同じ特徴 で探す
同じ市区町村 × 同じ特徴 で探す






















