アーバネックス梅田中崎町Ⅱ2LDK/11階/1106(大阪府大阪市北区 / 梅田駅)の賃貸
1/30
1/30
20.4万円
初期費用を知りたい管理費13,000円
- 敷金
- 無料
- 保証金
- なし
- 礼金
- 20.4万円
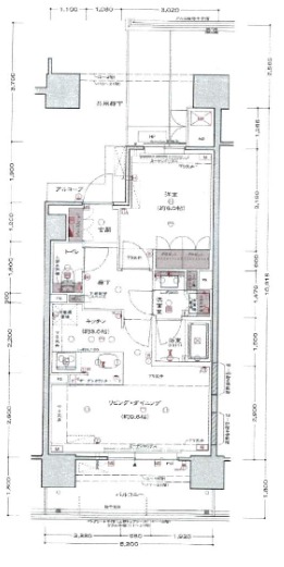
- 広さ
- 46.7㎡
- 階数
- 11階 / 11階建
- 間取り
- 2LDK
- 建物
- マンション (鉄筋コンクリート)
- 築年数
- 築2年
- 向き
- 南西
- 交通
- 地下鉄御堂筋線 / 梅田駅徒歩12分
- 大阪環状線 / 大阪駅徒歩13分
- 住所
- 大阪府大阪市北区堂山町14-24
コンビニエンスストア 32m
スーパーマーケット 130m
無料で10秒! カンタンお問い合わせ

アーバネックス梅田中崎町Ⅱ
敷
無料礼
20.4万円特徴
バス・トイレ別
2階以上
エアコン付き
ペット相談可
駐車場あり
室内洗濯機置場
オートロック
洗面所独立
- 入居条件
- 二人入居可、保証人不要、敷金不要最新の空室状況が知りたい
- バス・トイレ
- 温水洗浄便座、浴室乾燥機、洗面所独立、専用バス、バストイレ別、シャワー
- キッチン
- システムキッチン、ガスコンロ対応
- セキュリティ
- 防犯カメラ、オートロック
- 室内設備
- CS、BS、床暖房、クロゼット、シューズボックス、エアコン、室内洗濯置、フローリング、ネット使用料不要お部屋の詳しい情報を知りたい
- 部屋の特徴
- 角住戸、バルコニー、二階以上、最上階写真を送ってほしい
- 共用部
- 宅配ボックス、駐輪場、バイク置場、エレベーター
無料で10秒! カンタンお問い合わせ

アーバネックス梅田中崎町Ⅱ
敷
無料礼
20.4万円不動産会社からのコメント
梅田駅5分圏内に店舗がございます。平日のお仕事終わりでもお気軽にご来店お待ちしております♪
その他
- 駐車/駐輪
- 空無 / あり駐車可能な車種や台数を知りたい
- 入居時期
- 2026年6月上旬最新の空室状況が知りたい
- 損保
- 住宅保険: 要
- 保証人代行
- 加入要 会社名: その他 費用: エポスカード ㈱ 初回保証料:月額総賃料の30%(法人40%)以降月次保証料:月額総賃料の0.7%(大手法人は敷金賃料1ヵ月)
- その他費用
初期費用を知りたい鍵交換費用:16,500円
室内清掃費用:49,500円
水道料:2,750円
- 情報
情報登録日:2026/4/7
情報更新日:2026/4/13
次回更新予定日:2026/4/20
- 備考
- 現況: 居住中 契約期間: 2年 総戸数: 60戸 その他交通: Osaka Metro谷町線中崎町駅 徒歩4分 自社管理番号: 14102962
取扱い会社
- 取扱い会社
- 株式会社レオンワークス 大阪賃貸事業部条件が近い物件も紹介してほしい
- 免許番号
- 大阪府知事免許(4)第52620号
- 取引態様
- 仲介
- 所在地
- 大阪府大阪市北区梅田1丁目12-17 JRE梅田スクエアビル5階
- 電話番号
- 06-4256-7025
- 定休日
- 年末年始のみ
- 所属団体名
- 社団法人 全日本不動産協会会員
おすすめ物件 (6件)
賃貸マンション
スプランディッド梅田グランノース
)
大阪環状線 / 大阪駅 徒歩22分
新築 / 11階建
大阪府大阪市北区大淀中5丁目12-43
)
18.8万円 / 管理費12,000円
敷
無料礼
無料1SLDK / 45.45㎡ / 9階
賃貸マンション
グランドメゾン新梅田タワー THE CLUB RESIDENCE

福知山線 / 大阪駅 徒歩14分
築5年 / 51階建
大阪府大阪市北区大淀南2丁目2-9

21.5万円 / 管理費35,000円
敷
10万円礼
52万円1LDK / 56.16㎡ / 5階
賃貸マンション
大阪市福島区福島6丁目 15階建 2007年築

地下鉄御堂筋線 / 梅田駅 徒歩14分
築19年 / 15階建
大阪府大阪市福島区福島6丁目

19.9万円 / 管理費11,000円
敷
無料礼
無料1LDK / 51㎡ / 10階
賃貸マンション
大阪市北区西天満6丁目 12階建 2026年築

地下鉄御堂筋線 / 梅田駅 徒歩12分
新築 / 12階建
大阪府大阪市北区西天満6丁目

19.1万円 / 管理費13,000円
敷
無料礼
19.1万円2LDK / 44.52㎡ / 7階
賃貸マンション
ロジュマンタワー梅田

地下鉄御堂筋線 / 梅田駅 徒歩9分
築11年 / 21階建
大阪府大阪市北区万歳町3‐39

20万円 / 管理費20,000円
敷
無料礼
40万円1LDK / 45.92㎡ / 19階
賃貸マンション
W.O.B. NISHIUMEDA

東海道本線 / 大阪駅 徒歩9分
築19年 / 地上15階地下1階建
大阪府大阪市福島区福島6丁目

19.9万円 / 管理費11,000円
敷
無料礼
無料1LDK / 54.99㎡ / 10階
賃貸マンション
スプランディッド梅田グランノース
)
大阪環状線 / 大阪駅 徒歩22分
新築 / 11階建
大阪府大阪市北区大淀中5丁目12-43
)
18.8万円 / 管理費12,000円
敷
無料礼
無料1SLDK / 45.45㎡ / 9階
賃貸マンション
グランドメゾン新梅田タワー THE CLUB RESIDENCE

福知山線 / 大阪駅 徒歩14分
築5年 / 51階建
大阪府大阪市北区大淀南2丁目2-9

21.5万円 / 管理費35,000円
敷
10万円礼
52万円1LDK / 56.16㎡ / 5階
賃貸マンション
大阪市福島区福島6丁目 15階建 2007年築

地下鉄御堂筋線 / 梅田駅 徒歩14分
築19年 / 15階建
大阪府大阪市福島区福島6丁目

19.9万円 / 管理費11,000円
敷
無料礼
無料1LDK / 51㎡ / 10階
賃貸マンション
大阪市北区西天満6丁目 12階建 2026年築

地下鉄御堂筋線 / 梅田駅 徒歩12分
新築 / 12階建
大阪府大阪市北区西天満6丁目

19.1万円 / 管理費13,000円
敷
無料礼
19.1万円2LDK / 44.52㎡ / 7階
賃貸マンション
ロジュマンタワー梅田

地下鉄御堂筋線 / 梅田駅 徒歩9分
築11年 / 21階建
大阪府大阪市北区万歳町3‐39

20万円 / 管理費20,000円
敷
無料礼
40万円1LDK / 45.92㎡ / 19階
賃貸マンション
W.O.B. NISHIUMEDA

東海道本線 / 大阪駅 徒歩9分
築19年 / 地上15階地下1階建
大阪府大阪市福島区福島6丁目

19.9万円 / 管理費11,000円
敷
無料礼
無料1LDK / 54.99㎡ / 10階
同じ最寄り駅 × 同じ特徴 で探す
同じ市区町村 × 同じ特徴 で探す





























)


