大阪市 西区九条3丁目 3階建 2018年築1LDK/1階/101(大阪府大阪市西区 / 九条駅)の賃貸
管理費5,000円
- 敷金
- 無料
- 保証金
- なし
- 礼金
- 無料
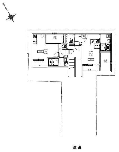
- 広さ
- 30㎡
- 階数
- 1階 / 3階建
- 間取り
- 1LDK
- 建物
- アパート (木造)
- 築年数
- 築8年
- 向き
- 南西
- 交通
- 地下鉄中央線 / 九条駅徒歩6分
- 阪神電鉄阪神なんば線 / 九条駅徒歩7分
- 地下鉄長堀鶴見緑地線 / ドーム前千代崎駅徒歩16分
- 大阪環状線 / 弁天町駅徒歩19分
- 地下鉄千日前線 / 玉川駅徒歩23分
- 住所
- 大阪府大阪市 西区九条3丁目
無料で10秒! カンタンお問い合わせ

大阪市 西区九条3丁目 3階建 2018年築
- 入居条件
- 二人入居相談、単身者相談、保証人不要、敷金不要、礼金不要最新の空室状況が知りたい
- バス・トイレ
- シャワー、給湯、3点給湯、シャンプードレッサー、洗面台、バストイレ別、追焚機能浴室、脱衣所、温水洗浄便座、洗面所独立
- キッチン
- ガスコンロ対応、2口コンロ、システムキッチン
- 室内設備
- インターネット対応、ネット使用料不要、エアコン、シューズボックス、クロゼット、室内洗濯置、24時間換気システム、フローリングお部屋の詳しい情報を知りたい
- 部屋の特徴
- 角住戸、バルコニー、1フロア2住戸写真を送ってほしい
- 共用部
- 敷地内駐車場、敷地内ごみ置き場、駐輪場
- その他の特徴
- 駐車場あり、プロパンガス、公営水道、下水、デザイナーズ
無料で10秒! カンタンお問い合わせ

大阪市 西区九条3丁目 3階建 2018年築
同じ建物で掲載中の物件 (1件)
◆賃貸専門店のホームメイト◆当店では、ベテランスタッフが安心して新生活を送って頂けますよう精一杯のサポートを致します。ご内見の際は、現地集合やお問い合わせ物件の最寄り駅集合も可能です♪初期費用のクレジット決済も当店は可能ですので、ご利用の際はスタッフまでお申し付け下さいませ(^o^)/
- 駐車/駐輪
- 有敷地内 費用: 17,600円(税込) / あり駐車可能な車種や台数を知りたい
- 入居時期
- 2026年4月下旬最新の空室状況が知りたい
- 損保
- 住宅保険: 要
- 保証人代行
- 連帯保証人: 不要+保証会社利用が必要
- その他費用
初期費用を知りたい月額費用(ルームサポートサービス:0.27万円/他):3,085円
- 情報
情報登録日:2026/3/29
情報更新日:2026/4/2
次回更新予定日:2026/4/22
- 備考
- 契約期間: 2年
- 取扱い会社
- 株式会社サイラス ホームメイトFC甲子園口店条件が近い物件も紹介してほしい
- 免許番号
- 国土交通大臣(1)第10411号
- 取引態様
- 一般媒介
- 所在地
- 兵庫県西宮市甲子園口2丁目9-28 Wisy Style Ⅱ 1F (101号室)
- 電話番号
- 0798-39-7711
- 営業時間
- 10:00~19:00
- 定休日
- 無し(年末年始)
- 所属団体名
- 公益社団法人全国宅地建物取引業保証協会
おすすめ物件 (20件)
Miragepalace Lotus Life


レオンコンフォート九条アルバ


AQUA GALAXY


ミラージュパレス大阪ドームProsper


大阪市西区本田2丁目 11階建 2008年築


プレサンス福島ミッドエル


スプランディッド中之島WEST


大阪市西区九条2丁目 14階建 2020年築


プライムステージ弁天町


フロンティアタワー九条Ⅰ(CITY SPIRE九条Ⅰ)


Gate Court OsakaFukushima(ゲートコート大阪福島)


プレサンス福島吉野ミナージ


エグゼ大阪ドーム


エグゼ大阪BAY


エスリード弁天町グロリア


GRAND CINQ


大阪市西区境川1丁目 地上11階地下1階建 2026年築


スプランディッド中之島DUE


Miragepalace Lotus Life


レオンコンフォート九条アルバ


AQUA GALAXY


ミラージュパレス大阪ドームProsper


大阪市西区本田2丁目 11階建 2008年築


プレサンス福島ミッドエル


スプランディッド中之島WEST


大阪市西区九条2丁目 14階建 2020年築


プライムステージ弁天町


フロンティアタワー九条Ⅰ(CITY SPIRE九条Ⅰ)


Gate Court OsakaFukushima(ゲートコート大阪福島)


プレサンス福島吉野ミナージ


エグゼ大阪ドーム


エグゼ大阪BAY


エスリード弁天町グロリア


GRAND CINQ


大阪市西区境川1丁目 地上11階地下1階建 2026年築


スプランディッド中之島DUE






























