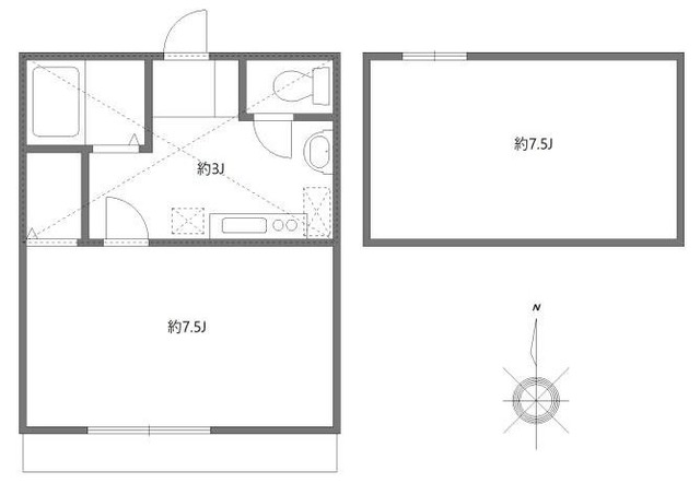
グリーンタウン1K/1階/108 (埼玉県川口市 / 南鳩ヶ谷駅)の賃貸
1/36
1/36
6.5万円
初期費用を知りたい管理費3,000円
- 敷金
- 無料
- 保証金
- なし
- 礼金
- 無料
- 広さ
- 23.18㎡
- 階数
- 1階 / 2階建
- 間取り
- 1K
- 建物
- アパート (木造)
- 築年数
- 築19年
- 向き
- 東
- 交通
- 埼玉高速鉄道 / 南鳩ヶ谷駅徒歩10分
- 京浜東北線 / 川口駅バス11分 青木三丁目下車 徒歩11分
- 京浜東北線 / 西川口駅徒歩28分
- 住所
- 埼玉県川口市鳩ヶ谷緑町2丁目19-13
セブンイレブン鳩ヶ谷緑町1丁目店 78m
コモディイイダ 南鳩ヶ谷店 508m
ヤオコー川口朝日店 867m
マツモトキヨシ 942m
セブンイレブン 678m
ローソン 川口青木三丁目店 839m
ヤマダデンキ テックランド 川口店 1033m
すき家 川口青木店 1033m
南小学校 538m
青木中学校 553m
コンビニ 117m
スーパー 307m
無料で10秒! カンタンお問い合わせ
)
グリーンタウン
敷
無料礼
無料特徴
バス・トイレ別
2階以上
エアコン付き
ペット相談可
駐車場あり
室内洗濯機置場
オートロック
洗面所独立
- 入居条件
- ペット可最新の空室状況が知りたい
- バス・トイレ
- 給湯、シャワー、シャンプードレッサー、追焚機能浴室、バストイレ別、浴室乾燥機、洗面所独立、温水洗浄便座
- キッチン
- ガスキッチン、コンロ2口以上、システムキッチン
- セキュリティ
- 24時間緊急通報システム、24時間緊急通報システム
- 室内設備
- エアコン、インターホン、インターネット対応、フローリング、室内洗濯置、クロゼット、押入、照明付、シューズボックスお部屋の詳しい情報を知りたい
- 部屋の特徴
- 角住戸、ロフト、バルコニー写真を送ってほしい
- 共用部
- 敷地内ごみ置き場、駐輪場
- その他の特徴
- プロパンガス
無料で10秒! カンタンお問い合わせ
)
グリーンタウン
敷
無料礼
無料その他
- 駐車/駐輪
- 無し / あり駐車可能な車種や台数を知りたい
- 入居時期
- 損保
- 住宅保険: 要 20000円
- 保証人代行
- 保証人: 不要
- その他費用
- 情報
情報登録日:2026/3/29
情報更新日:2026/5/18
次回更新予定日:2026/6/6
- 備考
- 更新料: 65000円 その他: 1年未満の解約は1ヶ月分の短期解約違約金が掛かります 保証会社利用必須 初回保証料 総賃料の50%、月額550円 その他初期費用 146000円 業者管理CD: 47643917
取扱い会社
- 取扱い会社
- アパマンショップ蕨東口店 株式会社 アップル条件が近い物件も紹介してほしい
- 免許番号
- 国土交通大臣(5)6971
- 取引態様
- 一般媒介
- 所在地
- 埼玉県蕨市塚越1丁目
- 電話番号
- 048-499-3737
- 所属団体名
- (公社)埼玉県宅地建物取引業協会,(公社) 首都圏不動産公正取引協議会加盟
おすすめ物件 (20件)
賃貸マンション
MAXIV西川口AZ TRE

京浜東北線 / 西川口駅 徒歩10分
築4年 / 7階建
埼玉県川口市西青木4丁目

6.7万円 / 管理費10,000円
敷
無料礼
6.7万円1K / 22.52㎡ / 1階
賃貸マンション
川口市南鳩ヶ谷1丁目 3階建 2015年築

埼玉高速鉄道 / 南鳩ヶ谷駅 徒歩9分
築11年 / 3階建
埼玉県川口市南鳩ヶ谷1丁目

7万円 / 管理費4,000円
敷
7万円礼
7万円1K / 28.38㎡ / 2階
賃貸マンション
レアライズ西川口
京浜東北線 / 西川口駅 徒歩4分
築10年 / 12階建
埼玉県川口市西川口1丁目17-18
8.1万円 / 管理費15,000円
敷
8.1万円礼
8.1万円1K / 21.66㎡ / 8階
賃貸マンション
グランヴァンプレミアムイースト川口
京浜東北線 / 川口駅 徒歩6分
築4年 / 8階建
埼玉県川口市本町4丁目14-9
8.3万円 / 管理費15,000円
敷
8.3万円礼
8.3万円1K / 20.85㎡ / 4階
賃貸マンション
MAXIV西川口AZ DUE

京浜東北線 / 西川口駅 徒歩7分
築5年 / 10階建
埼玉県川口市並木4丁目

7.5万円 / 管理費10,000円
敷
無料礼
7.5万円1K / 24.1㎡ / 8階
賃貸マンション
エル・グランジュテ西川口

京浜東北線 / 西川口駅 徒歩3分
築13年 / 11階建
埼玉県川口市並木2丁目

7.7万円 / 管理費6,000円
敷
無料礼
7.7万円1K / 20.59㎡ / 4階
賃貸マンション
ZCO並木ビル2ND

京浜東北線 / 西川口駅 徒歩11分
築23年 / 5階建
埼玉県川口市並木1丁目

6.9万円 / 管理費12,000円
敷
3.45万円礼
6.9万円ワンルーム / 29.46㎡ / 3階
賃貸アパート
メゾンド トレーフル

埼玉高速鉄道 / 鳩ヶ谷駅 徒歩21分
新築 / 3階建
埼玉県川口市上青木2丁目6-12、-23、-26、-14の一部(詳細未定)

8.35万円 / 管理費3,300円
敷
無料礼
8.35万円1K / 27.02㎡ / 1階
賃貸マンション
アクシーズタワー川口幸町
)
京浜東北線 / 川口駅 徒歩7分
築18年 / 10階建
埼玉県川口市幸町2丁目7-10
)
7.7万円 / 管理費6,000円
敷
無料礼
7.7万円1K / 22㎡ / 8階
賃貸マンション
MAXIV西川口AZ TRE

京浜東北線 / 西川口駅 徒歩10分
築4年 / 7階建
埼玉県川口市西青木4丁目

6.7万円 / 管理費10,000円
敷
無料礼
6.7万円1K / 22.52㎡ / 1階
賃貸マンション
川口市南鳩ヶ谷1丁目 3階建 2015年築

埼玉高速鉄道 / 南鳩ヶ谷駅 徒歩9分
築11年 / 3階建
埼玉県川口市南鳩ヶ谷1丁目

7万円 / 管理費4,000円
敷
7万円礼
7万円1K / 28.38㎡ / 2階
賃貸マンション
レアライズ西川口
京浜東北線 / 西川口駅 徒歩4分
築10年 / 12階建
埼玉県川口市西川口1丁目17-18
8.1万円 / 管理費15,000円
敷
8.1万円礼
8.1万円1K / 21.66㎡ / 8階
賃貸マンション
グランヴァンプレミアムイースト川口
京浜東北線 / 川口駅 徒歩6分
築4年 / 8階建
埼玉県川口市本町4丁目14-9
8.3万円 / 管理費15,000円
敷
8.3万円礼
8.3万円1K / 20.85㎡ / 4階
賃貸マンション
MAXIV西川口AZ DUE

京浜東北線 / 西川口駅 徒歩7分
築5年 / 10階建
埼玉県川口市並木4丁目

7.5万円 / 管理費10,000円
敷
無料礼
7.5万円1K / 24.1㎡ / 8階
賃貸マンション
エル・グランジュテ西川口

京浜東北線 / 西川口駅 徒歩3分
築13年 / 11階建
埼玉県川口市並木2丁目

7.7万円 / 管理費6,000円
敷
無料礼
7.7万円1K / 20.59㎡ / 4階
賃貸マンション
ZCO並木ビル2ND

京浜東北線 / 西川口駅 徒歩11分
築23年 / 5階建
埼玉県川口市並木1丁目

6.9万円 / 管理費12,000円
敷
3.45万円礼
6.9万円ワンルーム / 29.46㎡ / 3階
賃貸アパート
メゾンド トレーフル

埼玉高速鉄道 / 鳩ヶ谷駅 徒歩21分
新築 / 3階建
埼玉県川口市上青木2丁目6-12、-23、-26、-14の一部(詳細未定)

8.35万円 / 管理費3,300円
敷
無料礼
8.35万円1K / 27.02㎡ / 1階
賃貸マンション
アクシーズタワー川口幸町
)
京浜東北線 / 川口駅 徒歩7分
築18年 / 10階建
埼玉県川口市幸町2丁目7-10
)
7.7万円 / 管理費6,000円
敷
無料礼
7.7万円1K / 22㎡ / 8階
)
)
)
)
)
)
)
)
)
)
)
)
)
)
)
)
)
)
)
)
)
)
)
)
)
)
)
)
)
)
)
)
)
)
)


















