Air Tower Nippori B棟1R/3階/303(東京都荒川区 / 西日暮里駅)の賃貸
1/24
1/24
10万円
初期費用を知りたい管理費8,000円
- 敷金
- 10万円
- 保証金
- なし
- 礼金
- 無料
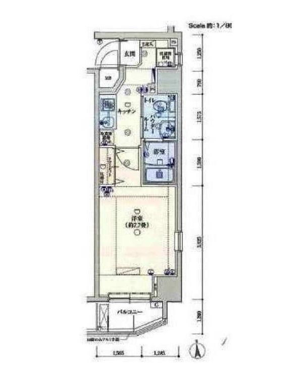
- 広さ
- 20㎡
- 階数
- 3階 / 5階建
- 間取り
- 1R
- 建物
- マンション (鉄筋コンクリート)
- 築年数
- 築6年
- 向き
- 北東
- 交通
- 山手線 / 西日暮里駅徒歩5分
- 山手線 / 日暮里駅徒歩7分
- 常磐線 / 三河島駅徒歩8分
- 京成本線 / 新三河島駅徒歩9分
- 住所
- 東京都荒川区西日暮里2丁目33-24
いなげや荒川西日暮里店 232m
ファミリーマート 西日暮里一丁目店 374m
どらっぐぱぱす 西日暮里店 244m
ステーションガーデンタワー 505m
細井胃腸科クリニック 360m
西日暮里公園 805m
無料で10秒! カンタンお問い合わせ

Air Tower Nippori B棟
敷
10万円礼
無料特徴
バス・トイレ別
2階以上
エアコン付き
ペット相談可
駐車場あり
室内洗濯機置場
オートロック
洗面所独立
- 入居条件
- 保証人不要、礼金不要最新の空室状況が知りたい
- バス・トイレ
- シャワー、給湯、洗面台、バストイレ別、浴室乾燥機、脱衣所、温水洗浄便座、洗面所独立
- キッチン
- IHクッキングヒーター、2口コンロ
- セキュリティ
- 防犯カメラ、ダブルロックキー、ディンプルキー、オートロック
- 室内設備
- インターネット対応、ネット使用料不要、エアコン、シューズボックス、2面採光、室内洗濯置、オール電化お部屋の詳しい情報を知りたい
- 部屋の特徴
- 二階以上、角住戸写真を送ってほしい
- 共用部
- 宅配ボックス、バイク置場、駐輪場
- その他の特徴
- 玄関ホール、駐車場あり、公営水道、下水
無料で10秒! カンタンお問い合わせ

Air Tower Nippori B棟
敷
10万円礼
無料不動産会社からのコメント
24時間安心サポート 2年毎16500円/駐輪場(利用時):月額500円/バイク置場(利用時):原付 月額1500円/室内清掃費用借主負担(退去時)/短期解約違約金有(1年未満の解約は賃料の1ヶ月分)
その他
- 駐車/駐輪
- 近隣 費用: 18,700円(税込) 距離: 486m / あり駐車可能な車種や台数を知りたい
- 入居時期
- 2026年5月下旬最新の空室状況が知りたい
- 損保
- 住宅保険: 要
- 保証人代行
- 連帯保証人: 不要 保証人代行: 必須 保証人代行会社: その他 月額賃料等の50%(初回保証料)、330円/月(口座振替手数料)、2年目以降は1万円/年
- その他費用
初期費用を知りたい鍵交換費:33,000円
- 情報
情報登録日:2026/4/26
情報更新日:2026/4/21
次回更新予定日:2026/5/7
- 備考
- 契約期間: 2年
取扱い会社
- 取扱い会社
- ソレイユ五反田店 (株式会社ソレイユ)条件が近い物件も紹介してほしい
- 免許番号
- 国土交通大臣(5)第7031号
- 取引態様
- 仲介
- 所在地
- 東京都品川区東五反田5丁目27-10 野村ビル 9階
- 電話番号
- 03-5792-5770
- 営業時間
- 10:00~19:00
- 定休日
- 毎週水曜日・第2火曜日
- 所属団体名
- 全日本不動産協会
おすすめ物件 (20件)
賃貸マンション
エルフォルテ東日暮里
常磐線 / 三河島駅 徒歩6分
築2年 / 7階建
東京都荒川区東日暮里3丁目3-14
10.5万円 / 管理費20,000円
敷
10.5万円礼
10.5万円1DK / 25.51㎡ / 4階
賃貸マンション
グランレーヴ東尾久
京成本線 / 新三河島駅 徒歩17分
築6年 / 12階建
東京都荒川区東尾久3
家賃カード決済可
11.5万円 / 管理費9,000円
敷
無料礼
11.5万円1K / 27.48㎡ / 5階
賃貸マンション
荒川区 12階建 2009年築
山手線 / 西日暮里駅 徒歩5分
築17年 / 12階建
東京都荒川区西日暮里2丁目47-5
9.9万円 / 管理費15,000円
敷
9.9万円礼
9.9万円ワンルーム / 25㎡ / 7階
賃貸マンション
GRANPASEO田端B

東京メトロ千代田線 / 西日暮里駅 徒歩13分
築5年 / 6階建
東京都北区田端新町2丁目23-3

11.5万円 / 管理費15,000円
敷
11.5万円礼
無料1K / 25.5㎡ / 4階
賃貸マンション
ジェノヴィア田端Ⅲグリーンヴェール

東京メトロ千代田線 / 西日暮里駅 徒歩13分
築7年 / 8階建
東京都北区東田端1丁目14-4

12万円 / 管理費10,000円
敷
無料礼
12万円1K / 25.82㎡ / 2階
賃貸マンション
La Douceur田端

京成本線 / 新三河島駅 徒歩8分
築6年 / 12階建
東京都北区田端新町1丁目21-11

11.7万円 / 管理費15,000円
敷
11.7万円礼
無料1K / 25.6㎡ / 5階
賃貸マンション
プレール・ドゥーク三ノ輪Ⅱ

常磐線 / 三河島駅 徒歩11分
築12年 / 8階建
東京都荒川区東日暮里2丁目36-14

10.4万円 / 管理費5,000円
敷
無料礼
10.4万円1K / 25.77㎡ / 7階
賃貸マンション
アルテシモ リンク クロス
山手線 / 西日暮里駅 徒歩3分
築17年 / 12階建
東京都荒川区西日暮里2丁目47-5
11万円 / 管理費10,000円
敷
無料礼
11万円ワンルーム / 25.23㎡ / 12階
賃貸マンション
feeth日暮里

常磐線 / 三河島駅 徒歩5分
築15年 / 10階建
東京都荒川区東日暮里3丁目44-12

8.5万円 / 管理費12,000円
敷
8.5万円礼
8.5万円1K / 26.7㎡ / 4階
賃貸マンション
イルグランディ
山手線 / 日暮里駅 徒歩9分
築19年 / 4階建
東京都台東区根岸2丁目6-6
10.2万円 / 管理費3,000円
敷
5.1万円礼
15.3万円1DK / 27.9㎡ / 3階
賃貸マンション
ティモーネ日暮里イースト

常磐線 / 三河島駅 徒歩8分
築11年 / 8階建
東京都荒川区東日暮里2丁目20-14

9.5万円 / 管理費12,000円
敷
9.5万円礼
9.5万円1K / 25.92㎡ / 4階
賃貸マンション
Priere

常磐線 / 三河島駅 徒歩11分
築10年 / 7階建
東京都荒川区東日暮里2丁目23-10

9.6万円 / 管理費7,200円
敷
9.6万円礼
9.6万円1K / 27.59㎡ / 2階
賃貸マンション
バージュアル西日暮里

東京メトロ千代田線 / 西日暮里駅 徒歩6分
築17年 / 11階建
東京都荒川区西日暮里6丁目52-6

10.2万円 / 管理費10,000円
敷
無料礼
10.2万円1K / 25.02㎡ / 10階
賃貸マンション
台東区 11階建 2009年築

京成本線 / 日暮里駅 徒歩7分
築17年 / 11階建
東京都台東区根岸2丁目19-20

11.7万円 / 管理費11,000円
敷
無料礼
11.7万円1K / 25.42㎡ / 4階
賃貸マンション
Air Tower Nippori A棟

山手線 / 西日暮里駅 徒歩5分
築7年 / 5階建
東京都荒川区西日暮里2丁目33-24

10万円 / 管理費8,000円
敷
10万円礼
無料ワンルーム / 20㎡ / 4階
賃貸マンション
エルフォルテ東日暮里
常磐線 / 三河島駅 徒歩6分
築2年 / 7階建
東京都荒川区東日暮里3丁目3-14
10.5万円 / 管理費20,000円
敷
10.5万円礼
10.5万円1DK / 25.51㎡ / 4階
賃貸マンション
グランレーヴ東尾久
京成本線 / 新三河島駅 徒歩17分
築6年 / 12階建
東京都荒川区東尾久3
家賃カード決済可
11.5万円 / 管理費9,000円
敷
無料礼
11.5万円1K / 27.48㎡ / 5階
賃貸マンション
荒川区 12階建 2009年築
山手線 / 西日暮里駅 徒歩5分
築17年 / 12階建
東京都荒川区西日暮里2丁目47-5
9.9万円 / 管理費15,000円
敷
9.9万円礼
9.9万円ワンルーム / 25㎡ / 7階
賃貸マンション
GRANPASEO田端B

東京メトロ千代田線 / 西日暮里駅 徒歩13分
築5年 / 6階建
東京都北区田端新町2丁目23-3

11.5万円 / 管理費15,000円
敷
11.5万円礼
無料1K / 25.5㎡ / 4階
賃貸マンション
ジェノヴィア田端Ⅲグリーンヴェール

東京メトロ千代田線 / 西日暮里駅 徒歩13分
築7年 / 8階建
東京都北区東田端1丁目14-4

12万円 / 管理費10,000円
敷
無料礼
12万円1K / 25.82㎡ / 2階
賃貸マンション
La Douceur田端

京成本線 / 新三河島駅 徒歩8分
築6年 / 12階建
東京都北区田端新町1丁目21-11

11.7万円 / 管理費15,000円
敷
11.7万円礼
無料1K / 25.6㎡ / 5階
賃貸マンション
プレール・ドゥーク三ノ輪Ⅱ

常磐線 / 三河島駅 徒歩11分
築12年 / 8階建
東京都荒川区東日暮里2丁目36-14

10.4万円 / 管理費5,000円
敷
無料礼
10.4万円1K / 25.77㎡ / 7階
賃貸マンション
アルテシモ リンク クロス
山手線 / 西日暮里駅 徒歩3分
築17年 / 12階建
東京都荒川区西日暮里2丁目47-5
11万円 / 管理費10,000円
敷
無料礼
11万円ワンルーム / 25.23㎡ / 12階
賃貸マンション
feeth日暮里

常磐線 / 三河島駅 徒歩5分
築15年 / 10階建
東京都荒川区東日暮里3丁目44-12

8.5万円 / 管理費12,000円
敷
8.5万円礼
8.5万円1K / 26.7㎡ / 4階
賃貸マンション
イルグランディ
山手線 / 日暮里駅 徒歩9分
築19年 / 4階建
東京都台東区根岸2丁目6-6
10.2万円 / 管理費3,000円
敷
5.1万円礼
15.3万円1DK / 27.9㎡ / 3階
賃貸マンション
ティモーネ日暮里イースト

常磐線 / 三河島駅 徒歩8分
築11年 / 8階建
東京都荒川区東日暮里2丁目20-14

9.5万円 / 管理費12,000円
敷
9.5万円礼
9.5万円1K / 25.92㎡ / 4階
賃貸マンション
Priere

常磐線 / 三河島駅 徒歩11分
築10年 / 7階建
東京都荒川区東日暮里2丁目23-10

9.6万円 / 管理費7,200円
敷
9.6万円礼
9.6万円1K / 27.59㎡ / 2階
賃貸マンション
バージュアル西日暮里

東京メトロ千代田線 / 西日暮里駅 徒歩6分
築17年 / 11階建
東京都荒川区西日暮里6丁目52-6

10.2万円 / 管理費10,000円
敷
無料礼
10.2万円1K / 25.02㎡ / 10階
賃貸マンション
台東区 11階建 2009年築

京成本線 / 日暮里駅 徒歩7分
築17年 / 11階建
東京都台東区根岸2丁目19-20

11.7万円 / 管理費11,000円
敷
無料礼
11.7万円1K / 25.42㎡ / 4階
賃貸マンション
Air Tower Nippori A棟

山手線 / 西日暮里駅 徒歩5分
築7年 / 5階建
東京都荒川区西日暮里2丁目33-24

10万円 / 管理費8,000円
敷
10万円礼
無料ワンルーム / 20㎡ / 4階
同じ最寄り駅 × 同じ特徴 で探す
同じ市区町村 × 同じ特徴 で探す



























