ディームス大手町ノース1SLDK/5階(東京都千代田区 / 神田駅)の賃貸
1/20
1/20
24.2万円
初期費用を知りたい管理費12,000円
- 敷金
- 24.2万円
- 保証金
- なし
- 礼金
- 24.2万円
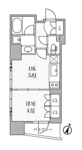
- 広さ
- 40.83㎡
- 階数
- 5階 / 地上13階地下1階建
- 間取り
- 1SLDK
- 建物
- マンション (鉄筋コンクリート)
- 築年数
- 築6年
- 向き
- 北東
- 交通
- 山手線 / 神田駅徒歩4分
- 東京メトロ丸ノ内線 / 淡路町駅徒歩4分
- 都営新宿線 / 小川町駅徒歩4分
- 住所
- 東京都千代田区神田多町2
ポニークリーニング(その他)まで20m
まいばすけっと神田駅北口店(スーパー)まで50m
ファミリーマート神田駅北店(コンビニ)まで70m
神田駅前郵便局(郵便局)まで80m
サンクス 神田多町店(コンビニ)まで80m
マルエツ プチ 神田司町店(スーパー)まで160m
無料で10秒! カンタンお問い合わせ
ディームス大手町ノース
敷
24.2万円礼
24.2万円特徴
バス・トイレ別
2階以上
エアコン付き
ペット相談可
駐車場あり
室内洗濯機置場
オートロック
洗面所独立
- 入居条件
- 保証人不要、敷金1ヶ月、二人入居相談、礼金1ヶ月最新の空室状況が知りたい
- バス・トイレ
- バストイレ別、浴室乾燥機、追焚機能浴室、温水洗浄便座、脱衣所、洗面所独立、洗面化粧台
- キッチン
- ガスコンロ対応、システムキッチン、2口コンロ、食器洗乾燥機
- セキュリティ
- オートロック、防犯カメラ
- 室内設備
- エアコン、クロゼット、フローリング、室内洗濯置、シューズボックス、光ファイバー、2面採光、全居室フローリング、CS、床暖房、24時間換気システム、BSお部屋の詳しい情報を知りたい
- 部屋の特徴
- バルコニー、角住戸、二階以上写真を送ってほしい
- 共用部
- エレベーター、駐輪場、宅配ボックス、敷地内ごみ置き場
- その他の特徴
- 都市ガス、保証会社利用可、定期借家
無料で10秒! カンタンお問い合わせ
ディームス大手町ノース
敷
24.2万円礼
24.2万円同じ建物で掲載中の物件 (7件)
不動産会社からのコメント
築浅賃貸マンション 追い焚き 床暖房 宅配ボックス 食洗機
こちらの物件のメリット・デメリット等、お客様ご自身で気づきにくい点等、お電話にて詳しくご説明いたします!是非一度ご連絡ください!お申込・内覧予約も随時受付中!トレント飯田橋店 03-3556-3101
その他
- 駐車/駐輪
- 要確認 / あり駐車可能な車種や台数を知りたい
- 入居時期
- 2026年4月中旬最新の空室状況が知りたい
- 損保
- 要
- 保証人代行
- -
- その他費用
合計2.42万円(内訳:鍵交換費用: 2.42万円) 初期費用を知りたい- 情報
情報登録日:2026/1/26
情報更新日:2026/1/31
次回更新予定日:2026/2/16
- 備考
- 契約期間: 定期借家 2年 保証会社: 保証会社利用必 初回保証料/総賃料等50パーセント 年間保証料/10000円 その他:条件: 二人入居可 / ほか初期費用: 合計2.42万円(内訳:鍵交換費用: 2.42万円) / ほか諸費用: 更新料:新賃料1.0ヵ月
取扱い会社
- 取扱い会社
- 株式会社クルーズカンパニー トレント 新宿本店条件が近い物件も紹介してほしい
- 免許番号
- 東京都知事(3)第93971号
- 取引態様
- 一般媒介
- 所在地
- 東京都新宿区西新宿1-14-15
- 電話番号
- 03-5909-4451
- 所属団体名
- 公益社団法人 全日本不動産協会
おすすめ物件 (7件)
賃貸マンション
ルジュール神田須田町
東京メトロ銀座線 / 神田駅 徒歩6分
築3年 / 15階建
東京都千代田区神田須田町2丁目19-1
25.7万円 / 管理費20,000円
敷
25.7万円礼
25.7万円2LDK / 45.57㎡ / 11階
賃貸マンション
アーバネックス千代田淡路町
東京メトロ丸ノ内線 / 淡路町駅 徒歩3分
築4年 / 13階建
東京都千代田区神田小川町1丁目7-8
25.5万円 / 管理費20,000円
敷
25.5万円礼
無料2LDK / 40.08㎡ / 5階
賃貸マンション
千代田区神田多町2丁目 12階建 2006年築

東京メトロ丸ノ内線 / 淡路町駅 徒歩3分
築20年 / 12階建
東京都千代田区神田多町2丁目

23万円 / 管理費なし
敷
23万円礼
23万円1LDK / 45.81㎡ / 10階
賃貸マンション
パークアクシス神田レジデンス
東京メトロ銀座線 / 神田駅 徒歩5分
築2年 / 12階建
東京都千代田区神田司町2丁目
家賃カード決済可
22.7万円 / 管理費なし
敷
22.7万円礼
無料1LDK / 33.34㎡ / 6階
賃貸マンション
ディームス大手町ノース

中央本線 / 神田駅 徒歩4分
築6年 / 地上13階地下1階建
東京都千代田区神田多町2丁目

24.2万円 / 管理費12,000円
敷
24.2万円礼
24.2万円1LDK / 40.83㎡ / 5階
賃貸マンション
レジディア神田東

山手線 / 神田駅 徒歩6分
築23年 / 15階建
東京都千代田区岩本町1丁目

22.9万円 / 管理費15,000円
敷
22.9万円礼
22.9万円1LDK / 45.61㎡ / 11階
賃貸マンション
ディームス大手町ノース

山手線 / 神田駅 徒歩1分
築6年 / 12階建
東京都千代田区神田多町2-3

24.2万円 / 管理費12,000円
敷
24.2万円礼
24.2万円1LDK / 40.83㎡ / 5階
賃貸マンション
ルジュール神田須田町
東京メトロ銀座線 / 神田駅 徒歩6分
築3年 / 15階建
東京都千代田区神田須田町2丁目19-1
25.7万円 / 管理費20,000円
敷
25.7万円礼
25.7万円2LDK / 45.57㎡ / 11階
賃貸マンション
アーバネックス千代田淡路町
東京メトロ丸ノ内線 / 淡路町駅 徒歩3分
築4年 / 13階建
東京都千代田区神田小川町1丁目7-8
25.5万円 / 管理費20,000円
敷
25.5万円礼
無料2LDK / 40.08㎡ / 5階
賃貸マンション
千代田区神田多町2丁目 12階建 2006年築

東京メトロ丸ノ内線 / 淡路町駅 徒歩3分
築20年 / 12階建
東京都千代田区神田多町2丁目

23万円 / 管理費なし
敷
23万円礼
23万円1LDK / 45.81㎡ / 10階
賃貸マンション
パークアクシス神田レジデンス
東京メトロ銀座線 / 神田駅 徒歩5分
築2年 / 12階建
東京都千代田区神田司町2丁目
家賃カード決済可
22.7万円 / 管理費なし
敷
22.7万円礼
無料1LDK / 33.34㎡ / 6階
賃貸マンション
ディームス大手町ノース

中央本線 / 神田駅 徒歩4分
築6年 / 地上13階地下1階建
東京都千代田区神田多町2丁目

24.2万円 / 管理費12,000円
敷
24.2万円礼
24.2万円1LDK / 40.83㎡ / 5階
賃貸マンション
レジディア神田東

山手線 / 神田駅 徒歩6分
築23年 / 15階建
東京都千代田区岩本町1丁目

22.9万円 / 管理費15,000円
敷
22.9万円礼
22.9万円1LDK / 45.61㎡ / 11階
賃貸マンション
ディームス大手町ノース

山手線 / 神田駅 徒歩1分
築6年 / 12階建
東京都千代田区神田多町2-3

24.2万円 / 管理費12,000円
敷
24.2万円礼
24.2万円1LDK / 40.83㎡ / 5階

