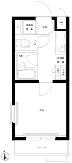
ロジェ高井戸1K/2階/209(東京都杉並区 / 高井戸駅)の賃貸
1/22
1/22
7.2万円
初期費用を知りたい管理費5,000円
- 敷金
- 7.2万円
- 保証金
- なし
- 礼金
- 無料
- 広さ
- 22.05㎡
- 階数
- 2階 / 4階建
- 間取り
- 1K
- 建物
- マンション (鉄筋コンクリート)
- 築年数
- 築36年
- 向き
- 北東
- 交通
- 京王井の頭線 / 高井戸駅徒歩8分
- 京王井の頭線 / 浜田山駅徒歩15分
- 中央線 / 荻窪駅徒歩24分
- 住所
- 東京都杉並区高井戸東4丁目7-10
A-プライス高井戸店 319m
ミニストップ高井戸東3丁目店 159m
スギ薬局高井戸店 394m
TSUTAYA 浜田山店 840m
デニーズ高井戸店 152m
ファミリークリニック高井戸 438m
無料で10秒! カンタンお問い合わせ

ロジェ高井戸
敷
7.2万円礼
無料特徴
バス・トイレ別
2階以上
エアコン付き
ペット相談可
駐車場あり
室内洗濯機置場
オートロック
洗面所独立
- 入居条件
- 礼金不要、即入居可最新の空室状況が知りたい
- バス・トイレ
- 給湯、洗面台、バストイレ別
- キッチン
- IHクッキングヒーター、1口コンロ、システムキッチン
- セキュリティ
- 防犯カメラ、オートロック
- 室内設備
- インターネット対応、CATV、ネット使用料不要、エアコン、室内洗濯置、フローリングお部屋の詳しい情報を知りたい
- 部屋の特徴
- 二階以上、バルコニー写真を送ってほしい
- 共用部
- 駐輪場
- その他の特徴
- 駐車場あり、都市ガス、公営水道、下水、外壁タイル張り
無料で10秒! カンタンお問い合わせ

ロジェ高井戸
敷
7.2万円礼
無料不動産会社からのコメント
火災保険 有り 24ヶ月 17000円/収納手数料330円月額/駐輪場月額200円/室内清掃費用借主負担/CATVでBS、CS視聴可(CATV、BS別途契約要、有償)
その他
- 駐車/駐輪
- 近隣 費用: 24,200円(税込) 距離: 153m / あり駐車可能な車種や台数を知りたい
- 入居時期
- 損保
- 住宅保険: 要
- 保証人代行
- 保証人代行: 必須 保証人代行会社: その他 初回:賃料等の50%、月額:870円
- その他費用
初期費用を知りたい鍵交換費:22,000円
- 情報
情報登録日:2026/4/11
情報更新日:2026/4/9
次回更新予定日:2026/4/22
- 備考
- 契約期間: 2年
取扱い会社
- 取扱い会社
- アエラス三鷹店 (株式会社アエラス.PR)条件が近い物件も紹介してほしい
- 免許番号
- 国土交通大臣(1)第10782号
- 取引態様
- 仲介
- 所在地
- 東京都武蔵野市中町1丁目13-2 村越ビル 4階
- 電話番号
- 0422-50-0693
- 営業時間
- 10:00~19:00
- 定休日
- 年中無休(年末年始などを除く)
- 所属団体名
- 全日本不動産協会
おすすめ物件 (20件)
賃貸マンション
プレール・ドゥーク上高井戸
京王井の頭線 / 高井戸駅 徒歩15分
築19年 / 5階建
東京都杉並区上高井戸2丁目18-17
8.9万円 / 管理費5,000円
敷
無料礼
8.9万円1K / 21.5㎡ / 3階
賃貸マンション
ロジェ高井戸壱番館

京王井の頭線 / 高井戸駅 徒歩11分
築36年 / 4階建
東京都杉並区高井戸東4丁目7-10

7.2万円 / 管理費5,000円
敷
7.2万円礼
無料1K / 22.05㎡ / 4階
賃貸マンション
ジュエル荻窪参番館

東京メトロ丸ノ内線 / 荻窪駅 徒歩7分
築20年 / 4階建
東京都杉並区清水1丁目13-3

8.8万円 / 管理費15,000円
敷
無料礼
無料1K / 20.85㎡ / 2階
賃貸マンション
杉並区 8階建 2008年築

東京メトロ丸ノ内線 / 荻窪駅 徒歩11分
築18年 / 8階建
東京都杉並区上荻2丁目38-10

9万円 / 管理費5,000円
敷
無料礼
9万円ワンルーム / 21.2㎡ / 2階
賃貸マンション
ライオンズマンション荻窪館

東京メトロ丸ノ内線 / 荻窪駅 徒歩13分
築33年 / 5階建
東京都杉並区西荻北1丁目9-2

8.2万円 / 管理費6,000円
敷
8.2万円礼
8.2万円1K / 19.32㎡ / 5階
賃貸アパート
レオパレスリバー K

京王井の頭線 / 浜田山駅 徒歩19分
築19年 / 2階建
東京都杉並区成田西3丁目15-20

7万円 / 管理費5,500円
敷
無料礼
7万円1K / 19.87㎡ / 2階
賃貸マンション
ブライズ高井戸

京王井の頭線 / 高井戸駅 徒歩15分
築17年 / 7階建
東京都杉並区上高井戸1丁目25-15

8.6万円 / 管理費15,000円
敷
8.6万円礼
8.6万円1K / 22.81㎡ / 5階
賃貸アパート
プライムアート

西武新宿線 / 上井草駅 徒歩7分
築14年 / 2階建
東京都杉並区上井草2丁目24-7

8.4万円 / 管理費4,000円
敷
8.4万円礼
16.8万円1K / 31.78㎡ / 2階
賃貸マンション
ルーブル久我山

京王井の頭線 / 高井戸駅 徒歩19分
築19年 / 5階建
東京都杉並区久我山5丁目11-19

7.25万円 / 管理費16,500円
敷
無料礼
7.25万円1K / 19.65㎡ / 2階
賃貸アパート
杉並区高井戸西 2階建 2015年築
)
京王井の頭線 / 高井戸駅 徒歩6分
築11年 / 2階建
東京都杉並区高井戸西1丁目
)
8.8万円 / 管理費2,000円
敷
8.8万円礼
無料1K / 27.15㎡ / 2階
賃貸マンション
パークロッジ久我山
)
京王井の頭線 / 高井戸駅 徒歩16分
築10年 / 5階建
東京都杉並区久我山5丁目12-19
)
9万円 / 管理費12,000円
敷
9万円礼
9万円ワンルーム / 25.36㎡ / 2階
賃貸マンション
杉並区永福 4階建 2001年築
)
京王井の頭線 / 浜田山駅 徒歩18分
築25年 / 4階建
東京都杉並区永福4丁目14-2
)
9.1万円 / 管理費11,000円
敷
無料礼
18.2万円1K / 20.6㎡ / 4階
賃貸マンション
杉並区上荻 7階建 2001年築
)
中央線 / 荻窪駅 徒歩13分
築25年 / 7階建
東京都杉並区上荻3丁目
)
7.8万円 / 管理費3,000円
敷
7.8万円礼
7.8万円1K / 23.8㎡ / 3階
賃貸マンション
明治製菓・スカイコート荻窪ビル
)
総武線 / 荻窪駅 徒歩25分
築29年 / 地上5階地下1階建
東京都杉並区桃井4丁目4-3
)
7.6万円 / 管理費6,000円
敷
7.6万円礼
7.6万円1K / 20.32㎡ / 4階
賃貸マンション
杉並区桃井 4階建 2003年築
)
中央線 / 荻窪駅 徒歩17分
築23年 / 4階建
東京都杉並区桃井1丁目
)
7.5万円 / 管理費なし
敷
7.5万円礼
7.5万円1K / 18.06㎡ / 3階
賃貸マンション
プレール高井戸
)
京王井の頭線 / 高井戸駅 徒歩5分
築27年 / 7階建
東京都杉並区高井戸西3丁目
)
8.1万円 / 管理費6,000円
敷
8.1万円礼
8.1万円1K / 24.12㎡ / 5階
賃貸マンション
プレール・ドゥーク上高井戸
京王井の頭線 / 高井戸駅 徒歩15分
築19年 / 5階建
東京都杉並区上高井戸2丁目18-17
8.9万円 / 管理費5,000円
敷
無料礼
8.9万円1K / 21.5㎡ / 3階
賃貸マンション
ロジェ高井戸壱番館

京王井の頭線 / 高井戸駅 徒歩11分
築36年 / 4階建
東京都杉並区高井戸東4丁目7-10

7.2万円 / 管理費5,000円
敷
7.2万円礼
無料1K / 22.05㎡ / 4階
賃貸マンション
ジュエル荻窪参番館

東京メトロ丸ノ内線 / 荻窪駅 徒歩7分
築20年 / 4階建
東京都杉並区清水1丁目13-3

8.8万円 / 管理費15,000円
敷
無料礼
無料1K / 20.85㎡ / 2階
賃貸マンション
杉並区 8階建 2008年築

東京メトロ丸ノ内線 / 荻窪駅 徒歩11分
築18年 / 8階建
東京都杉並区上荻2丁目38-10

9万円 / 管理費5,000円
敷
無料礼
9万円ワンルーム / 21.2㎡ / 2階
賃貸マンション
ライオンズマンション荻窪館

東京メトロ丸ノ内線 / 荻窪駅 徒歩13分
築33年 / 5階建
東京都杉並区西荻北1丁目9-2

8.2万円 / 管理費6,000円
敷
8.2万円礼
8.2万円1K / 19.32㎡ / 5階
賃貸アパート
レオパレスリバー K

京王井の頭線 / 浜田山駅 徒歩19分
築19年 / 2階建
東京都杉並区成田西3丁目15-20

7万円 / 管理費5,500円
敷
無料礼
7万円1K / 19.87㎡ / 2階
賃貸マンション
ブライズ高井戸

京王井の頭線 / 高井戸駅 徒歩15分
築17年 / 7階建
東京都杉並区上高井戸1丁目25-15

8.6万円 / 管理費15,000円
敷
8.6万円礼
8.6万円1K / 22.81㎡ / 5階
賃貸アパート
プライムアート

西武新宿線 / 上井草駅 徒歩7分
築14年 / 2階建
東京都杉並区上井草2丁目24-7

8.4万円 / 管理費4,000円
敷
8.4万円礼
16.8万円1K / 31.78㎡ / 2階
賃貸マンション
ルーブル久我山

京王井の頭線 / 高井戸駅 徒歩19分
築19年 / 5階建
東京都杉並区久我山5丁目11-19

7.25万円 / 管理費16,500円
敷
無料礼
7.25万円1K / 19.65㎡ / 2階
賃貸アパート
杉並区高井戸西 2階建 2015年築
)
京王井の頭線 / 高井戸駅 徒歩6分
築11年 / 2階建
東京都杉並区高井戸西1丁目
)
8.8万円 / 管理費2,000円
敷
8.8万円礼
無料1K / 27.15㎡ / 2階
賃貸マンション
パークロッジ久我山
)
京王井の頭線 / 高井戸駅 徒歩16分
築10年 / 5階建
東京都杉並区久我山5丁目12-19
)
9万円 / 管理費12,000円
敷
9万円礼
9万円ワンルーム / 25.36㎡ / 2階
賃貸マンション
杉並区永福 4階建 2001年築
)
京王井の頭線 / 浜田山駅 徒歩18分
築25年 / 4階建
東京都杉並区永福4丁目14-2
)
9.1万円 / 管理費11,000円
敷
無料礼
18.2万円1K / 20.6㎡ / 4階
賃貸マンション
杉並区上荻 7階建 2001年築
)
中央線 / 荻窪駅 徒歩13分
築25年 / 7階建
東京都杉並区上荻3丁目
)
7.8万円 / 管理費3,000円
敷
7.8万円礼
7.8万円1K / 23.8㎡ / 3階
賃貸マンション
明治製菓・スカイコート荻窪ビル
)
総武線 / 荻窪駅 徒歩25分
築29年 / 地上5階地下1階建
東京都杉並区桃井4丁目4-3
)
7.6万円 / 管理費6,000円
敷
7.6万円礼
7.6万円1K / 20.32㎡ / 4階
賃貸マンション
杉並区桃井 4階建 2003年築
)
中央線 / 荻窪駅 徒歩17分
築23年 / 4階建
東京都杉並区桃井1丁目
)
7.5万円 / 管理費なし
敷
7.5万円礼
7.5万円1K / 18.06㎡ / 3階
賃貸マンション
プレール高井戸
)
京王井の頭線 / 高井戸駅 徒歩5分
築27年 / 7階建
東京都杉並区高井戸西3丁目
)
8.1万円 / 管理費6,000円
敷
8.1万円礼
8.1万円1K / 24.12㎡ / 5階






















)
)
)
)
)
)