ログリア1K/1階(東京都荒川区 / 荒川一中前駅)の賃貸
1/19
1/19
7.5万円
初期費用を知りたい管理費3,000円
- 敷金
- 無料
- 保証金
- なし
- 礼金
- 7.5万円
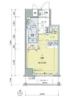
- 広さ
- 19.38㎡
- 階数
- 1階 / 3階建
- 間取り
- 1K
- 建物
- アパート (木造)
- 築年数
- 築7年
- 向き
- 北
- 交通
- 都電荒川線 / 荒川一中前駅徒歩5分
- 東京メトロ日比谷線 / 三ノ輪駅徒歩8分
- 常磐線 / 三河島駅徒歩10分
- 住所
- 東京都荒川区東日暮里2
区立日暮里公園(その他)まで660m
セブンイレブン 東日暮里1丁目店(コンビニ)まで230m
中山医院(病院)まで500m
(株)オリンピック 三ノ輪店(スーパー)まで350m
ドラッグストアスマイル(その他)まで560m
なかよし保育園(幼稚園・保育園)まで390m
無料で10秒! カンタンお問い合わせ
ログリア
敷
無料礼
7.5万円特徴
バス・トイレ別
2階以上
エアコン付き
ペット相談可
駐車場あり
室内洗濯機置場
オートロック
洗面所独立
- バス・トイレ
- バストイレ別、浴室乾燥機、温水洗浄便座、洗面所独立
- キッチン
- ガスコンロ対応、システムキッチン、2口コンロ、IHクッキングヒーター
- セキュリティ
- オートロック、ディンプルキー、ダブルロックキー
- 室内設備
- エアコン、クロゼット、フローリング、室内洗濯置、シューズボックス、光ファイバー、照明付、全居室収納、CS、ネット使用料不要、24時間換気システム、BSお部屋の詳しい情報を知りたい
- 部屋の特徴
- バルコニー、角住戸写真を送ってほしい
- 共用部
- 宅配ボックス、敷地内ごみ置き場
- その他の特徴
- プロパンガス
無料で10秒! カンタンお問い合わせ
ログリア
敷
無料礼
7.5万円不動産会社からのコメント
ミニミニではLINEのやり取りでお部屋探しが可能です。
遠隔地のお客様や、忙しく店舗まで足を運ぶのが難しいお客様にも安心のオンラインシステム。弊社は来店不要で契約が可能です。オンライン接客・内見・IT重要事項説明等のご要望がございましたらご相談下さい。
その他
- 駐車/駐輪
- 要確認 / なし駐車可能な車種や台数を知りたい
- 入居時期
- 2025年12月下旬最新の空室状況が知りたい
- 損保
- 1.8万円2年
- 保証人代行
- -
- その他費用
合計8.47万円(内訳:鍵交換料2.75万円/IO サポート?楽部IO サポート?楽部1.1万円/書類作成費0.22万円/清掃代4.4万円) 初期費用を知りたい- 情報
情報登録日:2025/12/8
情報更新日:2025/12/7
次回更新予定日:2025/12/23
- 備考
- 保証会社: 保証会社利用必 その他 家賃保証会社 初回保証料50% その他:ほか初期費用: 合計8.47万円(内訳:鍵交換料2.75万円/IO サポート?楽部IO サポート?楽部1.1万円/書類作成費0.22万円/清掃代4.4万円)
取扱い会社
- 取扱い会社
- 株式会社ミニミニ城北 日暮里店条件が近い物件も紹介してほしい
- 免許番号
- 国土交通大臣(5)第6346号
- 取引態様
- 一般媒介
- 所在地
- 東京都 荒川区東日暮里6丁目60-10 日暮里駅前中央ビル1F
- 電話番号
- 03-3802-1132
- 営業時間
- 10:00~18:00
- 定休日
- 水曜日・年末年始(12/27~1/3)
- 所属団体名
- なし
おすすめ物件 (20件)
賃貸マンション
グランヴィラージュ

東京メトロ日比谷線 / 三ノ輪駅 徒歩10分
築20年 / 3階建
東京都台東区千束3丁目30-2

7.6万円 / 管理費5,000円
敷
7.6万円礼
7.6万円ワンルーム / 25.59㎡ / 2階
賃貸マンション
台東区 11階建 2014年築
東京メトロ日比谷線 / 三ノ輪駅 徒歩2分
築11年 / 11階建
東京都台東区根岸5丁目18-4
9.25万円 / 管理費10,000円
敷
無料礼
無料1K / 25.01㎡ / 4階
賃貸マンション
ラフィスタ三ノ輪
東京メトロ日比谷線 / 三ノ輪駅 徒歩3分
築11年 / 12階建
東京都台東区三ノ輪1丁目7-5
9.35万円 / 管理費15,000円
敷
無料礼
9.35万円1K / 27.26㎡ / 2階
賃貸マンション
シースペース三ノ輪

東京メトロ日比谷線 / 三ノ輪駅 徒歩5分
築18年 / 10階建
東京都台東区竜泉3丁目35-10

9万円 / 管理費2,000円
敷
9万円礼
9万円1K / 25.67㎡ / 9階
賃貸マンション
LUMEED南千住

東京メトロ日比谷線 / 三ノ輪駅 徒歩13分
築1年 / 13階建
東京都台東区清川2丁目35-9

9.3万円 / 管理費15,000円
敷
無料礼
無料ワンルーム / 26.03㎡ / 1階
賃貸マンション
GENOVIA南千住Ⅵ skygarden

東京メトロ日比谷線 / 三ノ輪駅 徒歩13分
築2年 / 9階建
東京都台東区日本堤1丁目19-2

9.5万円 / 管理費10,000円
敷
無料礼
無料1K / 25.59㎡ / 2階
賃貸マンション
プレール・ドゥーク東京EASTⅢ

東京メトロ日比谷線 / 三ノ輪駅 徒歩3分
築17年 / 12階建
東京都台東区日本堤2丁目

8.4万円 / 管理費8,000円
敷
無料礼
8.4万円1K / 25.5㎡ / 5階
賃貸マンション
メイクスアート三ノ輪II
東京メトロ日比谷線 / 三ノ輪駅 徒歩7分
築2年 / 9階建
東京都台東区竜泉3丁目2-10
8.15万円 / 管理費12,000円
敷
8.15万円礼
8.15万円1K / 25.29㎡ / 2階
賃貸マンション
ザ・レジデンス・オブ・トーキョーH20イーストタワー
東京メトロ日比谷線 / 三ノ輪駅 徒歩8分
築4年 / 12階建
東京都台東区日本堤2丁目13-3
9.4万円 / 管理費10,000円
敷
9.4万円礼
9.4万円1K / 25.5㎡ / 4階
賃貸マンション
CITY SPIRE 三ノ輪II
東京メトロ日比谷線 / 三ノ輪駅 徒歩8分
築18年 / 11階建
東京都台東区日本堤2丁目31-11
9.3万円 / 管理費10,000円
敷
無料礼
無料1K / 25.11㎡ / 6階
賃貸アパート
エクセラン南千住

東京メトロ日比谷線 / 三ノ輪駅 徒歩7分
築2年 / 3階建
東京都荒川区南千住5丁目31-12

8.9万円 / 管理費3,000円
敷
無料礼
8.9万円1K / 23.06㎡ / 3階
賃貸マンション
レアライズ日暮里EAST

常磐線 / 三河島駅 徒歩11分
築10年 / 10階建
東京都荒川区東日暮里4丁目32-9

8.85万円 / 管理費10,000円
敷
無料礼
8.85万円1K / 25.5㎡ / 2階
賃貸マンション
ニューシティアパートメンツ南千住

東京メトロ日比谷線 / 三ノ輪駅 徒歩11分
築19年 / 8階建
東京都荒川区南千住3丁目2-6

8.6万円 / 管理費5,000円
敷
8.6万円礼
8.6万円1K / 25.39㎡ / 5階
賃貸マンション
ヴェルト南千住

東京メトロ日比谷線 / 三ノ輪駅 徒歩6分
築19年 / 10階建
東京都荒川区南千住2丁目16-10

9.5万円 / 管理費10,000円
敷
無料礼
9.5万円ワンルーム / 28.52㎡ / 3階
賃貸マンション
ティモーネ日暮里イースト
東京メトロ日比谷線 / 三ノ輪駅 徒歩9分
築10年 / 8階建
東京都荒川区東日暮里2丁目20-14
8.9万円 / 管理費12,000円
敷
8.9万円礼
8.9万円ワンルーム / 25.83㎡ / 7階
賃貸マンション
Livixia清川
東京メトロ日比谷線 / 三ノ輪駅 徒歩15分
築2年 / 5階建
東京都台東区清川2
8.8万円 / 管理費10,000円
敷
8.8万円礼
無料ワンルーム / 21.64㎡ / 4階
賃貸マンション
グランヴィラージュ

東京メトロ日比谷線 / 三ノ輪駅 徒歩10分
築20年 / 3階建
東京都台東区千束3丁目30-2

7.6万円 / 管理費5,000円
敷
7.6万円礼
7.6万円ワンルーム / 25.59㎡ / 2階
賃貸マンション
台東区 11階建 2014年築
東京メトロ日比谷線 / 三ノ輪駅 徒歩2分
築11年 / 11階建
東京都台東区根岸5丁目18-4
9.25万円 / 管理費10,000円
敷
無料礼
無料1K / 25.01㎡ / 4階
賃貸マンション
ラフィスタ三ノ輪
東京メトロ日比谷線 / 三ノ輪駅 徒歩3分
築11年 / 12階建
東京都台東区三ノ輪1丁目7-5
9.35万円 / 管理費15,000円
敷
無料礼
9.35万円1K / 27.26㎡ / 2階
賃貸マンション
シースペース三ノ輪

東京メトロ日比谷線 / 三ノ輪駅 徒歩5分
築18年 / 10階建
東京都台東区竜泉3丁目35-10

9万円 / 管理費2,000円
敷
9万円礼
9万円1K / 25.67㎡ / 9階
賃貸マンション
LUMEED南千住

東京メトロ日比谷線 / 三ノ輪駅 徒歩13分
築1年 / 13階建
東京都台東区清川2丁目35-9

9.3万円 / 管理費15,000円
敷
無料礼
無料ワンルーム / 26.03㎡ / 1階
賃貸マンション
GENOVIA南千住Ⅵ skygarden

東京メトロ日比谷線 / 三ノ輪駅 徒歩13分
築2年 / 9階建
東京都台東区日本堤1丁目19-2

9.5万円 / 管理費10,000円
敷
無料礼
無料1K / 25.59㎡ / 2階
賃貸マンション
プレール・ドゥーク東京EASTⅢ

東京メトロ日比谷線 / 三ノ輪駅 徒歩3分
築17年 / 12階建
東京都台東区日本堤2丁目

8.4万円 / 管理費8,000円
敷
無料礼
8.4万円1K / 25.5㎡ / 5階
賃貸マンション
メイクスアート三ノ輪II
東京メトロ日比谷線 / 三ノ輪駅 徒歩7分
築2年 / 9階建
東京都台東区竜泉3丁目2-10
8.15万円 / 管理費12,000円
敷
8.15万円礼
8.15万円1K / 25.29㎡ / 2階
賃貸マンション
ザ・レジデンス・オブ・トーキョーH20イーストタワー
東京メトロ日比谷線 / 三ノ輪駅 徒歩8分
築4年 / 12階建
東京都台東区日本堤2丁目13-3
9.4万円 / 管理費10,000円
敷
9.4万円礼
9.4万円1K / 25.5㎡ / 4階
賃貸マンション
CITY SPIRE 三ノ輪II
東京メトロ日比谷線 / 三ノ輪駅 徒歩8分
築18年 / 11階建
東京都台東区日本堤2丁目31-11
9.3万円 / 管理費10,000円
敷
無料礼
無料1K / 25.11㎡ / 6階
賃貸アパート
エクセラン南千住

東京メトロ日比谷線 / 三ノ輪駅 徒歩7分
築2年 / 3階建
東京都荒川区南千住5丁目31-12

8.9万円 / 管理費3,000円
敷
無料礼
8.9万円1K / 23.06㎡ / 3階
賃貸マンション
レアライズ日暮里EAST

常磐線 / 三河島駅 徒歩11分
築10年 / 10階建
東京都荒川区東日暮里4丁目32-9

8.85万円 / 管理費10,000円
敷
無料礼
8.85万円1K / 25.5㎡ / 2階
賃貸マンション
ニューシティアパートメンツ南千住

東京メトロ日比谷線 / 三ノ輪駅 徒歩11分
築19年 / 8階建
東京都荒川区南千住3丁目2-6

8.6万円 / 管理費5,000円
敷
8.6万円礼
8.6万円1K / 25.39㎡ / 5階
賃貸マンション
ヴェルト南千住

東京メトロ日比谷線 / 三ノ輪駅 徒歩6分
築19年 / 10階建
東京都荒川区南千住2丁目16-10

9.5万円 / 管理費10,000円
敷
無料礼
9.5万円ワンルーム / 28.52㎡ / 3階
賃貸マンション
ティモーネ日暮里イースト
東京メトロ日比谷線 / 三ノ輪駅 徒歩9分
築10年 / 8階建
東京都荒川区東日暮里2丁目20-14
8.9万円 / 管理費12,000円
敷
8.9万円礼
8.9万円ワンルーム / 25.83㎡ / 7階
賃貸マンション
Livixia清川
東京メトロ日比谷線 / 三ノ輪駅 徒歩15分
築2年 / 5階建
東京都台東区清川2
8.8万円 / 管理費10,000円
敷
8.8万円礼
無料ワンルーム / 21.64㎡ / 4階








