GENOVIA亀戸green wall1K/6階/606(東京都江東区 / 亀戸駅)の賃貸
1/22
1/22
9.8万円
初期費用を知りたい管理費10,000円
- 敷金
- 無料
- 保証金
- なし
- 礼金
- 9.8万円
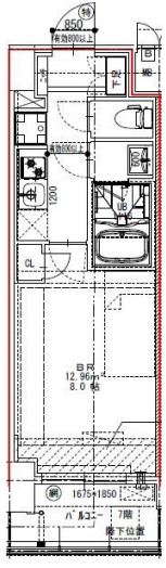
- 広さ
- 25.44㎡
- 階数
- 6階 / 7階建
- 間取り
- 1K
- 建物
- マンション (鉄筋コンクリート)
- 築年数
- 築15年
- 向き
- 北
- 交通
- 総武線 / 亀戸駅徒歩7分
- 東武亀戸線 / 亀戸水神駅徒歩7分
- 総武線 / 錦糸町駅徒歩14分
- 東武亀戸線 / 小村井駅徒歩16分
- 住所
- 東京都江東区亀戸4丁目15-2
旬鮮食品館カズン亀戸店 309m
ファミリーマート 亀戸四丁目店 226m
アトレ亀戸 665m
水神クリニック 271m
亀戸四丁目ふれあい公園 248m
東北大学国際会計政策大学院 1506m
無料で10秒! カンタンお問い合わせ

GENOVIA亀戸green wall
敷
無料礼
9.8万円特徴
バス・トイレ別
2階以上
エアコン付き
ペット相談可
駐車場あり
室内洗濯機置場
オートロック
洗面所独立
- 入居条件
- ペット相談、保証人不要、敷金不要、即入居可最新の空室状況が知りたい
- バス・トイレ
- シャワー、給湯、洗面台、バストイレ別、浴室乾燥機、脱衣所、温水洗浄便座、洗面所独立
- キッチン
- ガスコンロ対応、2口コンロ、システムキッチン
- セキュリティ
- 防犯カメラ、オートロック
- 室内設備
- CS、インターネット対応、BS、エアコン、シューズボックス、クロゼット、2面採光、室内洗濯置、フローリングお部屋の詳しい情報を知りたい
- 部屋の特徴
- 二階以上、角住戸、バルコニー写真を送ってほしい
- 共用部
- 敷地内駐車場、敷地内ごみ置き場、宅配ボックス、エレベーター、駐輪場
- その他の特徴
- 駐車場あり、公営水道、下水
無料で10秒! カンタンお問い合わせ

GENOVIA亀戸green wall
敷
無料礼
9.8万円不動産会社からのコメント
ペット飼育時、敷金積み増し2ヶ月(償却1ヶ月)/敷地内駐車場(利用時):月額25000円/室内清掃費用 49500円(退去時)/エアコン清掃費用借主負担(退去時)/短期解約違約金有(1年以内の解約は賃料と管理費を合わせた総賃料の1ヶ月分)
その他
- 駐車/駐輪
- 有敷地内 費用: 25,000円(税込) / あり駐車可能な車種や台数を知りたい
- 入居時期
- 損保
- 住宅保険: 要
- 保証人代行
- 連帯保証人: 不要 保証人代行: 必須 保証人代行会社: 日本セーフティー 月額賃料等の50%(初回保証料)、2年目以降は1万円/年
- その他費用
初期費用を知りたい鍵交換費:22,000円
書類事務手数料:11,000円
- 情報
情報登録日:2026/1/26
情報更新日:2026/1/29
次回更新予定日:2026/2/11
- 備考
- 敷金積増し: ペット 賃料の2.0ヶ月分 契約期間: 2年
取扱い会社
- 取扱い会社
- ソレイユ高田馬場店 (株式会社ソレイユ)条件が近い物件も紹介してほしい
- 免許番号
- 国土交通大臣(5)第7031号
- 取引態様
- 仲介
- 所在地
- 東京都新宿区高田馬場3丁目2-5 ANビル 8階
- 電話番号
- 03-5337-3777
- 営業時間
- 10:00~19:00
- 定休日
- 毎週水曜日・第2火曜日
- 所属団体名
- 全日本不動産協会
おすすめ物件 (20件)
賃貸マンション
アルテシモモンド(ARTESSIMO MONDO)
東武亀戸線 / 亀戸駅 徒歩11分
築13年 / 8階建
東京都江東区亀戸3丁目44-6
10.5万円 / 管理費15,000円
敷
10.5万円礼
10.5万円ワンルーム / 26.43㎡ / 8階
賃貸マンション
ニューシティアパートメンツ亀戸
東武亀戸線 / 亀戸駅 徒歩5分
築20年 / 6階建
東京都江東区亀戸6丁目63-13
10.2万円 / 管理費8,000円
敷
10.2万円礼
10.2万円1K / 27.26㎡ / 5階
賃貸マンション
江東区 14階建 2022年築
総武線 / 亀戸駅 徒歩3分
築4年 / 14階建
東京都江東区亀戸6丁目28-2
11.4万円 / 管理費15,000円
敷
無料礼
無料1K / 25.66㎡ / 9階
賃貸マンション
ジェノヴィア押上スカイガーデン
東京メトロ半蔵門線 / 錦糸町駅 徒歩14分
築5年 / 10階建
東京都江東区亀戸3丁目16-11
11.8万円 / 管理費15,000円
敷
無料礼
無料1K / 25.95㎡ / 7階
賃貸マンション
アルテシモクレルトルテ(ARTESSIMO CLAIRTORTE)
東武亀戸線 / 亀戸駅 徒歩5分
築4年 / 13階建
東京都江東区亀戸6丁目42-7
11.5万円 / 管理費10,000円
敷
無料礼
11.5万円1DK / 25.46㎡ / 7階
賃貸マンション
NSTビルディングIII
総武線 / 錦糸町駅 徒歩8分
築15年 / 12階建
東京都墨田区江東橋4丁目4-1
10.2万円 / 管理費7,500円
敷
10.2万円礼
10.2万円ワンルーム / 25.67㎡ / 5階
賃貸マンション
プレール・ドゥーク錦糸公園ノース
総武線 / 錦糸町駅 徒歩11分
築4年 / 7階建
東京都墨田区横川5丁目2-11
11.2万円 / 管理費20,000円
敷
無料礼
無料1K / 25.65㎡ / 6階
賃貸マンション
エスレジデンス錦糸町パークサイド
東京メトロ半蔵門線 / 錦糸町駅 徒歩6分
築9年 / 13階建
東京都墨田区錦糸1丁目6-3
11.5万円 / 管理費17,000円
敷
11.5万円礼
11.5万円1K / 25.8㎡ / 5階
賃貸マンション
エスティメゾン錦糸町II
東京メトロ半蔵門線 / 錦糸町駅 徒歩5分
築18年 / 15階建
東京都墨田区江東橋3丁目5-19
11万円 / 管理費10,000円
敷
11万円礼
無料1K / 21.42㎡ / 14階
賃貸マンション
パークアクシス錦糸町レジデンス

総武線 / 錦糸町駅 徒歩8分
築13年 / 14階建
東京都墨田区江東橋1丁目2-6

11.5万円 / 管理費10,000円
敷
11.5万円礼
11.5万円1K / 25.85㎡ / 4階
賃貸マンション
レガスタ錦糸町

総武線 / 錦糸町駅 徒歩10分
築19年 / 8階建
東京都墨田区亀沢4丁目23-12

9.7万円 / 管理費8,000円
敷
9.7万円礼
9.7万円1K / 27.6㎡ / 3階
賃貸マンション
S-RESIDENCE錦糸町パ-クサイド

東京メトロ半蔵門線 / 錦糸町駅 徒歩6分
築9年 / 13階建
東京都墨田区錦糸1丁目6-3

11.4万円 / 管理費17,000円
敷
11.4万円礼
11.4万円1K / 25.8㎡ / 2階
賃貸マンション
BPRレジデンス亀戸

総武線 / 亀戸駅 徒歩7分
築7年 / 11階建
東京都江東区亀戸2丁目

10.6万円 / 管理費8,000円
敷
10.6万円礼
10.6万円1DK / 25.2㎡ / 8階
賃貸マンション
ライジングプレイス亀戸

総武線 / 亀戸駅 徒歩8分
築11年 / 18階建
東京都江東区亀戸7丁目

9.8万円 / 管理費10,000円
敷
9.8万円礼
19.6万円ワンルーム / 26.6㎡ / 9階
賃貸マンション
プレール・ドゥーク亀戸Ⅴ

東武亀戸線 / 亀戸水神駅 徒歩7分
築13年 / 11階建
東京都江東区亀戸4丁目

8.9万円 / 管理費5,000円
敷
無料礼
8.9万円1K / 20.05㎡ / 10階
賃貸マンション
S-RESIDENCE錦糸町パークサイド

東京メトロ半蔵門線 / 錦糸町駅 徒歩6分
築9年 / 13階建
東京都墨田区錦糸1丁目

11.4万円 / 管理費17,000円
敷
11.4万円礼
無料1K / 25.8㎡ / 2階
賃貸マンション
アルテシモモンド(ARTESSIMO MONDO)
東武亀戸線 / 亀戸駅 徒歩11分
築13年 / 8階建
東京都江東区亀戸3丁目44-6
10.5万円 / 管理費15,000円
敷
10.5万円礼
10.5万円ワンルーム / 26.43㎡ / 8階
賃貸マンション
ニューシティアパートメンツ亀戸
東武亀戸線 / 亀戸駅 徒歩5分
築20年 / 6階建
東京都江東区亀戸6丁目63-13
10.2万円 / 管理費8,000円
敷
10.2万円礼
10.2万円1K / 27.26㎡ / 5階
賃貸マンション
江東区 14階建 2022年築
総武線 / 亀戸駅 徒歩3分
築4年 / 14階建
東京都江東区亀戸6丁目28-2
11.4万円 / 管理費15,000円
敷
無料礼
無料1K / 25.66㎡ / 9階
賃貸マンション
ジェノヴィア押上スカイガーデン
東京メトロ半蔵門線 / 錦糸町駅 徒歩14分
築5年 / 10階建
東京都江東区亀戸3丁目16-11
11.8万円 / 管理費15,000円
敷
無料礼
無料1K / 25.95㎡ / 7階
賃貸マンション
アルテシモクレルトルテ(ARTESSIMO CLAIRTORTE)
東武亀戸線 / 亀戸駅 徒歩5分
築4年 / 13階建
東京都江東区亀戸6丁目42-7
11.5万円 / 管理費10,000円
敷
無料礼
11.5万円1DK / 25.46㎡ / 7階
賃貸マンション
NSTビルディングIII
総武線 / 錦糸町駅 徒歩8分
築15年 / 12階建
東京都墨田区江東橋4丁目4-1
10.2万円 / 管理費7,500円
敷
10.2万円礼
10.2万円ワンルーム / 25.67㎡ / 5階
賃貸マンション
プレール・ドゥーク錦糸公園ノース
総武線 / 錦糸町駅 徒歩11分
築4年 / 7階建
東京都墨田区横川5丁目2-11
11.2万円 / 管理費20,000円
敷
無料礼
無料1K / 25.65㎡ / 6階
賃貸マンション
エスレジデンス錦糸町パークサイド
東京メトロ半蔵門線 / 錦糸町駅 徒歩6分
築9年 / 13階建
東京都墨田区錦糸1丁目6-3
11.5万円 / 管理費17,000円
敷
11.5万円礼
11.5万円1K / 25.8㎡ / 5階
賃貸マンション
エスティメゾン錦糸町II
東京メトロ半蔵門線 / 錦糸町駅 徒歩5分
築18年 / 15階建
東京都墨田区江東橋3丁目5-19
11万円 / 管理費10,000円
敷
11万円礼
無料1K / 21.42㎡ / 14階
賃貸マンション
パークアクシス錦糸町レジデンス

総武線 / 錦糸町駅 徒歩8分
築13年 / 14階建
東京都墨田区江東橋1丁目2-6

11.5万円 / 管理費10,000円
敷
11.5万円礼
11.5万円1K / 25.85㎡ / 4階
賃貸マンション
レガスタ錦糸町

総武線 / 錦糸町駅 徒歩10分
築19年 / 8階建
東京都墨田区亀沢4丁目23-12

9.7万円 / 管理費8,000円
敷
9.7万円礼
9.7万円1K / 27.6㎡ / 3階
賃貸マンション
S-RESIDENCE錦糸町パ-クサイド

東京メトロ半蔵門線 / 錦糸町駅 徒歩6分
築9年 / 13階建
東京都墨田区錦糸1丁目6-3

11.4万円 / 管理費17,000円
敷
11.4万円礼
11.4万円1K / 25.8㎡ / 2階
賃貸マンション
BPRレジデンス亀戸

総武線 / 亀戸駅 徒歩7分
築7年 / 11階建
東京都江東区亀戸2丁目

10.6万円 / 管理費8,000円
敷
10.6万円礼
10.6万円1DK / 25.2㎡ / 8階
賃貸マンション
ライジングプレイス亀戸

総武線 / 亀戸駅 徒歩8分
築11年 / 18階建
東京都江東区亀戸7丁目

9.8万円 / 管理費10,000円
敷
9.8万円礼
19.6万円ワンルーム / 26.6㎡ / 9階
賃貸マンション
プレール・ドゥーク亀戸Ⅴ

東武亀戸線 / 亀戸水神駅 徒歩7分
築13年 / 11階建
東京都江東区亀戸4丁目

8.9万円 / 管理費5,000円
敷
無料礼
8.9万円1K / 20.05㎡ / 10階
賃貸マンション
S-RESIDENCE錦糸町パークサイド

東京メトロ半蔵門線 / 錦糸町駅 徒歩6分
築9年 / 13階建
東京都墨田区錦糸1丁目

11.4万円 / 管理費17,000円
敷
11.4万円礼
無料1K / 25.8㎡ / 2階
同じ最寄り駅 × 同じ特徴 で探す
同じ市区町村 × 同じ特徴 で探す





























