ファミール心斎橋EAST2LDK/12階/1202(大阪府大阪市中央区 / 松屋町駅)の賃貸
1/30
1/30
14.5万円
初期費用を知りたい管理費20,000円
- 敷金
- 14.5万円
- 保証金
- なし
- 礼金
- 29万円
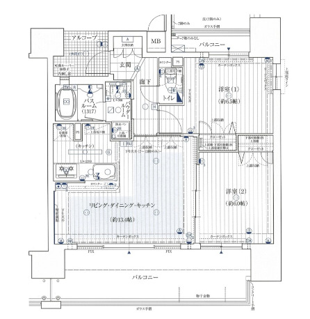
- 広さ
- 60.11㎡
- 階数
- 12階 / 15階建
- 間取り
- 2LDK
- 建物
- マンション (鉄筋コンクリート)
- 築年数
- 築27年
- 向き
- 南
- 交通
- 地下鉄長堀鶴見緑地線 / 松屋町駅徒歩5分
- 地下鉄堺筋線 / 長堀橋駅徒歩7分
- 住所
- 大阪府大阪市中央区島之内1丁目
コンビニエンスストア 57m
スーパーマーケット 87m
総合病院 909m
公園 1212m
商店街 281m
南警察署 398m
無料で10秒! カンタンお問い合わせ

ファミール心斎橋EAST
敷
14.5万円礼
29万円特徴
バス・トイレ別
2階以上
エアコン付き
ペット相談可
駐車場あり
室内洗濯機置場
オートロック
洗面所独立
- 入居条件
- 初期費用カード決済可、楽器不可、事務所(SOHO)可、二人入居可、ペット不可、保証人不要最新の空室状況が知りたい
- バス・トイレ
- 専用バス、専用トイレ、バストイレ別、シャワー、給湯、追焚機能浴室、シャワー付洗面化粧台、温水洗浄便座、浴室乾燥機、洗面所独立、オートバス
- キッチン
- ガスコンロ対応、3口以上コンロ、システムキッチン、カウンターキッチン
- セキュリティ
- オートロック、防犯カメラ、セキュリティ会社加入済
- 室内設備
- エアコン、室内洗濯置、CATV、出窓、フローリング、光ファイバー、全居室収納、クロゼット、シューズボックス、照明付お部屋の詳しい情報を知りたい
- 部屋の特徴
- バルコニー、二階以上写真を送ってほしい
- 共用部
- エレベーター、宅配ボックス、駐輪場、バイク置場
- その他の特徴
- 公営水道、都市ガス、下水、デザイナーズ、分譲賃貸、駐車場あり
無料で10秒! カンタンお問い合わせ

ファミール心斎橋EAST
敷
14.5万円礼
29万円不動産会社からのコメント
当社では大阪市内のあらゆる物件を取り扱っています。他府県から大阪にお引越しをお考えの方にあらゆるご
ミニミニなんば店ではオトリ広告を一切致しておりません。常に新鮮な情報をお届けし、最適なお部屋をご提案させて頂きます。インターネット使用無料・デザイナーズ・敷金礼金0円・ペット可家具家電付き・分譲賃貸・ファミリー物件等幅広く取り扱っており、当社ならではのネットワークがございますので物件情報は他社には負けません☆お部屋探しは是非ミニミニなんば店へお問合せ下さいませ(^^♪
その他
- 駐車/駐輪
- 空有 費用: 23,000円 税: 税込み 距離: 1m 空き数: 1 備考: 全長5300 全幅1950 全高2100 重さ2300 / あり駐車可能な車種や台数を知りたい
- 入居時期
- 2026年4月上旬最新の空室状況が知りたい
- 損保
- 住宅保険: 要
- 保証人代行
- 加入要 費用: 初回 総賃料50%~60% / 年更新料 10,000円
- その他費用
初期費用を知りたい安心サポート:19,800円
鍵交換費用:44,000円
- 情報
情報登録日:2026/3/26
情報更新日:2026/3/26
次回更新予定日:2026/4/9
- 備考
- 現況: 空家 契約期間: 2年 管理人: 日勤 バルコニー面積: 4.00㎡ 自社管理番号: 820986
取扱い会社
- 取扱い会社
- 井上コーポレーション有限会社 ミニミニFCなんば店条件が近い物件も紹介してほしい
- 免許番号
- 大阪府知事 (5) 第47283号
- 取引態様
- 専属専任媒介
- 所在地
- 大阪府大阪市浪速区難波中1丁目1-16 lifeなんばビル 1F
- 電話番号
- 06-6633-2100
- 定休日
- 年末年始
おすすめ物件 (8件)
賃貸アパート
トリシア谷町六丁目

地下鉄長堀鶴見緑地線 / 松屋町駅 徒歩8分
築2年 / 3階建
大阪府大阪市中央区上本町西1丁目4-11

15.8万円 / 管理費6,500円
敷
無料礼
30万円2LDK / 50.5㎡ / 3階
賃貸マンション
地下鉄谷町線 谷町四丁目駅 9階建 築20年
地下鉄長堀鶴見緑地線 / 松屋町駅 徒歩8分
築19年 / 9階建
大阪府大阪市中央区内久宝寺町3
12.5万円 / 管理費8,000円
敷
無料礼
20万円1LDK / 50.34㎡ / 4階
賃貸マンション
プライムアーバン堺筋本町

地下鉄長堀鶴見緑地線 / 松屋町駅 徒歩11分
築19年 / 15階建
大阪府大阪市中央区久太郎町1丁目

14.9万円 / 管理費10,000円
敷
無料礼
14.9万円1LDK / 53.22㎡ / 5階
賃貸マンション
カーサラピス

地下鉄長堀鶴見緑地線 / 松屋町駅 徒歩4分
築11年 / 9階建
大阪府大阪市中央区瓦屋町1丁目

15.2万円 / 管理費8,000円
敷
無料礼
30万円2LDK / 58.13㎡ / 6階
賃貸マンション
アビエール松屋町

地下鉄長堀鶴見緑地線 / 松屋町駅 徒歩3分
築13年 / 14階建
大阪府大阪市中央区松屋町住吉

14.2万円 / 管理費12,000円
敷
無料礼
30万円1LDK / 50.31㎡ / 10階
賃貸物件
大阪市中央区 3階建 2020年築

地下鉄長堀鶴見緑地線 / 松屋町駅 徒歩9分
築6年 / 3階建
大阪府大阪市中央区上本町西2丁目

15.5万円 / 管理費7,000円
敷
15.5万円礼
31万円2LDK / 56.77㎡ / 3階
賃貸マンション
大阪市中央区松屋町 14階建 2012年築

地下鉄長堀鶴見緑地線 / 松屋町駅 徒歩2分
築14年 / 14階建
大阪府大阪市中央区松屋町

15万円 / 管理費26,000円
敷
15万円礼
22.5万円2LDK / 55.24㎡ / 13階
賃貸マンション
グランルージュ谷町六丁目

地下鉄長堀鶴見緑地線 / 松屋町駅 徒歩5分
築16年 / 13階建
大阪府大阪市中央区十二軒町

13.7万円 / 管理費8,000円
敷
13.7万円礼
13.7万円1K / 53.07㎡ / 2階
賃貸アパート
トリシア谷町六丁目

地下鉄長堀鶴見緑地線 / 松屋町駅 徒歩8分
築2年 / 3階建
大阪府大阪市中央区上本町西1丁目4-11

15.8万円 / 管理費6,500円
敷
無料礼
30万円2LDK / 50.5㎡ / 3階
賃貸マンション
地下鉄谷町線 谷町四丁目駅 9階建 築20年
地下鉄長堀鶴見緑地線 / 松屋町駅 徒歩8分
築19年 / 9階建
大阪府大阪市中央区内久宝寺町3
12.5万円 / 管理費8,000円
敷
無料礼
20万円1LDK / 50.34㎡ / 4階
賃貸マンション
プライムアーバン堺筋本町

地下鉄長堀鶴見緑地線 / 松屋町駅 徒歩11分
築19年 / 15階建
大阪府大阪市中央区久太郎町1丁目

14.9万円 / 管理費10,000円
敷
無料礼
14.9万円1LDK / 53.22㎡ / 5階
賃貸マンション
カーサラピス

地下鉄長堀鶴見緑地線 / 松屋町駅 徒歩4分
築11年 / 9階建
大阪府大阪市中央区瓦屋町1丁目

15.2万円 / 管理費8,000円
敷
無料礼
30万円2LDK / 58.13㎡ / 6階
賃貸マンション
アビエール松屋町

地下鉄長堀鶴見緑地線 / 松屋町駅 徒歩3分
築13年 / 14階建
大阪府大阪市中央区松屋町住吉

14.2万円 / 管理費12,000円
敷
無料礼
30万円1LDK / 50.31㎡ / 10階
賃貸物件
大阪市中央区 3階建 2020年築

地下鉄長堀鶴見緑地線 / 松屋町駅 徒歩9分
築6年 / 3階建
大阪府大阪市中央区上本町西2丁目

15.5万円 / 管理費7,000円
敷
15.5万円礼
31万円2LDK / 56.77㎡ / 3階
賃貸マンション
大阪市中央区松屋町 14階建 2012年築

地下鉄長堀鶴見緑地線 / 松屋町駅 徒歩2分
築14年 / 14階建
大阪府大阪市中央区松屋町

15万円 / 管理費26,000円
敷
15万円礼
22.5万円2LDK / 55.24㎡ / 13階
賃貸マンション
グランルージュ谷町六丁目

地下鉄長堀鶴見緑地線 / 松屋町駅 徒歩5分
築16年 / 13階建
大阪府大阪市中央区十二軒町

13.7万円 / 管理費8,000円
敷
13.7万円礼
13.7万円1K / 53.07㎡ / 2階





























