高槻市上本町 2階建 2018年築1K/2階(大阪府高槻市 / 高槻市駅)の賃貸
1/13
1/13
8.6万円
初期費用を知りたい管理費5,000円
- 敷金
- 無料
- 保証金
- なし
- 礼金
- 8.6万円
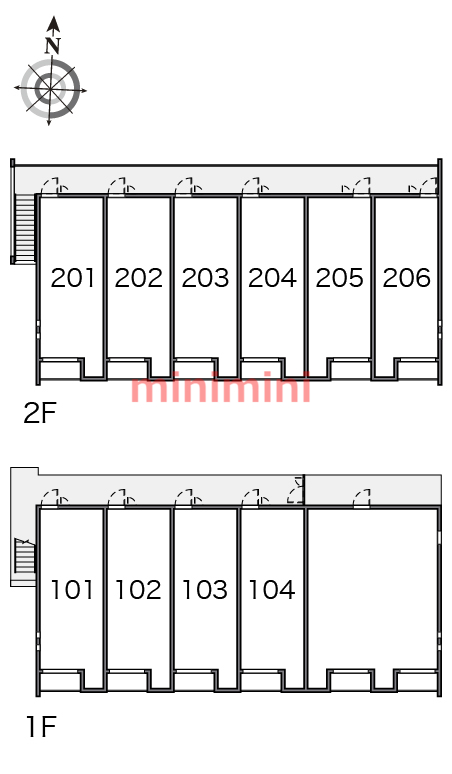
- 広さ
- 25.89㎡
- 階数
- 2階 / 2階建
- 間取り
- 1K
- 建物
- アパート (木造)
- 築年数
- 築8年
- 向き
- 南
- 交通
- 阪急京都線 / 高槻市駅徒歩8分
- 東海道本線 / 高槻駅徒歩15分
- 住所
- 大阪府高槻市上本町
無料で10秒! カンタンお問い合わせ

高槻市上本町 2階建 2018年築
敷
無料礼
8.6万円特徴
バス・トイレ別
2階以上
エアコン付き
ペット相談可
駐車場あり
室内洗濯機置場
オートロック
洗面所独立
- 入居条件
- 敷金不要、即入居可最新の空室状況が知りたい
- バス・トイレ
- 給湯、温水洗浄便座、浴室乾燥機、洗面所独立、バストイレ別
- セキュリティ
- 防犯カメラ
- 室内設備
- エアコン、室内洗濯置、インターネット対応、家具・家電付お部屋の詳しい情報を知りたい
- 部屋の特徴
- バルコニー、二階以上、最上階写真を送ってほしい
- 共用部
- 駐輪場、敷地内駐車場
- その他の特徴
- 駐車場あり
無料で10秒! カンタンお問い合わせ

高槻市上本町 2階建 2018年築
敷
無料礼
8.6万円その他
- 駐車/駐輪
- 空有 費用: 14,300円 税: 税込み 空き数: 1 / あり駐車可能な車種や台数を知りたい
- 入居時期
- 損保
- 住宅保険: 要
- 保証人代行
- -
- その他費用
初期費用を知りたい鍵交換費用:16,500円
室内清掃費用:41,800円
- 情報
情報登録日:2025/10/31
情報更新日:2026/2/21
次回更新予定日:2026/2/28
- 備考
- 現況: 空家 更新料: 16,500円 契約期間: 2年 総戸数: 10戸 自社管理番号: 9557824
取扱い会社
- 取扱い会社
- 株式会社穂積住宅 ミニミニFC高槻店条件が近い物件も紹介してほしい
- 免許番号
- 大阪府知事(9) 第32233号
- 取引態様
- 仲介
- 所在地
- 大阪府高槻市紺屋町3-1 グリーンプラザ3号館1階
- 電話番号
- 072-682-3232
- 営業時間
- 10:00~18:00
- 定休日
- 水曜日(12月27日~1月3日)
- 所属団体名
- (公財)日本賃貸住宅管理協会・(公社)全国宅地建物取引業協会
おすすめ物件 (20件)
賃貸アパート
クレアール高槻古曽部

東海道本線 / 高槻駅 徒歩17分
新築 / 3階建
大阪府高槻市古曽部町3丁目10-5

8.8万円 / 管理費4,500円
敷
無料礼
17.6万円1LDK / 30.51㎡ / 2階
賃貸マンション
THE GARDEN SUITE
)
東海道本線 / 高槻駅 徒歩5分
築10年 / 6階建
大阪府高槻市芥川町4丁目6-23
)
8.3万円 / 管理費8,000円
敷
10万円礼
23万円ワンルーム / 30.82㎡ / 4階
賃貸マンション
マインズ・コム高槻天神
東海道本線 / 高槻駅 徒歩9分
築9年 / 3階建
大阪府高槻市天神町1
家賃カード決済可
8.3万円 / 管理費8,000円
敷
無料礼
無料ワンルーム / 28.8㎡ / 3階
賃貸アパート
レオパレスヴェルデ古曽部
東海道本線 / 高槻駅 徒歩9分
築17年 / 4階建
大阪府高槻市古曽部町1丁目2-16
7.2万円 / 管理費5,000円
敷
無料礼
7.2万円1K / 19.87㎡ / 4階
賃貸マンション
高槻市 7階建 2018年築

阪急京都線 / 高槻市駅 徒歩14分
築8年 / 7階建
大阪府高槻市別所新町

6.7万円 / 管理費8,000円
敷
5万円礼
20万円1K / 25.43㎡ / 2階
賃貸マンション
高槻市 8階建 2020年築

阪急京都線 / 高槻市駅 徒歩3分
築6年 / 8階建
大阪府高槻市京口町

8.6万円 / 管理費8,000円
敷
5万円礼
20万円ワンルーム / 31.34㎡ / 5階
賃貸マンション
シンプルアドバンテージ
阪急京都線 / 高槻市駅 徒歩8分
築19年 / 3階建
大阪府高槻市南松原町7-20
8.2万円 / 管理費4,000円
敷
3万円礼
15万円1K / 33.95㎡ / 3階
賃貸アパート
レオパレス別所新町LA1

東海道本線 / 高槻駅 徒歩14分
築18年 / 3階建
大阪府高槻市別所新町

8.1万円 / 管理費5,000円
敷
無料礼
8.1万円ワンルーム / 27.32㎡ / 2階
賃貸アパート
高槻市 2階建 2010年築

阪急京都線 / 高槻市駅 徒歩32分
築16年 / 2階建
大阪府高槻市真上町5丁目

家賃カード決済可
7.1万円 / 管理費4,100円
敷
無料礼
7.1万円1LDK / 33.34㎡ / 2階
賃貸マンション
ソウジュ古曽部
)
東海道本線 / 高槻駅 徒歩10分
築7年 / 3階建
大阪府高槻市古曽部町2丁目5-15
)
8.8万円 / 管理費4,000円
敷
無料礼
17.6万円1DK / 34.54㎡ / 3階
賃貸アパート
クレアール高槻古曽部

東海道本線 / 高槻駅 徒歩17分
新築 / 3階建
大阪府高槻市古曽部町3丁目10-5

8.8万円 / 管理費4,500円
敷
無料礼
17.6万円1LDK / 30.51㎡ / 2階
賃貸マンション
THE GARDEN SUITE
)
東海道本線 / 高槻駅 徒歩5分
築10年 / 6階建
大阪府高槻市芥川町4丁目6-23
)
8.3万円 / 管理費8,000円
敷
10万円礼
23万円ワンルーム / 30.82㎡ / 4階
賃貸マンション
マインズ・コム高槻天神
東海道本線 / 高槻駅 徒歩9分
築9年 / 3階建
大阪府高槻市天神町1
家賃カード決済可
8.3万円 / 管理費8,000円
敷
無料礼
無料ワンルーム / 28.8㎡ / 3階
賃貸アパート
レオパレスヴェルデ古曽部
東海道本線 / 高槻駅 徒歩9分
築17年 / 4階建
大阪府高槻市古曽部町1丁目2-16
7.2万円 / 管理費5,000円
敷
無料礼
7.2万円1K / 19.87㎡ / 4階
賃貸マンション
高槻市 7階建 2018年築

阪急京都線 / 高槻市駅 徒歩14分
築8年 / 7階建
大阪府高槻市別所新町

6.7万円 / 管理費8,000円
敷
5万円礼
20万円1K / 25.43㎡ / 2階
賃貸マンション
高槻市 8階建 2020年築

阪急京都線 / 高槻市駅 徒歩3分
築6年 / 8階建
大阪府高槻市京口町

8.6万円 / 管理費8,000円
敷
5万円礼
20万円ワンルーム / 31.34㎡ / 5階
賃貸マンション
シンプルアドバンテージ
阪急京都線 / 高槻市駅 徒歩8分
築19年 / 3階建
大阪府高槻市南松原町7-20
8.2万円 / 管理費4,000円
敷
3万円礼
15万円1K / 33.95㎡ / 3階
賃貸アパート
レオパレス別所新町LA1

東海道本線 / 高槻駅 徒歩14分
築18年 / 3階建
大阪府高槻市別所新町

8.1万円 / 管理費5,000円
敷
無料礼
8.1万円ワンルーム / 27.32㎡ / 2階
賃貸アパート
高槻市 2階建 2010年築

阪急京都線 / 高槻市駅 徒歩32分
築16年 / 2階建
大阪府高槻市真上町5丁目

家賃カード決済可
7.1万円 / 管理費4,100円
敷
無料礼
7.1万円1LDK / 33.34㎡ / 2階
賃貸マンション
ソウジュ古曽部
)
東海道本線 / 高槻駅 徒歩10分
築7年 / 3階建
大阪府高槻市古曽部町2丁目5-15
)
8.8万円 / 管理費4,000円
敷
無料礼
17.6万円1DK / 34.54㎡ / 3階
同じ最寄り駅 × 同じ特徴 で探す
同じ市区町村 × 同じ特徴 で探す






















