EDIT文京千石II1LDK/2階/204(東京都文京区 / 千石駅)の賃貸
1/22
1/22
22.25万円
初期費用を知りたい管理費18,000円
適用で最大2年間4.8万円割引
本物件のヘヤワリ適用可否については、不動産会社へご確認ください。
- 敷金
- 無料
- 保証金
- なし
- 礼金
- 無料
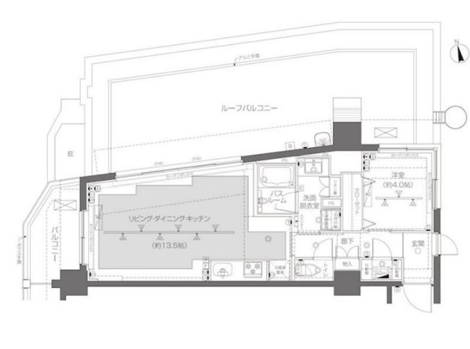
- 広さ
- 42.88㎡
- 階数
- 2階 / 5階建
- 間取り
- 1LDK
- 建物
- マンション (鉄筋コンクリート)
- 築年数
- 新築
- 向き
- 南西
- 交通
- 都営三田線 / 千石駅徒歩5分
- 山手線 / 巣鴨駅徒歩8分
- 住所
- 東京都文京区千石4丁目35-12
コンビニエンスストア 220m
スーパーマーケット 410m
ドラッグストア 300m
文京千石郵便局 240m
無料で10秒! カンタンお問い合わせ
EDIT文京千石II
敷
無料礼
無料特徴
バス・トイレ別
2階以上
エアコン付き
ペット相談可
駐車場あり
室内洗濯機置場
オートロック
洗面所独立
- 入居条件
- 保証人不要、ペット相談、小型犬可、猫可、即入居可、フリーレント最新の空室状況が知りたい
- バス・トイレ
- 給湯、専用バス、追焚機能浴室、浴室乾燥機、シャワー、専用トイレ、温水洗浄便座、バストイレ別、洗面所独立、シャワー付洗面化粧台
- キッチン
- IHクッキングヒーター、3口以上コンロ、カウンターキッチン、システムキッチン
- セキュリティ
- オートロック
- 室内設備
- BS、CS、インターネット対応、エアコン、冷房、クロゼット、シューズインクロゼット、室内洗濯置、フローリング、ネット使用料不要お部屋の詳しい情報を知りたい
- 部屋の特徴
- 二階以上写真を送ってほしい
- 共用部
- エレベーター、宅配ボックス、駐輪場
- その他の特徴
- 下水、公営水道、都市ガス
無料で10秒! カンタンお問い合わせ
EDIT文京千石II
敷
無料礼
無料同じ建物で掲載中の物件 (17件)
不動産会社からのコメント
初期費用の一部クレジットカード決済可!IT重説もできます、ご相談ください。オンライン内見相談可能!お電話ください。【03-5395-0651】
お部屋探しはタウンハウジングへ!短期解約違約金あり。
その他
- 駐車/駐輪
- 要確認 / あり駐車可能な車種や台数を知りたい
- 入居時期
- 損保
- 住宅保険: 要
- 保証人代行
- 加入要 会社名: その他 費用: 初回保証料:賃料等の30%
- その他費用
- 情報
情報登録日:2026/1/19
情報更新日:2026/5/17
次回更新予定日:2026/5/26
- 備考
- 現況: 空家 状態: 未入居 更新料: 新賃料の1.0ヶ月分 フリーレント: 1ヶ月(フリーレント1ヶ月) 契約期間: 2年
取扱い会社
- 取扱い会社
- 株式会社タウンハウジング 駒込店条件が近い物件も紹介してほしい
- 免許番号
- 国土交通大臣(1)9926号
- 取引態様
- 仲介
- 所在地
- 東京都文京区本駒込6-15-2 山口ビル1階
- 電話番号
- 03-3945-1881
- 所属団体名
- 東京都宅地建物取引業協会
おすすめ物件 (7件)
賃貸マンション
Brillia ist 文京六義園

都営三田線 / 千石駅 徒歩4分
築3年 / 6階建
東京都文京区本駒込6丁目3-9

20.3万円 / 管理費15,000円
敷
20.3万円礼
20.3万円1LDK / 39.59㎡ / 2階
賃貸マンション
Urban Breeze 巣鴨

都営三田線 / 巣鴨駅 徒歩9分
新築 / 9階建
東京都豊島区巣鴨4丁目28-4

21.1万円 / 管理費15,000円
敷
21.1万円礼
無料2LDK / 40.02㎡ / 5階
賃貸マンション
nido SUGAMO

都営三田線 / 巣鴨駅 徒歩4分
築2年 / 14階建
東京都豊島区巣鴨2丁目15-5

20.6万円 / 管理費20,000円
敷
無料礼
無料2LDK / 40.62㎡ / 7階
賃貸マンション
La Douceur巣鴨West

都営三田線 / 巣鴨駅 徒歩5分
築6年 / 5階建
東京都豊島区巣鴨3丁目18-3

21万円 / 管理費20,000円
敷
21万円礼
21万円1LDK / 40.08㎡ / 3階
賃貸マンション
ZOOM大塚

都営三田線 / 巣鴨駅 徒歩13分
築4年 / 9階建
東京都豊島区北大塚1丁目34-9

22.5万円 / 管理費12,000円
敷
22.5万円礼
22.5万円1LDK / 50.51㎡ / 5階
賃貸マンション
EDIT文京千石Ⅱ

都営三田線 / 千石駅 徒歩5分
新築 / 5階建
東京都文京区千石4丁目35-12

22.55万円 / 管理費18,000円
敷
無料礼
無料1LDK / 42.88㎡ / 2階
賃貸マンション
エディット文京千石2

都営三田線 / 千石駅 徒歩5分
新築 / 5階建
東京都文京区千石4丁目35-12

21.3万円 / 管理費18,000円
敷
無料礼
無料1LDK / 42.88㎡ / 3階
賃貸マンション
Brillia ist 文京六義園

都営三田線 / 千石駅 徒歩4分
築3年 / 6階建
東京都文京区本駒込6丁目3-9

20.3万円 / 管理費15,000円
敷
20.3万円礼
20.3万円1LDK / 39.59㎡ / 2階
賃貸マンション
Urban Breeze 巣鴨

都営三田線 / 巣鴨駅 徒歩9分
新築 / 9階建
東京都豊島区巣鴨4丁目28-4

21.1万円 / 管理費15,000円
敷
21.1万円礼
無料2LDK / 40.02㎡ / 5階
賃貸マンション
nido SUGAMO

都営三田線 / 巣鴨駅 徒歩4分
築2年 / 14階建
東京都豊島区巣鴨2丁目15-5

20.6万円 / 管理費20,000円
敷
無料礼
無料2LDK / 40.62㎡ / 7階
賃貸マンション
La Douceur巣鴨West

都営三田線 / 巣鴨駅 徒歩5分
築6年 / 5階建
東京都豊島区巣鴨3丁目18-3

21万円 / 管理費20,000円
敷
21万円礼
21万円1LDK / 40.08㎡ / 3階
賃貸マンション
ZOOM大塚

都営三田線 / 巣鴨駅 徒歩13分
築4年 / 9階建
東京都豊島区北大塚1丁目34-9

22.5万円 / 管理費12,000円
敷
22.5万円礼
22.5万円1LDK / 50.51㎡ / 5階
賃貸マンション
EDIT文京千石Ⅱ

都営三田線 / 千石駅 徒歩5分
新築 / 5階建
東京都文京区千石4丁目35-12

22.55万円 / 管理費18,000円
敷
無料礼
無料1LDK / 42.88㎡ / 2階
賃貸マンション
エディット文京千石2

都営三田線 / 千石駅 徒歩5分
新築 / 5階建
東京都文京区千石4丁目35-12

21.3万円 / 管理費18,000円
敷
無料礼
無料1LDK / 42.88㎡ / 3階
同じ最寄り駅 × 同じ特徴 で探す
同じ市区町村 × 同じ特徴 で探す











)
